NEW一戸建て廿日市市阿品4丁目 No.4の詳細情報
☆自己資金ゼロ・少額手付金で購入可☆ご成約特典20万円分キャッシュバック
外観・室内・設備(21枚)
物件概要
| 物件名 | 廿日市市阿品4丁目 No.4 | ||||
|---|---|---|---|---|---|
| 所在地 | 広島県廿日市市阿品4-25-18 | ||||
| 交通 |
JR山陽本線「阿品」歩12分 広島電鉄宮島線「広電阿品」歩13分 JR山陽本線「宮島口」歩20分 | ||||
| 構造および階数 | 木造2階建(軸組工法) | 建ぺい率・容積率 | 40%・80% | ||
| 完成予定日 | 2025年5月 | 入居可能予定日 | 即引渡可 | ||
| 土地権利 | 所有権 | ||||
| 駐車場 | - | 国土法届出 | - | ||
| 地目 | - | 道路付け | 無、南西4.1m幅、南東16m幅 | ||
| 機構融資 | - | 取引態様 | 仲介 | ||
| 用途地域 | 1種低層 | ||||
| 施工会社 | - | ||||
| 建築確認番号 | - | ||||
| 設備 | フラット35・S適合証明書 / 省エネルギー対策 / フラット35Sに対応 / 高気密高断熱住宅 / 年内引渡可 / 駐車2台可 / 即引渡可 / LDK20畳以上 / 土地50坪以上 / オーシャンビュー / 省エネ給湯器 / スーパー 徒歩10分以内 / システムキッチン / 浴室乾燥機 / 全居室収納 / 閑静な住宅地 / 前道6m以上 / 角地 / 和室 / 庭 / シャワー付洗面化粧台 / 対面式キッチン / ハイルーフ駐車場 / EV車充電設備 / ワイドバルコニー / トイレ2ヶ所 / 浴室1坪以上 / 2階建 / 東南向き / 南面バルコニー / 複層ガラス / オートバス / 温水洗浄便座 / 床下収納 / 浴室に窓 / 吹抜け / TVモニタ付インターホン / 前面棟無 / 全居室フローリング / パントリー(食器・食品の収納庫) / ウォークインクローゼット / 天井高2.5m以上 / IHクッキングヒーター / リビング階段 / 全居室複層ガラスか複層サッシ / シューズインクローク / 高台に立地 / 小学校 徒歩10分以内 / 大型タウン内 / 花火大会鑑賞 / ルーフバルコニー / テラス / 全室東南向き / オーディオバス / 食器洗乾燥機 / 周辺交通量少なめ / オール電化 / 浄水器 / スマートキー / 高機能トイレ | ||||
| その他制限事項 | - | ||||
| 備考 | 担当者:佐藤 允春、設備:公営水道、本下水、駐車場:カースペース | ||||
情報更新日:2025/11/15 次回更新予定日:情報提供より8日以内
販売概要
| 販売価格 | 4780万円 お問い合わせはこちら | ||||
|---|---|---|---|---|---|
| 販売スケジュール | - | ||||
| 販売戸数/総戸数 | 1戸/- | ||||
| 最多価格帯 | - | ||||
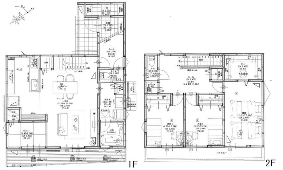
| 間取り | 3LDK+S(納戸) | ||||
| 建物面積 | 111.79㎡(33.81坪) | 土地面積 | 196.01㎡(59.29坪)(登記) | ||
| その他施設費用、償却費 | - | ||||
| その他費用 | - | ||||
| 登録受付 | - | 抽選日 | - | ||
| モデルルーム情報 | ☆☆住宅ローン相談会開催中☆☆・いくら借入が出来るの?・どの位の金利でいくらの支払いになるの?・銀行によって条件は変わる?・頭金がないけど購入出来る?・車のローンがまだ残っているけど住宅ローンを組める?融資可能金額・金利・団体信用生命保険の種類・その他条件など…。これらは金融機関によって変わってきます。転職して間もないんだけど?頭金がほとんどないんだけど?年収が低いんだけど?女性単身なんだけど?保証料って何のこと?他社で一度断られたんだけど?等など、住宅ローンでお悩みの方、どんなお悩みでもお気軽にご相談ください!車のローンや、カードローン等他の借入がある方も大丈夫!住宅ローン+500万円迄融資可能なので、他の借入も低金利の住宅ローンにまとめられます!例えば、新居購入と併せて家具や家電も新しくする事も可能です。当社スタッフが、お客様にぴったりの銀行をご提案させていただきます。物件が決まる前でも仮審査のみの受付もしております。住宅ローンにお悩みがあればお気軽にご相談くださいませ! | ||||
| 取引条件有効期限 | - | ||||
会社情報
| お問い合わせ先 |
(株)廣島明和 082-942-0884 上記の電話番号にお問合せください。(携帯・PHS 可) 【物件番号】78781296 | ||||
|---|---|---|---|---|---|
| 会社概要 |
(株)廣島明和[広島県知事(4)第009897号] 広島県広島市西区中広町2-1-22 【所属団体】 広島県知事(4)第009897号(公社)全日本不動産協会広島県本部会員 中国地区不動産公正取引協議会加盟 | ||||
この物件の地図・周辺環境
このアイコンは物件のおおよその位置を表しており、実際の場所と異なる場合がございます。詳しくは不動産会社に直接ご確認ください。
※地図上に表示される物件の位置は付近住所に所在することを表すものであり、実際の物件所在地とは異なる場合がございます。
※地図の更新タイミングの関係で、物件情報が実際のものとは異なる場合や最新情報に更新されていない場合がございます。
※以下の南西諸島及び離島においては、表示される物件の位置が実際のものとは数百メートル程度ずれる場合がございます。
東京都:硫黄島・青ヶ島、沖縄県: 北大東島・南大東島・多良間島・水納島・与那国島・宮古諸島・石垣島・竹富島
取り扱い不動産会社
- 電話番号
- 082-942-0884
- 受付
- 営業時間:10:00~19:00 / 定休日:水曜日
- 物件番号
- 78781296
(株)日東リバティ
トータテ住宅販売(株)西営業所
阿品駅の口コミ
治安・安全
4.0
コンビニが少ないことや、街灯が暗いところもあるため少し怖いと感じることがあるかも、、(人によっては)
お買い物・飲食
2.0
近くに薬局チェーン店があり、日常品を購入する分には便利だと感じた。 ただし食品など購入するためのスーパーは少し離れており車があってほうが便利。
住宅ローンシミュレーション
住宅ローン設定
物件価格
返済期間
頭金
ボーナス払(年1回)
※
※物件価格の80%以下でお借入れの場合
※50歳以下で一般団信をご選択の場合
※住宅ローン金利優遇割適用後の変動金利(全期間引き下げプラン)
※実際のお借入日の金利により変動します。
※審査の結果によっては保証付金利プランとなる場合があり、この場合は上記とは異なる金利となります。
※別途借入金額の2.20%(税込)の事務手数料が発生します。
ボーナス払 | 35年間返済 | 30年間返済 | 25年間返済 | 20年間返済 | 15年間返済 | 10年間返済 |
|---|---|---|---|---|---|---|
0万円 | -円/月 | -円/月 | -円/月 | -円/月 | -円/月 | -円/月 |
5万円 | -円/月 | -円/月 | -円/月 | -円/月 | -円/月 | -円/月 |
10万円 | -円/月 | -円/月 | -円/月 | -円/月 | -円/月 | -円/月 |
15万円 | -円/月 | -円/月 | -円/月 | -円/月 | -円/月 | -円/月 |
20万円 | -円/月 | -円/月 | -円/月 | -円/月 | -円/月 | -円/月 |
25万円 | -円/月 | -円/月 | -円/月 | -円/月 | -円/月 | -円/月 |
30万円 | -円/月 | -円/月 | -円/月 | -円/月 | -円/月 | -円/月 |
ボーナス払 | 35年間返済 | 30年間返済 | 25年間返済 | 20年間返済 | 15年間返済 | 10年間返済 |
|---|---|---|---|---|---|---|
0万円 | -円/月 | -円/月 | -円/月 | -円/月 | -円/月 | -円/月 |
5万円 | -円/月 | -円/月 | -円/月 | -円/月 | -円/月 | -円/月 |
10万円 | -円/月 | -円/月 | -円/月 | -円/月 | -円/月 | -円/月 |
15万円 | -円/月 | -円/月 | -円/月 | -円/月 | -円/月 | -円/月 |
20万円 | -円/月 | -円/月 | -円/月 | -円/月 | -円/月 | -円/月 |
25万円 | -円/月 | -円/月 | -円/月 | -円/月 | -円/月 | -円/月 |
30万円 | -円/月 | -円/月 | -円/月 | -円/月 | -円/月 | -円/月 |
- ・金利は、今後35年間変動しない仮定のもと元利均等返済方式で計算しております。
- ・実際の金利は、各金融機関のホームページをご参照ください。
- ・ローン契約の際には、手数料や印紙税などの諸費用が別途かかります。
- ・ボーナス支払総額が総支払額の50%を超えている場合、上記の表では「ローン不可」となります。
- ・シミュレーションを利用し、それが原因で利用者が受けたいかなる損害についても当社は一切責任を負いません。あらかじめご了承ください。
※価格は物件の代金総額を表示しており、消費税が課税される場合は税込み価格です。 (1000円未満は切り上げ。)
※写真に写っている、またはパース(絵)や間取り図に描かれている家具や車などは、特にコメントがない場合、販売価格に含まれません。
※敷地権利が定期借地権のものは価格に権利金を含みます。
※建築条件付き土地価格には、建物価格は含まれません。
※物件情報は、原則として情報提供日の2日前に最終確認した情報です。
※完成予想図はいずれも外構、植栽、外観等実際のものとは多少異なることがあります。
※モデルルーム・モデルハウス・展示場・ショールームの画像の場合、今回販売の物件と異なる場合があります。
※CG合成の画像の場合、実際とは多少異なる場合があります。
※物件特徴:販売戸数が複数の物件は、全ての住戸に該当しない項目もあります。
※0800で始まる電話番号は通話料無料です。また、サービス検証のため当該番号の利用履歴を個人が特定できない範囲で取得しています。予めご了承ください。
※完成後1年以上を経過した未入居物件が掲載される場合があります。ご了承ください。
※新着:物件情報が「SUUMO」に掲載された日から1週間表示されます。
※価格更新:物件価格が変更された日から1週間表示されます。
※販売予定物件はすべて、販売開始するまで契約または予約の申込みはできません。
※購入の前には物件内容や契約条件についてご自身で十分な確認をしていただくようにお願いいたします。
※建築条件土地の情報内に掲載されている、建物プラン例は、土地購入者の設計プランの参考の一例であって、プランの採用可否は任意です。
※土地(建築条件なし)で「建物プラン例」が表記してある時、そのプラン例は特定の建築請負会社によるもので、当該建築請負会社以外で建てた場合、同様のものが同価格で建てられるとは限りません。また建築請負会社を特定するものではありません。
※建築条件付き土地とは、その土地に建築する建物の建築請負契約が、一定期間内に成立することを条件として売買される土地のことをいいます。建築請負契約成立に向けて設計プランを協議するため、土地購入者が自己の希望する建物の設計協議をするために必要な相当の期間の交渉期間が設定され、その期間内で希望を満たすプランが実現できたかどうかにより結論を出します。なお、この期間は概ね3ヶ月程度とされています。納得のいくプランが出来ず、建築請負契約が成立しない場合、土地売買契約は白紙に戻り、土地契約にかかった代金(土地代金、手付金など)は名目のいかんに関わらず、全て返却されます。

























