NEW新築売戸建住宅広島県廿日市市阿品台4丁目の新築売戸建住宅の詳細情報
この物件は未完成のため、掲載写真(外観、内観、設備等)には、施工例が含まれている場合があります。物件詳細については、掲載の不動産会社宛にお問合せください。
掲載期限まであと13日
物件概要
| 物件名 | 広島県廿日市市阿品台4丁目の新築売戸建住宅 | ||||
|---|---|---|---|---|---|
| 所在地 | 広島県廿日市市阿品台4丁目 | ||||
| 交通 |
JR山陽本線 「阿品」駅 徒歩19分 広島電鉄宮島線 「阿品東」駅 徒歩21分 広島電鉄宮島線 「広電阿品」駅 徒歩24分 | ||||
| 構造および階数 | 木造・2階建 | 建ぺい率・容積率 | 50.00%・80.00% | ||
| 完成予定日 | 2026年02月 | 入居可能予定日 | - | ||
| 土地権利 | 所有権 | ||||
| 駐車場 | 有 | 国土法届出 | - | ||
| 私道負担・道路 | - | 道路付け | 北西 7.0m 公道北東 5.0m 公道 | ||
| 地目 | - | 都市計画 | 市街化区域 | ||
| 取引態様 | 媒介 | 用途地域 | 1種低層 | ||
| 施工会社 | - | ||||
| 建築確認番号 | 第R07SHC119438号 | ||||
| 設備 | 給湯・追焚機能・都市ガス・フローリング・浴室乾燥機・Wクロゼット・シャンプードレッサー・ウォシュレット・システムキッチン・モニタ付インターホン・トイレ2ヶ所・床下収納・複層ガラス・ディンプルキー・上水道・下水道・省エネ給湯器 | ||||
| 備考 | 開放感のある角地♪周辺は落ち着きのある閑静な住宅地!!浴室乾燥機や宅配BOXなど、設備充実のお家。ウォークインクローゼットなど収納もたっぷりの間取りです。〇廿日市市立阿品台東小学校まで 徒歩8分〇廿日市市立阿品台中学校まで 徒歩11分〇阿品台東保育園まで 徒歩8分〇ピュアークックアジナモール店まで 徒歩9分〇きむら内科小児科医院まで 徒歩4分〇いやさか腎クリニックまで 徒歩3分〇阿品台歯科医院まで 徒歩4分〇JR阿品駅まで 徒歩19分・開放感のある角地♪周辺は落ち着きのある閑静な住宅地!!浴室乾燥機や宅配BOXなど、設備充実のお家。ウォークインクローゼットなど収納もたっぷりの間取りです。 | ||||
情報更新日:2025/11/26 次回更新予定日:情報更新日より14日以内
販売概要
| 販売価格 | 3,180万円 お問い合わせはこちら | ||||
|---|---|---|---|---|---|
| 販売戸数/総戸数 | -/- | ||||
| 最多価格帯 | - | ||||
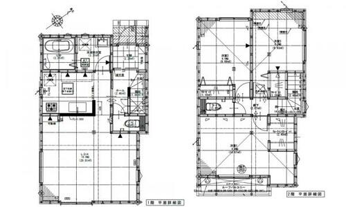
| 間取り | 3LDK | ||||
| 建物面積 | 91.51㎡ | 土地面積 | 117.13㎡ | ||
| その他施設費用、償却費 | - / - | ||||
| その他費用 | - | ||||
会社情報
| お問い合わせ先 |
(株)日東リバティ 0120-082-210(無料通話) 上記の電話番号にお問合せください。(携帯・PHS 可) 【物件番号】1148172811 | ||||
|---|---|---|---|---|---|
| 会社概要 |
(株)日東リバティ[広島県知事免許(8)第7286号] 広島県広島市南区段原日出2丁目2-22 【所属団体】 (公社)全日本不動産協会、中国地区不動産公正取引協議会 | ||||
この物件の地図・周辺環境
このアイコンは物件のおおよその位置を表しており、実際の場所と異なる場合がございます。詳しくは不動産会社に直接ご確認ください。
取り扱い不動産会社
- 電話番号
- 0120-082-210
- 営業時間
- 09:00~21:00
- 定休日
- 水曜日・年末年始・夏季休暇
- 物件番号
- 1148172811
掲載期限まであと13日
阿品駅の口コミ
治安・安全
4.0
コンビニが少ないことや、街灯が暗いところもあるため少し怖いと感じることがあるかも、、(人によっては)
治安・安全
4.0
周辺は家族や高齢者夫婦などが住んでおり、比較的治安のよい地域であり、住みやすい。また、学校も周辺にあるため安心できる。
住宅ローンシミュレーション
住宅ローン設定
物件価格
返済期間
頭金
ボーナス払(年1回)
※
※物件価格の80%以下でお借入れの場合
※50歳以下で一般団信をご選択の場合
※住宅ローン金利優遇割適用後の変動金利(全期間引き下げプラン)
※実際のお借入日の金利により変動します。
※審査の結果によっては保証付金利プランとなる場合があり、この場合は上記とは異なる金利となります。
※別途借入金額の2.20%(税込)の事務手数料が発生します。
ボーナス払 | 35年間返済 | 30年間返済 | 25年間返済 | 20年間返済 | 15年間返済 | 10年間返済 |
|---|---|---|---|---|---|---|
0万円 | -円/月 | -円/月 | -円/月 | -円/月 | -円/月 | -円/月 |
5万円 | -円/月 | -円/月 | -円/月 | -円/月 | -円/月 | -円/月 |
10万円 | -円/月 | -円/月 | -円/月 | -円/月 | -円/月 | -円/月 |
15万円 | -円/月 | -円/月 | -円/月 | -円/月 | -円/月 | -円/月 |
20万円 | -円/月 | -円/月 | -円/月 | -円/月 | -円/月 | -円/月 |
25万円 | -円/月 | -円/月 | -円/月 | -円/月 | -円/月 | -円/月 |
30万円 | -円/月 | -円/月 | -円/月 | -円/月 | -円/月 | -円/月 |
ボーナス払 | 35年間返済 | 30年間返済 | 25年間返済 | 20年間返済 | 15年間返済 | 10年間返済 |
|---|---|---|---|---|---|---|
0万円 | -円/月 | -円/月 | -円/月 | -円/月 | -円/月 | -円/月 |
5万円 | -円/月 | -円/月 | -円/月 | -円/月 | -円/月 | -円/月 |
10万円 | -円/月 | -円/月 | -円/月 | -円/月 | -円/月 | -円/月 |
15万円 | -円/月 | -円/月 | -円/月 | -円/月 | -円/月 | -円/月 |
20万円 | -円/月 | -円/月 | -円/月 | -円/月 | -円/月 | -円/月 |
25万円 | -円/月 | -円/月 | -円/月 | -円/月 | -円/月 | -円/月 |
30万円 | -円/月 | -円/月 | -円/月 | -円/月 | -円/月 | -円/月 |
- ・金利は、今後35年間変動しない仮定のもと元利均等返済方式で計算しております。
- ・実際の金利は、各金融機関のホームページをご参照ください。
- ・ローン契約の際には、手数料や印紙税などの諸費用が別途かかります。
- ・ボーナス支払総額が総支払額の50%を超えている場合、上記の表では「ローン不可」となります。
- ・シミュレーションを利用し、それが原因で利用者が受けたいかなる損害についても当社は一切責任を負いません。あらかじめご了承ください。












