一戸建てあさひが丘7 2380万円の詳細情報
2380万円
月々のローン返済額を試算この物件は未完成のため、掲載写真(外観、内観、設備等)には、施工例が含まれている場合があります。物件詳細については、掲載の不動産会社宛にお問合せください。
■安心のオール電化住宅■耐震等級3■防犯カメラ■4LDK+ワイドバルコニー
物件概要
| 物件名 | あさひが丘7 2380万円 | ||||
|---|---|---|---|---|---|
| 所在地 | 広島県広島市安佐北区あさひが丘7 | ||||
| 交通 |
バス「あさひが丘下」歩4分 | ||||
| 構造および階数 | 木造2階建 | 建ぺい率・容積率 | 50%・100% | ||
| 完成予定日 | 2026年1月 | 入居可能予定日 | 2026年1月予定 | ||
| 土地権利 | 所有権 | ||||
| 駐車場 | - | 国土法届出 | - | ||
| 地目 | - | 道路付け | 無、南東6.1m幅 | ||
| 機構融資 | - | 取引態様 | 仲介 | ||
| 用途地域 | 1種低層 | ||||
| 施工会社 | - | ||||
| 建築確認番号 | 第R07SHC115434号 | ||||
| 設備 | 設計住宅性能評価書 / 建設住宅性能評価書(新築時) / 駐車2台可 / 土地50坪以上 / 省エネ給湯器 / システムキッチン / 浴室乾燥機 / 陽当り良好 / 全居室収納 / 閑静な住宅地 / LDK15畳以上 / 前道6m以上 / 和室 / シャワー付洗面化粧台 / 対面式キッチン / ワイドバルコニー / トイレ2ヶ所 / 2階建 / 温水洗浄便座 / 床下収納 / TVモニタ付インターホン / 通風良好 / IHクッキングヒーター / 小学校 徒歩10分以内 / オール電化 | ||||
| その他制限事項 | - | ||||
| 備考 | 担当者:山本 淳平、設備:公営水道、本下水、オール電化、建築確認番号:第R07SHC115434号、駐車場:カースペース | ||||
情報更新日:2025/11/13 次回更新予定日:情報提供より8日以内
販売概要
| 販売価格 | 2380万円 お問い合わせはこちら | ||||
|---|---|---|---|---|---|
| 販売スケジュール | - | ||||
| 販売戸数/総戸数 | 1戸/- | ||||
| 最多価格帯 | - | ||||
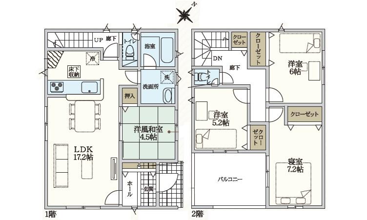
| 間取り | 4LDK | ||||
| 建物面積 | 105.7㎡(31.97坪)(登記) | 土地面積 | 217.19㎡(65.69坪)(登記) | ||
| その他施設費用、償却費 | - | ||||
| その他費用 | - | ||||
| 登録受付 | - | 抽選日 | - | ||
| モデルルーム情報 | (事前に必ずお問い合わせください)◆大好評!住宅購入はじめて相談会随時開催◆(※事前に必ずお問い合わせください) 何からはじめれば良いか分からない住宅購入、、、中々、お家や土地が見つからない、、、住宅ローン選びって難しい、、、そんなお悩みをスッキリ解決させて頂いております♪ツアー感覚でまずはお家を見学してみましょう!見てみないと分からない事がきっとありますよ^^まずはお気軽にご相談下さいませ!! | ||||
| 取引条件有効期限 | - | ||||
会社情報
| お問い合わせ先 |
SUMiTAS大町店(株)ケイアイ不動産販売 082-836-3730 上記の電話番号にお問合せください。(携帯・PHS 可) 【物件番号】78682668 | ||||
|---|---|---|---|---|---|
| 会社概要 |
SUMiTAS大町店(株)ケイアイ不動産販売[国土交通大臣(2)第009597号] 広島県広島市安佐南区大町東1-11-7-103 【所属団体】 国土交通大臣(2)第009597号(公社)広島県宅地建物取引業協会会員 中国地区不動産公正取引協議会加盟 | ||||
取り扱い不動産会社
- 電話番号
- 082-836-3730
- 受付
- 営業時間:9:30~19:00 / 定休日:年中無休※GW・盆・正月を除く、GW・お盆・正月
- 物件番号
- 78682668
(株)日東リバティ
広島市安佐北区の口コミ
お買い物・飲食
3.0
近くにスーパーやドラッグストアがあり買い物には便利です。 飲食店の数は多くないですがおいしい店の割合は多くよく利用していました。
お買い物・飲食
4.0
周辺に日用品や食品が買えるスーパーなどは多いですが、車は必須かと思います。飲食店は少ないですが、この地域でとても人気なハンバーグ屋?ステーキ屋?さんがあります!
住宅ローンシミュレーション
住宅ローン設定
物件価格
返済期間
頭金
ボーナス払(年1回)
※
※物件価格の80%以下でお借入れの場合
※50歳以下で一般団信をご選択の場合
※住宅ローン金利優遇割適用後の変動金利(全期間引き下げプラン)
※実際のお借入日の金利により変動します。
※審査の結果によっては保証付金利プランとなる場合があり、この場合は上記とは異なる金利となります。
※別途借入金額の2.20%(税込)の事務手数料が発生します。
ボーナス払 | 35年間返済 | 30年間返済 | 25年間返済 | 20年間返済 | 15年間返済 | 10年間返済 |
|---|---|---|---|---|---|---|
0万円 | -円/月 | -円/月 | -円/月 | -円/月 | -円/月 | -円/月 |
5万円 | -円/月 | -円/月 | -円/月 | -円/月 | -円/月 | -円/月 |
10万円 | -円/月 | -円/月 | -円/月 | -円/月 | -円/月 | -円/月 |
15万円 | -円/月 | -円/月 | -円/月 | -円/月 | -円/月 | -円/月 |
20万円 | -円/月 | -円/月 | -円/月 | -円/月 | -円/月 | -円/月 |
25万円 | -円/月 | -円/月 | -円/月 | -円/月 | -円/月 | -円/月 |
30万円 | -円/月 | -円/月 | -円/月 | -円/月 | -円/月 | -円/月 |
ボーナス払 | 35年間返済 | 30年間返済 | 25年間返済 | 20年間返済 | 15年間返済 | 10年間返済 |
|---|---|---|---|---|---|---|
0万円 | -円/月 | -円/月 | -円/月 | -円/月 | -円/月 | -円/月 |
5万円 | -円/月 | -円/月 | -円/月 | -円/月 | -円/月 | -円/月 |
10万円 | -円/月 | -円/月 | -円/月 | -円/月 | -円/月 | -円/月 |
15万円 | -円/月 | -円/月 | -円/月 | -円/月 | -円/月 | -円/月 |
20万円 | -円/月 | -円/月 | -円/月 | -円/月 | -円/月 | -円/月 |
25万円 | -円/月 | -円/月 | -円/月 | -円/月 | -円/月 | -円/月 |
30万円 | -円/月 | -円/月 | -円/月 | -円/月 | -円/月 | -円/月 |
- ・金利は、今後35年間変動しない仮定のもと元利均等返済方式で計算しております。
- ・実際の金利は、各金融機関のホームページをご参照ください。
- ・ローン契約の際には、手数料や印紙税などの諸費用が別途かかります。
- ・ボーナス支払総額が総支払額の50%を超えている場合、上記の表では「ローン不可」となります。
- ・シミュレーションを利用し、それが原因で利用者が受けたいかなる損害についても当社は一切責任を負いません。あらかじめご了承ください。
※価格は物件の代金総額を表示しており、消費税が課税される場合は税込み価格です。 (1000円未満は切り上げ。)
※写真に写っている、またはパース(絵)や間取り図に描かれている家具や車などは、特にコメントがない場合、販売価格に含まれません。
※敷地権利が定期借地権のものは価格に権利金を含みます。
※建築条件付き土地価格には、建物価格は含まれません。
※物件情報は、原則として情報提供日の2日前に最終確認した情報です。
※完成予想図はいずれも外構、植栽、外観等実際のものとは多少異なることがあります。
※モデルルーム・モデルハウス・展示場・ショールームの画像の場合、今回販売の物件と異なる場合があります。
※CG合成の画像の場合、実際とは多少異なる場合があります。
※物件特徴:販売戸数が複数の物件は、全ての住戸に該当しない項目もあります。
※0800で始まる電話番号は通話料無料です。また、サービス検証のため当該番号の利用履歴を個人が特定できない範囲で取得しています。予めご了承ください。
※完成後1年以上を経過した未入居物件が掲載される場合があります。ご了承ください。
※新着:物件情報が「SUUMO」に掲載された日から1週間表示されます。
※価格更新:物件価格が変更された日から1週間表示されます。
※販売予定物件はすべて、販売開始するまで契約または予約の申込みはできません。
※購入の前には物件内容や契約条件についてご自身で十分な確認をしていただくようにお願いいたします。
※建築条件土地の情報内に掲載されている、建物プラン例は、土地購入者の設計プランの参考の一例であって、プランの採用可否は任意です。
※土地(建築条件なし)で「建物プラン例」が表記してある時、そのプラン例は特定の建築請負会社によるもので、当該建築請負会社以外で建てた場合、同様のものが同価格で建てられるとは限りません。また建築請負会社を特定するものではありません。
※建築条件付き土地とは、その土地に建築する建物の建築請負契約が、一定期間内に成立することを条件として売買される土地のことをいいます。建築請負契約成立に向けて設計プランを協議するため、土地購入者が自己の希望する建物の設計協議をするために必要な相当の期間の交渉期間が設定され、その期間内で希望を満たすプランが実現できたかどうかにより結論を出します。なお、この期間は概ね3ヶ月程度とされています。納得のいくプランが出来ず、建築請負契約が成立しない場合、土地売買契約は白紙に戻り、土地契約にかかった代金(土地代金、手付金など)は名目のいかんに関わらず、全て返却されます。















