NEW新築売戸建住宅広島県広島市安佐南区八木8丁目の新築売戸建住宅の詳細情報
掲載期限まであと13日
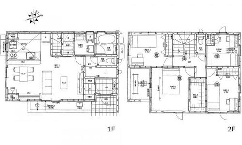
間取り・区画図(1枚)
物件概要
| 物件名 | 広島県広島市安佐南区八木8丁目の新築売戸建住宅 | ||||
|---|---|---|---|---|---|
| 所在地 | 広島県広島市安佐南区八木8丁目 | ||||
| 交通 |
可部線 「上八木」駅 徒歩8分 可部線 「中島」駅 徒歩14分 可部線 「梅林」駅 徒歩26分 | ||||
| 構造および階数 | 木造・2階建 | 建ぺい率・容積率 | 60.00%・200.00% | ||
| 完成予定日 | 2024年12月 | 入居可能予定日 | - | ||
| 土地権利 | 所有権 | ||||
| 駐車場 | - | 国土法届出 | - | ||
| 私道負担・道路 | - | 道路付け | - | ||
| 地目 | - | 都市計画 | 市街化区域 | ||
| 取引態様 | 媒介 | 用途地域 | 1種住居 | ||
| 施工会社 | - | ||||
| 建築確認番号 | R06認広建セ00775 | ||||
| 設備 | 給湯・追焚機能・プロパンガス・フローリング・Wクロゼット・シャンプードレッサー・システムキッチン・モニタ付インターホン・床下収納・IHクッキングヒータ・複層ガラス・ディンプルキー・上水道・下水道・省エネ給湯器 | ||||
| 備考 | 小学校・幼稚園近く、子育て家族にもぴったりの住環境♪安心安全なオール電化住宅です。〇広島市立八木小学校まで 徒歩10分〇広島市立城山北中学校まで 徒歩21分〇広島市立八木幼稚園まで 徒歩10分〇セブンイレブン 広島八木店まで 徒歩6分〇JR上八木駅まで 徒歩8分・小学校・幼稚園近く、子育て家族にもぴったりの住環境♪安心安全なオール電化住宅です。 | ||||
情報更新日:2025/11/27 次回更新予定日:情報更新日より14日以内
販売概要
| 販売価格 | 3,190万円 お問い合わせはこちら | ||||
|---|---|---|---|---|---|
| 販売戸数/総戸数 | -/- | ||||
| 最多価格帯 | - | ||||
| 間取り | 4LDK | ||||
| 建物面積 | 100.19㎡ | 土地面積 | 113.13㎡ | ||
| その他施設費用、償却費 | - / - | ||||
| その他費用 | - | ||||
会社情報
| お問い合わせ先 |
(株)日東リバティ 0120-082-210(無料通話) 上記の電話番号にお問合せください。(携帯・PHS 可) 【物件番号】1148179211 | ||||
|---|---|---|---|---|---|
| 会社概要 |
(株)日東リバティ[広島県知事免許(8)第7286号] 広島県広島市南区段原日出2丁目2-22 【所属団体】 (公社)全日本不動産協会、中国地区不動産公正取引協議会 | ||||
この物件の地図・周辺環境
このアイコンは物件のおおよその位置を表しており、実際の場所と異なる場合がございます。詳しくは不動産会社に直接ご確認ください。
取り扱い不動産会社
- 電話番号
- 0120-082-210
- 営業時間
- 09:00~21:00
- 定休日
- 水曜日・年末年始・夏季休暇
- 物件番号
- 1148179211
掲載期限まであと13日
上八木駅の口コミ
治安・安全
2.0
八木は治安があまり良くないイメージ。遅くまで空いている飲み屋もあり、夜は街頭が少ないので女性の一人歩きはおすすめしません。
子育て・病院
2.0
保育園の選択肢は少ないです。 小児科も近くにはありません。 また、この辺りは車のスピードが速く、荒いです。(煽り運転もよく見かけます、、) 子供を歩かせるのは少しヒヤヒヤします。
住宅ローンシミュレーション
住宅ローン設定
物件価格
返済期間
頭金
ボーナス払(年1回)
※
※物件価格の80%以下でお借入れの場合
※50歳以下で一般団信をご選択の場合
※住宅ローン金利優遇割適用後の変動金利(全期間引き下げプラン)
※実際のお借入日の金利により変動します。
※審査の結果によっては保証付金利プランとなる場合があり、この場合は上記とは異なる金利となります。
※別途借入金額の2.20%(税込)の事務手数料が発生します。
ボーナス払 | 35年間返済 | 30年間返済 | 25年間返済 | 20年間返済 | 15年間返済 | 10年間返済 |
|---|---|---|---|---|---|---|
0万円 | -円/月 | -円/月 | -円/月 | -円/月 | -円/月 | -円/月 |
5万円 | -円/月 | -円/月 | -円/月 | -円/月 | -円/月 | -円/月 |
10万円 | -円/月 | -円/月 | -円/月 | -円/月 | -円/月 | -円/月 |
15万円 | -円/月 | -円/月 | -円/月 | -円/月 | -円/月 | -円/月 |
20万円 | -円/月 | -円/月 | -円/月 | -円/月 | -円/月 | -円/月 |
25万円 | -円/月 | -円/月 | -円/月 | -円/月 | -円/月 | -円/月 |
30万円 | -円/月 | -円/月 | -円/月 | -円/月 | -円/月 | -円/月 |
ボーナス払 | 35年間返済 | 30年間返済 | 25年間返済 | 20年間返済 | 15年間返済 | 10年間返済 |
|---|---|---|---|---|---|---|
0万円 | -円/月 | -円/月 | -円/月 | -円/月 | -円/月 | -円/月 |
5万円 | -円/月 | -円/月 | -円/月 | -円/月 | -円/月 | -円/月 |
10万円 | -円/月 | -円/月 | -円/月 | -円/月 | -円/月 | -円/月 |
15万円 | -円/月 | -円/月 | -円/月 | -円/月 | -円/月 | -円/月 |
20万円 | -円/月 | -円/月 | -円/月 | -円/月 | -円/月 | -円/月 |
25万円 | -円/月 | -円/月 | -円/月 | -円/月 | -円/月 | -円/月 |
30万円 | -円/月 | -円/月 | -円/月 | -円/月 | -円/月 | -円/月 |
- ・金利は、今後35年間変動しない仮定のもと元利均等返済方式で計算しております。
- ・実際の金利は、各金融機関のホームページをご参照ください。
- ・ローン契約の際には、手数料や印紙税などの諸費用が別途かかります。
- ・ボーナス支払総額が総支払額の50%を超えている場合、上記の表では「ローン不可」となります。
- ・シミュレーションを利用し、それが原因で利用者が受けたいかなる損害についても当社は一切責任を負いません。あらかじめご了承ください。





