一戸建てコモンガーデンこころM街区 分譲住宅【積水ハウス】の詳細情報
7204万円~8100万円
月々のローン返済額を試算【積水ハウス】路線バスで都心直結/タウン内に大型商業施設や利便施設が充実
外観・室内・設備(19枚)

品確法の定める「住宅性能表示制度」にトップレベルで対応
住宅の性能が客観的に評価される性能表示制度において、積水ハウスは、構造の安定(耐震・耐風性)、劣化の軽減(耐久性)、空気環境(健康・化学物質対策)、温熱環境(断熱性・省エネルギー性)の4項目で標準仕様で最上等級に対応しています。また、その他の項目についてもお客様のご要望にトップレベルでお応えできる体制を整備しています。

家族と財産を守る安心の「防犯対策」
積水ハウスは、標準仕様で玄関に「1アクション2ロック※1」を採用。窓も2ロックとし、ハンマーで叩いても貫通しにくい「防犯防災ガラス(合わせ複層)※2」を使用しています。様々な防犯アイテムをご用意し、ご家族の要望に合わせた防犯対策を提案しています。※1主錠をロックすると補助錠も連動してロックします。※2一部の窓仕様を除きます。

新しい暮らし方を、もっと気持ち良く、きれいな空気の仕組み
暮らしのシーンに合わせて、家じゅうの空気をコントロール。積水ハウスの次世代室内環境システム「スマート イクス」は、ゾーニング・換気・空気清浄で、住まいの空気をきれいに保ちます。

2030年の暮らしを先取りする家「グリーンファースト ゼロ」
「省エネ」と「創エネ」により、エネルギー収支「ゼロ」へ。これまで以上に快適な生活を送りながら、太陽光発電、燃料電池による先進の創エネ+省エネ設備でエネルギー収支「ゼロ」を目指す積水ハウスの「グリーンファーストゼロ」。また、HEMSを使って家庭内で使用するエネルギーを把握することで、エコライフがさらに快適になります。

子どもを基準に考えた空気環境配慮仕様「エアキス」
「化学物質の抑制」と「換気・空気清浄」の2つの取り組みにより、快適な空気環境を実現する「エアキス」。影響を受けやすい子どもを基準に化学物質をできるだけ発生させない建材や接着剤を使用。また熱交換と外気清浄機能を備えた「アメニティー換気システムⅣ」を用意。5つの化学物質について厚生労働省指針値の1/2以下を目指しています。

快適な暮らしを見守り続ける「メンテナンスサポート」
メンテナンスプログラムをもとに、計画的なメンテナンスをサポート。全国のカスタマーズセンターにお客様の住まいのデータを永久保存し、お引き渡し後も定期的にサポート。家が大きな問題を抱える前にメンテナンスし、その履歴情報を「いえろぐ」として保存することで、住宅の資産価値や快適さを長く保つように配慮しています。

安全性と優れた設計自由度「ダイナミックフレーム・システム」
「ダイナミックフレーム・システム」の最大のメリットは優れた安全性と圧倒的な設計の自由度を高いレベルで両立していることです。さらに天井高2700mm、柱なしで最大7mというワイドスパンにより、広々とした伸びやかで心地よい次世代スローリビングを提案。これまでにない開放感あふれるダイナミックな空間づくりが実現できます。

積水ハウスオリジナルの高級外壁材「ダインコンクリート」
日本の気候では、外壁は雨や湿気に対する耐久性が重要です。「ダインコンクリート」は、水が浸水しにくい独立気泡で耐水性に優れ、長期にわたる耐久性を実現します。製品1枚ごとに成型するキャスティング製法によって、既存のコンクリートでは難しかった温もりのある表情や緻密なテクスチャーなど、美しいデザイン性も備えています。
周辺環境・アクセス(9枚)
その他(6枚)

[1-28号地]個性豊かなインテリア。丁寧な暮らしを奏でる分譲住宅。
間取図1F〇自転車も仕舞える広々とした玄関。大容量の土間収納も採用しました。〇開放感のあるリビング・ダイニング。ライフスタイルに合わせて自由に使える空間。

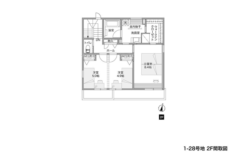
[1-28号地]個性豊かなインテリア。丁寧な暮らしを奏でる分譲住宅。
間取図2F〇隣接する洗面室とウォークインクローゼットは、機能的な回遊動線に。〇主寝室にワイドなカウンターを設置。テレワークや趣味のスペースとして重宝します。
物件概要
| 物件名 | コモンガーデンこころM街区 分譲住宅【積水ハウス】 | ||||
|---|---|---|---|---|---|
| 所在地 | 広島県広島市佐伯区石内北2-5006番28(地番)他 | ||||
| 交通 |
JR山陽本線「横川」バス24分こころ北公園歩8分 広島高速交通アストラムライン「大塚」バス12分こころ北公園歩8分 | ||||
| 構造および階数 | 木造2階建(軸組工法)(4戸)、軽量鉄骨2階建(2戸) | 建ぺい率・容積率 | 建ぺい率:50%/容積率:100% | ||
| 完成予定日 | 2025年8月 | 入居可能予定日 | 即引渡可 | ||
| 土地権利 | 所有権 | ||||
| 駐車場 | - | 国土法届出 | - | ||
| 地目 | - | 道路付け | 道路幅:6m、アスファルト舗装、私道負担なし | ||
| 機構融資 | - | 取引態様 | 建物売主 | ||
| 用途地域 | 1種低層、2種低層 | ||||
| 施工会社 | 積水ハウス株式会社(各建物施工) | ||||
| 建築確認番号 | - | ||||
| 設備 | 浴室に窓 / 浴室1坪以上 / 浴室乾燥機 / IHクッキングヒーター / EV車充電設備 / 小学校 徒歩10分以内 / スマートキー / ウッドデッキ / テラス / 建設住宅性能評価書(新築時) / 太陽光発電システム / 床暖房 / シャワー付洗面化粧台 / 閑静な住宅地 / 緑豊かな住宅地 / 土地50坪以上 / 天井高2.5m以上 / 長期優良住宅認定通知書 / 高気密高断熱住宅 / バリアフリー / 設計住宅性能評価書 / 省エネルギー対策 / 開発分譲地内 / 大型タウン内 / 南向き / 前道6m以上 / 南側道路面す / 駐車2台可 / 食器洗乾燥機 / 対面式キッチン / システムキッチン / LDK15畳以上 / LDK18畳以上 / 温水洗浄便座 / トイレ2ヶ所 / ウォークインクローゼット / 全居室フローリング / 複層ガラス / 即引渡可 / 高速ネット対応 / TVモニタ付インターホン / 全居室収納 / 周辺交通量少なめ / 通風良好 / フラット35Sに対応 / 都市ガス / 山が見える / 整形地 / 高機能トイレ / 省エネ給湯器 / 2階建 | ||||
| その他制限事項 | - | ||||
| 備考 | 設備:○設備/水道:広島市公営水道、電気:中国電力、ガス:都市ガス(広島ガス)、汚水:公共下水、雨水排水:道路側溝(L型側溝)、CATV:ちゅぴCOM、※良好なまちなみの形成を図るため、「まちなみガイドライン」を作成しています。※外構・植栽・消費税は販売価格に含まれます。※水道分担金・建築確認申請・住宅性能評価申請等許認可申請費用は販売価格に含まれます。※掲載の写真・間取り・外構図の家具・備品・車はレイアウトの参考で販売価格に含まれません。 ※間取り・外構図は設計図書を基に作成したもので、一部異なる場合がございます。 ※間取図の植栽は予定種のおよそ5年後のイメージで木々の成長度合いにより形状は異なります。○売買代金以外に授受される金銭/CATV施設負担金:55000円(税込)、CATV建物内引込費用27500円(税込)、CATV視聴料1区画あたり10560円/年(税込) | ||||
情報更新日:2025/11/14 次回更新予定日:情報提供より8日以内
販売概要
| 販売価格 | 7204万円~8100万円 お問い合わせはこちら | ||||
|---|---|---|---|---|---|
| 販売スケジュール | 先着順受付中 | ||||
| 販売戸数/総戸数 | 6戸/3000戸 | ||||
| 最多価格帯 | - | ||||
| 間取り | 2LDK | ||||
| 建物面積 | 110.5㎡~118㎡(33.42坪~35.69坪) | 土地面積 | 175.67㎡~192.7㎡(53.13坪~58.29坪) | ||
| その他施設費用、償却費 | - | ||||
| その他費用 | - | ||||
| 登録受付 | - | 抽選日 | - | ||
| モデルルーム情報 | 現地案内会感性にフィットする住まいの見学会を開催中!■ご見学時間:10時~17時■現地にはスタッフが常駐しておりません。ご予約のうえご来場をお願いいたします。■WEBご予約は、下記「来場予約」ボタンよりお進みください。■電話のご予約は、積水ハウス(株)広島支店0120-610-870(営業時間:9時~18時/定休日:火曜・水曜日・祝日)■ご来場予約プレゼント:QUOカード2000円分プレゼント※初めて積水ハウスにご来場のかたに限ります。※当社の他のキャンペーンとの併用はできませんのでご了承ください。 | ||||
| 取引条件有効期限 | 2025年11月20日 | ||||
会社情報
| お問い合わせ先 |
積水ハウス 株式会社 082-871-8011 上記の電話番号にお問合せください。(携帯・PHS 可) 【物件番号】73646324 | ||||
|---|---|---|---|---|---|
| 会社概要 |
積水ハウス 株式会社 - | ||||
この物件の地図・周辺環境
このアイコンは物件のおおよその位置を表しており、実際の場所と異なる場合がございます。詳しくは不動産会社に直接ご確認ください。
※地図上に表示される物件の位置は付近住所に所在することを表すものであり、実際の物件所在地とは異なる場合がございます。
※地図の更新タイミングの関係で、物件情報が実際のものとは異なる場合や最新情報に更新されていない場合がございます。
※以下の南西諸島及び離島においては、表示される物件の位置が実際のものとは数百メートル程度ずれる場合がございます。
東京都:硫黄島・青ヶ島、沖縄県: 北大東島・南大東島・多良間島・水納島・与那国島・宮古諸島・石垣島・竹富島
取り扱い不動産会社
- 電話番号
- 082-871-8011
- 受付
- 営業時間:9:00~18:00/定休日:火曜日、水曜日及び祝日
- 物件番号
- 73646324
横川駅の口コミ
お買い物・飲食
4.0
スーパーは横川駅の隣にフレスタがあるのでよく利用していました。横川駅横と横川商店街の中にウォンツもあります。飲食店は居酒屋が多いですが沢山あります。
お買い物・飲食
5.0
飲食店は周りに飲み屋が多数あるため困ることは少ないと思いますが、逆に定食のような食べ物を食べれるところが少ないです。
住宅ローンシミュレーション
住宅ローン設定
物件価格
返済期間
頭金
ボーナス払(年1回)
※
※物件価格の80%以下でお借入れの場合
※50歳以下で一般団信をご選択の場合
※住宅ローン金利優遇割適用後の変動金利(全期間引き下げプラン)
※実際のお借入日の金利により変動します。
※審査の結果によっては保証付金利プランとなる場合があり、この場合は上記とは異なる金利となります。
※別途借入金額の2.20%(税込)の事務手数料が発生します。
ボーナス払 | 35年間返済 | 30年間返済 | 25年間返済 | 20年間返済 | 15年間返済 | 10年間返済 |
|---|---|---|---|---|---|---|
0万円 | -円/月 | -円/月 | -円/月 | -円/月 | -円/月 | -円/月 |
5万円 | -円/月 | -円/月 | -円/月 | -円/月 | -円/月 | -円/月 |
10万円 | -円/月 | -円/月 | -円/月 | -円/月 | -円/月 | -円/月 |
15万円 | -円/月 | -円/月 | -円/月 | -円/月 | -円/月 | -円/月 |
20万円 | -円/月 | -円/月 | -円/月 | -円/月 | -円/月 | -円/月 |
25万円 | -円/月 | -円/月 | -円/月 | -円/月 | -円/月 | -円/月 |
30万円 | -円/月 | -円/月 | -円/月 | -円/月 | -円/月 | -円/月 |
ボーナス払 | 35年間返済 | 30年間返済 | 25年間返済 | 20年間返済 | 15年間返済 | 10年間返済 |
|---|---|---|---|---|---|---|
0万円 | -円/月 | -円/月 | -円/月 | -円/月 | -円/月 | -円/月 |
5万円 | -円/月 | -円/月 | -円/月 | -円/月 | -円/月 | -円/月 |
10万円 | -円/月 | -円/月 | -円/月 | -円/月 | -円/月 | -円/月 |
15万円 | -円/月 | -円/月 | -円/月 | -円/月 | -円/月 | -円/月 |
20万円 | -円/月 | -円/月 | -円/月 | -円/月 | -円/月 | -円/月 |
25万円 | -円/月 | -円/月 | -円/月 | -円/月 | -円/月 | -円/月 |
30万円 | -円/月 | -円/月 | -円/月 | -円/月 | -円/月 | -円/月 |
- ・金利は、今後35年間変動しない仮定のもと元利均等返済方式で計算しております。
- ・実際の金利は、各金融機関のホームページをご参照ください。
- ・ローン契約の際には、手数料や印紙税などの諸費用が別途かかります。
- ・ボーナス支払総額が総支払額の50%を超えている場合、上記の表では「ローン不可」となります。
- ・シミュレーションを利用し、それが原因で利用者が受けたいかなる損害についても当社は一切責任を負いません。あらかじめご了承ください。
※価格は物件の代金総額を表示しており、消費税が課税される場合は税込み価格です。 (1000円未満は切り上げ。)
※写真に写っている、またはパース(絵)や間取り図に描かれている家具や車などは、特にコメントがない場合、販売価格に含まれません。
※敷地権利が定期借地権のものは価格に権利金を含みます。
※建築条件付き土地価格には、建物価格は含まれません。
※物件情報は、原則として情報提供日の2日前に最終確認した情報です。
※完成予想図はいずれも外構、植栽、外観等実際のものとは多少異なることがあります。
※モデルルーム・モデルハウス・展示場・ショールームの画像の場合、今回販売の物件と異なる場合があります。
※CG合成の画像の場合、実際とは多少異なる場合があります。
※物件特徴:販売戸数が複数の物件は、全ての住戸に該当しない項目もあります。
※0800で始まる電話番号は通話料無料です。また、サービス検証のため当該番号の利用履歴を個人が特定できない範囲で取得しています。予めご了承ください。
※完成後1年以上を経過した未入居物件が掲載される場合があります。ご了承ください。
※新着:物件情報が「SUUMO」に掲載された日から1週間表示されます。
※価格更新:物件価格が変更された日から1週間表示されます。
※販売予定物件はすべて、販売開始するまで契約または予約の申込みはできません。
※購入の前には物件内容や契約条件についてご自身で十分な確認をしていただくようにお願いいたします。
※建築条件土地の情報内に掲載されている、建物プラン例は、土地購入者の設計プランの参考の一例であって、プランの採用可否は任意です。
※土地(建築条件なし)で「建物プラン例」が表記してある時、そのプラン例は特定の建築請負会社によるもので、当該建築請負会社以外で建てた場合、同様のものが同価格で建てられるとは限りません。また建築請負会社を特定するものではありません。
※建築条件付き土地とは、その土地に建築する建物の建築請負契約が、一定期間内に成立することを条件として売買される土地のことをいいます。建築請負契約成立に向けて設計プランを協議するため、土地購入者が自己の希望する建物の設計協議をするために必要な相当の期間の交渉期間が設定され、その期間内で希望を満たすプランが実現できたかどうかにより結論を出します。なお、この期間は概ね3ヶ月程度とされています。納得のいくプランが出来ず、建築請負契約が成立しない場合、土地売買契約は白紙に戻り、土地契約にかかった代金(土地代金、手付金など)は名目のいかんに関わらず、全て返却されます。

























