NEW一戸建てトータテハウジング セントラルシティこころ第7期分譲の詳細情報
4405万円~4671万円
月々のローン返済額を試算この物件は未完成のため、掲載写真(外観、内観、設備等)には、施工例が含まれている場合があります。物件詳細については、掲載の不動産会社宛にお問合せください。
2026年完成予定のセントラルシティこころ第7期分譲を先行公開!
外観・室内・設備(19枚)

太陽発電搭載でゼロエネ住宅へ
本物件は、太陽光発電システムを搭載しており、自家発電で電気をまかなう事が出来るので、光熱費がお得になります。費用をを抑えられる分、ご家族の旅行やお子様の学費にすることができます。

ポケットキー(玄関ドア)
リモコンキーを持っていれば、ドアハンドルのボタンを押すだけで施解錠でき、さらにタグキーがカギになるので、毎日の出入りがもっと快適になります。そして、キーとして登録したスマートフォンを所持していれば、アプリ上での操作でリモコン操作のように施解錠できます。
物件概要
| 物件名 | トータテハウジング セントラルシティこころ第7期分譲 | ||||
|---|---|---|---|---|---|
| 所在地 | 広島県広島市佐伯区石内北3-5011-22他 | ||||
| 交通 |
広電バス「石内北小学校前」歩3分 | ||||
| 構造および階数 | 木造2階建て | 建ぺい率・容積率 | 建ぺい率:50%、容積率:100% | ||
| 完成予定日 | 2026年1月予定 | 入居可能予定日 | 相談 | ||
| 土地権利 | 所有権 | ||||
| 駐車場 | - | 国土法届出 | - | ||
| 地目 | 宅地 | 道路付け | 道路幅:6m、アスファルト舗装 | ||
| 機構融資 | - | 取引態様 | 売主 | ||
| 用途地域 | 1種低層 | ||||
| 施工会社 | 株式会社トータテハウジング | ||||
| 建築確認番号 | 第25WHEC確建広00541号他 | ||||
| 設備 | 長期優良住宅認定通知書 / 太陽光発電システム / 地盤調査済 / 駐車3台以上可 / LDK20畳以上 / 土地50坪以上 / 省エネ給湯器 / 山が見える / 南向き / システムキッチン / 浴室乾燥機 / 陽当り良好 / 全居室収納 / 南側道路面す / 閑静な住宅地 / 前道6m以上 / 和室 / 整形地 / 対面式キッチン / バリアフリー / トイレ2ヶ所 / 浴室1坪以上 / 2階建 / 南面バルコニー / 複層ガラス / 南庭 / 床下収納 / TVモニタ付インターホン / 緑豊かな住宅地 / 通風良好 / 全居室フローリング / ウッドデッキ / パントリー(食器・食品の収納庫) / ウォークインクローゼット / IHクッキングヒーター / リビング階段 / 全居室複層ガラスか複層サッシ / 都市ガス / シューズインクローク / 高台に立地 / 小学校 徒歩10分以内 / 開発分譲地内 / 区画整理地内 / 食器洗乾燥機 / 周辺交通量少なめ / 整備された歩道 / オール電化 / スマートキー / 高機能トイレ | ||||
| その他制限事項 | 景観法による規制有、宅地造成工事規制区域、都市再生特別地区、高さ最高限度有、敷地面積最低限度有、壁面後退有、建築協定有 | ||||
| 備考 | 景観法による規制有、宅地造成工事規制区域、都市再生特別地区、高さ最高限度有、敷地面積最低限度有、壁面後退有、建築協定有 / 設備:中国電力、公営水道、公共下水、都市ガス、建築確認番号:第25WHEC確建広00541号他、2026年1月完成:I7-8・I7-9・I7-11、2026年2月予定:I5-3、I5-4 | ||||
情報更新日:2025/11/14 次回更新予定日:情報提供より8日以内
販売概要
| 販売価格 | 4405万円~4671万円 お問い合わせはこちら | ||||
|---|---|---|---|---|---|
| 販売スケジュール | - | ||||
| 販売戸数/総戸数 | 5戸/5戸 | ||||
| 最多価格帯 | - | ||||
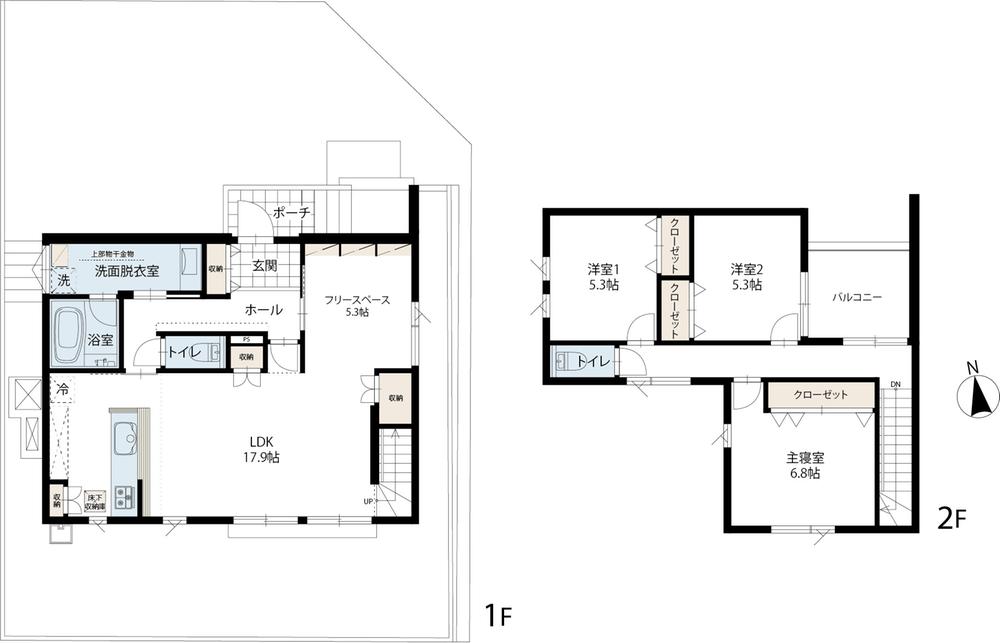
| 間取り | 2LDK+2S(納戸)~4LDK+S(納戸) | ||||
| 建物面積 | 108.06㎡~112.66㎡ | 土地面積 | 168.06㎡~177.91㎡ | ||
| その他施設費用、償却費 | - | ||||
| その他費用 | - | ||||
| 登録受付 | - | 抽選日 | - | ||
| モデルルーム情報 | 現地見学会(事前に必ずお問い合わせください)日程/公開中時間/10:00~17:00◇◆現地にて分譲型モデルハウス見学会開催中◆◇資料だけではわからない実際の物件を、現地で体感してみませんか?【 見学の流れ 】こころセンターハウスにて、物件の説明を簡単に行った後モデルハウスをご案内させて頂きます。※見学をご希望の方は事前予約いただきますとご案内がスムーズです。【 なんでもご相談ください 】・マイホームが欲しいけれど何から始めて良いのかわからない。・住宅ローンが借りられるか心配。・住宅性能について詳しく知りたい。・とりあえずお家を見てみたい。その他、物件に関係することもしないことも、まずはお気軽にご相談ください。【 見学時間の目安 】・現地、モデルハウスご見学 (約30分~)・ご来店、お家探しのご相談 (約30分~)・資金計画、ローンのご相談 (約30分~)貴重なお時間の中で、ご希望の情報をご案内します。お客様のご都合に合わせて「知りたい情報だけ」という短時間のご案内も可能です。【 無料駐車場完備 】こころセンターハウス・分譲地内に駐車場完備しています。平日(水・木曜日を除く)もご見学が可能です。ご家族皆様でお気軽にお越しくださいませ。 | ||||
| 取引条件有効期限 | 2025年12月31日 | ||||
会社情報
| お問い合わせ先 |
(株)トータテハウジング 082-247-3655 上記の電話番号にお問合せください。(携帯・PHS 可) 【物件番号】78801066 | ||||
|---|---|---|---|---|---|
| 会社概要 |
(株)トータテハウジング[広島県知事(12)第004978号] - | ||||
取り扱い不動産会社
- 電話番号
- 082-247-3655
- 物件番号
- 78801066
広島市佐伯区の口コミ
お買い物・飲食
5.0
食品を買う店がたくさんあって、楽しい。夜遅くまでやっている店もあるのて助かる。飲食店も、困らない程度にある。
お買い物・飲食
5.0
食品を買う店はたくさんあり、困らない。ドラッグストアや、日用雑貨を買う店が近くにはない。飲食店は、たくさんあるわけではないが、困らない。
住宅ローンシミュレーション
住宅ローン設定
物件価格
返済期間
頭金
ボーナス払(年1回)
※
※物件価格の80%以下でお借入れの場合
※50歳以下で一般団信をご選択の場合
※住宅ローン金利優遇割適用後の変動金利(全期間引き下げプラン)
※実際のお借入日の金利により変動します。
※審査の結果によっては保証付金利プランとなる場合があり、この場合は上記とは異なる金利となります。
※別途借入金額の2.20%(税込)の事務手数料が発生します。
ボーナス払 | 35年間返済 | 30年間返済 | 25年間返済 | 20年間返済 | 15年間返済 | 10年間返済 |
|---|---|---|---|---|---|---|
0万円 | -円/月 | -円/月 | -円/月 | -円/月 | -円/月 | -円/月 |
5万円 | -円/月 | -円/月 | -円/月 | -円/月 | -円/月 | -円/月 |
10万円 | -円/月 | -円/月 | -円/月 | -円/月 | -円/月 | -円/月 |
15万円 | -円/月 | -円/月 | -円/月 | -円/月 | -円/月 | -円/月 |
20万円 | -円/月 | -円/月 | -円/月 | -円/月 | -円/月 | -円/月 |
25万円 | -円/月 | -円/月 | -円/月 | -円/月 | -円/月 | -円/月 |
30万円 | -円/月 | -円/月 | -円/月 | -円/月 | -円/月 | -円/月 |
ボーナス払 | 35年間返済 | 30年間返済 | 25年間返済 | 20年間返済 | 15年間返済 | 10年間返済 |
|---|---|---|---|---|---|---|
0万円 | -円/月 | -円/月 | -円/月 | -円/月 | -円/月 | -円/月 |
5万円 | -円/月 | -円/月 | -円/月 | -円/月 | -円/月 | -円/月 |
10万円 | -円/月 | -円/月 | -円/月 | -円/月 | -円/月 | -円/月 |
15万円 | -円/月 | -円/月 | -円/月 | -円/月 | -円/月 | -円/月 |
20万円 | -円/月 | -円/月 | -円/月 | -円/月 | -円/月 | -円/月 |
25万円 | -円/月 | -円/月 | -円/月 | -円/月 | -円/月 | -円/月 |
30万円 | -円/月 | -円/月 | -円/月 | -円/月 | -円/月 | -円/月 |
- ・金利は、今後35年間変動しない仮定のもと元利均等返済方式で計算しております。
- ・実際の金利は、各金融機関のホームページをご参照ください。
- ・ローン契約の際には、手数料や印紙税などの諸費用が別途かかります。
- ・ボーナス支払総額が総支払額の50%を超えている場合、上記の表では「ローン不可」となります。
- ・シミュレーションを利用し、それが原因で利用者が受けたいかなる損害についても当社は一切責任を負いません。あらかじめご了承ください。
※価格は物件の代金総額を表示しており、消費税が課税される場合は税込み価格です。 (1000円未満は切り上げ。)
※写真に写っている、またはパース(絵)や間取り図に描かれている家具や車などは、特にコメントがない場合、販売価格に含まれません。
※敷地権利が定期借地権のものは価格に権利金を含みます。
※建築条件付き土地価格には、建物価格は含まれません。
※物件情報は、原則として情報提供日の2日前に最終確認した情報です。
※完成予想図はいずれも外構、植栽、外観等実際のものとは多少異なることがあります。
※モデルルーム・モデルハウス・展示場・ショールームの画像の場合、今回販売の物件と異なる場合があります。
※CG合成の画像の場合、実際とは多少異なる場合があります。
※物件特徴:販売戸数が複数の物件は、全ての住戸に該当しない項目もあります。
※0800で始まる電話番号は通話料無料です。また、サービス検証のため当該番号の利用履歴を個人が特定できない範囲で取得しています。予めご了承ください。
※完成後1年以上を経過した未入居物件が掲載される場合があります。ご了承ください。
※新着:物件情報が「SUUMO」に掲載された日から1週間表示されます。
※価格更新:物件価格が変更された日から1週間表示されます。
※販売予定物件はすべて、販売開始するまで契約または予約の申込みはできません。
※購入の前には物件内容や契約条件についてご自身で十分な確認をしていただくようにお願いいたします。
※建築条件土地の情報内に掲載されている、建物プラン例は、土地購入者の設計プランの参考の一例であって、プランの採用可否は任意です。
※土地(建築条件なし)で「建物プラン例」が表記してある時、そのプラン例は特定の建築請負会社によるもので、当該建築請負会社以外で建てた場合、同様のものが同価格で建てられるとは限りません。また建築請負会社を特定するものではありません。
※建築条件付き土地とは、その土地に建築する建物の建築請負契約が、一定期間内に成立することを条件として売買される土地のことをいいます。建築請負契約成立に向けて設計プランを協議するため、土地購入者が自己の希望する建物の設計協議をするために必要な相当の期間の交渉期間が設定され、その期間内で希望を満たすプランが実現できたかどうかにより結論を出します。なお、この期間は概ね3ヶ月程度とされています。納得のいくプランが出来ず、建築請負契約が成立しない場合、土地売買契約は白紙に戻り、土地契約にかかった代金(土地代金、手付金など)は名目のいかんに関わらず、全て返却されます。

































