一戸建て工務店グランプリ二度の日本一【エコアハウス】北広島IC車3分!北広島大曲建売住宅4棟の詳細情報
3850万円~4298万円
月々のローン返済額を試算三井アウトレット徒歩8分・床暖房・回遊キッチン・駐車2台可の快適住宅
外観・室内・設備(23枚)

現地外観写真
大曲モデルハウスNo.2(区画C-9)【長期優良住宅認定物件】3LDK+WIC・並列駐車2台可能物件価格(土地+建物) 3850万円(税込)外構・LDK家具・エコジョーズ・エアコン備え付け♪

現地外観写真
大曲建売モデルハウスNo.3(区画A-7)無人モデルハウス【BELS認定住宅】4LDK+WIC・並列駐車2台可能物件価格(土地+建物) 4098万円(税込)外構・LDK家具・エコジョーズ・エアコン備え付け♪

リビング
大曲モデルハウスNo.320.7帖の広々リビング。キッチンはアイランドキッチンで回遊出来て家事のしやすい動線に。家族の気配をいつも感じられるリビングイン階段は、明るく開放感のあるオープン階段に。

キッチン
大曲建売モデルハウスNo.2デザイン性と丈夫さを兼備したアクリル人工大理石のワークトップ、お料理中で手が汚れていても触れずに使えるタッチレス水栓、お掃除楽々なガラストップコンロ。機能性抜群のキッチン♪

リビング以外の居室
大曲建売モデルハウスNo.3リビング・ダイニング横の小上がり和室。お子様のお昼寝スペースや、客間としておもてなしの空間にも♪段差部分を腰掛けとしても♪多用途にお使い頂ける便利なスペースです。

リビング以外の居室
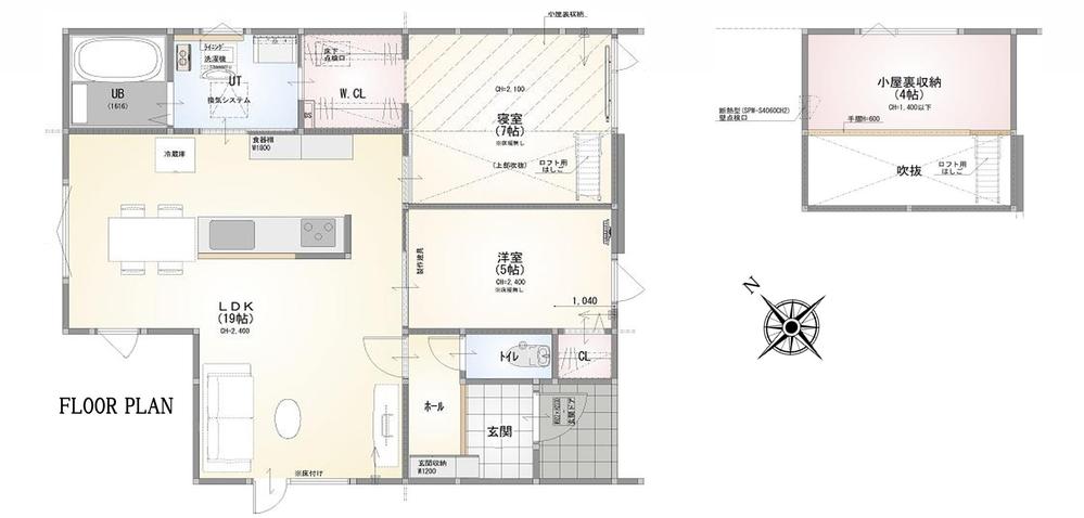
大曲建売モデルハウスNo.6吹き抜けと小屋裏収納がある7帖の寝室は、明るく開放的な空間に。小屋裏収納は4帖あり大容量なので、普段は使わない季節用品や日用品のストックなどもたっぷり収納できます♪

大曲モデルハウスNo.6
断熱性能やエネルギー消費効率において、既存の住宅よりも一段と高い基準を満たすGX志向型住宅。高い断熱性能と太陽光発電などの再生可能エネルギーの積極的な利用で、年間を通じて快適な室内環境を維持しながら、光熱費の大幅な削減も実現。※販売住戸が複数の場合、本ラベルは特定の住戸の性能を示すものであり全ての住戸の性能を示すものではありません。

タッチレス水栓のシステムキッチン【大曲建売モデルハウスNo.2】
お料理中に手が汚れていても触れずに使えて衛生的。容易に止水操作ができるので、こまめに水を出したり止めたりが可能。水のムダ使いを減らすことで、効率よく節水・節約ができます♪

アイランドキッチン【大曲建売モデルハウスNo.3】
開放感いっぱいで、リビングのいる家族ともコミュニケーションがとりやすく、動きやすい動線のアイランドキッチン!スペースに余裕があるので、お子さんと一緒にお料理も♪浄水器内蔵ハンドシャワー水栓やお手入れ簡単なホーロー整流板のレンジフードなど機能性も◎

エコジョーズ【大曲建売モデルハウスNo.2 No.3 No.4 No.6】
ボイラーには、都市ガス・エコジョーズを採用。少ないガス量で、効率よくお湯を沸かす省エネ性の高い熱源機・給湯器です。省スペースですっきり納まります♪

節水機能にキレイを保つ機能もいっぱいのバスルーム【大曲建売モデルハウスNo.3】
空気を含んだ大粒の水滴が心地よい超節水シャワーに、カウンターを外して洗いにくい裏側まで洗える丸洗いカウンターなど、機能的なバスルーム。

お掃除ラクラク♪キレイ機能・節水付きのトイレ【大曲建売モデルハウスNo.4】
キレイ機能で汚れが落ちる♪アクアセラミックの衛生陶器に、パワーストリーム洗浄機能、フチレス形状で衛生的に。3日でお風呂1杯以上の節水効果も。

雨から守る 工事中の養生
工事中の家を雨ざらしにすることはありません。雨や雪にさらされた建材は含水率が上がるため強度が落ちてしまい、そのまま使用すると木材に歪みが生じ、家に隙間をつくる原因にもなります。気密性を何よりも重視するエコアハウスにとって、これは許されない事態です。工事現場のブルーシート、エコアハウスではあたりまえの風景です。

エコアハウスのオリジナル床暖房
フローリングの下にある床構造材の下から温めます。厚みのある床構造のいちばん下からじんわり伝わるのは伝導熱、赤ちゃんがハイハイしても安心できる快適なぬくもりです。ここが一般的な床暖房との大きな違いです。熱を逃がさない高気密のエコアハウスの家だからこそできる技です。また、床下に人が入り容易に樹脂パイプのメンテナンスを行うことができ、大規模な修理・交換の際の費用を減らすことができます。

高気密
施工精度が不十分で隙間だらけの家では、どんなに高性能な断熱材や樹脂サッシを使っても暖かい家にはなりません。施工品質日本一のエコアハウスだからこそ実現可能な次世代省エネ基準の約12倍もの気密性、C値0.32cm2/m2以下はまさにエコアハウスの技術力の証です。建てた家すべてで行う気密測定の結果が証明しています。※2024年建築の全棟平均値
間取り・区画図(5枚)
周辺環境・アクセス(8枚)
その他(9枚)

新建売が続々OPEN!8/30よりGX志向型住宅もOPEN!リビングから愛車を眺められるお家、人気の平屋も!
大曲建売モデルハウスNo.6【平屋・GX志向型住宅】 間取り図 ソーラーシステム搭載19帖のLDKに、回遊できるウォークスルークローゼット、4帖の小屋裏収納。収納が充実しているのですっきり暮らせます♪

即入居可能な物件も♪スタッフ不在・ご予約不要の無人モデルハウスも♪お気軽にお問い合わせください
大曲建売モデルハウスNo.2 間取り図家事動線を考えた間取り、機能的なシステムキッチン、17.7帖のLDK。間取りに合わせた収納空間と収納計画を兼ね備えた理想の住まいになりました!

即入居可能な物件も♪スタッフ不在・ご予約不要の無人モデルハウスも♪お気軽にお問い合わせください
大曲建売モデルハウスNo.3 間取り図家事の動線がスムーズなアイランドキッチンに、20帖LDK。2階にバスルームがあることにより、入浴から就寝までの動線もスムーズに。家族が笑顔で過ごせるお家が誕生!
物件概要
| 物件名 | 工務店グランプリ二度の日本一【エコアハウス】北広島IC車3分!北広島大曲建売住宅4棟 | ||||
|---|---|---|---|---|---|
| 所在地 | 北海道北広島市大曲幸町2-3番他 | ||||
| 交通 |
中央バス「三井アウトレットパーク入口36号線沿」歩4分~7分 中央バス「三井アウトレットパーク店舗入口」歩5分~8分 中央バス「大曲」歩15分~18分 | ||||
| 構造および階数 | 【No.2】【No.6】木造軸組工法(ピン工法) 【No.3】【No.4】枠組壁工法 | 建ぺい率・容積率 | 建ペい率:60%、容積率:200% | ||
| 完成予定日 | 2024年10月 | 入居可能予定日 | 即引渡可 | ||
| 土地権利 | 所有権 | ||||
| 駐車場 | - | 国土法届出 | - | ||
| 地目 | 宅地 | 道路付け | 道路幅:8m、アスファルト舗装 | ||
| 機構融資 | - | 取引態様 | 売主 | ||
| 用途地域 | 準工業 | ||||
| 施工会社 | (株)ecoaハウス | ||||
| 建築確認番号 | 第SKK20243973号他 | ||||
| 設備 | 長期優良住宅認定通知書 / BELS/省エネ基準適合認定書あり / 省エネルギー対策 / 太陽光発電システム / 高気密高断熱住宅 / 駐車2台可 / 即引渡可 / LDK20畳以上 / 土地50坪以上 / 省エネ給湯器 / 山が見える / スキー場が近い / ゴルフ場が近い / テニスコートが近い / スーパー 徒歩10分以内 / 市街地が近い / システムキッチン / 陽当り良好 / 全居室収納 / 南側道路面す / 閑静な住宅地 / 前道6m以上 / 和室 / 整形地 / 庭10坪以上 / 家庭菜園 / シャワー付洗面化粧台 / 対面式キッチン / 浴室1坪以上 / 2階建 / 東南向き / 複層ガラス / 温水洗浄便座 / ロフト / 吹抜け / TVモニタ付インターホン / 節水型トイレ / 都市近郊 / 通風良好 / アイランドキッチン / ウォークインクローゼット / IHクッキングヒーター / リビング階段 / 全居室複層ガラスか複層サッシ / 都市ガス / 平坦地 / 床暖房 / 開発分譲地内 / 周辺交通量少なめ / 隣家との間隔が大きい / 整備された歩道 / 高機能トイレ / ビルトインガレージ | ||||
| その他制限事項 | 宅地造成工事規制区域、宅地造成規制法、国土利用計画法、第一種特別工業地域、建築基準法第22条区域 | ||||
| 備考 | 宅地造成工事規制区域、宅地造成規制法、国土利用計画法、第一種特別工業地域、建築基準法第22条区域 / 設備:公営水道、本下水、都市ガス、建築確認番号:第SKK20243973号他 | ||||
情報更新日:2025/11/21 次回更新予定日:情報提供より8日以内
販売概要
| 販売価格 | 3850万円~4298万円 お問い合わせはこちら | ||||
|---|---|---|---|---|---|
| 販売スケジュール | - | ||||
| 販売戸数/総戸数 | 4戸/6戸 | ||||
| 最多価格帯 | 4000万円台(3戸) | ||||
| 間取り | 2LDK~4LDK | ||||
| 建物面積 | 69.56㎡~116.27㎡(実測) | 土地面積 | 200㎡~200.03㎡(実測) | ||
| その他施設費用、償却費 | - | ||||
| その他費用 | その他諸費用:町内会費:300円/月 | ||||
| 登録受付 | - | 抽選日 | - | ||
| モデルルーム情報 | モデルハウス日程/公開中時間/10:00~17:00定休日/水曜日大曲建売モデルハウス 【No.2】 【No.3】 【No.4】 【No.6】◇公開・販売中!◇お気軽にご予約の上、お越しください。(ご見学可能時間10:00~17:00 定休日:水曜日)実際の設備や仕様をモデルハウスで確認できます!初めてのご来場でアンケートにご記入のお客様にQUOカード1000円をプレゼントいたします!さらに土地探し・設計プラン・資金計画等ご相談にてお米(5kg)をプレゼントします!※1家族様1回限り【大曲建売モデルハウスNo.2】 販売価格 3850万円北広島市大曲幸町2丁目3番45 エコアタウン北広島内区画C-9【大曲建売モデルハウスNo.3 無人モデルハウス】 販売価格 4498万円→4098万円!大幅プライスダウン!特別価格でご案内中です!北広島市大曲幸町2丁目3番26 エコアタウン北広島内区画A-7\お出かけついでにちょっと寄り道♪/スタッフ不在・ご予約不要の無人モデルハウスです!(ご見学可能時間10:00~17:00 最終受付16:00 定休日:水曜日)【大曲建売モデルハウスNo.4】 販売価格 4298万円北広島市大曲幸町2丁目3番44 エコアタウン北広島内区画C-82025年7月19日OPEN!【大曲建売モデルハウスNo.6 GX志向型住宅・平屋】 販売価格 4298万円北広島市大曲幸町2丁目3番39 エコアタウン北広島内区画C-32025年8月30日OPEN!◇物件の詳細など、お気軽にお問い合わせ下さい。 通話料無料 0120-018-935 | ||||
| 取引条件有効期限 | 2025年12月31日 | ||||
会社情報
| お問い合わせ先 |
(株)ecoaハウス 0120-018-935(無料通話) 上記の電話番号にお問合せください。(携帯・PHS 可) 【物件番号】75837879 | ||||
|---|---|---|---|---|---|
| 会社概要 |
(株)ecoaハウス[北海道知事石狩(3)第007869号] 北海道千歳市花園2-1-5 【所属団体】 北海道知事石狩(3)第007869号(公社)北海道宅地建物取引業協会会員 (一社)北海道不動産公正取引協議会加盟 | ||||
この物件の地図・周辺環境
このアイコンは物件のおおよその位置を表しており、実際の場所と異なる場合がございます。詳しくは不動産会社に直接ご確認ください。
※地図上に表示される物件の位置は付近住所に所在することを表すものであり、実際の物件所在地とは異なる場合がございます。
※地図の更新タイミングの関係で、物件情報が実際のものとは異なる場合や最新情報に更新されていない場合がございます。
※以下の南西諸島及び離島においては、表示される物件の位置が実際のものとは数百メートル程度ずれる場合がございます。
東京都:硫黄島・青ヶ島、沖縄県: 北大東島・南大東島・多良間島・水納島・与那国島・宮古諸島・石垣島・竹富島
取り扱い不動産会社
- 電話番号
- 0120-018-935
- 物件番号
- 75837879
北広島市の口コミ
子育て・病院
5.0
大病院のほか、耳鼻科咽喉科、歯科、眼科、小児科、内科など徒歩圏内に大きな病院が多く緊急の病気や怪我でも安心できる。
治安・安全
5.0
街全体の治安が非常に良い。自然環境も街全体が緑に囲まれているため、子育てファミリーにも適した環境です。
北広島市の駅から新築一戸建てを探す
住宅ローンシミュレーション
住宅ローン設定
物件価格
返済期間
頭金
ボーナス払(年1回)
※
※物件価格の80%以下でお借入れの場合
※50歳以下で一般団信をご選択の場合
※住宅ローン金利優遇割適用後の変動金利(全期間引き下げプラン)
※実際のお借入日の金利により変動します。
※審査の結果によっては保証付金利プランとなる場合があり、この場合は上記とは異なる金利となります。
※別途借入金額の2.20%(税込)の事務手数料が発生します。
ボーナス払 | 35年間返済 | 30年間返済 | 25年間返済 | 20年間返済 | 15年間返済 | 10年間返済 |
|---|---|---|---|---|---|---|
0万円 | -円/月 | -円/月 | -円/月 | -円/月 | -円/月 | -円/月 |
5万円 | -円/月 | -円/月 | -円/月 | -円/月 | -円/月 | -円/月 |
10万円 | -円/月 | -円/月 | -円/月 | -円/月 | -円/月 | -円/月 |
15万円 | -円/月 | -円/月 | -円/月 | -円/月 | -円/月 | -円/月 |
20万円 | -円/月 | -円/月 | -円/月 | -円/月 | -円/月 | -円/月 |
25万円 | -円/月 | -円/月 | -円/月 | -円/月 | -円/月 | -円/月 |
30万円 | -円/月 | -円/月 | -円/月 | -円/月 | -円/月 | -円/月 |
ボーナス払 | 35年間返済 | 30年間返済 | 25年間返済 | 20年間返済 | 15年間返済 | 10年間返済 |
|---|---|---|---|---|---|---|
0万円 | -円/月 | -円/月 | -円/月 | -円/月 | -円/月 | -円/月 |
5万円 | -円/月 | -円/月 | -円/月 | -円/月 | -円/月 | -円/月 |
10万円 | -円/月 | -円/月 | -円/月 | -円/月 | -円/月 | -円/月 |
15万円 | -円/月 | -円/月 | -円/月 | -円/月 | -円/月 | -円/月 |
20万円 | -円/月 | -円/月 | -円/月 | -円/月 | -円/月 | -円/月 |
25万円 | -円/月 | -円/月 | -円/月 | -円/月 | -円/月 | -円/月 |
30万円 | -円/月 | -円/月 | -円/月 | -円/月 | -円/月 | -円/月 |
- ・金利は、今後35年間変動しない仮定のもと元利均等返済方式で計算しております。
- ・実際の金利は、各金融機関のホームページをご参照ください。
- ・ローン契約の際には、手数料や印紙税などの諸費用が別途かかります。
- ・ボーナス支払総額が総支払額の50%を超えている場合、上記の表では「ローン不可」となります。
- ・シミュレーションを利用し、それが原因で利用者が受けたいかなる損害についても当社は一切責任を負いません。あらかじめご了承ください。
※価格は物件の代金総額を表示しており、消費税が課税される場合は税込み価格です。 (1000円未満は切り上げ。)
※写真に写っている、またはパース(絵)や間取り図に描かれている家具や車などは、特にコメントがない場合、販売価格に含まれません。
※敷地権利が定期借地権のものは価格に権利金を含みます。
※建築条件付き土地価格には、建物価格は含まれません。
※物件情報は、原則として情報提供日の2日前に最終確認した情報です。
※完成予想図はいずれも外構、植栽、外観等実際のものとは多少異なることがあります。
※モデルルーム・モデルハウス・展示場・ショールームの画像の場合、今回販売の物件と異なる場合があります。
※CG合成の画像の場合、実際とは多少異なる場合があります。
※物件特徴:販売戸数が複数の物件は、全ての住戸に該当しない項目もあります。
※0800で始まる電話番号は通話料無料です。また、サービス検証のため当該番号の利用履歴を個人が特定できない範囲で取得しています。予めご了承ください。
※完成後1年以上を経過した未入居物件が掲載される場合があります。ご了承ください。
※新着:物件情報が「SUUMO」に掲載された日から1週間表示されます。
※価格更新:物件価格が変更された日から1週間表示されます。
※販売予定物件はすべて、販売開始するまで契約または予約の申込みはできません。
※購入の前には物件内容や契約条件についてご自身で十分な確認をしていただくようにお願いいたします。
※建築条件土地の情報内に掲載されている、建物プラン例は、土地購入者の設計プランの参考の一例であって、プランの採用可否は任意です。
※土地(建築条件なし)で「建物プラン例」が表記してある時、そのプラン例は特定の建築請負会社によるもので、当該建築請負会社以外で建てた場合、同様のものが同価格で建てられるとは限りません。また建築請負会社を特定するものではありません。
※建築条件付き土地とは、その土地に建築する建物の建築請負契約が、一定期間内に成立することを条件として売買される土地のことをいいます。建築請負契約成立に向けて設計プランを協議するため、土地購入者が自己の希望する建物の設計協議をするために必要な相当の期間の交渉期間が設定され、その期間内で希望を満たすプランが実現できたかどうかにより結論を出します。なお、この期間は概ね3ヶ月程度とされています。納得のいくプランが出来ず、建築請負契約が成立しない場合、土地売買契約は白紙に戻り、土地契約にかかった代金(土地代金、手付金など)は名目のいかんに関わらず、全て返却されます。



























