NEW新築売戸建住宅北海道札幌市白石区北郷四条5丁目の新築売戸建住宅の詳細情報
この物件は未完成のため、掲載写真(外観、内観、設備等)には、施工例が含まれている場合があります。物件詳細については、掲載の不動産会社宛にお問合せください。
掲載期限まであと12日
外観・室内・設備(1枚)
その他(13枚)
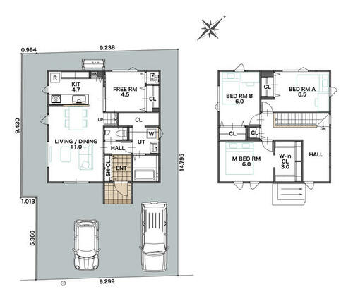
物件概要
| 物件名 | 北海道札幌市白石区北郷四条5丁目の新築売戸建住宅 | ||||
|---|---|---|---|---|---|
| 所在地 | 北海道札幌市白石区北郷四条5丁目 | ||||
| 交通 |
JR函館本線 「白石」駅 徒歩11分 JR千歳線 「白石」駅 徒歩11分 | ||||
| 構造および階数 | 木造・2階建 | 建ぺい率・容積率 | 60.00%・200.00% | ||
| 完成予定日 | 2025年11月 | 入居可能予定日 | 2025年12月(予定) | ||
| 土地権利 | 所有権 | ||||
| 駐車場 | - | 国土法届出 | - | ||
| 私道負担・道路 | - | 道路付け | 南東 5.4m 公道 接面9.2m | ||
| 地目 | 宅地 | 都市計画 | 市街化区域 | ||
| 取引態様 | 売主 | 用途地域 | 1種住居 | ||
| 施工会社 | 備考に記載 | ||||
| 建築確認番号 | SKK20250477 | ||||
| 設備 | エアコン・給湯・収納スペース・追焚機能・フローリング・Wクロゼット・照明器具・シャンプードレッサー・ウォシュレット・システムキッチン・モニタ付インターホン・セントラル・クロゼット・IHクッキングヒータ・浄水器・食器洗浄乾燥機・複層ガラス・ディンプルキー・電気・上水道・下水道・省エネ給湯器 | ||||
| 備考 | 施工会社:株式会社ジョンソンホームズ・JR「白石」駅徒歩11分!お車の利便性も◎小学校徒歩2分で通学も安心です♪ | ||||
情報更新日:2025/11/21 次回更新予定日:情報更新日より14日以内
販売概要
| 販売価格 | 3,890万円 お問い合わせはこちら | ||||
|---|---|---|---|---|---|
| 販売戸数/総戸数 | -/- | ||||
| 最多価格帯 | - | ||||
| 間取り | 4LDK | ||||
| 建物面積 | 106.00㎡ | 土地面積 | 146.62㎡ | ||
| その他施設費用、償却費 | - / - | ||||
| その他費用 | - | ||||
会社情報
| お問い合わせ先 |
(株)ジョンソンホームズ 011-737-8888 上記の電話番号にお問合せください。(携帯・PHS 可) 【物件番号】6986639906 | ||||
|---|---|---|---|---|---|
| 会社概要 |
(株)ジョンソンホームズ[北海道知事免許 石狩(8)第5672号] 北海道札幌市西区八軒四条東5丁目1-1 【所属団体】 (公社)北海道宅地建物取引業協会、(一社)北海道不動産公正取引協議会 | ||||
この物件の地図・周辺環境
このアイコンは物件のおおよその位置を表しており、実際の場所と異なる場合がございます。詳しくは不動産会社に直接ご確認ください。
取り扱い不動産会社
- 電話番号
- 011-737-8888
- 営業時間
- 09:00~17:00
- 定休日
- 火曜日、水曜日・年末年始・夏季休暇
- 物件番号
- 6986639906
掲載期限まであと12日
白石駅の口コミ
お買い物・飲食
5.0
24時間スーパーは便利です。地下鉄駅周りには銀行や、コンビニエンスストアもあり、通勤帰りの用足しにはじゅうぶんです。
自然環境
3.0
公園もあちこちにあり子供が遊べる場所もあります。 少し足を伸ばせば大きい公園もありピクニックなども楽しめます。
住宅ローンシミュレーション
住宅ローン設定
物件価格
返済期間
頭金
ボーナス払(年1回)
※
※物件価格の80%以下でお借入れの場合
※50歳以下で一般団信をご選択の場合
※住宅ローン金利優遇割適用後の変動金利(全期間引き下げプラン)
※実際のお借入日の金利により変動します。
※審査の結果によっては保証付金利プランとなる場合があり、この場合は上記とは異なる金利となります。
※別途借入金額の2.20%(税込)の事務手数料が発生します。
ボーナス払 | 35年間返済 | 30年間返済 | 25年間返済 | 20年間返済 | 15年間返済 | 10年間返済 |
|---|---|---|---|---|---|---|
0万円 | -円/月 | -円/月 | -円/月 | -円/月 | -円/月 | -円/月 |
5万円 | -円/月 | -円/月 | -円/月 | -円/月 | -円/月 | -円/月 |
10万円 | -円/月 | -円/月 | -円/月 | -円/月 | -円/月 | -円/月 |
15万円 | -円/月 | -円/月 | -円/月 | -円/月 | -円/月 | -円/月 |
20万円 | -円/月 | -円/月 | -円/月 | -円/月 | -円/月 | -円/月 |
25万円 | -円/月 | -円/月 | -円/月 | -円/月 | -円/月 | -円/月 |
30万円 | -円/月 | -円/月 | -円/月 | -円/月 | -円/月 | -円/月 |
ボーナス払 | 35年間返済 | 30年間返済 | 25年間返済 | 20年間返済 | 15年間返済 | 10年間返済 |
|---|---|---|---|---|---|---|
0万円 | -円/月 | -円/月 | -円/月 | -円/月 | -円/月 | -円/月 |
5万円 | -円/月 | -円/月 | -円/月 | -円/月 | -円/月 | -円/月 |
10万円 | -円/月 | -円/月 | -円/月 | -円/月 | -円/月 | -円/月 |
15万円 | -円/月 | -円/月 | -円/月 | -円/月 | -円/月 | -円/月 |
20万円 | -円/月 | -円/月 | -円/月 | -円/月 | -円/月 | -円/月 |
25万円 | -円/月 | -円/月 | -円/月 | -円/月 | -円/月 | -円/月 |
30万円 | -円/月 | -円/月 | -円/月 | -円/月 | -円/月 | -円/月 |
- ・金利は、今後35年間変動しない仮定のもと元利均等返済方式で計算しております。
- ・実際の金利は、各金融機関のホームページをご参照ください。
- ・ローン契約の際には、手数料や印紙税などの諸費用が別途かかります。
- ・ボーナス支払総額が総支払額の50%を超えている場合、上記の表では「ローン不可」となります。
- ・シミュレーションを利用し、それが原因で利用者が受けたいかなる損害についても当社は一切責任を負いません。あらかじめご了承ください。















