一戸建て【アートホーム】苫小牧市新中野町 mini prot Basic33F+1Rの詳細情報
4080万円
月々のローン返済額を試算この物件は未完成のため、掲載写真(外観、内観、設備等)には、施工例が含まれている場合があります。物件詳細については、掲載の不動産会社宛にお問合せください。
【11月完成】小学校歩8分、国道36号線近い都市ガスエリア【アートホーム】
外観・室内・設備(21枚)

外壁はガルバリウム鋼板
ガルバリウム鋼板は、耐久性と防水性に優れた外壁材で、軽く、フェノールフォーム断熱材と外張断熱工法との相性も良好です。また、ガルバリウム鋼板は一度溶かして新しく製造することができ、リサイクルが可能。再生可能で持続可能な素材です。

木製断熱ドア
北欧レベルの断熱性能が特徴。熱貫流率(U値)は0.96W/㎡・Kと非常に高く、玄関からの暑さ・寒さの影響を受けづらく一年中快適。ディンプルキー+ダブルロック+鎌錠、さらにセキュリティーヒンジも採用し、高い防犯性能の裏付けになります。

第三種換気を標準採用
機械による強制排気をして給気口より新鮮な空気を取り込む第三種換気を標準採用。計画換気により床下の温度・湿度は室内と同じにしています。静音性もあり、わずか22db[A] 静音性と消費電力5W の省エネ設計です。

配管は流量変化のないヘッダー工法
メンテナンス・点検が容易で長期優良住宅法の規定にも適合されるヘッダー工法。複数の水栓を同時に使用した場合でも、水圧変化が少なく安定した給水・給湯量が得られます。ポリブテンパイプを採用しており長く安心してお使いいただけます。

床は無垢材+植物性オイル
天然植物油、ミツロウワックス、弁柄等、天然素材を使用した環境対応型塗料を使用しています。食品安全衛生法に適合した子供の玩具にも塗れるほど安全性が高く、木目を生かしたしっとりとした風合いに仕上がります。

ダブル断熱
次世代省エネ基準でもある外張り断熱工法+充填断熱のW断熱を採用。開口部以外の外壁面をほぼ100%覆う方式で室温が一日中安定。軽量で高性能なフェノールフォーム断熱材とグラスウールを使用しています。
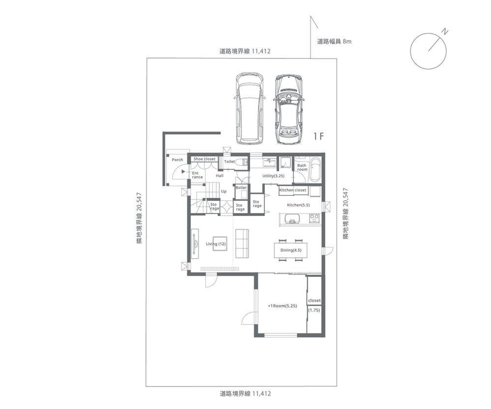
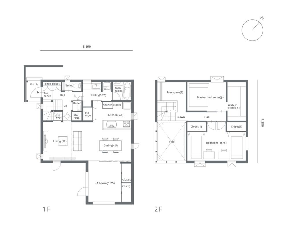
物件概要
| 物件名 | 【アートホーム】苫小牧市新中野町 mini prot Basic33F+1R | ||||
|---|---|---|---|---|---|
| 所在地 | 北海道苫小牧市新中野町2-2-18 | ||||
| 交通 |
JR千歳線「苫小牧」歩20分 道南バス「「西埠頭通」停留所」歩3分 | ||||
| 構造および階数 | 木造2階建(軸組工法) | 建ぺい率・容積率 | 60%・200% | ||
| 完成予定日 | 2025年11月 | 入居可能予定日 | 相談 | ||
| 土地権利 | 所有権 | ||||
| 駐車場 | - | 国土法届出 | - | ||
| 地目 | - | 道路付け | 無、北8m幅(接道幅11.4m) | ||
| 機構融資 | - | 取引態様 | 売主 | ||
| 用途地域 | 準住居 | ||||
| 施工会社 | (株)アートホーム | ||||
| 建築確認番号 | 第R07確認建築苫小牧市000525 | ||||
| 設備 | フラット35・S適合証明書 / 省エネルギー対策 / 駐車2台可 / LDK20畳以上 / 省エネ給湯器 / システムキッチン / 陽当り良好 / 対面式キッチン / 浴室1坪以上 / 2階建 / 南庭 / ウォークインクローゼット / 都市ガス / 可動間仕切り / 食器洗乾燥機 | ||||
| その他制限事項 | 景観法による規制有、安全条例による規制有 | ||||
| 備考 | 景観法による規制有、安全条例による規制有 / 設備:公営水道、本下水、都市ガス、建築確認番号:第R07確認建築苫小牧市000525、駐車場:カースペース | ||||
情報更新日:2025/10/20 次回更新予定日:情報提供より8日以内
販売概要
| 販売価格 | 4080万円 お問い合わせはこちら | ||||
|---|---|---|---|---|---|
| 販売スケジュール | - | ||||
| 販売戸数/総戸数 | 1戸/- | ||||
| 最多価格帯 | - | ||||
| 間取り | 4LDK | ||||
| 建物面積 | 120.89㎡ | 土地面積 | 234.48㎡ | ||
| その他施設費用、償却費 | - | ||||
| その他費用 | - | ||||
| 登録受付 | - | 抽選日 | - | ||
| モデルルーム情報 | ※水曜・木曜 定休日 | ||||
| 取引条件有効期限 | - | ||||
会社情報
| お問い合わせ先 |
(株)アートホーム千歳支店 0123-40-8686 上記の電話番号にお問合せください。(携帯・PHS 可) 【物件番号】78138755 | ||||
|---|---|---|---|---|---|
| 会社概要 |
(株)アートホーム千歳支店[北海道知事オホ(5)第000336号] - | ||||
取り扱い不動産会社
- 電話番号
- 0123-40-8686
- 受付
- 営業時間:9:00-18:00 / 定休日:水・木
- 物件番号
- 78138755
苫小牧駅の口コミ
お買い物・飲食
4.0
近くにスーパーとコンビニがあります。外食店はあまりありませんが、ファミレスはあります。物価もあまり高くなく、生活するのには困らないと思います。
自然環境
3.0
周辺は官公庁や飲食街が近く、コンビニはありますが近くにスーパーが無いので、転勤族には便利ですが、ファミリー層には向いていないかも知れません。
住宅ローンシミュレーション
住宅ローン設定
物件価格
返済期間
頭金
ボーナス払(年1回)
※
※物件価格の80%以下でお借入れの場合
※50歳以下で一般団信をご選択の場合
※住宅ローン金利優遇割適用後の変動金利(全期間引き下げプラン)
※実際のお借入日の金利により変動します。
※審査の結果によっては保証付金利プランとなる場合があり、この場合は上記とは異なる金利となります。
※別途借入金額の2.20%(税込)の事務手数料が発生します。
ボーナス払 | 35年間返済 | 30年間返済 | 25年間返済 | 20年間返済 | 15年間返済 | 10年間返済 |
|---|---|---|---|---|---|---|
0万円 | -円/月 | -円/月 | -円/月 | -円/月 | -円/月 | -円/月 |
5万円 | -円/月 | -円/月 | -円/月 | -円/月 | -円/月 | -円/月 |
10万円 | -円/月 | -円/月 | -円/月 | -円/月 | -円/月 | -円/月 |
15万円 | -円/月 | -円/月 | -円/月 | -円/月 | -円/月 | -円/月 |
20万円 | -円/月 | -円/月 | -円/月 | -円/月 | -円/月 | -円/月 |
25万円 | -円/月 | -円/月 | -円/月 | -円/月 | -円/月 | -円/月 |
30万円 | -円/月 | -円/月 | -円/月 | -円/月 | -円/月 | -円/月 |
ボーナス払 | 35年間返済 | 30年間返済 | 25年間返済 | 20年間返済 | 15年間返済 | 10年間返済 |
|---|---|---|---|---|---|---|
0万円 | -円/月 | -円/月 | -円/月 | -円/月 | -円/月 | -円/月 |
5万円 | -円/月 | -円/月 | -円/月 | -円/月 | -円/月 | -円/月 |
10万円 | -円/月 | -円/月 | -円/月 | -円/月 | -円/月 | -円/月 |
15万円 | -円/月 | -円/月 | -円/月 | -円/月 | -円/月 | -円/月 |
20万円 | -円/月 | -円/月 | -円/月 | -円/月 | -円/月 | -円/月 |
25万円 | -円/月 | -円/月 | -円/月 | -円/月 | -円/月 | -円/月 |
30万円 | -円/月 | -円/月 | -円/月 | -円/月 | -円/月 | -円/月 |
- ・金利は、今後35年間変動しない仮定のもと元利均等返済方式で計算しております。
- ・実際の金利は、各金融機関のホームページをご参照ください。
- ・ローン契約の際には、手数料や印紙税などの諸費用が別途かかります。
- ・ボーナス支払総額が総支払額の50%を超えている場合、上記の表では「ローン不可」となります。
- ・シミュレーションを利用し、それが原因で利用者が受けたいかなる損害についても当社は一切責任を負いません。あらかじめご了承ください。
※価格は物件の代金総額を表示しており、消費税が課税される場合は税込み価格です。 (1000円未満は切り上げ。)
※写真に写っている、またはパース(絵)や間取り図に描かれている家具や車などは、特にコメントがない場合、販売価格に含まれません。
※敷地権利が定期借地権のものは価格に権利金を含みます。
※建築条件付き土地価格には、建物価格は含まれません。
※物件情報は、原則として情報提供日の2日前に最終確認した情報です。
※完成予想図はいずれも外構、植栽、外観等実際のものとは多少異なることがあります。
※モデルルーム・モデルハウス・展示場・ショールームの画像の場合、今回販売の物件と異なる場合があります。
※CG合成の画像の場合、実際とは多少異なる場合があります。
※物件特徴:販売戸数が複数の物件は、全ての住戸に該当しない項目もあります。
※0800で始まる電話番号は通話料無料です。また、サービス検証のため当該番号の利用履歴を個人が特定できない範囲で取得しています。予めご了承ください。
※完成後1年以上を経過した未入居物件が掲載される場合があります。ご了承ください。
※新着:物件情報が「SUUMO」に掲載された日から1週間表示されます。
※価格更新:物件価格が変更された日から1週間表示されます。
※販売予定物件はすべて、販売開始するまで契約または予約の申込みはできません。
※購入の前には物件内容や契約条件についてご自身で十分な確認をしていただくようにお願いいたします。
※建築条件土地の情報内に掲載されている、建物プラン例は、土地購入者の設計プランの参考の一例であって、プランの採用可否は任意です。
※土地(建築条件なし)で「建物プラン例」が表記してある時、そのプラン例は特定の建築請負会社によるもので、当該建築請負会社以外で建てた場合、同様のものが同価格で建てられるとは限りません。また建築請負会社を特定するものではありません。
※建築条件付き土地とは、その土地に建築する建物の建築請負契約が、一定期間内に成立することを条件として売買される土地のことをいいます。建築請負契約成立に向けて設計プランを協議するため、土地購入者が自己の希望する建物の設計協議をするために必要な相当の期間の交渉期間が設定され、その期間内で希望を満たすプランが実現できたかどうかにより結論を出します。なお、この期間は概ね3ヶ月程度とされています。納得のいくプランが出来ず、建築請負契約が成立しない場合、土地売買契約は白紙に戻り、土地契約にかかった代金(土地代金、手付金など)は名目のいかんに関わらず、全て返却されます。



















