一戸建てトヨタウッドユーホーム【セントラルアベニュー荒川本郷】整備された大型分譲地の詳細情報
3899万円~4690万円
月々のローン返済額を試算【トヨタウッドユーホーム】ご予約来場でアマゾンギフトカードプレゼント!
外観・室内・設備(23枚)

キッチン
室内(2024年5月)撮影 No.96 キッチン 開放的なフルフラットのオープンキッチンは、シンクとコンロを分けたⅡ型配置。家族や友人と一緒でも調理がしやすい十分な作業スペースを確保しています。

リビング以外の居室
室内(2024年5月)撮影 No.96 主寝室主寝室はブラウンのアクセントクロスで、落ち着きのある空間に。バルコニーはハイウォールタイプになっており、道路や隣家からの視線を遮ることができます。

ハイブリッド給湯器
ガスと空気熱でお湯をつくるハイブリッド給湯機。ガスと電気(ヒートポンプ)を上手に活かして効率的にお湯をつくる貯湯式だから、省エネやうれしい経済性をかなえながら、たっぷり湯量&湯切れ無しの快適な生活を実現します。(№133・135)

GreenAriaⅡ
夏でも冬でも、家中どこにいても心地良さを実感できるトヨタウッドユーホームの全館空調システム。家の中の温度差を抑え、ヒートショックを軽減。一年を通して健康に暮らせる、快適な空気環境を実現します。また、効率的な運転によってエネルギーのムダを減らし、冷暖房費を削減します。(№96 モデルハウス)

ビルトイン食器洗浄乾燥機
(写真は商品イメージで、実際とは色柄が異なります。)システムキッチンにビルトイン型の食器洗浄乾燥機を搭載。見た目もすっきり、家事の時短に必須アイテムです。全棟に装備されております。

2×4(ツーバイフォー)工法とは
トヨタウッドユーホームの建てる家は、「2×4(ツーバイフォー)」工法を採用。2×4工法は、204材等を中心に枠組みし、構造用合板等を貼り付け「パネル」化した「面」で構成され、床・壁・天井(屋根)が一体となった6面体のモノコック構造です。この構造は地震などの外力を建物全体で受け止め、力を分散させるため、高い耐震性を発揮します。

お引き渡し後も安心の長期保証制度
住まいのサポートシステム(30年長期保証制度)長く安心してお住まいいただくために、30年間の長期保証制度を提供しています。お客様による適切な維持・管理を前提として、お住まいの基礎、上部基本構造部、防水および防蟻について、最長30年の品質保持をお約束しています。

ファイヤーストップ
火災は一般に壁の内部や天井裏を伝わって燃え広がります。ツーバイフォー工法では、枠組材などがファイヤーストップ材となって空気の流れを遮断し、上階への火の燃え広がりをくい止めます。床部については一定間隔に組まれている床根太材などでいわゆる防火区画のような機能により火の横への広がりをさらに遅くする効果が期待できます。

基礎
24N/m㎡以上のコンクリートを使用し、コンクリートスラブと基礎梁によるべた基礎を標準採用。建物荷重を基礎全面の鉄筋コンクリートスラブによって地盤へ確実に伝えます。また、基礎下全面に防湿フィルムを敷き込み、そのうえで基礎全面の鉄筋コンクリートスラブとすることで、床下地盤面からの湿気を遮断する効果が極めて高い構造としています。
周辺環境・アクセス(11枚)
物件概要
| 物件名 | トヨタウッドユーホーム【セントラルアベニュー荒川本郷】整備された大型分譲地 | ||||
|---|---|---|---|---|---|
| 所在地 | 茨城県稲敷郡阿見町大字荒川本郷字北古辺1929-1他 | ||||
| 交通 |
JR常磐線「荒川沖」歩23分~27分 | ||||
| 構造および階数 | 木造枠組み壁工法(2×6工法) | 建ぺい率・容積率 | 建ペい率:40%、容積率:80%、 | ||
| 完成予定日 | 2024年8月末 | 入居可能予定日 | 即引渡可 | ||
| 土地権利 | 所有権 | ||||
| 駐車場 | - | 国土法届出 | - | ||
| 地目 | 宅地 | 道路付け | 道路幅:6m、アスファルト舗装 | ||
| 機構融資 | - | 取引態様 | 売主 | ||
| 用途地域 | 1種低層、1種中高 | ||||
| 施工会社 | トヨタウッドユーホーム株式会社 | ||||
| 建築確認番号 | NO.133:R07SHC121025 | ||||
| 設備 | 長期優良住宅認定通知書 / 設計住宅性能評価書 / 建設住宅性能評価書(新築時) / BELS/省エネ基準適合認定書あり / 太陽光発電システム / 高気密高断熱住宅 / 地盤調査済 / 駐車2台可 / 即引渡可 / 土地50坪以上 / 省エネ給湯器 / 市街地が近い / 南向き / システムキッチン / 浴室乾燥機 / 全居室収納 / 駅まで平坦 / 南側道路面す / 閑静な住宅地 / LDK15畳以上 / 総合病院 徒歩10分以内 / 前道6m以上 / 角地 / 整形地 / 庭 / シャワー付洗面化粧台 / 対面式キッチン / EV車充電設備 / トイレ2ヶ所 / 浴室1坪以上 / 2階建 / 南面バルコニー / 複層ガラス / 温水洗浄便座 / 南庭 / TVモニタ付インターホン / 緑豊かな住宅地 / 全居室フローリング / ウォークインクローゼット / IHクッキングヒーター / リビング階段 / シューズインクローク / 平坦地 / 開発分譲地内 / テラス / 食器洗乾燥機 / 整備された歩道 / オール電化 / スマートキー | ||||
| その他制限事項 | 敷地面積最低限度有 | ||||
| 備考 | 敷地面積最低限度有 / 設備:電気:自由化、上水道:公営水道、し尿・雑排水:公共下水、ガス:都市ガス(東京ガス)、雨水:側溝、雨水桝:有、建築確認番号:NO.133:R07SHC121025、NO.135:R07SHC121026 | ||||
情報更新日:2025/11/08 次回更新予定日:情報提供より8日以内
販売概要
| 販売価格 | 3899万円~4690万円 お問い合わせはこちら | ||||
|---|---|---|---|---|---|
| 販売スケジュール | - | ||||
| 販売戸数/総戸数 | 3戸/175戸 | ||||
| 最多価格帯 | - | ||||
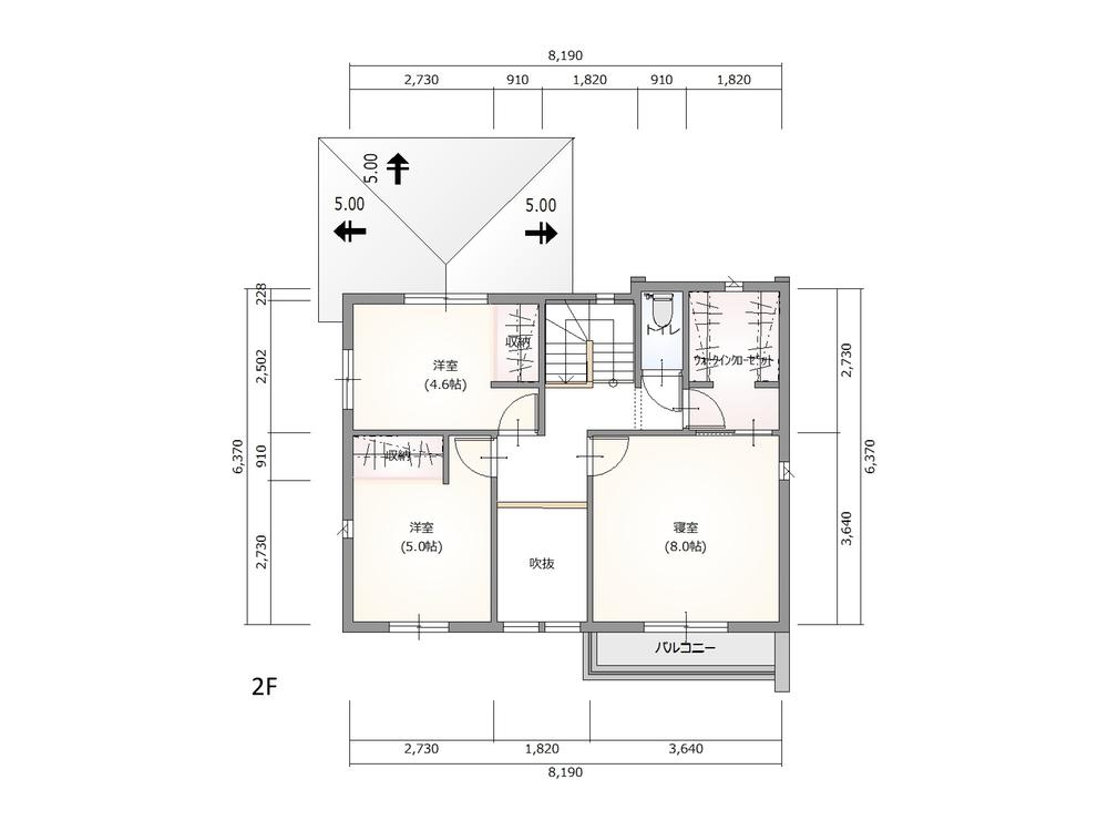
| 間取り | 3LDK・4LDK | ||||
| 建物面積 | 111.01㎡~126.94㎡(33.58坪~38.39坪)(実測) | 土地面積 | 209.14㎡~219.15㎡(63.26坪~66.29坪) | ||
| その他施設費用、償却費 | - | ||||
| その他費用 | その他諸費用:管理組合入会金:50000円(一時金) 管理組合費:1800円/月 | ||||
| 登録受付 | - | 抽選日 | - | ||
| モデルルーム情報 | 現地見学会(事前に必ずお問い合わせください)日程/毎週土日祝時間/10:00~18:00◇内覧会◇現在、モデルハウスの内覧をご案内中です。①さくっと見学 15分~30分コース小さい子がいて長時間は不安、自分たちのペースで見たいなどのご要望がある方は事前にお知らせいただければ短時間でのご案内が可能です!事前に知りたいことなどお伝えいただければ、当日に詳細資料をお渡しすることもできますのでお気軽にご相談下さい。②じっくり 30分~60分コース図面だけでは分からない日の当たり方や暮らし方のご提案など、プロの住宅営業がご案内させていただきます。せっかく足を運んでいただいたので、納得いくまでじっくりと見学をお楽しみください!【見学予約&見学でAmazonギフトカード3000円分を必ず進呈】◇工場見学会◇トヨタウッドユーホームの住まいは屋根のある工場で丁寧に作り上げられています。徹底した品質管理を間近でご覧いただけます。見学会に参加された方のほとんどにご満足いただける楽しい一日となっております。ぜひ皆様のご参加をお待ちしております!【次回の工場見学会】・開催日程:2026年1月17日(土)・予約:要予約となります。参加費無料・場所:栃木県 ・来場特典:毎回素敵な来場プレゼントをご用意しております。・お子様:無料託児サービスやお子様も楽しめるイベントが開催されています。◇各イベントの詳細・ご予約はこちらまで◇トヨタウッドユーホーム株式会社茨城支店TEL:029-875-3775FAX:029-875-3776 | ||||
| 取引条件有効期限 | 2025年12月31日 | ||||
会社情報
| お問い合わせ先 |
トヨタウッドユーホーム 茨城支店 029-875-3775 上記の電話番号にお問合せください。(携帯・PHS 可) 【物件番号】75107417 | ||||
|---|---|---|---|---|---|
| 会社概要 |
トヨタウッドユーホーム 茨城支店 茨城県つくば市研究学園4-1-8 【所属団体】 国土交通大臣(7)第005168号(公社)茨城県宅地建物取引業協会会員 (公社)首都圏不動産公正取引協議会加盟 | ||||
取り扱い不動産会社
- 電話番号
- 029-875-3775
- 受付
- 営業時間:AM10:00~PM5:00/定休日:火・水曜日
- 物件番号
- 75107417
荒川沖駅の口コミ
自然環境
4.0
春先から秋口にかけて虫が多い。特に、霞ヶ浦でワカサギ虫と呼ばれる虫(ユスリカ)が大量発生する時期があるので、知っておいたほうが良い。無害ではあるが、車が汚れるし、何より夜間に大量のワカサギ虫が明かりに群がる光景は不快である。
お買い物・飲食
2.0
車がないと買い物は大変。衣類や本などを買おうとするとイオンに行く選択肢が大半だと思う。 飲食店もあまりないため、外食を頻繁にするのは難しい。
住宅ローンシミュレーション
住宅ローン設定
物件価格
返済期間
頭金
ボーナス払(年1回)
※
※物件価格の80%以下でお借入れの場合
※50歳以下で一般団信をご選択の場合
※住宅ローン金利優遇割適用後の変動金利(全期間引き下げプラン)
※実際のお借入日の金利により変動します。
※審査の結果によっては保証付金利プランとなる場合があり、この場合は上記とは異なる金利となります。
※別途借入金額の2.20%(税込)の事務手数料が発生します。
ボーナス払 | 35年間返済 | 30年間返済 | 25年間返済 | 20年間返済 | 15年間返済 | 10年間返済 |
|---|---|---|---|---|---|---|
0万円 | -円/月 | -円/月 | -円/月 | -円/月 | -円/月 | -円/月 |
5万円 | -円/月 | -円/月 | -円/月 | -円/月 | -円/月 | -円/月 |
10万円 | -円/月 | -円/月 | -円/月 | -円/月 | -円/月 | -円/月 |
15万円 | -円/月 | -円/月 | -円/月 | -円/月 | -円/月 | -円/月 |
20万円 | -円/月 | -円/月 | -円/月 | -円/月 | -円/月 | -円/月 |
25万円 | -円/月 | -円/月 | -円/月 | -円/月 | -円/月 | -円/月 |
30万円 | -円/月 | -円/月 | -円/月 | -円/月 | -円/月 | -円/月 |
ボーナス払 | 35年間返済 | 30年間返済 | 25年間返済 | 20年間返済 | 15年間返済 | 10年間返済 |
|---|---|---|---|---|---|---|
0万円 | -円/月 | -円/月 | -円/月 | -円/月 | -円/月 | -円/月 |
5万円 | -円/月 | -円/月 | -円/月 | -円/月 | -円/月 | -円/月 |
10万円 | -円/月 | -円/月 | -円/月 | -円/月 | -円/月 | -円/月 |
15万円 | -円/月 | -円/月 | -円/月 | -円/月 | -円/月 | -円/月 |
20万円 | -円/月 | -円/月 | -円/月 | -円/月 | -円/月 | -円/月 |
25万円 | -円/月 | -円/月 | -円/月 | -円/月 | -円/月 | -円/月 |
30万円 | -円/月 | -円/月 | -円/月 | -円/月 | -円/月 | -円/月 |
- ・金利は、今後35年間変動しない仮定のもと元利均等返済方式で計算しております。
- ・実際の金利は、各金融機関のホームページをご参照ください。
- ・ローン契約の際には、手数料や印紙税などの諸費用が別途かかります。
- ・ボーナス支払総額が総支払額の50%を超えている場合、上記の表では「ローン不可」となります。
- ・シミュレーションを利用し、それが原因で利用者が受けたいかなる損害についても当社は一切責任を負いません。あらかじめご了承ください。
※価格は物件の代金総額を表示しており、消費税が課税される場合は税込み価格です。 (1000円未満は切り上げ。)
※写真に写っている、またはパース(絵)や間取り図に描かれている家具や車などは、特にコメントがない場合、販売価格に含まれません。
※敷地権利が定期借地権のものは価格に権利金を含みます。
※建築条件付き土地価格には、建物価格は含まれません。
※物件情報は、原則として情報提供日の2日前に最終確認した情報です。
※完成予想図はいずれも外構、植栽、外観等実際のものとは多少異なることがあります。
※モデルルーム・モデルハウス・展示場・ショールームの画像の場合、今回販売の物件と異なる場合があります。
※CG合成の画像の場合、実際とは多少異なる場合があります。
※物件特徴:販売戸数が複数の物件は、全ての住戸に該当しない項目もあります。
※0800で始まる電話番号は通話料無料です。また、サービス検証のため当該番号の利用履歴を個人が特定できない範囲で取得しています。予めご了承ください。
※完成後1年以上を経過した未入居物件が掲載される場合があります。ご了承ください。
※新着:物件情報が「SUUMO」に掲載された日から1週間表示されます。
※価格更新:物件価格が変更された日から1週間表示されます。
※販売予定物件はすべて、販売開始するまで契約または予約の申込みはできません。
※購入の前には物件内容や契約条件についてご自身で十分な確認をしていただくようにお願いいたします。
※建築条件土地の情報内に掲載されている、建物プラン例は、土地購入者の設計プランの参考の一例であって、プランの採用可否は任意です。
※土地(建築条件なし)で「建物プラン例」が表記してある時、そのプラン例は特定の建築請負会社によるもので、当該建築請負会社以外で建てた場合、同様のものが同価格で建てられるとは限りません。また建築請負会社を特定するものではありません。
※建築条件付き土地とは、その土地に建築する建物の建築請負契約が、一定期間内に成立することを条件として売買される土地のことをいいます。建築請負契約成立に向けて設計プランを協議するため、土地購入者が自己の希望する建物の設計協議をするために必要な相当の期間の交渉期間が設定され、その期間内で希望を満たすプランが実現できたかどうかにより結論を出します。なお、この期間は概ね3ヶ月程度とされています。納得のいくプランが出来ず、建築請負契約が成立しない場合、土地売買契約は白紙に戻り、土地契約にかかった代金(土地代金、手付金など)は名目のいかんに関わらず、全て返却されます。





































