NEW新築売戸建住宅香川県丸亀市津森町の新築売戸建住宅の詳細情報
この物件は未完成のため、掲載写真(外観、内観、設備等)には、施工例が含まれている場合があります。物件詳細については、掲載の不動産会社宛にお問合せください。
掲載期限まであと13日
外観・室内・設備(5枚)
その他(8枚)
物件概要
| 物件名 | 香川県丸亀市津森町の新築売戸建住宅 | ||||
|---|---|---|---|---|---|
| 所在地 | 香川県丸亀市津森町 | ||||
| 交通 |
JR予讃線 「丸亀」駅 徒歩19分 JR予讃線 「讃岐塩屋」駅 徒歩23分 | ||||
| 構造および階数 | 木造・2階建 | 建ぺい率・容積率 | 60.00%・200.00% | ||
| 完成予定日 | 2026年03月 | 入居可能予定日 | 2026年04月下旬(21日~末日)(予定) | ||
| 土地権利 | 所有権 | ||||
| 駐車場 | - | 国土法届出 | - | ||
| 私道負担・道路 | - | 道路付け | 北 5.5m 公道 接面18.4m西 4.7m 公道 接面10.4m | ||
| 地目 | 宅地 | 都市計画 | 非線引区域 | ||
| 取引態様 | 売主 | 用途地域 | 1種住居 | ||
| 施工会社 | 備考に記載 | ||||
| 建築確認番号 | 第確R07-1559号 | ||||
| 設備 | 収納スペース・フローリング・浴室乾燥機・シャンプードレッサー・ウォシュレット・システムキッチン・カウンターキッチン・モニタ付インターホン・クロゼット・トイレ2ヶ所・床下収納・IHクッキングヒータ・浄水器・食器洗浄乾燥機・複層ガラス・電気・上水道・下水道・太陽光発電システム | ||||
| 備考 | 【建築中物件フェア注意事項】■2026/4/30までのご契約のお客様■対象の建築中建売物件を購入された方■契約後、お客様の都合により解約に至った場合、権利は無効。■本権利の他人に譲渡や金銭や他の物品との交換は不可■その他のキャンペーンと併用不可太陽光発電システム6.60kW込みでの販売も可能、その際の価格は+100万円になります。 ※お客様の屋根を当社にお貸しいただき太陽光発電システムを設置する「屋根貸しシステム」をご利用頂く事が価格の条件です。 ※太陽光発電システムは発電開始して10年経過後に無償で譲渡します。 ※太陽光発電付きでの購入も可能で、その場合は太陽光売電収入はお客様が得る事になります。(1)【サクサク内覧コース】(所要時間:30分程度)プランのご説明、その他のご質問その場でお答えします。(2)【じっくり内覧コース】(所要時間:60分~90分程度)サクサク内覧コースの内容+住宅ローンのご提案等のご相談何でも承ります。資料をご提示の上しっかりご説明させて頂き見積もお作り致します。・施工会社:株式会社グリーンエナジー・ライフ・私道負担:なし・他交通手段:城西高校前停歩8分・【建築中物件フェア】人気物件は完成前に売れています!今ならリビングエアコン特典付き | ||||
情報更新日:2025/12/03 次回更新予定日:情報更新日より14日以内
販売概要
| 販売価格 | 2,498万円 お問い合わせはこちら | ||||
|---|---|---|---|---|---|
| 販売戸数/総戸数 | -/- | ||||
| 最多価格帯 | - | ||||
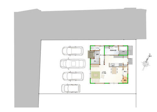
| 間取り | 4LDK | ||||
| 建物面積 | 104.88㎡ | 土地面積 | 195.58㎡ | ||
| その他施設費用、償却費 | - / - | ||||
| その他費用 | - | ||||
会社情報
| お問い合わせ先 |
いえとち本舗 高松本店 (株)グリーンエナジー・ライフ 050-1871-1040 上記の電話番号にお問合せください。(携帯・PHS 可) 【物件番号】6988421073 | ||||
|---|---|---|---|---|---|
| 会社概要 |
いえとち本舗 高松本店 (株)グリーンエナジー・ライフ[国土交通大臣免許(1)第10603号] 香川県高松市林町1532-3サンライズ第一ビル103 【所属団体】 (公社)全日本不動産協会、四国地区不動産公正取引協議会 | ||||
この物件の地図・周辺環境
このアイコンは物件のおおよその位置を表しており、実際の場所と異なる場合がございます。詳しくは不動産会社に直接ご確認ください。
取り扱い不動産会社
- 電話番号
- 050-1871-1040
- 営業時間
- 10:00~18:00
- 定休日
- 火曜日・水曜日・年末年始、GW、夏季休暇
- 物件番号
- 6988421073
掲載期限まであと13日
丸亀駅の口コミ
治安・安全
3.0
丸亀市自体、治安がいいとも言えないところもあり、治安安全は気になった。 人通りがあまりにも少ないのはある意味不安ではある。 特に夜は街灯も消えるので女性は怖いと思う。
住宅ローンシミュレーション
住宅ローン設定
物件価格
返済期間
頭金
ボーナス払(年1回)
※
※物件価格の80%以下でお借入れの場合
※50歳以下で一般団信をご選択の場合
※住宅ローン金利優遇割適用後の変動金利(全期間引き下げプラン)
※実際のお借入日の金利により変動します。
※審査の結果によっては保証付金利プランとなる場合があり、この場合は上記とは異なる金利となります。
※別途借入金額の2.20%(税込)の事務手数料が発生します。
ボーナス払 | 35年間返済 | 30年間返済 | 25年間返済 | 20年間返済 | 15年間返済 | 10年間返済 |
|---|---|---|---|---|---|---|
0万円 | -円/月 | -円/月 | -円/月 | -円/月 | -円/月 | -円/月 |
5万円 | -円/月 | -円/月 | -円/月 | -円/月 | -円/月 | -円/月 |
10万円 | -円/月 | -円/月 | -円/月 | -円/月 | -円/月 | -円/月 |
15万円 | -円/月 | -円/月 | -円/月 | -円/月 | -円/月 | -円/月 |
20万円 | -円/月 | -円/月 | -円/月 | -円/月 | -円/月 | -円/月 |
25万円 | -円/月 | -円/月 | -円/月 | -円/月 | -円/月 | -円/月 |
30万円 | -円/月 | -円/月 | -円/月 | -円/月 | -円/月 | -円/月 |
ボーナス払 | 35年間返済 | 30年間返済 | 25年間返済 | 20年間返済 | 15年間返済 | 10年間返済 |
|---|---|---|---|---|---|---|
0万円 | -円/月 | -円/月 | -円/月 | -円/月 | -円/月 | -円/月 |
5万円 | -円/月 | -円/月 | -円/月 | -円/月 | -円/月 | -円/月 |
10万円 | -円/月 | -円/月 | -円/月 | -円/月 | -円/月 | -円/月 |
15万円 | -円/月 | -円/月 | -円/月 | -円/月 | -円/月 | -円/月 |
20万円 | -円/月 | -円/月 | -円/月 | -円/月 | -円/月 | -円/月 |
25万円 | -円/月 | -円/月 | -円/月 | -円/月 | -円/月 | -円/月 |
30万円 | -円/月 | -円/月 | -円/月 | -円/月 | -円/月 | -円/月 |
- ・金利は、今後35年間変動しない仮定のもと元利均等返済方式で計算しております。
- ・実際の金利は、各金融機関のホームページをご参照ください。
- ・ローン契約の際には、手数料や印紙税などの諸費用が別途かかります。
- ・ボーナス支払総額が総支払額の50%を超えている場合、上記の表では「ローン不可」となります。
- ・シミュレーションを利用し、それが原因で利用者が受けたいかなる損害についても当社は一切責任を負いません。あらかじめご了承ください。














