新築一戸建て-REAL AGENT STYLE- 長津田町 新築戸建て全3棟の詳細情報
4,780万円~4980万円
月々のローン返済額を試算外観・室内・設備(18枚)
物件概要
| 物件名 | -REAL AGENT STYLE- 長津田町 新築戸建て全3棟 | ||||
|---|---|---|---|---|---|
| 所在地 | 神奈川県横浜市緑区長津田町 | ||||
| 交通 |
東急田園都市線「長津田」駅 徒歩8分 東急田園都市線「つくし野」駅 徒歩14分 JR横浜線「成瀬」駅 徒歩23分 | ||||
| 構造および階数 | 木造3階建 | 建ぺい率・容積率 | 建ぺい率60%、容積率200% | ||
| 完成予定日 | 令和7年2月完成済 | 入居可能予定日 | 相談 | ||
| 土地権利 | 所有権 | ||||
| 駐車場 | 1台 | 国土法届出 | - | ||
| 地目 | 宅地 | 都市計画 | 市街化区域 | ||
| 道路付け | 北側約2.6m公道 | 機構融資 | 機構融資利用可(フラット35S利用可) | ||
| 取引態様 | 株式会社リアルエージェント(専任媒介) | 用途地域 | 第一種住居地域 | ||
| 施工会社 | - | ||||
| 建築確認番号 | 第2024SBC-確00567Y号他 | ||||
| 設備 | 東京電力、公営水道、本下水、都市ガス | ||||
| 備考 |
【-Pickup-】 ◆浴室暖房乾燥機付き、広々とした1坪タイプバスルーム! ◆食洗機、浄水器付き、開放的なペニンシュラキッチン! ◆結露防止、断熱性に優れたLow-Eペアガラスを全居室に使用! ◆ハンドシャワー水栓付き洗面化粧台! ◆カラーTVモニター付きインターホン! ◆住宅金融支援機構フラット35S適合住宅! ◆建物10年、地盤20年、第3者機関による安心の長期保証付き! ■□■~堂々完成!ご内見できます!~■□■ 当日のご見学、ご自宅や、物件の最寄駅等にお迎えにあがる事も可能です! 朝早く、夜遅くでもお気軽にお申し付け下さい!(水曜日定休) ■□■~個別資金相談会も開催中~■□■ 住宅ローンはいくらまで組めるの?住宅購入時の諸費用、月々の支払額は?個人事業主、短い勤続年数でも住宅ローンは組めるの? 住宅購入に関する税金はどんなものがあるの?頭金がなくても住宅購入はできるの?...etc 何でもお気軽にご相談下さい! 当店のファイナンシャルプランナーをはじめ、資金計画の担当がお客様の視点から最善のご提案をさせて頂きます! ●二路線が通る長津田駅徒歩8分。商業施設や学校なども徒歩圏内の好立地!全棟WIC・南バルコニー有! ●田園都市線で嬉しい2沿線乗り入れの長津田、都内はもちろん横浜にも好アクセス!C号棟は西側隣地通路で角地のような開放感! ●堂々完成、ご内見できます!ご見学希望等はお気軽にお問い合わせください。 | ||||
情報更新日:2025/12/15 次回更新予定日:2025/12/21
販売概要
| 販売価格 | 4,780万円~4980万円 お問い合わせはこちら | ||||
|---|---|---|---|---|---|
| 販売スケジュール | 販売中 | ||||
| 販売戸数/総戸数 | 3戸/3戸 | ||||
| 最多価格帯 | - | ||||
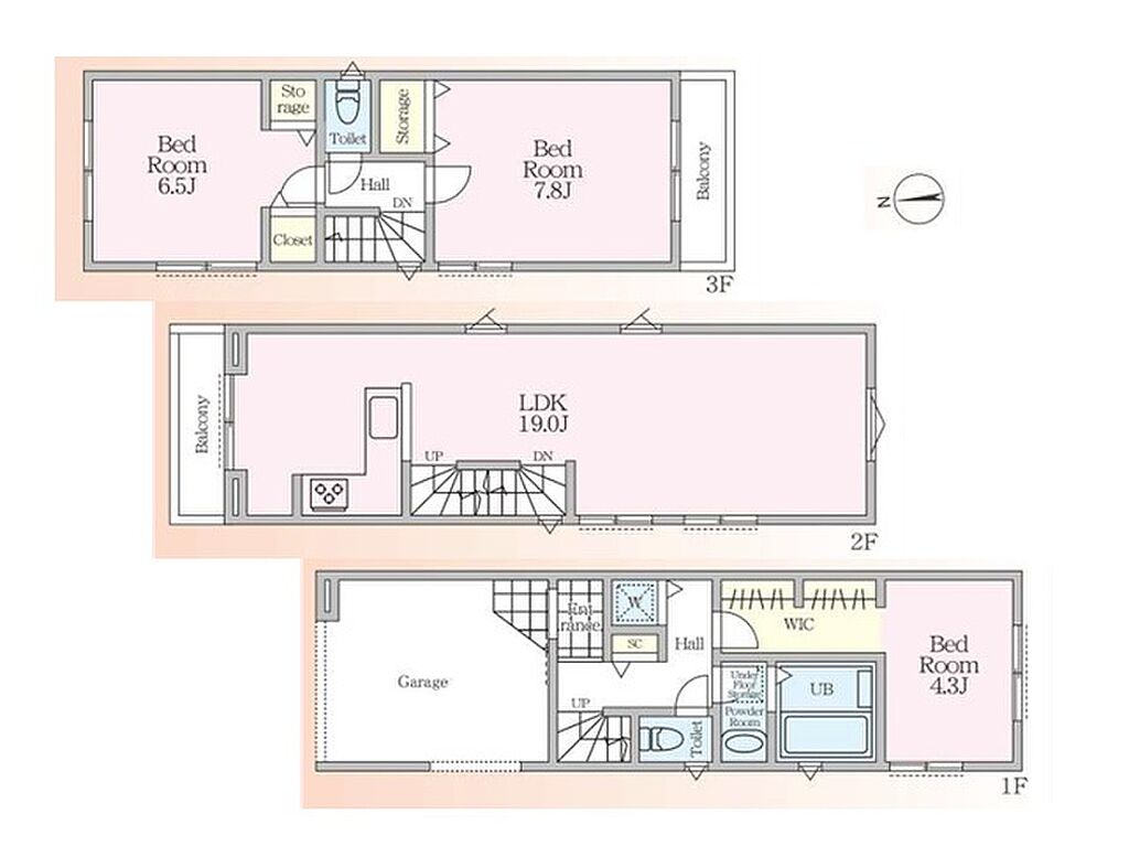
| 間取り | 3LDK | ||||
| 建物面積 | 102.15m2~103.82m2 | 土地面積 | 56.01m2~58.77m2 | ||
| その他面積 | - | ||||
| その他施設費用、償却費 | - | ||||
| その他費用 | 【保証金、敷金】:- | ||||
| 登録受付 | - | 抽選日 | - | ||
| モデルルーム情報 | - | ||||
会社情報
| 売主 | - | ||||
|---|---|---|---|---|---|
| お問い合わせ先 |
045-577-0771 0037-619-00531(無料通話) 上記の電話番号にお問合せください。(携帯・PHS 可) ※光IP 電話、及びIP 電話からはご利用になれません 光IP電話、及びIP電話をご利用のお客様は以下へご連絡ください。 045-577-0771 TEL:045-577-0771 【物件番号】1707753-0000229 | ||||
| 会社概要 |
株式会社リアルエージェント 新横浜センター[神奈川県知事 (3) 第 28428 号] 神奈川県横浜市港北区新横浜2-2-8 アーバンセンター新横浜9F 【所属団体】 (公社)神奈川県宅地建物取引業協会 | ||||
取り扱い不動産会社
045-577-0771
- 電話番号
- 045-577-0771
- 物件番号
- 1707753-0000229
電話で問い合わせる(無料)お急ぎの方はこちらから!
物件お問い合わせ専用ダイヤル
受付:- 携帯・PHS可
※携帯・PHS可。光IP電話、及びIP電話からはご利用になれません。
長津田駅の口コミ
お買い物・飲食
2.0
食品購入には特段不便しないのですが、衣服も購入できるようなディスカウントストアがありません。昔はマルエツで衣服なども売られていたのですが….今は皆さんみなみ台のアピタに行ったり、電車に乗って青葉台や南町田まで行かれているようです。
治安・安全
4.0
パチンコや居酒屋がないことが、決め手となりました。駅前ですが、酔っぱらいや奇声をあげる人もいないので、住みやすいと思います。
住宅ローンシミュレーション
住宅ローン設定
物件価格
返済期間
頭金
ボーナス払(年1回)
※
※物件価格の80%以下でお借入れの場合
※50歳以下で一般団信をご選択の場合
※住宅ローン金利優遇割適用後の変動金利(全期間引き下げプラン)
※実際のお借入日の金利により変動します。
※審査の結果によっては保証付金利プランとなる場合があり、この場合は上記とは異なる金利となります。
※別途借入金額の2.20%(税込)の事務手数料が発生します。
ボーナス払 | 35年間返済 | 30年間返済 | 25年間返済 | 20年間返済 | 15年間返済 | 10年間返済 |
|---|---|---|---|---|---|---|
0万円 | -円/月 | -円/月 | -円/月 | -円/月 | -円/月 | -円/月 |
5万円 | -円/月 | -円/月 | -円/月 | -円/月 | -円/月 | -円/月 |
10万円 | -円/月 | -円/月 | -円/月 | -円/月 | -円/月 | -円/月 |
15万円 | -円/月 | -円/月 | -円/月 | -円/月 | -円/月 | -円/月 |
20万円 | -円/月 | -円/月 | -円/月 | -円/月 | -円/月 | -円/月 |
25万円 | -円/月 | -円/月 | -円/月 | -円/月 | -円/月 | -円/月 |
30万円 | -円/月 | -円/月 | -円/月 | -円/月 | -円/月 | -円/月 |
ボーナス払 | 35年間返済 | 30年間返済 | 25年間返済 | 20年間返済 | 15年間返済 | 10年間返済 |
|---|---|---|---|---|---|---|
0万円 | -円/月 | -円/月 | -円/月 | -円/月 | -円/月 | -円/月 |
5万円 | -円/月 | -円/月 | -円/月 | -円/月 | -円/月 | -円/月 |
10万円 | -円/月 | -円/月 | -円/月 | -円/月 | -円/月 | -円/月 |
15万円 | -円/月 | -円/月 | -円/月 | -円/月 | -円/月 | -円/月 |
20万円 | -円/月 | -円/月 | -円/月 | -円/月 | -円/月 | -円/月 |
25万円 | -円/月 | -円/月 | -円/月 | -円/月 | -円/月 | -円/月 |
30万円 | -円/月 | -円/月 | -円/月 | -円/月 | -円/月 | -円/月 |
- ・金利は、今後35年間変動しない仮定のもと元利均等返済方式で計算しております。
- ・実際の金利は、各金融機関のホームページをご参照ください。
- ・ローン契約の際には、手数料や印紙税などの諸費用が別途かかります。
- ・ボーナス支払総額が総支払額の50%を超えている場合、上記の表では「ローン不可」となります。
- ・シミュレーションを利用し、それが原因で利用者が受けたいかなる損害についても当社は一切責任を負いません。あらかじめご了承ください。


































