一戸建て鳴滝泉谷町(宇多野駅) 4800万円の詳細情報
4800万円
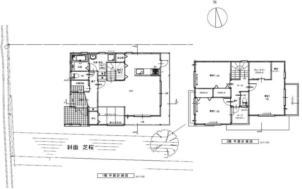
月々のローン返済額を試算京都市右京区で80坪超の土地に新築2階建てが完成しました!
外観・室内・設備(10枚)
物件概要
| 物件名 | 鳴滝泉谷町(宇多野駅) 4800万円 | ||||
|---|---|---|---|---|---|
| 所在地 | 京都府京都市右京区鳴滝泉谷町 | ||||
| 交通 |
京福電鉄北野線「宇多野」歩10分 京福電鉄北野線「鳴滝」歩14分 | ||||
| 構造および階数 | 木造2階建 | 建ぺい率・容積率 | 40%・60% | ||
| 完成予定日 | 2025年4月 | 入居可能予定日 | 即引渡可 | ||
| 土地権利 | 所有権 | ||||
| 駐車場 | - | 国土法届出 | - | ||
| 地目 | - | 道路付け | 共有持分274㎡×(1/22)、西4m幅(接道幅11.4m) | ||
| 機構融資 | - | 取引態様 | 仲介 | ||
| 用途地域 | - | ||||
| 施工会社 | - | ||||
| 建築確認番号 | - | ||||
| 設備 | 駐車2台可 / 即引渡可 / LDK20畳以上 / 土地50坪以上 / システムキッチン / 浴室乾燥機 / 全居室収納 / 閑静な住宅地 / 庭 / シャワー付洗面化粧台 / 対面式キッチン / トイレ2ヶ所 / 浴室1坪以上 / 2階建 / 2面以上バルコニー / 南面バルコニー / 温水洗浄便座 / 浴室に窓 / TVモニタ付インターホン / 緑豊かな住宅地 / 全居室フローリング / ウッドデッキ / パントリー(食器・食品の収納庫) / ウォークインクローゼット / 全居室6畳以上 / リビング階段 / 都市ガス / シューズインクローク / ルーフバルコニー / 床暖房 / 食器洗乾燥機 | ||||
| その他制限事項 | セットバック:済、景観法による規制有、宅地造成工事規制区域 | ||||
| 備考 | セットバック:済、景観法による規制有、宅地造成工事規制区域 / 担当者:西山、設備:公営水道、本下水、都市ガス、駐車場:カーポート | ||||
情報更新日:2025/10/25 次回更新予定日:情報提供より8日以内
販売概要
| 販売価格 | 4800万円 お問い合わせはこちら | ||||
|---|---|---|---|---|---|
| 販売スケジュール | - | ||||
| 販売戸数/総戸数 | 1戸/- | ||||
| 最多価格帯 | - | ||||
| 間取り | 3LDK | ||||
| 建物面積 | 110.96㎡ | 土地面積 | 271.52㎡(登記) | ||
| その他施設費用、償却費 | - | ||||
| その他費用 | 取引にかかる費用:仲介手数料3%+6万円+消費税(10%)要、表示登記費用等別途 | ||||
| 登録受付 | - | 抽選日 | - | ||
| モデルルーム情報 | - | ||||
| 取引条件有効期限 | - | ||||
会社情報
| お問い合わせ先 |
(有)親和エステート 0120-881649(無料通話) 上記の電話番号にお問合せください。(携帯・PHS 可) 【物件番号】78210701 | ||||
|---|---|---|---|---|---|
| 会社概要 |
(有)親和エステート[京都府知事(4)第011943号] - | ||||
取り扱い不動産会社
- 電話番号
- 0120-881649
- 物件番号
- 78210701
宇多野駅の口コミ
治安・安全
4.0
ほどよく田舎なので治安は悪くないです。 ただツーリングなどのバイクはよく走ってるので、その辺りはうるさかったりします
治安・安全
3.0
北山といえば、治安が良く、変な人が、いない。周辺もオシャレな店が多く、街並みもオシャレでカフェもあり、住みやすい。
住宅ローンシミュレーション
住宅ローン設定
物件価格
返済期間
頭金
ボーナス払(年1回)
※
※物件価格の80%以下でお借入れの場合
※50歳以下で一般団信をご選択の場合
※住宅ローン金利優遇割適用後の変動金利(全期間引き下げプラン)
※実際のお借入日の金利により変動します。
※審査の結果によっては保証付金利プランとなる場合があり、この場合は上記とは異なる金利となります。
※別途借入金額の2.20%(税込)の事務手数料が発生します。
ボーナス払 | 35年間返済 | 30年間返済 | 25年間返済 | 20年間返済 | 15年間返済 | 10年間返済 |
|---|---|---|---|---|---|---|
0万円 | -円/月 | -円/月 | -円/月 | -円/月 | -円/月 | -円/月 |
5万円 | -円/月 | -円/月 | -円/月 | -円/月 | -円/月 | -円/月 |
10万円 | -円/月 | -円/月 | -円/月 | -円/月 | -円/月 | -円/月 |
15万円 | -円/月 | -円/月 | -円/月 | -円/月 | -円/月 | -円/月 |
20万円 | -円/月 | -円/月 | -円/月 | -円/月 | -円/月 | -円/月 |
25万円 | -円/月 | -円/月 | -円/月 | -円/月 | -円/月 | -円/月 |
30万円 | -円/月 | -円/月 | -円/月 | -円/月 | -円/月 | -円/月 |
ボーナス払 | 35年間返済 | 30年間返済 | 25年間返済 | 20年間返済 | 15年間返済 | 10年間返済 |
|---|---|---|---|---|---|---|
0万円 | -円/月 | -円/月 | -円/月 | -円/月 | -円/月 | -円/月 |
5万円 | -円/月 | -円/月 | -円/月 | -円/月 | -円/月 | -円/月 |
10万円 | -円/月 | -円/月 | -円/月 | -円/月 | -円/月 | -円/月 |
15万円 | -円/月 | -円/月 | -円/月 | -円/月 | -円/月 | -円/月 |
20万円 | -円/月 | -円/月 | -円/月 | -円/月 | -円/月 | -円/月 |
25万円 | -円/月 | -円/月 | -円/月 | -円/月 | -円/月 | -円/月 |
30万円 | -円/月 | -円/月 | -円/月 | -円/月 | -円/月 | -円/月 |
- ・金利は、今後35年間変動しない仮定のもと元利均等返済方式で計算しております。
- ・実際の金利は、各金融機関のホームページをご参照ください。
- ・ローン契約の際には、手数料や印紙税などの諸費用が別途かかります。
- ・ボーナス支払総額が総支払額の50%を超えている場合、上記の表では「ローン不可」となります。
- ・シミュレーションを利用し、それが原因で利用者が受けたいかなる損害についても当社は一切責任を負いません。あらかじめご了承ください。
※価格は物件の代金総額を表示しており、消費税が課税される場合は税込み価格です。 (1000円未満は切り上げ。)
※写真に写っている、またはパース(絵)や間取り図に描かれている家具や車などは、特にコメントがない場合、販売価格に含まれません。
※敷地権利が定期借地権のものは価格に権利金を含みます。
※建築条件付き土地価格には、建物価格は含まれません。
※物件情報は、原則として情報提供日の2日前に最終確認した情報です。
※完成予想図はいずれも外構、植栽、外観等実際のものとは多少異なることがあります。
※モデルルーム・モデルハウス・展示場・ショールームの画像の場合、今回販売の物件と異なる場合があります。
※CG合成の画像の場合、実際とは多少異なる場合があります。
※物件特徴:販売戸数が複数の物件は、全ての住戸に該当しない項目もあります。
※0800で始まる電話番号は通話料無料です。また、サービス検証のため当該番号の利用履歴を個人が特定できない範囲で取得しています。予めご了承ください。
※完成後1年以上を経過した未入居物件が掲載される場合があります。ご了承ください。
※新着:物件情報が「SUUMO」に掲載された日から1週間表示されます。
※価格更新:物件価格が変更された日から1週間表示されます。
※販売予定物件はすべて、販売開始するまで契約または予約の申込みはできません。
※購入の前には物件内容や契約条件についてご自身で十分な確認をしていただくようにお願いいたします。
※建築条件土地の情報内に掲載されている、建物プラン例は、土地購入者の設計プランの参考の一例であって、プランの採用可否は任意です。
※土地(建築条件なし)で「建物プラン例」が表記してある時、そのプラン例は特定の建築請負会社によるもので、当該建築請負会社以外で建てた場合、同様のものが同価格で建てられるとは限りません。また建築請負会社を特定するものではありません。
※建築条件付き土地とは、その土地に建築する建物の建築請負契約が、一定期間内に成立することを条件として売買される土地のことをいいます。建築請負契約成立に向けて設計プランを協議するため、土地購入者が自己の希望する建物の設計協議をするために必要な相当の期間の交渉期間が設定され、その期間内で希望を満たすプランが実現できたかどうかにより結論を出します。なお、この期間は概ね3ヶ月程度とされています。納得のいくプランが出来ず、建築請負契約が成立しない場合、土地売買契約は白紙に戻り、土地契約にかかった代金(土地代金、手付金など)は名目のいかんに関わらず、全て返却されます。












