NEW一戸建て宮崎市永楽町第4 全2棟 新築分譲住宅 クレイドルガーデンの詳細情報
2988万円・3088万円
月々のローン返済額を試算この物件は未完成のため、掲載写真(外観、内観、設備等)には、施工例が含まれている場合があります。物件詳細については、掲載の不動産会社宛にお問合せください。
〔 全2棟!新規物件 〕☆リビング階段・収納豊富☆頭金0円で月々家賃並
外観・室内・設備(28枚)

同形状・同仕様写真(その他内観)
(2号棟)同形状・同仕様シューズクローゼットは飽きのこないデザインと豊富な収納力で便利にお使いいただけます。マスクなども常備しておけば、お出かけ前にサッと準備が整います♪

同形状・同仕様写真(キッチン)
(1号棟)同形状・同仕様火力が強く、お掃除も簡単。毎日のお料理の時間短縮に。火を使わないのでお子様のお料理のお手伝いも◎IH2口、ラジエントヒーター、魚グリルが備わっています♪

同形状・同仕様写真(その他内観)
(1号棟)同形状・同仕様大きな寝具を入れてもゆとりの広さがあり、デスクを置いて仕事や趣味も楽しめます。風通しに配慮した窓設計で、寝室だけでなく日中過ごすにも快適な居室です♪

同形状・同仕様写真(その他内観)
(1号棟)同形状・同仕様クローゼットはスーツ類から丈の長いコート類まで何でも収納できる便利なスペースです。衣装ケースと併用することでセーター類なども収納でき自分だけのスペースにカスタマイズできます♪

同形状・同仕様写真(その他内観)
(2号棟)同形状・同仕様ペアガラス仕様のサッシはセキュリティだけでなく、断熱性に優れ、結露しにくくて◎バルコニー側以外にも窓を配置した2面採光で光がしっかりと入ってきます♪

同形状・同仕様写真(その他内観)
(1号棟)同形状・同仕様清潔な空間を保ちたいトイレはオフホワイトでまとめました。毎日使う場所だからこそお手入れも楽々にできる機能が搭載されております。汚れが付着しにくい便器はお掃除も楽々です♪

*☆―TVカメラ付きインターホン―☆*
来訪者の映像と音声をしっかり確認できる安心のモニター付き♪録画機能もあるので、留守中の訪問もあとからチェックできます。夜間もLEDライトで顔が見えやすく、防犯面でも心強い設備です。

*☆―浴室暖房乾燥機ー☆*
浴室暖房乾燥機付きで、雨の日や花粉の季節でも安心して洗濯物を乾かせます。暖房機能で冬場の入浴も快適♪さらにタイマー付きで使いやすさも◎毎日の家事をサポートしてくれる嬉しい設備です。

*☆―床下収納庫―☆*
キッチン足元には、便利な床下収納を完備!普段使いの調味料や保存食のストックなどをすっきり収納できます。仕切り付きで整理整頓しやすく、収納ケースは取り外して水洗いも可能なので、清潔に保てるのも嬉しいポイントです。

*☆―給湯リモコンー☆*
キッチンと浴室のリモコンには通話機能が付いており、離れていても声でやりとりが可能です。さらに、ボイス機能付きで、お風呂の湯はり完了を音声とメロディでお知らせしてくれる便利な仕様♪家事の合間でも気づきやすく、ご家族との連携にも役立つ安心の設備です。

*☆―浄水器―☆*
蛇口の先端に浄水器を内蔵しているので、見た目もスッキリ。場所を取らず、飲料水としても安心してお使いいただけます。さらにホースを引き出せるシャワータイプで、シンクの隅々まで届き、洗い物やお掃除もラクラク♪毎日の家事を快適にサポートしてくれる嬉しい設備です。

*☆―地盤調査・地盤改良―☆*
すべての建物で、外部機関による地盤調査を一棟ずつ実施しています。地盤が弱いと判断された場合は、アーネストワン様基準の「怪しきところは補強の杭を打つ」に基づき、しっかりと地盤改良工事を実施。見えない部分にも妥協せず、安心して長く暮らしていただける住まいを提供しています。

*☆―配筋工事・生コンクリート打設―☆*
フラット35の基準では立ち上がり主筋は13mm以上とされていますが、アーネストワン様ではさらに強度にこだわり、16mmの鉄筋を採用。見えない部分にも高品質を追求しています。生コンクリートの品質や打設状況も細かく確認し、丈夫で安心できる基礎づくりを徹底しています。

*☆―基礎完了・土台敷き―☆*
建物の荷重をしっかりと地盤に伝える「ベタ基礎」工法を採用。家と同じ床面積のコンクリートを打設し、より強固な基礎を実現しています。また、土台敷きの際には、水平に設置されているかを現場監督が立ち会って確認。見えない部分にも徹底した品質管理を行っています。

*☆―上棟・金物―☆*
加工ミスを防ぎ、安定した品質が確保できるプレカット材を採用。構造部材の接合には、性能認定を受けた金物を使用し、耐震性を高めています。さらに、地震時に強い引抜き力がかかる柱には、基礎に埋め込んだホールダウンアンカーで基礎と軸組をしっかり緊結。安心の構造を支えています。
周辺環境・アクセス(10枚)
物件概要
| 物件名 | 宮崎市永楽町第4 全2棟 新築分譲住宅 クレイドルガーデン | ||||
|---|---|---|---|---|---|
| 所在地 | 宮崎県宮崎市永楽町 | ||||
| 交通 |
JR日豊本線「宮崎」歩14分 JR日豊本線「南宮崎」歩25分 宮崎交通「宮中前」歩3分 | ||||
| 構造および階数 | 木造スレートまたはアスファルトシングル葺き2階建て | 建ぺい率・容積率 | 建ぺい率/1号棟:60%、2号棟:70% 容積率/200% | ||
| 完成予定日 | 2026年1月予定 | 入居可能予定日 | 2026年1月予定 | ||
| 土地権利 | 所有権 | ||||
| 駐車場 | - | 国土法届出 | - | ||
| 地目 | 宅地 | 道路付け | 道路幅:4.9m、アスファルト舗装 | ||
| 機構融資 | フラット35Sベーシック | 取引態様 | 仲介 | ||
| 用途地域 | 2種住居 | ||||
| 施工会社 | 東証一部上場企業 飯田グループ 株式会社アーネストワン | ||||
| 建築確認番号 | 第R07SHC119421・2号 | ||||
| 設備 | 設計住宅性能評価書 / 建設住宅性能評価書(新築時) / フラット35・S適合証明書 / 省エネルギー対策 / フラット35Sに対応 / 高気密高断熱住宅 / 地盤調査済 / 駐車2台可 / LDK18畳以上 / 年度内引渡可 / 省エネ給湯器 / ゴルフ場が近い / テニスコートが近い / スーパー 徒歩10分以内 / 南向き / システムキッチン / 浴室乾燥機 / 陽当り良好 / 全居室収納 / 角地 / 和室 / 庭 / シャワー付洗面化粧台 / 対面式キッチン / セキュリティ充実 / EV車充電設備 / 3面採光 / トイレ2ヶ所 / 自然素材使用 / 浴室1坪以上 / 2階建 / 南面バルコニー / 複層ガラス / 全室南向き / オートバス / 温水洗浄便座 / 床下収納 / 浴室に窓 / TVモニタ付インターホン / 節水型トイレ / 通風良好 / 全居室フローリング / ウォークインクローゼット / IHクッキングヒーター / リビング階段 / 全居室複層ガラスか複層サッシ / 全室2面採光 / 小学校 徒歩10分以内 / ルーフバルコニー / 平坦地 / 周辺交通量少なめ / オール電化 / 浄水器 / スマートキー / 高機能トイレ | ||||
| その他制限事項 | 景観地区、日影制限有 | ||||
| 備考 | 景観地区、日影制限有 / 担当者:後藤 隆祐、設備:九州電力、公営水道、本下水、オール電化、建築確認番号:第R07SHC119421・2号 | ||||
情報更新日:2025/10/28 次回更新予定日:情報提供より8日以内
販売概要
| 販売価格 | 2988万円・3088万円 お問い合わせはこちら | ||||
|---|---|---|---|---|---|
| 販売スケジュール | ◆マイホーム購入のスケジュール◆①購入申込、銀行事前審査、申込お客様のご要望をお聞かせ頂き、銀行のご提案をさせて頂きます。②重要事項説明、不動産売買契約株式会社アーネストワン宮崎営業所様にて契約を行って頂きます。③住宅ローン本申込決定して頂いた金融機関にて住宅ローンの本申込手続きを行って頂きます。また、火災保険のお申込みが必要ですので、お見積り依頼のお手続きをお願い申し上げます。④現地立ち合いアーネストワンご担当者様と共に建物内の傷や汚れ、不具合箇所がないか確認して頂きます。⑤住所移転手続き銀行のローン本申込の結果が出ましたら、新住所に変更をして頂きます。⑥金銭消費貸借契約、残金決済、所有権移転、引渡しローンの本申込を行って頂いた銀行にて、銀行との契約を行って頂きます。当日より土地と建物の所有権がお客様に移転し、お引渡しとなります。 | ||||
| 販売戸数/総戸数 | 2戸/2戸 | ||||
| 最多価格帯 | - | ||||
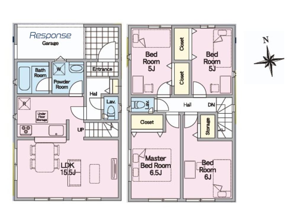
| 間取り | 4LDK | ||||
| 建物面積 | 97.2㎡・102.06㎡(29.40坪・30.87坪)(登記) | 土地面積 | 122.2㎡・141.71㎡(36.96坪・42.86坪)(登記) | ||
| その他施設費用、償却費 | - | ||||
| その他費用 | - | ||||
| 登録受付 | - | 抽選日 | - | ||
| モデルルーム情報 | (事前に必ずお問い合わせください)☆。――物件のご案内時~ご見学時の対応――。☆(1)全営業車に除菌スプレーを常備しております。(2)お子様連れも大歓迎です♪〇-・*・-ご見学の流れ-・*・-〇(1)【お気軽見学プラン】~所要時間:30分程度~お忙しいお客様向けのご見学プランをご用意!物件のご説明、その他のご質問などその場でお答えします。(2)【おまとめ見学プラン】~所要時間:60分程度~複数物件をまとめてご見学頂き、比較検討が可能なプラン(3)【トータルコーディネートプラン】~所要時間:90分程度~上記プラン内容+資金計画のご提案・住宅ローンのご案内までサポート!資料をご提示の上しっかりご説明させて頂き見積もお作り致します。また弊社提携の弁護士・現役銀行員やファイナンシャルプランナーによる無料相談も随時行っております♪〇-・*・-金融機関出身の社員多数在籍-・*・-〇他社で住宅ローンをお断りされた事がある方もぜひ、ご相談ください。最新情報と住宅ローン専門を武器に誠心誠意サポートさせて頂きます。過去の販売実績における提携住宅ローン(過去履歴や自己資金・勤続年数・シングル家庭、アルバイト、パート、年収等)や資金計画に自信があります。〇-・*・-オプション工事のご提案-・*・-〇当社では、手頃な価格でオプション工事を承っております。網戸、カーテンレール、テレビアンテナ、照明などお客様の快適な新生活をお手伝いさせていただきます♪お客様のニーズに寄り添い、トータルサポートをご提案し、豊富なラインナップから理想のアイテムをお選びいただけます。さらに、ご依頼いただいたお客様には豪華家電品をプレゼント!お気軽にお問い合わせください(*^-^*) | ||||
| 取引条件有効期限 | 2026年12月31日 | ||||
会社情報
| お問い合わせ先 |
(株)レスポンス宮崎支店 0120-126155(無料通話) 上記の電話番号にお問合せください。(携帯・PHS 可) 【物件番号】78685038 | ||||
|---|---|---|---|---|---|
| 会社概要 |
(株)レスポンス宮崎支店[国土交通大臣(1)第010525号] 宮崎県宮崎市橘通東3-1-11 アゲインビル1階 【所属団体】 国土交通大臣(1)第010525号 | ||||
取り扱い不動産会社
- 電話番号
- 0120-126155
- 受付
- 営業時間:9:00‐18:00 / 定休日:年中無休
- 物件番号
- 78685038
宮崎駅の口コミ
自然環境
3.0
徒歩でも行ける距離に「宮崎中央公園」があるので、気分転換に散歩したりしていました。 春はバーベキューしているグループも見られましたが、普段は公園には人がそこまでいないのでのんびり過ごすことも出来ます。
自然環境
2.0
自然があるわけでもないので、普通です。ただ、宮崎は車があれば海にも山にも近いので、自然豊かな生活を送るにはどこであってもあまり関係ないと思います。
住宅ローンシミュレーション
住宅ローン設定
物件価格
返済期間
頭金
ボーナス払(年1回)
※
※物件価格の80%以下でお借入れの場合
※50歳以下で一般団信をご選択の場合
※住宅ローン金利優遇割適用後の変動金利(全期間引き下げプラン)
※実際のお借入日の金利により変動します。
※審査の結果によっては保証付金利プランとなる場合があり、この場合は上記とは異なる金利となります。
※別途借入金額の2.20%(税込)の事務手数料が発生します。
ボーナス払 | 35年間返済 | 30年間返済 | 25年間返済 | 20年間返済 | 15年間返済 | 10年間返済 |
|---|---|---|---|---|---|---|
0万円 | -円/月 | -円/月 | -円/月 | -円/月 | -円/月 | -円/月 |
5万円 | -円/月 | -円/月 | -円/月 | -円/月 | -円/月 | -円/月 |
10万円 | -円/月 | -円/月 | -円/月 | -円/月 | -円/月 | -円/月 |
15万円 | -円/月 | -円/月 | -円/月 | -円/月 | -円/月 | -円/月 |
20万円 | -円/月 | -円/月 | -円/月 | -円/月 | -円/月 | -円/月 |
25万円 | -円/月 | -円/月 | -円/月 | -円/月 | -円/月 | -円/月 |
30万円 | -円/月 | -円/月 | -円/月 | -円/月 | -円/月 | -円/月 |
ボーナス払 | 35年間返済 | 30年間返済 | 25年間返済 | 20年間返済 | 15年間返済 | 10年間返済 |
|---|---|---|---|---|---|---|
0万円 | -円/月 | -円/月 | -円/月 | -円/月 | -円/月 | -円/月 |
5万円 | -円/月 | -円/月 | -円/月 | -円/月 | -円/月 | -円/月 |
10万円 | -円/月 | -円/月 | -円/月 | -円/月 | -円/月 | -円/月 |
15万円 | -円/月 | -円/月 | -円/月 | -円/月 | -円/月 | -円/月 |
20万円 | -円/月 | -円/月 | -円/月 | -円/月 | -円/月 | -円/月 |
25万円 | -円/月 | -円/月 | -円/月 | -円/月 | -円/月 | -円/月 |
30万円 | -円/月 | -円/月 | -円/月 | -円/月 | -円/月 | -円/月 |
- ・金利は、今後35年間変動しない仮定のもと元利均等返済方式で計算しております。
- ・実際の金利は、各金融機関のホームページをご参照ください。
- ・ローン契約の際には、手数料や印紙税などの諸費用が別途かかります。
- ・ボーナス支払総額が総支払額の50%を超えている場合、上記の表では「ローン不可」となります。
- ・シミュレーションを利用し、それが原因で利用者が受けたいかなる損害についても当社は一切責任を負いません。あらかじめご了承ください。
※価格は物件の代金総額を表示しており、消費税が課税される場合は税込み価格です。 (1000円未満は切り上げ。)
※写真に写っている、またはパース(絵)や間取り図に描かれている家具や車などは、特にコメントがない場合、販売価格に含まれません。
※敷地権利が定期借地権のものは価格に権利金を含みます。
※建築条件付き土地価格には、建物価格は含まれません。
※物件情報は、原則として情報提供日の2日前に最終確認した情報です。
※完成予想図はいずれも外構、植栽、外観等実際のものとは多少異なることがあります。
※モデルルーム・モデルハウス・展示場・ショールームの画像の場合、今回販売の物件と異なる場合があります。
※CG合成の画像の場合、実際とは多少異なる場合があります。
※物件特徴:販売戸数が複数の物件は、全ての住戸に該当しない項目もあります。
※0800で始まる電話番号は通話料無料です。また、サービス検証のため当該番号の利用履歴を個人が特定できない範囲で取得しています。予めご了承ください。
※完成後1年以上を経過した未入居物件が掲載される場合があります。ご了承ください。
※新着:物件情報が「SUUMO」に掲載された日から1週間表示されます。
※価格更新:物件価格が変更された日から1週間表示されます。
※販売予定物件はすべて、販売開始するまで契約または予約の申込みはできません。
※購入の前には物件内容や契約条件についてご自身で十分な確認をしていただくようにお願いいたします。
※建築条件土地の情報内に掲載されている、建物プラン例は、土地購入者の設計プランの参考の一例であって、プランの採用可否は任意です。
※土地(建築条件なし)で「建物プラン例」が表記してある時、そのプラン例は特定の建築請負会社によるもので、当該建築請負会社以外で建てた場合、同様のものが同価格で建てられるとは限りません。また建築請負会社を特定するものではありません。
※建築条件付き土地とは、その土地に建築する建物の建築請負契約が、一定期間内に成立することを条件として売買される土地のことをいいます。建築請負契約成立に向けて設計プランを協議するため、土地購入者が自己の希望する建物の設計協議をするために必要な相当の期間の交渉期間が設定され、その期間内で希望を満たすプランが実現できたかどうかにより結論を出します。なお、この期間は概ね3ヶ月程度とされています。納得のいくプランが出来ず、建築請負契約が成立しない場合、土地売買契約は白紙に戻り、土地契約にかかった代金(土地代金、手付金など)は名目のいかんに関わらず、全て返却されます。





























