一戸建て【セリタホームズ】新田の詳細情報
3040万円~3320万円
月々のローン返済額を試算【フェンス&家具付きの平屋物件!】暮らしの全部が車5分圏内に揃う便利な立地
外観・室内・設備(22枚)

【高性能樹脂窓】
窓は空気が出入りするため、家の中の暖かさ、涼しさにもっとも影響があります。熱伝導率の低いアルゴンガス入りの複層ガラスと樹脂サッシを利用することで、高い断熱性を実現。遮音効果も◎なので、お子さんが大きな声を出しても安心です。

【24時間換気システム】
お家の中の空気をキレイにするには換気が大切です。ただ、外の気温によっては窓を開けたくないこともありますよね。セリタホームズのお家は全室24時間換気システムを搭載しているので、キレイな空気環境を実現できます。超静音、超省エネ、コンパクト設計の「ルフロ400」が標準装備。
周辺環境・アクセス(9枚)
物件概要
| 物件名 | 【セリタホームズ】新田 | ||||
|---|---|---|---|---|---|
| 所在地 | 長野県千曲市大字新田716-3 | ||||
| 交通 |
しなの鉄道「屋代」歩20分 市内循環バス「ハリカ更埴店前」歩4分 しなの鉄道「千曲」歩33分 | ||||
| 構造および階数 | 木造2階建(2×4工法) | 建ぺい率・容積率 | 建ペい率:60%、容積率:200% | ||
| 完成予定日 | 2025年1月 | 入居可能予定日 | 相談 | ||
| 土地権利 | 所有権 | ||||
| 駐車場 | - | 国土法届出 | - | ||
| 地目 | 宅地 | 道路付け | 道路幅:12m、アスファルト舗装 | ||
| 機構融資 | - | 取引態様 | 売主 | ||
| 用途地域 | 工業 | ||||
| 施工会社 | セリタホームズ株式会社 | ||||
| 建築確認番号 | 第24NJK-10-00594号 | ||||
| 設備 | フラット35・S適合証明書 / 省エネルギー対策 / フラット35Sに対応 / 高気密高断熱住宅 / 駐車2台可 / 省エネ給湯器 / 山が見える / スーパー 徒歩10分以内 / 市街地が近い / システムキッチン / 浴室乾燥機 / 駅まで平坦 / LDK15畳以上 / 庭 / シャワー付洗面化粧台 / 対面式キッチン / 浴室1坪以上 / 2階建 / 複層ガラス / オートバス / 温水洗浄便座 / ロフト / 吹抜け / TVモニタ付インターホン / 節水型トイレ / 通風良好 / 全居室フローリング / IHクッキングヒーター / 全居室複層ガラスか複層サッシ / 全室2面採光 / テラス / 食器洗乾燥機 / 整備された歩道 / 高機能トイレ | ||||
| その他制限事項 | 景観法による規制有 | ||||
| 備考 | 景観法による規制有 / 担当者:石森 涼、設備:公営水道、本下水、個別LPG、建築確認番号:第24NJK-10-00594号 | ||||
情報更新日:2025/10/24 次回更新予定日:情報提供より8日以内
販売概要
| 販売価格 | 3040万円~3320万円 お問い合わせはこちら | ||||
|---|---|---|---|---|---|
| 販売スケジュール | - | ||||
| 販売戸数/総戸数 | 3戸/3戸 | ||||
| 最多価格帯 | - | ||||
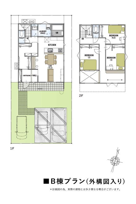
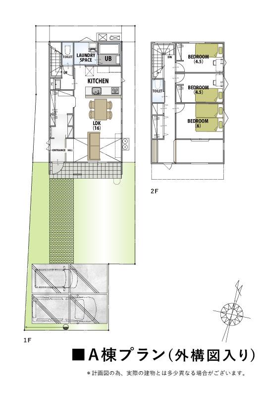
| 間取り | 2LDK~3LDK | ||||
| 建物面積 | 87.13㎡~99.37㎡ | 土地面積 | 151.78㎡~188.63㎡ | ||
| その他施設費用、償却費 | - | ||||
| その他費用 | - | ||||
| 登録受付 | - | 抽選日 | - | ||
| モデルルーム情報 | オープンハウス(事前に必ずお問い合わせください)日程/公開中時間/10:00~16:00◆◆~現地案内・モデルハウス見学プラン開催中!~◆◆お問い合わせの際に、下記①~④の中でお好きなコースをご記載ください。① 物件詳細コース (30分~)② 現地案内コース (30分~)③ モデルハウス見学コース (60分~)④ 物件詳細+現地案内+モデルハウス見学コース (120分~)―――――――――――――――――――もちろん、上記以外にもご要望があれば調整いたしますので、お気軽にお問い合わせください。ご見学は完全予約制とさせていただきます。下記の【資料請求(無料)】 【見学希望(無料)】 【電話で問い合わせ】からご予約ください。※店舗にはキッズコーナー・ベビーベッドもございますので、必要な場合はお気軽にお申し付けください。お子さんも一緒にご来場ください♪(ベビーベッドの数には限りがございますので、お問合せ下さい)※ご購入後の具体的なお支払いについてや、住宅ローンについてのご相談もお受けしておりますので、お金の面で不安がある方もまずはご相談ください。※その他にも気になる点やお困りのことなどがあれば、何でも聞いてください! | ||||
| 取引条件有効期限 | 2025年10月31日 | ||||
会社情報
| お問い合わせ先 |
セリタホームズ(株) 026-217-6110 上記の電話番号にお問合せください。(携帯・PHS 可) 【物件番号】75644145 | ||||
|---|---|---|---|---|---|
| 会社概要 |
セリタホームズ(株)[長野県知事(11)第002716号] 長野県長野市大字稲葉2185 【所属団体】 長野県知事(11)第002716号(公社)長野県宅地建物取引業協会会員 (公社)首都圏不動産公正取引協議会加盟 | ||||
取り扱い不動産会社
- 電話番号
- 026-217-6110
- 受付
- 営業時間:9:00~18:00 / 定休日:水曜日
- 物件番号
- 75644145
住宅ローンシミュレーション
住宅ローン設定
物件価格
返済期間
頭金
ボーナス払(年1回)
※
※物件価格の80%以下でお借入れの場合
※50歳以下で一般団信をご選択の場合
※住宅ローン金利優遇割適用後の変動金利(全期間引き下げプラン)
※実際のお借入日の金利により変動します。
※審査の結果によっては保証付金利プランとなる場合があり、この場合は上記とは異なる金利となります。
※別途借入金額の2.20%(税込)の事務手数料が発生します。
ボーナス払 | 35年間返済 | 30年間返済 | 25年間返済 | 20年間返済 | 15年間返済 | 10年間返済 |
|---|---|---|---|---|---|---|
0万円 | -円/月 | -円/月 | -円/月 | -円/月 | -円/月 | -円/月 |
5万円 | -円/月 | -円/月 | -円/月 | -円/月 | -円/月 | -円/月 |
10万円 | -円/月 | -円/月 | -円/月 | -円/月 | -円/月 | -円/月 |
15万円 | -円/月 | -円/月 | -円/月 | -円/月 | -円/月 | -円/月 |
20万円 | -円/月 | -円/月 | -円/月 | -円/月 | -円/月 | -円/月 |
25万円 | -円/月 | -円/月 | -円/月 | -円/月 | -円/月 | -円/月 |
30万円 | -円/月 | -円/月 | -円/月 | -円/月 | -円/月 | -円/月 |
ボーナス払 | 35年間返済 | 30年間返済 | 25年間返済 | 20年間返済 | 15年間返済 | 10年間返済 |
|---|---|---|---|---|---|---|
0万円 | -円/月 | -円/月 | -円/月 | -円/月 | -円/月 | -円/月 |
5万円 | -円/月 | -円/月 | -円/月 | -円/月 | -円/月 | -円/月 |
10万円 | -円/月 | -円/月 | -円/月 | -円/月 | -円/月 | -円/月 |
15万円 | -円/月 | -円/月 | -円/月 | -円/月 | -円/月 | -円/月 |
20万円 | -円/月 | -円/月 | -円/月 | -円/月 | -円/月 | -円/月 |
25万円 | -円/月 | -円/月 | -円/月 | -円/月 | -円/月 | -円/月 |
30万円 | -円/月 | -円/月 | -円/月 | -円/月 | -円/月 | -円/月 |
- ・金利は、今後35年間変動しない仮定のもと元利均等返済方式で計算しております。
- ・実際の金利は、各金融機関のホームページをご参照ください。
- ・ローン契約の際には、手数料や印紙税などの諸費用が別途かかります。
- ・ボーナス支払総額が総支払額の50%を超えている場合、上記の表では「ローン不可」となります。
- ・シミュレーションを利用し、それが原因で利用者が受けたいかなる損害についても当社は一切責任を負いません。あらかじめご了承ください。
※価格は物件の代金総額を表示しており、消費税が課税される場合は税込み価格です。 (1000円未満は切り上げ。)
※写真に写っている、またはパース(絵)や間取り図に描かれている家具や車などは、特にコメントがない場合、販売価格に含まれません。
※敷地権利が定期借地権のものは価格に権利金を含みます。
※建築条件付き土地価格には、建物価格は含まれません。
※物件情報は、原則として情報提供日の2日前に最終確認した情報です。
※完成予想図はいずれも外構、植栽、外観等実際のものとは多少異なることがあります。
※モデルルーム・モデルハウス・展示場・ショールームの画像の場合、今回販売の物件と異なる場合があります。
※CG合成の画像の場合、実際とは多少異なる場合があります。
※物件特徴:販売戸数が複数の物件は、全ての住戸に該当しない項目もあります。
※0800で始まる電話番号は通話料無料です。また、サービス検証のため当該番号の利用履歴を個人が特定できない範囲で取得しています。予めご了承ください。
※完成後1年以上を経過した未入居物件が掲載される場合があります。ご了承ください。
※新着:物件情報が「SUUMO」に掲載された日から1週間表示されます。
※価格更新:物件価格が変更された日から1週間表示されます。
※販売予定物件はすべて、販売開始するまで契約または予約の申込みはできません。
※購入の前には物件内容や契約条件についてご自身で十分な確認をしていただくようにお願いいたします。
※建築条件土地の情報内に掲載されている、建物プラン例は、土地購入者の設計プランの参考の一例であって、プランの採用可否は任意です。
※土地(建築条件なし)で「建物プラン例」が表記してある時、そのプラン例は特定の建築請負会社によるもので、当該建築請負会社以外で建てた場合、同様のものが同価格で建てられるとは限りません。また建築請負会社を特定するものではありません。
※建築条件付き土地とは、その土地に建築する建物の建築請負契約が、一定期間内に成立することを条件として売買される土地のことをいいます。建築請負契約成立に向けて設計プランを協議するため、土地購入者が自己の希望する建物の設計協議をするために必要な相当の期間の交渉期間が設定され、その期間内で希望を満たすプランが実現できたかどうかにより結論を出します。なお、この期間は概ね3ヶ月程度とされています。納得のいくプランが出来ず、建築請負契約が成立しない場合、土地売買契約は白紙に戻り、土地契約にかかった代金(土地代金、手付金など)は名目のいかんに関わらず、全て返却されます。





































