NEW新築売戸建住宅長野県松本市村井町南4丁目の新築売戸建住宅の詳細情報
掲載期限まであと12日
外観・室内・設備(6枚)
物件概要
| 物件名 | 長野県松本市村井町南4丁目の新築売戸建住宅 | ||||
|---|---|---|---|---|---|
| 所在地 | 長野県松本市村井町南4丁目 | ||||
| 交通 |
JR篠ノ井線 「村井」駅 徒歩11分 | ||||
| 構造および階数 | 木造・2階建 | 建ぺい率・容積率 | 60.00%・200.00% | ||
| 完成予定日 | 2025年09月 | 入居可能予定日 | - | ||
| 土地権利 | 所有権 | ||||
| 駐車場 | - | 国土法届出 | - | ||
| 私道負担・道路 | - | 道路付け | 北 6.0m | ||
| 地目 | 宅地 | 都市計画 | 市街化区域 | ||
| 取引態様 | 売主 | 用途地域 | 1種住居 | ||
| 施工会社 | 備考に記載 | ||||
| 建築確認番号 | 第24NJM-10-02108号 (令和7年3月1 | ||||
| 設備 | エアコン・照明器具・庭・ディンプルキー・電気・上水道・下水道・太陽光発電システム | ||||
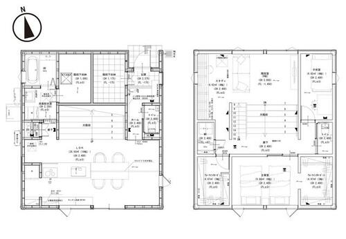
| 備考 | 「階段は上の階へ行くだけの場所ですか?」 この家に入った瞬間、その常識は覆ります。リビングの中心に構えるのは、光と風を通すダイナミックな「大階段」。友人を招いて段差に腰掛けホームパーティをしたり、日当たりの良い段でお子様が絵本を読んだり。今までの常識外の場が「居場所」になります。【なぜ、長野でこんな開放的な家が作れるのか?】 これだけの吹き抜け空間は冬の寒さがネックに。しかし、ホクシンハウスの特許技術『FB-6工法』なら話は別。エアコン1台で家中の温度を均一に保つため、足元から天井まで春のような暖かさ。「デザイン」のために「快適さ」を犠牲にする必要はありません!・施工会社:ホクシンハウス株式会社・全ての居場所、全ての光の中心に、生活の舞台となる「大階段」を配した住まいです。家庭用エアコン1台で夏も冬も家中快適。開放的に楽しめる階段を居場所にする家 | ||||
情報更新日:2025/11/22 次回更新予定日:情報更新日より14日以内
販売概要
| 販売価格 | 4,980万円 お問い合わせはこちら | ||||
|---|---|---|---|---|---|
| 販売戸数/総戸数 | -/- | ||||
| 最多価格帯 | - | ||||
| 間取り | 2LDK | ||||
| 建物面積 | 107.64㎡ | 土地面積 | 107.64㎡ | ||
| その他施設費用、償却費 | - / - | ||||
| その他費用 | - | ||||
会社情報
| お問い合わせ先 |
ホクシンハウス(株) 0120-23-2358(無料通話) 上記の電話番号にお問合せください。(携帯・PHS 可) 【物件番号】6988473060 | ||||
|---|---|---|---|---|---|
| 会社概要 |
ホクシンハウス(株)[長野県知事免許(4)第5173号] 長野県長野市大字西尾張部322番地1長野本社 【所属団体】 (公社)長野県宅地建物取引業協会、(公社)首都圏不動産公正取引協議会 | ||||
この物件の地図・周辺環境
このアイコンは物件のおおよその位置を表しており、実際の場所と異なる場合がございます。詳しくは不動産会社に直接ご確認ください。
取り扱い不動産会社
- 電話番号
- 0120-23-2358
- 営業時間
- 09:00~18:00
- 定休日
- 火曜日・水曜日・年末年始、GW、夏季休暇
- 物件番号
- 6988473060
掲載期限まであと12日
村井駅の口コミ
お買い物・飲食
2.0
他の駅に比べると、駅前は寂れており、わざわざ行きたくなるような店はあまりない。しかし、最低限のものは揃っていると思われる
お買い物・飲食
5.0
村井駅の商店街の居酒屋は、駐車場など少ないので、少し離れた友達を呼ぶ時にちょっと困る。村井駅前の商店街はもう少し新しいお店が欲しい。
住宅ローンシミュレーション
住宅ローン設定
物件価格
返済期間
頭金
ボーナス払(年1回)
※
※物件価格の80%以下でお借入れの場合
※50歳以下で一般団信をご選択の場合
※住宅ローン金利優遇割適用後の変動金利(全期間引き下げプラン)
※実際のお借入日の金利により変動します。
※審査の結果によっては保証付金利プランとなる場合があり、この場合は上記とは異なる金利となります。
※別途借入金額の2.20%(税込)の事務手数料が発生します。
ボーナス払 | 35年間返済 | 30年間返済 | 25年間返済 | 20年間返済 | 15年間返済 | 10年間返済 |
|---|---|---|---|---|---|---|
0万円 | -円/月 | -円/月 | -円/月 | -円/月 | -円/月 | -円/月 |
5万円 | -円/月 | -円/月 | -円/月 | -円/月 | -円/月 | -円/月 |
10万円 | -円/月 | -円/月 | -円/月 | -円/月 | -円/月 | -円/月 |
15万円 | -円/月 | -円/月 | -円/月 | -円/月 | -円/月 | -円/月 |
20万円 | -円/月 | -円/月 | -円/月 | -円/月 | -円/月 | -円/月 |
25万円 | -円/月 | -円/月 | -円/月 | -円/月 | -円/月 | -円/月 |
30万円 | -円/月 | -円/月 | -円/月 | -円/月 | -円/月 | -円/月 |
ボーナス払 | 35年間返済 | 30年間返済 | 25年間返済 | 20年間返済 | 15年間返済 | 10年間返済 |
|---|---|---|---|---|---|---|
0万円 | -円/月 | -円/月 | -円/月 | -円/月 | -円/月 | -円/月 |
5万円 | -円/月 | -円/月 | -円/月 | -円/月 | -円/月 | -円/月 |
10万円 | -円/月 | -円/月 | -円/月 | -円/月 | -円/月 | -円/月 |
15万円 | -円/月 | -円/月 | -円/月 | -円/月 | -円/月 | -円/月 |
20万円 | -円/月 | -円/月 | -円/月 | -円/月 | -円/月 | -円/月 |
25万円 | -円/月 | -円/月 | -円/月 | -円/月 | -円/月 | -円/月 |
30万円 | -円/月 | -円/月 | -円/月 | -円/月 | -円/月 | -円/月 |
- ・金利は、今後35年間変動しない仮定のもと元利均等返済方式で計算しております。
- ・実際の金利は、各金融機関のホームページをご参照ください。
- ・ローン契約の際には、手数料や印紙税などの諸費用が別途かかります。
- ・ボーナス支払総額が総支払額の50%を超えている場合、上記の表では「ローン不可」となります。
- ・シミュレーションを利用し、それが原因で利用者が受けたいかなる損害についても当社は一切責任を負いません。あらかじめご了承ください。







