NEW新築売戸建住宅新潟県三条市新光町の新築売戸建住宅の詳細情報
この物件は未完成のため、掲載写真(外観、内観、設備等)には、施工例が含まれている場合があります。物件詳細については、掲載の不動産会社宛にお問合せください。
掲載期限まであと13日
外観・室内・設備(1枚)
物件概要
| 物件名 | 新潟県三条市新光町の新築売戸建住宅 | ||||
|---|---|---|---|---|---|
| 所在地 | 新潟県三条市新光町 | ||||
| 交通 |
JR弥彦線 「北三条」駅 徒歩21分 | ||||
| 構造および階数 | 木造・2階建 | 建ぺい率・容積率 | 60.00%・200.00% | ||
| 完成予定日 | 2026年07月 | 入居可能予定日 | - | ||
| 土地権利 | 所有権 | ||||
| 駐車場 | - | 国土法届出 | - | ||
| 私道負担・道路 | - | 道路付け | 西 5.0m 公道 | ||
| 地目 | 宅地 | 都市計画 | 非線引区域 | ||
| 取引態様 | 売主 | 用途地域 | 1種住居 | ||
| 施工会社 | - | ||||
| 建築確認番号 | NK第25長00907号 | ||||
| 設備 | エアコン・給湯・収納スペース・追焚機能・都市ガス・フローリング・Wクロゼット・照明器具・シャンプードレッサー・ウォシュレット・システムキッチン・モニタ付インターホン・庭・トイレ2ヶ所・床下収納・IHクッキングヒータ・複層ガラス・ディンプルキー・電気・上水道・浄化槽・省エネ給湯器 | ||||
| 備考 | ・22条指定区域※物件掲載内容と現況に相違がある場合は現況を優先と致します。詳細はお気軽にお問い合わせください。・私道負担:なし・分譲地内◆コンビニ・スーパー・小中学校・病院等も徒歩圏内に充実◆シューズクローク・仲介手数料:不要 | ||||
情報更新日:2026/03/27 次回更新予定日:情報更新日より14日以内
販売概要
| 販売価格 | 2,680万円 お問い合わせはこちら | ||||
|---|---|---|---|---|---|
| 販売戸数/総戸数 | -/- | ||||
| 最多価格帯 | - | ||||
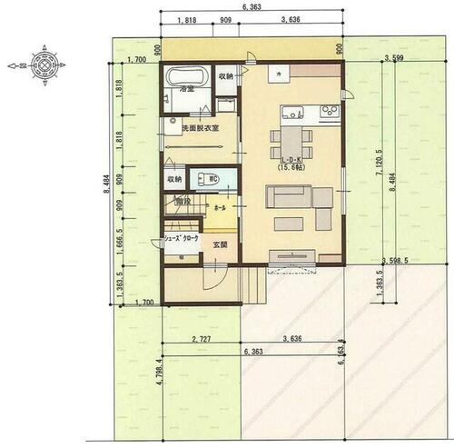
| 間取り | 3LDK | ||||
| 建物面積 | 90.60㎡ | 土地面積 | 165.39㎡ | ||
| その他施設費用、償却費 | - / - | ||||
| その他費用 | - | ||||
会社情報
| お問い合わせ先 |
(有)一代工務店 0258-34-2221 上記の電話番号にお問合せください。(携帯・PHS 可) 【物件番号】6989502179 | ||||
|---|---|---|---|---|---|
| 会社概要 |
(有)一代工務店[新潟県知事免許(12)第2196号] 新潟県長岡市信濃2丁目5-36 【所属団体】 (公社)新潟県宅地建物取引業協会 | ||||
この物件の地図・周辺環境
このアイコンは物件のおおよその位置を表しており、実際の場所と異なる場合がございます。詳しくは不動産会社に直接ご確認ください。
取り扱い不動産会社
- 電話番号
- 0258-34-2221
- 営業時間
- 09:00~18:00
- 物件番号
- 6989502179
掲載期限まであと13日
北三条駅の口コミ
お買い物・飲食
4.0
居酒屋さんやレストラン等はあまり種類がないため、外食したいひとにとってはいつも行くお店がマンネリ化しそうです。
自然環境
1.0
周辺は夜の店が多い。 夜は酔っ払いがいてたまにうるさかった。 小さい子供と食べに行けるところはラーメン屋しかない。
住宅ローンシミュレーション
住宅ローン設定
物件価格
返済期間
頭金
ボーナス払(年1回)
※
※物件価格の80%以下でお借入れの場合
※50歳以下で一般団信をご選択の場合
※住宅ローン金利優遇割適用後の変動金利(全期間引き下げプラン)
※実際のお借入日の金利により変動します。
※審査の結果によっては保証付金利プランとなる場合があり、この場合は上記とは異なる金利となります。
※別途借入金額の2.20%(税込)の事務手数料が発生します。
ボーナス払 | 35年間返済 | 30年間返済 | 25年間返済 | 20年間返済 | 15年間返済 | 10年間返済 |
|---|---|---|---|---|---|---|
0万円 | -円/月 | -円/月 | -円/月 | -円/月 | -円/月 | -円/月 |
5万円 | -円/月 | -円/月 | -円/月 | -円/月 | -円/月 | -円/月 |
10万円 | -円/月 | -円/月 | -円/月 | -円/月 | -円/月 | -円/月 |
15万円 | -円/月 | -円/月 | -円/月 | -円/月 | -円/月 | -円/月 |
20万円 | -円/月 | -円/月 | -円/月 | -円/月 | -円/月 | -円/月 |
25万円 | -円/月 | -円/月 | -円/月 | -円/月 | -円/月 | -円/月 |
30万円 | -円/月 | -円/月 | -円/月 | -円/月 | -円/月 | -円/月 |
ボーナス払 | 35年間返済 | 30年間返済 | 25年間返済 | 20年間返済 | 15年間返済 | 10年間返済 |
|---|---|---|---|---|---|---|
0万円 | -円/月 | -円/月 | -円/月 | -円/月 | -円/月 | -円/月 |
5万円 | -円/月 | -円/月 | -円/月 | -円/月 | -円/月 | -円/月 |
10万円 | -円/月 | -円/月 | -円/月 | -円/月 | -円/月 | -円/月 |
15万円 | -円/月 | -円/月 | -円/月 | -円/月 | -円/月 | -円/月 |
20万円 | -円/月 | -円/月 | -円/月 | -円/月 | -円/月 | -円/月 |
25万円 | -円/月 | -円/月 | -円/月 | -円/月 | -円/月 | -円/月 |
30万円 | -円/月 | -円/月 | -円/月 | -円/月 | -円/月 | -円/月 |
- ・金利は、今後35年間変動しない仮定のもと元利均等返済方式で計算しております。
- ・実際の金利は、各金融機関のホームページをご参照ください。
- ・ローン契約の際には、手数料や印紙税などの諸費用が別途かかります。
- ・ボーナス支払総額が総支払額の50%を超えている場合、上記の表では「ローン不可」となります。
- ・シミュレーションを利用し、それが原因で利用者が受けたいかなる損害についても当社は一切責任を負いません。あらかじめご了承ください。










