一戸建て梅が園町(柏原南口駅) 2380万円の詳細情報
一人暮らしを希望の方にピッタリです趣味部屋やアウトドアグッズの格納も可能
物件概要
| 物件名 | 梅が園町(柏原南口駅) 2380万円 | ||||
|---|---|---|---|---|---|
| 所在地 | 大阪府藤井寺市梅が園町 | ||||
| 交通 |
近鉄道明寺線「柏原南口」歩9分 近鉄南大阪線「土師ノ里」歩16分 近鉄大阪線「安堂」歩13分 | ||||
| 構造および階数 | 木造2階建(軸組工法) | 建ぺい率・容積率 | 50%・100% | ||
| 完成予定日 | 2024年12月 | 入居可能予定日 | 即引渡可 | ||
| 土地権利 | 所有権 | ||||
| 駐車場 | - | 国土法届出 | - | ||
| 地目 | - | 道路付け | 無、南5.9m幅(接道幅10.8m)、東6.2m幅(接道幅8.6m) | ||
| 機構融資 | - | 取引態様 | 仲介 | ||
| 用途地域 | 1種低層 | ||||
| 施工会社 | (株)Machida | ||||
| 建築確認番号 | - | ||||
| 設備 | 地盤調査済 / 駐車2台可 / 即引渡可 / 2沿線以上利用可 / 南向き / 浴室乾燥機 / 陽当り良好 / 全居室収納 / 駅まで平坦 / 南側道路面す / 閑静な住宅地 / 前道6m以上 / 角地 / 整形地 / シャワー付洗面化粧台 / セキュリティ充実 / ハイルーフ駐車場 / ワイドバルコニー / 2階建 / 南面バルコニー / 複層ガラス / 全室南向き / 温水洗浄便座 / 床下収納 / TVモニタ付インターホン / 節水型トイレ / 全居室フローリング / シャッター車庫 / 全居室複層ガラスか複層サッシ / 平坦地 / スマートキー / ビルトインガレージ | ||||
| その他制限事項 | 景観法による規制有、宅地造成工事規制区域、景観地区、高さ最高限度有、隅切り有、壁面後退有 | ||||
| 備考 | 景観法による規制有、宅地造成工事規制区域、景観地区、高さ最高限度有、隅切り有、壁面後退有 / 担当者:内田元輝、設備:公営水道、本下水、個別LPG、駐車場:車庫 | ||||
情報更新日:2025/10/24 次回更新予定日:情報提供より8日以内
販売概要
| 販売価格 | 2380万円 お問い合わせはこちら | ||||
|---|---|---|---|---|---|
| 販売スケジュール | - | ||||
| 販売戸数/総戸数 | 1戸/1戸 | ||||
| 最多価格帯 | - | ||||
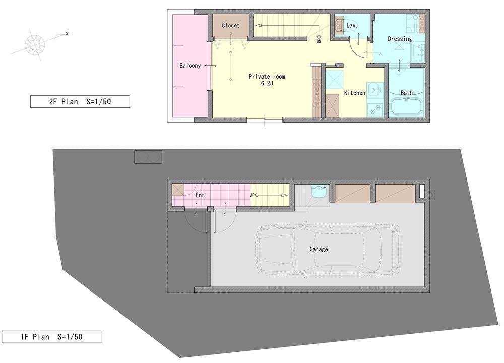
| 間取り | 1K | ||||
| 建物面積 | 52.88㎡(登記) | 土地面積 | 86.95㎡(登記) | ||
| その他施設費用、償却費 | - | ||||
| その他費用 | 関電SOSセキュリティ:1980円/月、取引にかかる費用:仲介手数料、登記費用、火災保険料、他 | ||||
| 登録受付 | - | 抽選日 | - | ||
| モデルルーム情報 | 現地見学会(事前に必ずお問い合わせください)日程/公開中・お時間をご相談いただければ、いつでも内見可能ですので、まずはお気軽にご連絡をいただけますようよろしくお願いいたします。TEL0120-69-8311 株式会社Machidaハウジングまで。・その他、多数の物件情報を保有いたしておりますので、ご希望のエリアなどお気軽にご相談くださいませ。・土地探しから、お客様のご要望に合った間取りプランでの新築も可能です。 | ||||
| 取引条件有効期限 | - | ||||
会社情報
| お問い合わせ先 |
(株)Machidaハウジング 0120-698311(無料通話) 上記の電話番号にお問合せください。(携帯・PHS 可) 【物件番号】77824751 | ||||
|---|---|---|---|---|---|
| 会社概要 |
(株)Machidaハウジング[大阪府知事(6)第045353号] 大阪府堺市堺区鉄砲町1 【所属団体】 大阪府知事(6)第045353号(一社)大阪府宅地建物取引業協会会員 (公社)近畿地区不動産公正取引協議会加盟 | ||||
取り扱い不動産会社
- 電話番号
- 0120-698311
- 受付
- 営業時間:10:00~20:00 / 定休日:水曜日、お盆・年末年始
- 物件番号
- 77824751
住宅ローンシミュレーション
住宅ローン設定
物件価格
返済期間
頭金
ボーナス払(年1回)
※
※物件価格の80%以下でお借入れの場合
※50歳以下で一般団信をご選択の場合
※住宅ローン金利優遇割適用後の変動金利(全期間引き下げプラン)
※実際のお借入日の金利により変動します。
※審査の結果によっては保証付金利プランとなる場合があり、この場合は上記とは異なる金利となります。
※別途借入金額の2.20%(税込)の事務手数料が発生します。
ボーナス払 | 35年間返済 | 30年間返済 | 25年間返済 | 20年間返済 | 15年間返済 | 10年間返済 |
|---|---|---|---|---|---|---|
0万円 | -円/月 | -円/月 | -円/月 | -円/月 | -円/月 | -円/月 |
5万円 | -円/月 | -円/月 | -円/月 | -円/月 | -円/月 | -円/月 |
10万円 | -円/月 | -円/月 | -円/月 | -円/月 | -円/月 | -円/月 |
15万円 | -円/月 | -円/月 | -円/月 | -円/月 | -円/月 | -円/月 |
20万円 | -円/月 | -円/月 | -円/月 | -円/月 | -円/月 | -円/月 |
25万円 | -円/月 | -円/月 | -円/月 | -円/月 | -円/月 | -円/月 |
30万円 | -円/月 | -円/月 | -円/月 | -円/月 | -円/月 | -円/月 |
ボーナス払 | 35年間返済 | 30年間返済 | 25年間返済 | 20年間返済 | 15年間返済 | 10年間返済 |
|---|---|---|---|---|---|---|
0万円 | -円/月 | -円/月 | -円/月 | -円/月 | -円/月 | -円/月 |
5万円 | -円/月 | -円/月 | -円/月 | -円/月 | -円/月 | -円/月 |
10万円 | -円/月 | -円/月 | -円/月 | -円/月 | -円/月 | -円/月 |
15万円 | -円/月 | -円/月 | -円/月 | -円/月 | -円/月 | -円/月 |
20万円 | -円/月 | -円/月 | -円/月 | -円/月 | -円/月 | -円/月 |
25万円 | -円/月 | -円/月 | -円/月 | -円/月 | -円/月 | -円/月 |
30万円 | -円/月 | -円/月 | -円/月 | -円/月 | -円/月 | -円/月 |
- ・金利は、今後35年間変動しない仮定のもと元利均等返済方式で計算しております。
- ・実際の金利は、各金融機関のホームページをご参照ください。
- ・ローン契約の際には、手数料や印紙税などの諸費用が別途かかります。
- ・ボーナス支払総額が総支払額の50%を超えている場合、上記の表では「ローン不可」となります。
- ・シミュレーションを利用し、それが原因で利用者が受けたいかなる損害についても当社は一切責任を負いません。あらかじめご了承ください。
※価格は物件の代金総額を表示しており、消費税が課税される場合は税込み価格です。 (1000円未満は切り上げ。)
※写真に写っている、またはパース(絵)や間取り図に描かれている家具や車などは、特にコメントがない場合、販売価格に含まれません。
※敷地権利が定期借地権のものは価格に権利金を含みます。
※建築条件付き土地価格には、建物価格は含まれません。
※物件情報は、原則として情報提供日の2日前に最終確認した情報です。
※完成予想図はいずれも外構、植栽、外観等実際のものとは多少異なることがあります。
※モデルルーム・モデルハウス・展示場・ショールームの画像の場合、今回販売の物件と異なる場合があります。
※CG合成の画像の場合、実際とは多少異なる場合があります。
※物件特徴:販売戸数が複数の物件は、全ての住戸に該当しない項目もあります。
※0800で始まる電話番号は通話料無料です。また、サービス検証のため当該番号の利用履歴を個人が特定できない範囲で取得しています。予めご了承ください。
※完成後1年以上を経過した未入居物件が掲載される場合があります。ご了承ください。
※新着:物件情報が「SUUMO」に掲載された日から1週間表示されます。
※価格更新:物件価格が変更された日から1週間表示されます。
※販売予定物件はすべて、販売開始するまで契約または予約の申込みはできません。
※購入の前には物件内容や契約条件についてご自身で十分な確認をしていただくようにお願いいたします。
※建築条件土地の情報内に掲載されている、建物プラン例は、土地購入者の設計プランの参考の一例であって、プランの採用可否は任意です。
※土地(建築条件なし)で「建物プラン例」が表記してある時、そのプラン例は特定の建築請負会社によるもので、当該建築請負会社以外で建てた場合、同様のものが同価格で建てられるとは限りません。また建築請負会社を特定するものではありません。
※建築条件付き土地とは、その土地に建築する建物の建築請負契約が、一定期間内に成立することを条件として売買される土地のことをいいます。建築請負契約成立に向けて設計プランを協議するため、土地購入者が自己の希望する建物の設計協議をするために必要な相当の期間の交渉期間が設定され、その期間内で希望を満たすプランが実現できたかどうかにより結論を出します。なお、この期間は概ね3ヶ月程度とされています。納得のいくプランが出来ず、建築請負契約が成立しない場合、土地売買契約は白紙に戻り、土地契約にかかった代金(土地代金、手付金など)は名目のいかんに関わらず、全て返却されます。














