NEW一戸建て鳥飼野々1(南摂津駅) 5980万円の詳細情報
5980万円
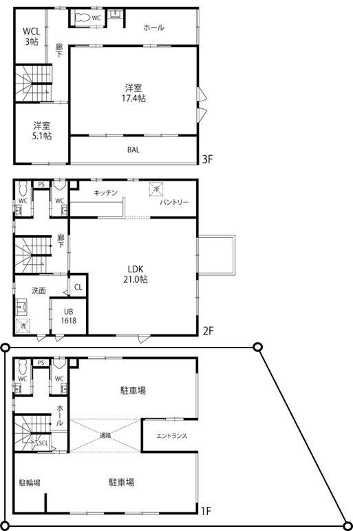
月々のローン返済額を試算一階は2台分のインナーガレージ♪店舗や事務所としても利用可能です♪
外観・室内・設備(15枚)
物件概要
| 物件名 | 鳥飼野々1(南摂津駅) 5980万円 | ||||
|---|---|---|---|---|---|
| 所在地 | 大阪府摂津市鳥飼野々1 | ||||
| 交通 |
大阪モノレール本線「南摂津」歩17分 阪急京都線「摂津市」バス15分鳥飼八防歩2分 JR東海道本線「千里丘」バス17分鳥飼八防歩2分 | ||||
| 構造および階数 | 木造3階建 | 建ぺい率・容積率 | 60%・200% | ||
| 完成予定日 | 2025年8月 | 入居可能予定日 | 即引渡可 | ||
| 土地権利 | 所有権 | ||||
| 駐車場 | - | 国土法届出 | - | ||
| 地目 | - | 道路付け | 共有持分36.78㎡×(1/1)、東4.1m幅(接道幅14.9m)、北16.6m幅(接道幅9.6m) | ||
| 機構融資 | - | 取引態様 | 仲介 | ||
| 用途地域 | 2種住居 | ||||
| 施工会社 | - | ||||
| 建築確認番号 | 第トラスト23-1960号 | ||||
| 設備 | 太陽光発電システム / 駐車3台以上可 / 即引渡可 / 2沿線以上利用可 / LDK20畳以上 / 省エネ給湯器 / スーパー 徒歩10分以内 / 市街地が近い / システムキッチン / 浴室乾燥機 / 駅まで平坦 / 前道6m以上 / 角地 / シャワー付洗面化粧台 / 浴室1坪以上 / 複層ガラス / 温水洗浄便座 / 浴室に窓 / TVモニタ付インターホン / 通風良好 / ウォークインクローゼット / IHクッキングヒーター / 3階建以上 / 都市ガス / 平坦地 / 食器洗乾燥機 / 整備された歩道 | ||||
| その他制限事項 | 地役権、セットバック:済、景観法による規制有、宅地造成工事規制区域、準防火地域 | ||||
| 備考 | 地役権、セットバック:済、景観法による規制有、宅地造成工事規制区域、準防火地域 / 担当者:森川 薫、設備:公営水道、本下水、都市ガス、建築確認番号:第トラスト23-1960号、駐車場:車庫 | ||||
情報更新日:2025/11/03 次回更新予定日:情報提供より8日以内
販売概要
| 販売価格 | 5980万円 お問い合わせはこちら | ||||
|---|---|---|---|---|---|
| 販売スケジュール | - | ||||
| 販売戸数/総戸数 | 1戸/- | ||||
| 最多価格帯 | - | ||||
| 間取り | 2LDK | ||||
| 建物面積 | 198.03㎡(登記)、うち1階車庫46.28㎡ | 土地面積 | 165.32㎡(登記)、高圧線下:124.58㎡含 | ||
| その他施設費用、償却費 | - | ||||
| その他費用 | - | ||||
| 登録受付 | - | 抽選日 | - | ||
| モデルルーム情報 | 現地見学会(事前に必ずお問い合わせください)日程/公開中時間/10:00~19:00当社は茨木市・高槻市・三島郡・摂津市の北摂東部に特化し12店舗展開している地元密着の企業です。創業75年の信頼と実績の三島コーポレーション。お客様のリピート率、お客様のご紹介が多い当社の選ばれ続ける理由をぜひご体感ください◆ローンアドバイザー、FP、税理士との提携で、賢い選択をサポート◆押し売りなしの、お客様第一の提案◆スタッフが地元に在住のため、物件のことだけでなく周辺環境や住みやすさ等、詳しくご説明◆創業75年の確かな歴史と実績◆全店舗が駅徒歩5分以内で、気軽にご相談いただけます◆北摂エリアの物件掲載数トップクラス、幅広い提案が可能 【資料請求後のご案内の流れ】I.ご希望の条件を詳しくお聞かせください。大阪府北摂東部(茨木市・高槻市・摂津市・吹田市・三島郡)エリアのほぼすべての不動産物件を常時ご用意しております。未公開情報や、まだ掲載していない最新情報なども併せてお客様のご希望に沿ってご提案させていただきます。II.ご希望物件の内見全店舗が最寄駅より徒歩5分以内にございますので、お気軽にご来店下さい。写真では伝えきれない広さや日当たり、実際の暮らしのイメージなどを現地でご体感ください。地域特化で培ってきた経験を活かし、物件の良さはもちろん、周辺環境を考慮した上で、お客様のご希望に沿った物件をご一緒にお探し致します。 III.ご相談物件見学後の正直な感想をお聞かせください。再度別の物件の提案や、資金計画に関しての打ち合わせを致します。また当社は売買部・賃貸部・リフォーム部がございますので「買う」「借りる」「リフォーム」など未来の選択肢を狭めることなく、すべてのお客様のライフスタイルに応じて「 | ||||
| 取引条件有効期限 | - | ||||
会社情報
| お問い合わせ先 |
(株)三島コーポレーション 072-665-7340 上記の電話番号にお問合せください。(携帯・PHS 可) 【物件番号】78731477 | ||||
|---|---|---|---|---|---|
| 会社概要 |
(株)三島コーポレーション[大阪府知事(12)第021564号] 大阪府茨木市西駅前町6-26 【所属団体】 大阪府知事(12)第021564号(一社)大阪府宅地建物取引業協会会員 (公社)近畿地区不動産公正取引協議会加盟 | ||||
取り扱い不動産会社
- 電話番号
- 072-665-7340
- 受付
- 営業時間:AM 9:30~PM 6:30 / 定休日:毎週水曜日
- 物件番号
- 78731477
南摂津駅の口コミ
子育て・病院
2.0
小さな施設はそこそこありますが、大きいものは大日や梅田の方に出るでもしないと難しいです。 近隣で全て賄えるほどの充実度はありません。
住宅ローンシミュレーション
住宅ローン設定
物件価格
返済期間
頭金
ボーナス払(年1回)
※
※物件価格の80%以下でお借入れの場合
※50歳以下で一般団信をご選択の場合
※住宅ローン金利優遇割適用後の変動金利(全期間引き下げプラン)
※実際のお借入日の金利により変動します。
※審査の結果によっては保証付金利プランとなる場合があり、この場合は上記とは異なる金利となります。
※別途借入金額の2.20%(税込)の事務手数料が発生します。
ボーナス払 | 35年間返済 | 30年間返済 | 25年間返済 | 20年間返済 | 15年間返済 | 10年間返済 |
|---|---|---|---|---|---|---|
0万円 | -円/月 | -円/月 | -円/月 | -円/月 | -円/月 | -円/月 |
5万円 | -円/月 | -円/月 | -円/月 | -円/月 | -円/月 | -円/月 |
10万円 | -円/月 | -円/月 | -円/月 | -円/月 | -円/月 | -円/月 |
15万円 | -円/月 | -円/月 | -円/月 | -円/月 | -円/月 | -円/月 |
20万円 | -円/月 | -円/月 | -円/月 | -円/月 | -円/月 | -円/月 |
25万円 | -円/月 | -円/月 | -円/月 | -円/月 | -円/月 | -円/月 |
30万円 | -円/月 | -円/月 | -円/月 | -円/月 | -円/月 | -円/月 |
ボーナス払 | 35年間返済 | 30年間返済 | 25年間返済 | 20年間返済 | 15年間返済 | 10年間返済 |
|---|---|---|---|---|---|---|
0万円 | -円/月 | -円/月 | -円/月 | -円/月 | -円/月 | -円/月 |
5万円 | -円/月 | -円/月 | -円/月 | -円/月 | -円/月 | -円/月 |
10万円 | -円/月 | -円/月 | -円/月 | -円/月 | -円/月 | -円/月 |
15万円 | -円/月 | -円/月 | -円/月 | -円/月 | -円/月 | -円/月 |
20万円 | -円/月 | -円/月 | -円/月 | -円/月 | -円/月 | -円/月 |
25万円 | -円/月 | -円/月 | -円/月 | -円/月 | -円/月 | -円/月 |
30万円 | -円/月 | -円/月 | -円/月 | -円/月 | -円/月 | -円/月 |
- ・金利は、今後35年間変動しない仮定のもと元利均等返済方式で計算しております。
- ・実際の金利は、各金融機関のホームページをご参照ください。
- ・ローン契約の際には、手数料や印紙税などの諸費用が別途かかります。
- ・ボーナス支払総額が総支払額の50%を超えている場合、上記の表では「ローン不可」となります。
- ・シミュレーションを利用し、それが原因で利用者が受けたいかなる損害についても当社は一切責任を負いません。あらかじめご了承ください。
※価格は物件の代金総額を表示しており、消費税が課税される場合は税込み価格です。 (1000円未満は切り上げ。)
※写真に写っている、またはパース(絵)や間取り図に描かれている家具や車などは、特にコメントがない場合、販売価格に含まれません。
※敷地権利が定期借地権のものは価格に権利金を含みます。
※建築条件付き土地価格には、建物価格は含まれません。
※物件情報は、原則として情報提供日の2日前に最終確認した情報です。
※完成予想図はいずれも外構、植栽、外観等実際のものとは多少異なることがあります。
※モデルルーム・モデルハウス・展示場・ショールームの画像の場合、今回販売の物件と異なる場合があります。
※CG合成の画像の場合、実際とは多少異なる場合があります。
※物件特徴:販売戸数が複数の物件は、全ての住戸に該当しない項目もあります。
※0800で始まる電話番号は通話料無料です。また、サービス検証のため当該番号の利用履歴を個人が特定できない範囲で取得しています。予めご了承ください。
※完成後1年以上を経過した未入居物件が掲載される場合があります。ご了承ください。
※新着:物件情報が「SUUMO」に掲載された日から1週間表示されます。
※価格更新:物件価格が変更された日から1週間表示されます。
※販売予定物件はすべて、販売開始するまで契約または予約の申込みはできません。
※購入の前には物件内容や契約条件についてご自身で十分な確認をしていただくようにお願いいたします。
※建築条件土地の情報内に掲載されている、建物プラン例は、土地購入者の設計プランの参考の一例であって、プランの採用可否は任意です。
※土地(建築条件なし)で「建物プラン例」が表記してある時、そのプラン例は特定の建築請負会社によるもので、当該建築請負会社以外で建てた場合、同様のものが同価格で建てられるとは限りません。また建築請負会社を特定するものではありません。
※建築条件付き土地とは、その土地に建築する建物の建築請負契約が、一定期間内に成立することを条件として売買される土地のことをいいます。建築請負契約成立に向けて設計プランを協議するため、土地購入者が自己の希望する建物の設計協議をするために必要な相当の期間の交渉期間が設定され、その期間内で希望を満たすプランが実現できたかどうかにより結論を出します。なお、この期間は概ね3ヶ月程度とされています。納得のいくプランが出来ず、建築請負契約が成立しない場合、土地売買契約は白紙に戻り、土地契約にかかった代金(土地代金、手付金など)は名目のいかんに関わらず、全て返却されます。





















