一戸建てポラスの分譲住宅 フレーベスト志木 ザ コンセプトモデルの詳細情報
5990万円~6790万円
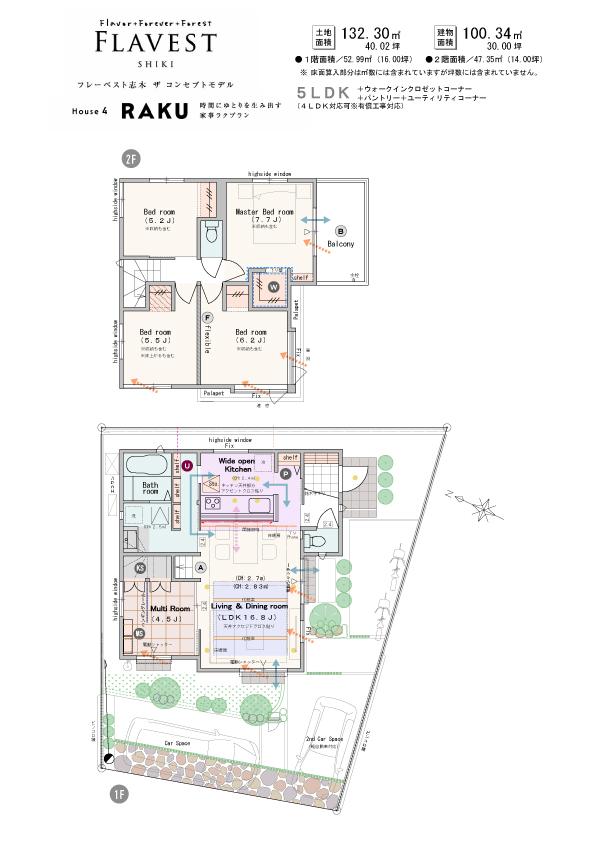
月々のローン返済額を試算この物件は未完成のため、掲載写真(外観、内観、設備等)には、施工例が含まれている場合があります。物件詳細については、掲載の不動産会社宛にお問合せください。
ポラスの分譲「志木」駅徒歩18分◆邸別設計×カースペース2台
外観・室内・設備(22枚)

【ガス衣類乾燥機 乾太くん】
ガスだから実現できる圧倒的な乾燥の速さで、6kgの洗濯物がわずか1時間で乾きます。さらに洗濯物を部屋干しすると生じる生乾き臭の原因となる「モラクセラ菌」を乾太君なら80℃以上のガスの温風で除去します。※1.2号棟は標準採用※3.4.5号棟は有償オプションとなります。

【省エネ給湯器エコワン】
ガスと電気で効率よくお湯をつくるので給湯光熱費を大幅に抑え、CO2排出量も削減。環境にも優しいハイブリット給湯・暖房システムです。キッチンや洗面室、床暖房まで毎日をあたたかく、快適な暮らしを支えます。

【ハイシーリング・ハイサッシ】
家族が集うリビングの天井高は、一般的な住宅に比べてゆとりのある2.7m、サッシ高も2.2mに設定、縦方向のゆとりが開放的な空間を創出し、より快適に寛ぎの時間を育みます。※一部下がる場合があります。

【全棟に倒壊シミュレーションを実施】
ポラスでは、独自の倒壊シミュレーター「ウッド・イノベーターNEXT」を用いて一邸ごとにオーダーメイドの耐震検証を実施。過去に実際に起きた大地震のデータを元に、揺れ方や負荷を3Dで解析できます。

【全棟に構造計算を実施】
法律では義務付けられていない木造2階建においても全棟で構造計算(許容応力度計算)を実施。耐震強度を確保しながらも、一棟一棟ごとに、優れた居住性・快適性・デザイン性を備えた間取設計を行なっています。

【材料から自社にて製造】
ポラスの住宅の品質を支えているのが、最新鋭のプレカット工場です。日本最大級の工場において、正確に加工された構造材が使用され、地震などの外力の影響を受けやすい躯体接合部の強度を大幅に向上させています。
周辺環境・アクセス(10枚)
物件概要
| 物件名 | ポラスの分譲住宅 フレーベスト志木 ザ コンセプトモデル | ||||
|---|---|---|---|---|---|
| 所在地 | 埼玉県新座市北野3-114-15(地番)他 | ||||
| 交通 |
東武東上線「志木」歩18分 東武東上線「志木」バス10分富士見ヶ丘歩1分 東武東上線「志木」バス10分富士見ヶ丘団地歩1分 | ||||
| 構造および階数 | 木造2階建(在来工法) | 建ぺい率・容積率 | 建ぺい率60% 容積率200% | ||
| 完成予定日 | 2026年2月中旬予定 | 入居可能予定日 | 相談 | ||
| 土地権利 | 所有権 | ||||
| 駐車場 | - | 国土法届出 | - | ||
| 地目 | 宅地 | 道路付け | 道路幅:4.8m、アスファルト舗装、[私道負担]なし [道路] 南 12.4m | ||
| 機構融資 | - | 取引態様 | 売主 | ||
| 用途地域 | 1種住居 | ||||
| 施工会社 | ポラテック(株) | ||||
| 建築確認番号 | 第SJK-KX255618300号(2025年8月20日/1号棟)他 | ||||
| 設備 | 長期優良住宅認定通知書 / フラット35Sに対応 / 地盤調査済 / 駐車2台可 / 省エネ給湯器 / スーパー 徒歩10分以内 / システムキッチン / 浴室乾燥機 / 南側道路面す / LDK15畳以上 / 和室 / 対面式キッチン / トイレ2ヶ所 / 2階建 / 温水洗浄便座 / 浴室に窓 / TVモニタ付インターホン / 節水型トイレ / パントリー(食器・食品の収納庫) / ウォークインクローゼット / 天井高2.5m以上 / 都市ガス / 小学校 徒歩10分以内 / 床暖房 / テラス / 食器洗乾燥機 / 浄水器 / バルコニー・屋上に水栓あり | ||||
| その他制限事項 | - | ||||
| 備考 | 担当者:ポラスの分譲住宅スタッフ、設備:公営水道、東京電力・他、都市ガス、本下水、カースペース、外構、植栽その他付帯設備一式、建築確認番号:第SJK-KX255618300号(2025年8月20日/1号棟)他、※4号棟はモデルハウスとして使用させていただきます。(内覧期間:2026年8月16日)詳細はモデルハウス確認書をご確認ください。 ※4号棟の引渡予定日は2026年9月18日となります。 ■その他の設備 公営水道/東京電力・他/都市ガス/本下水/カースペース/外構/植栽その他付帯設備一式 | ||||
情報更新日:2025/11/20 次回更新予定日:情報提供より8日以内
販売概要
| 販売価格 | 5990万円~6790万円 お問い合わせはこちら | ||||
|---|---|---|---|---|---|
| 販売スケジュール | ※先着順申込受付中 | ||||
| 販売戸数/総戸数 | 5戸/5戸 | ||||
| 最多価格帯 | - | ||||
| 間取り | 3LDK~5LDK | ||||
| 建物面積 | 95.31㎡~103.11㎡ | 土地面積 | 101.86㎡~132.3㎡(登記) | ||
| その他施設費用、償却費 | - | ||||
| その他費用 | - | ||||
| 登録受付 | - | 抽選日 | - | ||
| モデルルーム情報 | 現地見学会(事前に必ず予約してください)日程/公開中 | ||||
| 取引条件有効期限 | 2025年11月22日 | ||||
会社情報
| お問い合わせ先 |
(株)中央住宅戸建分譲第一事業部朝霞事業所 0120-959618(無料通話) 上記の電話番号にお問合せください。(携帯・PHS 可) 【物件番号】78223782 | ||||
|---|---|---|---|---|---|
| 会社概要 |
(株)中央住宅戸建分譲第一事業部朝霞事業所[国土交通大臣(13)第002401号] 埼玉県朝霞市東弁財1-3-17 サクセスビル2階 【所属団体】 国土交通大臣(13)第002401号(公社)埼玉県宅地建物取引業協会会員 (公社)首都圏不動産公正取引協議会加盟 | ||||
取り扱い不動産会社
- 電話番号
- 0120-959618
- 受付
- 営業時間:AM10:00~PM7:00 / 定休日:火水、年末年始、その他会社指定の曜日
- 物件番号
- 78223782
ポラスグループ 株式会社中央住宅 戸建分譲第一事業部 朝霞事業所
(株)中央住宅ポラス住まいの情報館 朝霞営業所
志木駅の口コミ
自然環境
3.0
駅前には広場などがあり、またくつろげる場所などが多くあった為住みやすかった。公園なども複数あってよかった。
お買い物・飲食
4.0
志木駅南口側にはもともとイオンがあり、だいたいの買い物はそこで済ませることができるが、最近エコスグループのTAIRAYAというスーパーがリオープンし、便利さがさらにあがった。駅とは離れる方向にはなるが、フードガーデンやコープもあるので、生鮮食品を買うのに困ることはない立地。
住宅ローンシミュレーション
住宅ローン設定
物件価格
返済期間
頭金
ボーナス払(年1回)
※
※物件価格の80%以下でお借入れの場合
※50歳以下で一般団信をご選択の場合
※住宅ローン金利優遇割適用後の変動金利(全期間引き下げプラン)
※実際のお借入日の金利により変動します。
※審査の結果によっては保証付金利プランとなる場合があり、この場合は上記とは異なる金利となります。
※別途借入金額の2.20%(税込)の事務手数料が発生します。
ボーナス払 | 35年間返済 | 30年間返済 | 25年間返済 | 20年間返済 | 15年間返済 | 10年間返済 |
|---|---|---|---|---|---|---|
0万円 | -円/月 | -円/月 | -円/月 | -円/月 | -円/月 | -円/月 |
5万円 | -円/月 | -円/月 | -円/月 | -円/月 | -円/月 | -円/月 |
10万円 | -円/月 | -円/月 | -円/月 | -円/月 | -円/月 | -円/月 |
15万円 | -円/月 | -円/月 | -円/月 | -円/月 | -円/月 | -円/月 |
20万円 | -円/月 | -円/月 | -円/月 | -円/月 | -円/月 | -円/月 |
25万円 | -円/月 | -円/月 | -円/月 | -円/月 | -円/月 | -円/月 |
30万円 | -円/月 | -円/月 | -円/月 | -円/月 | -円/月 | -円/月 |
ボーナス払 | 35年間返済 | 30年間返済 | 25年間返済 | 20年間返済 | 15年間返済 | 10年間返済 |
|---|---|---|---|---|---|---|
0万円 | -円/月 | -円/月 | -円/月 | -円/月 | -円/月 | -円/月 |
5万円 | -円/月 | -円/月 | -円/月 | -円/月 | -円/月 | -円/月 |
10万円 | -円/月 | -円/月 | -円/月 | -円/月 | -円/月 | -円/月 |
15万円 | -円/月 | -円/月 | -円/月 | -円/月 | -円/月 | -円/月 |
20万円 | -円/月 | -円/月 | -円/月 | -円/月 | -円/月 | -円/月 |
25万円 | -円/月 | -円/月 | -円/月 | -円/月 | -円/月 | -円/月 |
30万円 | -円/月 | -円/月 | -円/月 | -円/月 | -円/月 | -円/月 |
- ・金利は、今後35年間変動しない仮定のもと元利均等返済方式で計算しております。
- ・実際の金利は、各金融機関のホームページをご参照ください。
- ・ローン契約の際には、手数料や印紙税などの諸費用が別途かかります。
- ・ボーナス支払総額が総支払額の50%を超えている場合、上記の表では「ローン不可」となります。
- ・シミュレーションを利用し、それが原因で利用者が受けたいかなる損害についても当社は一切責任を負いません。あらかじめご了承ください。
※価格は物件の代金総額を表示しており、消費税が課税される場合は税込み価格です。 (1000円未満は切り上げ。)
※写真に写っている、またはパース(絵)や間取り図に描かれている家具や車などは、特にコメントがない場合、販売価格に含まれません。
※敷地権利が定期借地権のものは価格に権利金を含みます。
※建築条件付き土地価格には、建物価格は含まれません。
※物件情報は、原則として情報提供日の2日前に最終確認した情報です。
※完成予想図はいずれも外構、植栽、外観等実際のものとは多少異なることがあります。
※モデルルーム・モデルハウス・展示場・ショールームの画像の場合、今回販売の物件と異なる場合があります。
※CG合成の画像の場合、実際とは多少異なる場合があります。
※物件特徴:販売戸数が複数の物件は、全ての住戸に該当しない項目もあります。
※0800で始まる電話番号は通話料無料です。また、サービス検証のため当該番号の利用履歴を個人が特定できない範囲で取得しています。予めご了承ください。
※完成後1年以上を経過した未入居物件が掲載される場合があります。ご了承ください。
※新着:物件情報が「SUUMO」に掲載された日から1週間表示されます。
※価格更新:物件価格が変更された日から1週間表示されます。
※販売予定物件はすべて、販売開始するまで契約または予約の申込みはできません。
※購入の前には物件内容や契約条件についてご自身で十分な確認をしていただくようにお願いいたします。
※建築条件土地の情報内に掲載されている、建物プラン例は、土地購入者の設計プランの参考の一例であって、プランの採用可否は任意です。
※土地(建築条件なし)で「建物プラン例」が表記してある時、そのプラン例は特定の建築請負会社によるもので、当該建築請負会社以外で建てた場合、同様のものが同価格で建てられるとは限りません。また建築請負会社を特定するものではありません。
※建築条件付き土地とは、その土地に建築する建物の建築請負契約が、一定期間内に成立することを条件として売買される土地のことをいいます。建築請負契約成立に向けて設計プランを協議するため、土地購入者が自己の希望する建物の設計協議をするために必要な相当の期間の交渉期間が設定され、その期間内で希望を満たすプランが実現できたかどうかにより結論を出します。なお、この期間は概ね3ヶ月程度とされています。納得のいくプランが出来ず、建築請負契約が成立しない場合、土地売買契約は白紙に戻り、土地契約にかかった代金(土地代金、手付金など)は名目のいかんに関わらず、全て返却されます。


































