NEW一戸建て大字三室 4380万円~5280万円の詳細情報
4380万円~5280万円
月々のローン返済額を試算≪全邸モデルハウス公開中/家具付き販売/カースペース2台分≫
外観・室内・設備(2枚)
その他(10枚)
物件概要
| 物件名 | 大字三室 4380万円~5280万円 | ||||
|---|---|---|---|---|---|
| 所在地 | 埼玉県さいたま市緑区大字三室字南宿7177・7178・7179番他 | ||||
| 交通 |
JR京浜東北線「北浦和」バス10分西宿歩6分 JR武蔵野線「東浦和」バス13分松ノ木東公園歩11分 JR京浜東北線「浦和」バス25分西宿歩6分 | ||||
| 構造および階数 | 木造2階建(2×4工法) | 建ぺい率・容積率 | 建ペい率:60%・70%、容積率:200%(※建ぺい率・容積率は接道状況や耐火構造等の各種条件により、緩和・制限される場合があります。) | ||
| 完成予定日 | 2025年9月 | 入居可能予定日 | 2026年1月予定 | ||
| 土地権利 | 所有権 | ||||
| 駐車場 | - | 国土法届出 | - | ||
| 地目 | 現況:畑(宅地、雑種地へ変更予定) | 道路付け | 道路幅:6m、アスファルト舗装 | ||
| 機構融資 | - | 取引態様 | 売主 | ||
| 用途地域 | 1種中高 | ||||
| 施工会社 | グローバルホーム株式会社(ポラスグループ) | ||||
| 建築確認番号 | - | ||||
| 設備 | 省エネルギー対策 / 高気密高断熱住宅 / 地盤調査済 / 駐車2台可 / 2沿線以上利用可 / 省エネ給湯器 / スーパー 徒歩10分以内 / システムキッチン / 浴室乾燥機 / 閑静な住宅地 / LDK15畳以上 / シャワー付洗面化粧台 / 対面式キッチン / EV車充電設備 / トイレ2ヶ所 / 浴室1坪以上 / 2階建 / 東南向き / 南面バルコニー / 複層ガラス / オートバス / 温水洗浄便座 / 床下収納 / TVモニタ付インターホン / 節水型トイレ / 緑豊かな住宅地 / ウォークインクローゼット / 全居室複層ガラスか複層サッシ / 都市ガス / 小学校 徒歩10分以内 / 食器洗乾燥機 / 浄水器 | ||||
| その他制限事項 | ※引渡可能時期:4号棟のみ2026年3月13日※カースペース2台目は車種制限あり | ||||
| 備考 | ※引渡可能時期:4号棟のみ2026年3月13日※カースペース2台目は車種制限あり / 設備:公営水道、都市ガス、本下水 | ||||
情報更新日:2025/11/10 次回更新予定日:情報提供より8日以内
販売概要
| 販売価格 | 4380万円~5280万円 お問い合わせはこちら | ||||
|---|---|---|---|---|---|
| 販売スケジュール | ※4号棟のみ抽選販売です。詳しくはお問合せ下さい。 | ||||
| 販売戸数/総戸数 | 6戸/7戸 | ||||
| 最多価格帯 | 4700万円台(2戸) | ||||
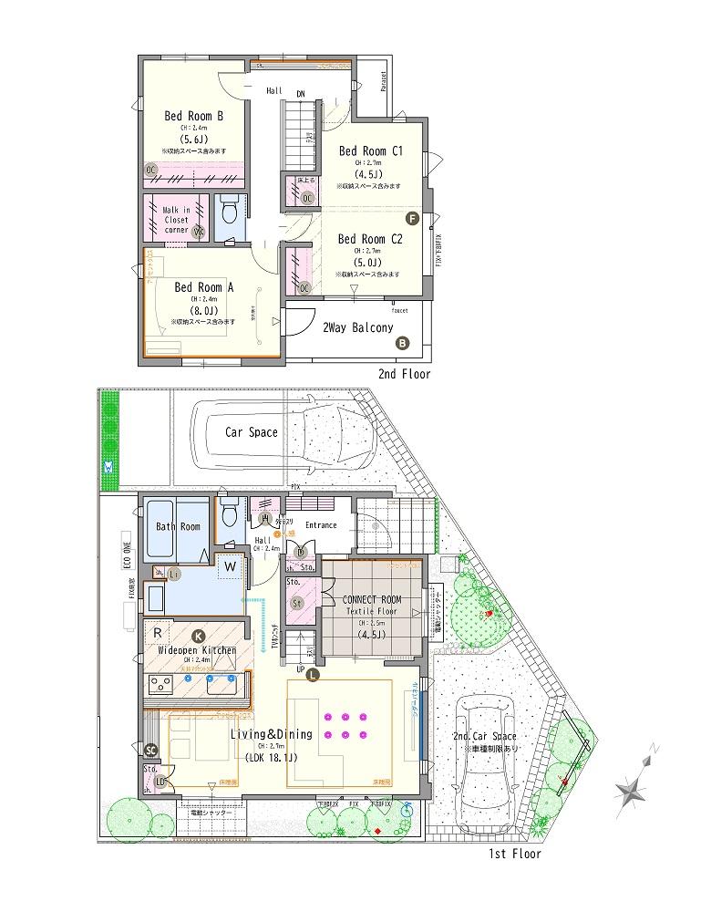
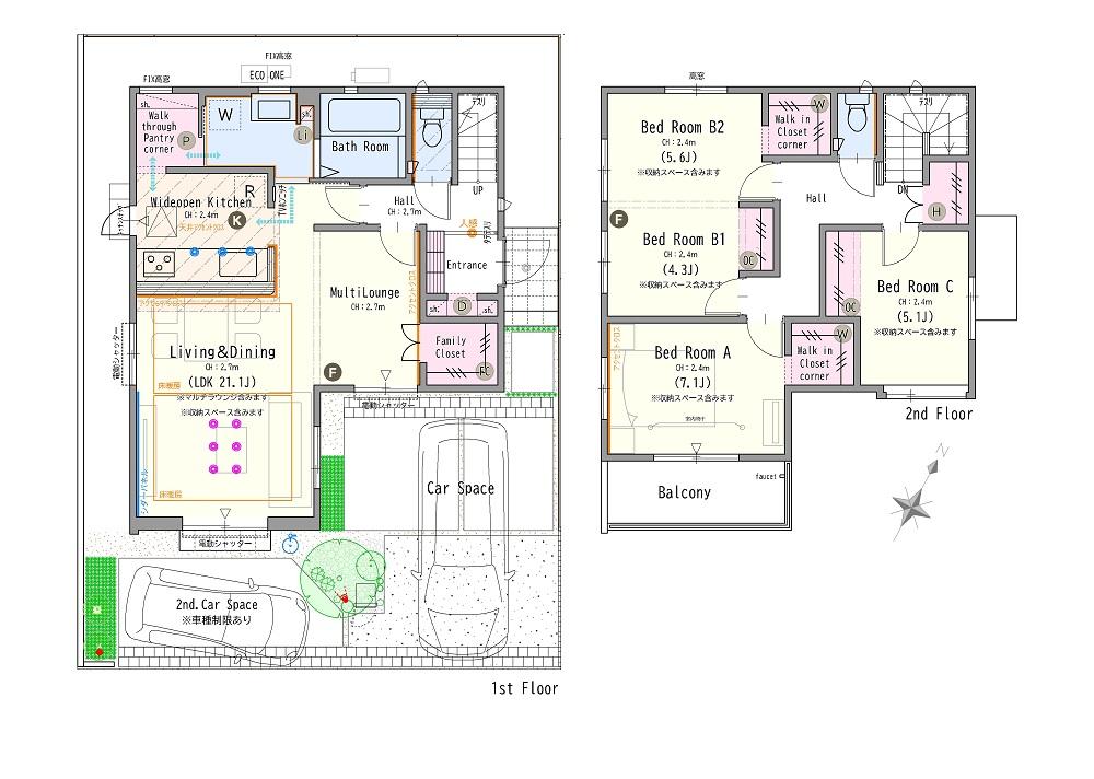
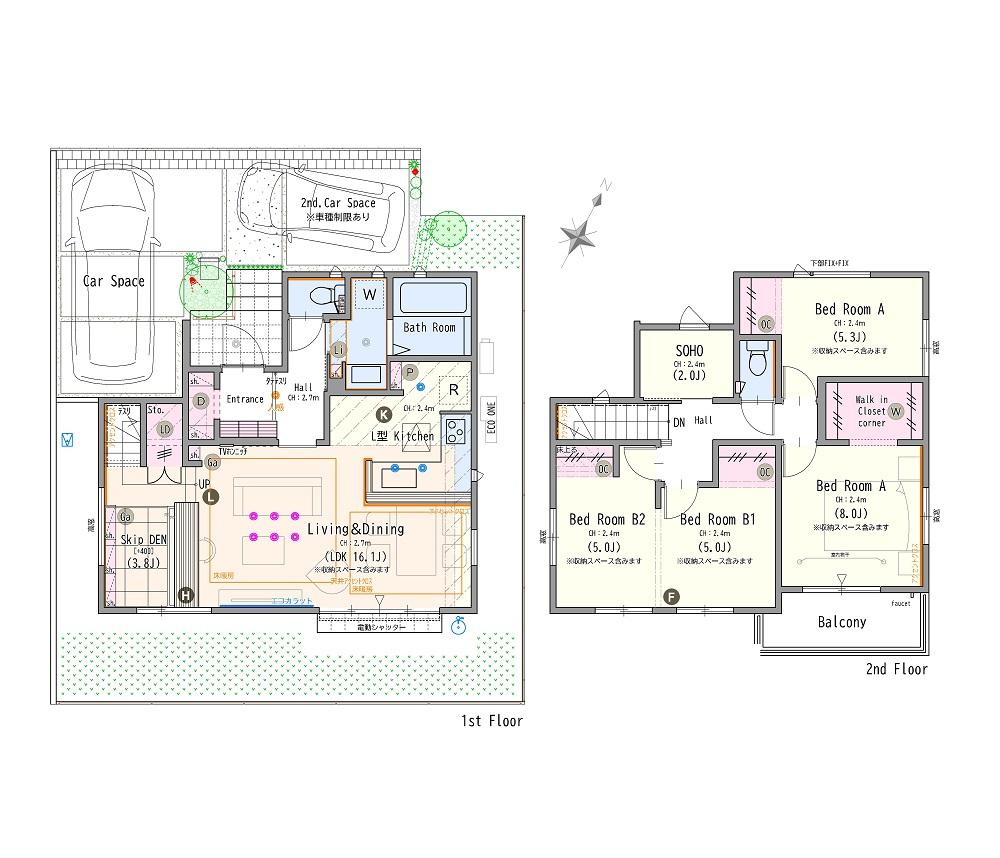
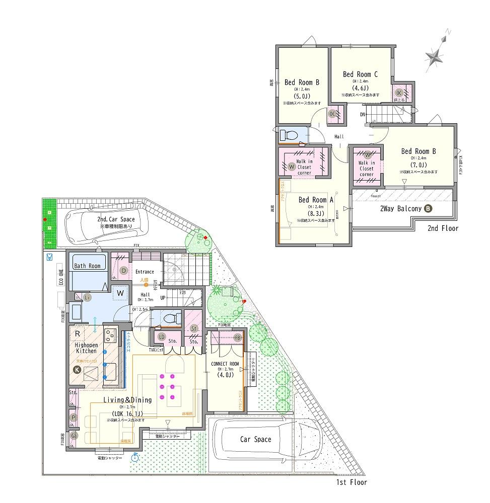
| 間取り | 3LDK~5LDK | ||||
| 建物面積 | 97.3㎡~102.26㎡ | 土地面積 | 120.34㎡~125.58㎡ | ||
| その他施設費用、償却費 | - | ||||
| その他費用 | - | ||||
| 登録受付 | - | 抽選日 | - | ||
| モデルルーム情報 | ■分譲地名:ミンクス北浦和 デュアリブ/北浦和A67-1期 | ||||
| 取引条件有効期限 | 2025年11月30日 | ||||
会社情報
| お問い合わせ先 |
(株)中央住宅ポラス住まいの情報館東川口営業所 0120-293966(無料通話) 上記の電話番号にお問合せください。(携帯・PHS 可) 【物件番号】78771650 | ||||
|---|---|---|---|---|---|
| 会社概要 |
(株)中央住宅ポラス住まいの情報館東川口営業所[国土交通大臣(13)第002401号] 埼玉県川口市戸塚東1-5-27 【所属団体】 国土交通大臣(13)第002401号(公社)埼玉県宅地建物取引業協会会員 (公社)首都圏不動産公正取引協議会加盟 | ||||
取り扱い不動産会社
- 電話番号
- 0120-293966
- 受付
- 営業時間:10:00-19:00 / 定休日:火曜日・水曜日
- 物件番号
- 78771650
北浦和駅の口コミ
子育て・病院
5.0
人気の学区にあたることも関係しているのか、駅近の保育園や幼稚園は激戦。待機児童が多く認可外や小規模保育園に通わせ、転園のために再度保活する方も多い。色々対策しておかないと下調べなしで越すのは厳しいエリアだと思う。
お買い物・飲食
4.0
※駅近辺に本屋が無いことに変わりありませんが、イオン北浦和店内の本屋がリニューアルして以前より品揃えが充実していました。浦和パルコやコルソ、路面にある本屋と比べると品揃えは依然乏しいですが、それでも以前に比べれば遥かに良くなったと思います。 駅近辺には本屋がありません。これが結構不便です。イオン北浦和店内にある本屋は広い割に品揃えが乏しいので利用する機会はありません。 隣駅の浦和には、パルコやコルソ、旧中仙道沿いに大きな本屋があり、駅には蔦屋書店もあってとても充実しています。また、さいたま新都心のコクーンシティにも大きな本屋がありますので、わざわざ出向く必要があります。もう一方の隣の与野にも無いと思います。
住宅ローンシミュレーション
住宅ローン設定
物件価格
返済期間
頭金
ボーナス払(年1回)
※
※物件価格の80%以下でお借入れの場合
※50歳以下で一般団信をご選択の場合
※住宅ローン金利優遇割適用後の変動金利(全期間引き下げプラン)
※実際のお借入日の金利により変動します。
※審査の結果によっては保証付金利プランとなる場合があり、この場合は上記とは異なる金利となります。
※別途借入金額の2.20%(税込)の事務手数料が発生します。
ボーナス払 | 35年間返済 | 30年間返済 | 25年間返済 | 20年間返済 | 15年間返済 | 10年間返済 |
|---|---|---|---|---|---|---|
0万円 | -円/月 | -円/月 | -円/月 | -円/月 | -円/月 | -円/月 |
5万円 | -円/月 | -円/月 | -円/月 | -円/月 | -円/月 | -円/月 |
10万円 | -円/月 | -円/月 | -円/月 | -円/月 | -円/月 | -円/月 |
15万円 | -円/月 | -円/月 | -円/月 | -円/月 | -円/月 | -円/月 |
20万円 | -円/月 | -円/月 | -円/月 | -円/月 | -円/月 | -円/月 |
25万円 | -円/月 | -円/月 | -円/月 | -円/月 | -円/月 | -円/月 |
30万円 | -円/月 | -円/月 | -円/月 | -円/月 | -円/月 | -円/月 |
ボーナス払 | 35年間返済 | 30年間返済 | 25年間返済 | 20年間返済 | 15年間返済 | 10年間返済 |
|---|---|---|---|---|---|---|
0万円 | -円/月 | -円/月 | -円/月 | -円/月 | -円/月 | -円/月 |
5万円 | -円/月 | -円/月 | -円/月 | -円/月 | -円/月 | -円/月 |
10万円 | -円/月 | -円/月 | -円/月 | -円/月 | -円/月 | -円/月 |
15万円 | -円/月 | -円/月 | -円/月 | -円/月 | -円/月 | -円/月 |
20万円 | -円/月 | -円/月 | -円/月 | -円/月 | -円/月 | -円/月 |
25万円 | -円/月 | -円/月 | -円/月 | -円/月 | -円/月 | -円/月 |
30万円 | -円/月 | -円/月 | -円/月 | -円/月 | -円/月 | -円/月 |
- ・金利は、今後35年間変動しない仮定のもと元利均等返済方式で計算しております。
- ・実際の金利は、各金融機関のホームページをご参照ください。
- ・ローン契約の際には、手数料や印紙税などの諸費用が別途かかります。
- ・ボーナス支払総額が総支払額の50%を超えている場合、上記の表では「ローン不可」となります。
- ・シミュレーションを利用し、それが原因で利用者が受けたいかなる損害についても当社は一切責任を負いません。あらかじめご了承ください。
※価格は物件の代金総額を表示しており、消費税が課税される場合は税込み価格です。 (1000円未満は切り上げ。)
※写真に写っている、またはパース(絵)や間取り図に描かれている家具や車などは、特にコメントがない場合、販売価格に含まれません。
※敷地権利が定期借地権のものは価格に権利金を含みます。
※建築条件付き土地価格には、建物価格は含まれません。
※物件情報は、原則として情報提供日の2日前に最終確認した情報です。
※完成予想図はいずれも外構、植栽、外観等実際のものとは多少異なることがあります。
※モデルルーム・モデルハウス・展示場・ショールームの画像の場合、今回販売の物件と異なる場合があります。
※CG合成の画像の場合、実際とは多少異なる場合があります。
※物件特徴:販売戸数が複数の物件は、全ての住戸に該当しない項目もあります。
※0800で始まる電話番号は通話料無料です。また、サービス検証のため当該番号の利用履歴を個人が特定できない範囲で取得しています。予めご了承ください。
※完成後1年以上を経過した未入居物件が掲載される場合があります。ご了承ください。
※新着:物件情報が「SUUMO」に掲載された日から1週間表示されます。
※価格更新:物件価格が変更された日から1週間表示されます。
※販売予定物件はすべて、販売開始するまで契約または予約の申込みはできません。
※購入の前には物件内容や契約条件についてご自身で十分な確認をしていただくようにお願いいたします。
※建築条件土地の情報内に掲載されている、建物プラン例は、土地購入者の設計プランの参考の一例であって、プランの採用可否は任意です。
※土地(建築条件なし)で「建物プラン例」が表記してある時、そのプラン例は特定の建築請負会社によるもので、当該建築請負会社以外で建てた場合、同様のものが同価格で建てられるとは限りません。また建築請負会社を特定するものではありません。
※建築条件付き土地とは、その土地に建築する建物の建築請負契約が、一定期間内に成立することを条件として売買される土地のことをいいます。建築請負契約成立に向けて設計プランを協議するため、土地購入者が自己の希望する建物の設計協議をするために必要な相当の期間の交渉期間が設定され、その期間内で希望を満たすプランが実現できたかどうかにより結論を出します。なお、この期間は概ね3ヶ月程度とされています。納得のいくプランが出来ず、建築請負契約が成立しない場合、土地売買契約は白紙に戻り、土地契約にかかった代金(土地代金、手付金など)は名目のいかんに関わらず、全て返却されます。












