NEW一戸建て堀崎町(七里駅) 3499万円・3599万円の詳細情報
3499万円・3599万円
月々のローン返済額を試算この物件は未完成のため、掲載写真(外観、内観、設備等)には、施工例が含まれている場合があります。物件詳細については、掲載の不動産会社宛にお問合せください。
◆地元グランコンシェル おススメ物件◆物件はいつでもご見学できます♪
物件概要
| 物件名 | 堀崎町(七里駅) 3499万円・3599万円 | ||||
|---|---|---|---|---|---|
| 所在地 | 埼玉県さいたま市見沼区堀崎町227 | ||||
| 交通 |
東武野田線「七里」歩14分 東武野田線「大和田」歩17分 JR宇都宮線「東大宮」歩28分 | ||||
| 構造および階数 | 木造2階建 | 建ぺい率・容積率 | 建ペい率:60%、容積率:200% | ||
| 完成予定日 | 2025年12月上旬予定 | 入居可能予定日 | 相談 | ||
| 土地権利 | 所有権 | ||||
| 駐車場 | - | 国土法届出 | - | ||
| 地目 | 宅地 | 道路付け | 道路幅:4m、アスファルト舗装、位置指定道路/90.92㎡のうち持分各1/5 | ||
| 機構融資 | - | 取引態様 | 仲介 | ||
| 用途地域 | 1種中高 | ||||
| 施工会社 | - | ||||
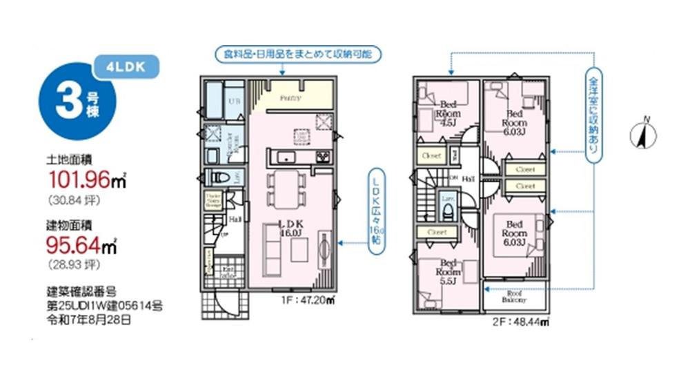
| 建築確認番号 | 第25UDI1W建05614号 | ||||
| 設備 | 設計住宅性能評価書 / 建設住宅性能評価書(新築時) / 地盤調査済 / 2沿線以上利用可 / 市街地が近い / システムキッチン / 浴室乾燥機 / 陽当り良好 / 全居室収納 / 駅まで平坦 / 閑静な住宅地 / LDK15畳以上 / 庭 / シャワー付洗面化粧台 / 対面式キッチン / ハイルーフ駐車場 / バリアフリー / トイレ2ヶ所 / 浴室1坪以上 / 2階建 / 南面バルコニー / 複層ガラス / 温水洗浄便座 / 床下収納 / 浴室に窓 / TVモニタ付インターホン / 緑豊かな住宅地 / 都市近郊 / 通風良好 / 全居室フローリング / 眺望良好 / パントリー(食器・食品の収納庫) / 全居室複層ガラスか複層サッシ / 都市ガス / 小学校 徒歩10分以内 / ルーフバルコニー / 平坦地 / 周辺交通量少なめ / 浄水器 | ||||
| その他制限事項 | 景観法による規制有、宅地造成工事規制区域、高度地区、準防火地域 | ||||
| 備考 | 景観法による規制有、宅地造成工事規制区域、高度地区、準防火地域 / 担当者:下山 信吉、設備:公営水道、本下水、都市ガス、建築確認番号:第25UDI1W建05614号 | ||||
情報更新日:2025/11/25 次回更新予定日:情報提供より8日以内
販売概要
| 販売価格 | 3499万円・3599万円 お問い合わせはこちら | ||||
|---|---|---|---|---|---|
| 販売スケジュール | - | ||||
| 販売戸数/総戸数 | 2戸/3戸 | ||||
| 最多価格帯 | - | ||||
| 間取り | 4LDK | ||||
| 建物面積 | 95.43㎡・95.64㎡(28.86坪・28.93坪) | 土地面積 | 101.96㎡~105.98㎡(30.84坪~32.05坪)(登記) | ||
| その他施設費用、償却費 | - | ||||
| その他費用 | - | ||||
| 登録受付 | - | 抽選日 | - | ||
| モデルルーム情報 | オープンハウス(事前に必ず予約してください)日程/毎週土日祝時間/10:00~17:00■地元グランコンシェル おススメ物件■いつでもご見学できます♪お気軽にお問い合わせください♪地元業者ならではのお話をさせていただきます♪■東武野田線「七里駅」徒歩14分■JR宇都宮線「東大宮駅」・東武野田線「大和田駅」 徒歩圏内■敷地面積ゆったり30坪~32坪■ボリューム・収納力のある建物■全棟4LDK■プライバシー良好なリビング16帖■全居室クローゼット付き■水廻り集中型の設計■3号棟 大型パントリー付き■断熱等級6取得■耐震等級3取得(最高等級)■充実の設備■住環境・生活施設良好■交通量の少ない前面道路4.0m ・・などなど見所満載です♪◇当社は、一人一人のお客様に心のこもったサービスの提供を心掛けております。◇一人一人のお客様にあった住宅ローンをご提案させていただきます。◇平日のご見学も大歓迎です。◇無料送迎サービスを行っております。お気軽にご連絡下さい。◇お家探しでご不安な事などお気軽にご相談下さい。◇地元業者ならではの、、周辺環境も詳しくご説明させていただきます。急なご見学は下記ダイアルまでお気軽にご連絡下さい♪◆◆◆ フリーダイアル : 0120-166-280 ◆◆◆■ 経験豊富なスタッフが在籍するグランコンシェルにお任せ下さい! ■ お客様のご相談承ります! | ||||
| 取引条件有効期限 | 2026年1月31日 | ||||
会社情報
| お問い合わせ先 |
(株)グランコンシェル 0120-166280(無料通話) 上記の電話番号にお問合せください。(携帯・PHS 可) 【物件番号】78866138 | ||||
|---|---|---|---|---|---|
| 会社概要 |
(株)グランコンシェル[埼玉県知事(2)第023445号] - | ||||
この物件の地図・周辺環境
このアイコンは物件のおおよその位置を表しており、実際の場所と異なる場合がございます。詳しくは不動産会社に直接ご確認ください。
※地図上に表示される物件の位置は付近住所に所在することを表すものであり、実際の物件所在地とは異なる場合がございます。
※地図の更新タイミングの関係で、物件情報が実際のものとは異なる場合や最新情報に更新されていない場合がございます。
※以下の南西諸島及び離島においては、表示される物件の位置が実際のものとは数百メートル程度ずれる場合がございます。
東京都:硫黄島・青ヶ島、沖縄県: 北大東島・南大東島・多良間島・水納島・与那国島・宮古諸島・石垣島・竹富島
取り扱い不動産会社
- 電話番号
- 0120-166280
- 受付
- 営業時間:09:00~18:00 / 定休日:毎週水曜日
- 物件番号
- 78866138
七里駅の口コミ
お買い物・飲食
4.0
周辺にスーパー、コンビニ、ドラッグストアは揃っているため便利である。またスーパーは深夜まで営業しているため、帰りが遅くなっても安心である。
お買い物・飲食
3.0
最近は飲食店やスーパーができて便利になったと思います。環境も緑が多くて落ち着いてるのでよいと思います。
住宅ローンシミュレーション
住宅ローン設定
物件価格
返済期間
頭金
ボーナス払(年1回)
※
※物件価格の80%以下でお借入れの場合
※50歳以下で一般団信をご選択の場合
※住宅ローン金利優遇割適用後の変動金利(全期間引き下げプラン)
※実際のお借入日の金利により変動します。
※審査の結果によっては保証付金利プランとなる場合があり、この場合は上記とは異なる金利となります。
※別途借入金額の2.20%(税込)の事務手数料が発生します。
ボーナス払 | 35年間返済 | 30年間返済 | 25年間返済 | 20年間返済 | 15年間返済 | 10年間返済 |
|---|---|---|---|---|---|---|
0万円 | -円/月 | -円/月 | -円/月 | -円/月 | -円/月 | -円/月 |
5万円 | -円/月 | -円/月 | -円/月 | -円/月 | -円/月 | -円/月 |
10万円 | -円/月 | -円/月 | -円/月 | -円/月 | -円/月 | -円/月 |
15万円 | -円/月 | -円/月 | -円/月 | -円/月 | -円/月 | -円/月 |
20万円 | -円/月 | -円/月 | -円/月 | -円/月 | -円/月 | -円/月 |
25万円 | -円/月 | -円/月 | -円/月 | -円/月 | -円/月 | -円/月 |
30万円 | -円/月 | -円/月 | -円/月 | -円/月 | -円/月 | -円/月 |
ボーナス払 | 35年間返済 | 30年間返済 | 25年間返済 | 20年間返済 | 15年間返済 | 10年間返済 |
|---|---|---|---|---|---|---|
0万円 | -円/月 | -円/月 | -円/月 | -円/月 | -円/月 | -円/月 |
5万円 | -円/月 | -円/月 | -円/月 | -円/月 | -円/月 | -円/月 |
10万円 | -円/月 | -円/月 | -円/月 | -円/月 | -円/月 | -円/月 |
15万円 | -円/月 | -円/月 | -円/月 | -円/月 | -円/月 | -円/月 |
20万円 | -円/月 | -円/月 | -円/月 | -円/月 | -円/月 | -円/月 |
25万円 | -円/月 | -円/月 | -円/月 | -円/月 | -円/月 | -円/月 |
30万円 | -円/月 | -円/月 | -円/月 | -円/月 | -円/月 | -円/月 |
- ・金利は、今後35年間変動しない仮定のもと元利均等返済方式で計算しております。
- ・実際の金利は、各金融機関のホームページをご参照ください。
- ・ローン契約の際には、手数料や印紙税などの諸費用が別途かかります。
- ・ボーナス支払総額が総支払額の50%を超えている場合、上記の表では「ローン不可」となります。
- ・シミュレーションを利用し、それが原因で利用者が受けたいかなる損害についても当社は一切責任を負いません。あらかじめご了承ください。
※価格は物件の代金総額を表示しており、消費税が課税される場合は税込み価格です。 (1000円未満は切り上げ。)
※写真に写っている、またはパース(絵)や間取り図に描かれている家具や車などは、特にコメントがない場合、販売価格に含まれません。
※敷地権利が定期借地権のものは価格に権利金を含みます。
※建築条件付き土地価格には、建物価格は含まれません。
※物件情報は、原則として情報提供日の2日前に最終確認した情報です。
※完成予想図はいずれも外構、植栽、外観等実際のものとは多少異なることがあります。
※モデルルーム・モデルハウス・展示場・ショールームの画像の場合、今回販売の物件と異なる場合があります。
※CG合成の画像の場合、実際とは多少異なる場合があります。
※物件特徴:販売戸数が複数の物件は、全ての住戸に該当しない項目もあります。
※0800で始まる電話番号は通話料無料です。また、サービス検証のため当該番号の利用履歴を個人が特定できない範囲で取得しています。予めご了承ください。
※完成後1年以上を経過した未入居物件が掲載される場合があります。ご了承ください。
※新着:物件情報が「SUUMO」に掲載された日から1週間表示されます。
※価格更新:物件価格が変更された日から1週間表示されます。
※販売予定物件はすべて、販売開始するまで契約または予約の申込みはできません。
※購入の前には物件内容や契約条件についてご自身で十分な確認をしていただくようにお願いいたします。
※建築条件土地の情報内に掲載されている、建物プラン例は、土地購入者の設計プランの参考の一例であって、プランの採用可否は任意です。
※土地(建築条件なし)で「建物プラン例」が表記してある時、そのプラン例は特定の建築請負会社によるもので、当該建築請負会社以外で建てた場合、同様のものが同価格で建てられるとは限りません。また建築請負会社を特定するものではありません。
※建築条件付き土地とは、その土地に建築する建物の建築請負契約が、一定期間内に成立することを条件として売買される土地のことをいいます。建築請負契約成立に向けて設計プランを協議するため、土地購入者が自己の希望する建物の設計協議をするために必要な相当の期間の交渉期間が設定され、その期間内で希望を満たすプランが実現できたかどうかにより結論を出します。なお、この期間は概ね3ヶ月程度とされています。納得のいくプランが出来ず、建築請負契約が成立しない場合、土地売買契約は白紙に戻り、土地契約にかかった代金(土地代金、手付金など)は名目のいかんに関わらず、全て返却されます。





















