一戸建てポラスの分譲住宅 ブリスト大宮 ヴィラ・セレス2期販売の詳細情報
3780万円~4680万円
月々のローン返済額を試算【全18邸/3つのリゾートスタイル】モデルハウス完成!即見学可能
外観・室内・設備(26枚)

リビング
天井高2.7mのリビングが空間に縦の開放感を演出。明るさと開放感で、家族の集まるリビングがより快適で居心地の良い空間になります。※5号棟/2025年9月撮影/家具・照明・カーテンをCG合成しています。

リビング
団らんの中心となるLDKにたっぷりの広さを確保し、開放感あふれる空間を描きました。家族が集まってもゆとりを感じながら団らんを楽します。※4号棟/2025年9月撮影/家具・照明・カーテンをCG合成しています。

ECO ONE X5/ハイブリッド給湯・暖房システム
「ECO ONE X5」は、ガスと電気の良い部分を取り出して併用したハイブリッド給湯・暖房システム。スマートフォンアプリを活用して、屋内・外出先から給湯器や床暖房のリモコン操作、光熱費のチェックができます。

【高耐震構造】
ポラスグループは、家の強度向上だけでなく、明るく広い空間を提供するためにオリジナルの耐力壁を開発・採用しています。最大規模の振動実験施設を所有し、幾多の実験を通じて高品質な住空間を提案するため、強力な耐力壁や金物なども開発しています。

【全棟構造計算を実施】
ポラスグループは全ての建物で基礎から構造まで一貫して構造計算を行い、設計段階で「ウッド・イノベーター NEXT」を使用して地震シミュレーションを実施。一邸毎に最適な補強を施し、安全かつデザイン性の高い住宅を実現。
周辺環境・アクセス(10枚)
物件概要
| 物件名 | ポラスの分譲住宅 ブリスト大宮 ヴィラ・セレス2期販売 | ||||
|---|---|---|---|---|---|
| 所在地 | 埼玉県さいたま市見沼区大字中川字諏訪863番1他 | ||||
| 交通 |
JR宇都宮線「大宮」バス20分西中野歩10分 JR宇都宮線「大宮」歩36分~37分 JR宇都宮線「さいたま新都心」歩33分~34分 | ||||
| 構造および階数 | 木造2階建(在来工法) | 建ぺい率・容積率 | 建ぺい率50% 容積率100% | ||
| 完成予定日 | 2025年9月1日 | 入居可能予定日 | 2025年12月15日予定 | ||
| 土地権利 | 所有権 | ||||
| 駐車場 | - | 国土法届出 | - | ||
| 地目 | 畑 | 道路付け | 道路幅:6m、アスファルト舗装、[私道負担]なし [道路]公道 南 6m 公道 北 6m 公道 東 6m 公道 西 6m | ||
| 機構融資 | - | 取引態様 | 売主 | ||
| 用途地域 | 1種低層 | ||||
| 施工会社 | ポラテック(株) | ||||
| 建築確認番号 | SJK-KX255602450号(2025年5月15日付)2号棟他 | ||||
| 設備 | 駐車2台可 / 2沿線以上利用可 / LDK20畳以上 / 年度内引渡可 / 省エネ給湯器 / 市街地が近い / 南向き / システムキッチン / 浴室乾燥機 / 陽当り良好 / 全居室収納 / 南側道路面す / 閑静な住宅地 / LDK15畳以上 / 前道6m以上 / 角地 / 始発駅 / 整形地 / 庭 / シャワー付洗面化粧台 / 対面式キッチン / ワイドバルコニー / 3面採光 / トイレ2ヶ所 / 浴室1坪以上 / 2階建 / 南面バルコニー / 複層ガラス / 全室南向き / 温水洗浄便座 / 南庭 / 床下収納 / 浴室に窓 / TVモニタ付インターホン / 節水型トイレ / 都市近郊 / 前面棟無 / 全居室フローリング / パントリー(食器・食品の収納庫) / ウォークインクローゼット / 天井高2.5m以上 / リビング階段 / 都市ガス / シューズインクローク / 全室2面採光 / 平坦地 / 床暖房 / テラス / 食器洗乾燥機 / 隣家との間隔が大きい / 浄水器 / バルコニー・屋上に水栓あり / スマートキー | ||||
| その他制限事項 | - | ||||
| 備考 | 設備:公営水道、東京電力・他、都市ガス、本下水、外構、植栽その他付帯設備一式、建築確認番号:SJK-KX255602450号(2025年5月15日付)2号棟他、※9・13号棟はモデルハウスとして使用するため、契約後(2026年2月22日まで)も内覧させて頂きます。 ※2号棟は抽選販売となります。2025年11月1日(土)12:00受付締切、12:30抽選。 ※入居予定は号棟により異なります。詳しくは販売員までお問い合わせください。 ※ごみ置き場は共有持分となります。ごみ集積用地(5.17㎡×1/18) ※当分譲地には未利用地があります。未利用地(3.27㎡×1/18) ※各施設までの徒歩所要時間(距離)は、「最も遠い号棟を起点」に計測しております。 ■その他の設備 公営水道/東京電力・他/都市ガス/本下水/外構/植栽その他付帯設備一式 | ||||
情報更新日:2025/10/30 次回更新予定日:情報提供より8日以内
販売概要
| 販売価格 | 3780万円~4680万円 お問い合わせはこちら | ||||
|---|---|---|---|---|---|
| 販売スケジュール | 【2号棟】抽選販売◆2025年11月1日(土)12:00受付締切、12:30抽選。 | ||||
| 販売戸数/総戸数 | 5戸/18戸 | ||||
| 最多価格帯 | - | ||||
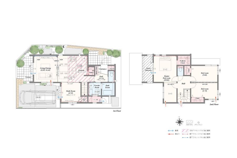
| 間取り | 3LDK~4LDK | ||||
| 建物面積 | 91.5㎡~98.53㎡ | 土地面積 | 110㎡~122.4㎡(登記) | ||
| その他施設費用、償却費 | - | ||||
| その他費用 | - | ||||
| 登録受付 | - | 抽選日 | - | ||
| モデルルーム情報 | - | ||||
| 取引条件有効期限 | 2025年11月1日 | ||||
会社情報
| お問い合わせ先 |
中央グリーン開発(株)本店 0120-652381(無料通話) 上記の電話番号にお問合せください。(携帯・PHS 可) 【物件番号】77525047 | ||||
|---|---|---|---|---|---|
| 会社概要 |
中央グリーン開発(株)本店[国土交通大臣(5)第006871号] - | ||||
取り扱い不動産会社
- 電話番号
- 0120-652381
- 受付
- 営業時間:9:00~18:00 / 定休日:火曜・水曜
- 物件番号
- 77525047
ポラスグループ 中央グリーン開発株式会社
大宮駅の口コミ
お買い物・飲食
4.0
埼玉県最大規模の広さを誇る大宮駅が最寄りになります。JR東日本の各新幹線が通る駅のため、ここで乗り換えをされるお客さんも多く利用する駅です。また、ビジネス&商業施設の最寄り駅でもあるので、昼夜問わず利用客は大勢います。 私は乗り換え又は東口しか利用していませんが、駅前の区画整理がされていない東口周辺の雑多な雰囲気(南銀座など)が好きな少数派でしょう。 大きく立派な商業ビル等に囲まれ都会化が著しい大宮の姿には驚かされますね。 巨大な駅ですが、飲食店など様々な店舗が駅ビルや駅構内にもありますので、乗り換えや買い物で時間をつぶすには苦にならないと思います。
お買い物・飲食
5.0
ドムショッピングセンターだけはイケてませんね。すたれた感じのショッピングモール、駅前なのが取り得だけです。ダイエーが縮小になり駅前の総合スーパーの魅力も無くなった。複合商業ビルとしても魅力が無くなった。古い雑居ビルみたいな印象になってしまったのが残念
住宅ローンシミュレーション
住宅ローン設定
物件価格
返済期間
頭金
ボーナス払(年1回)
※
※物件価格の80%以下でお借入れの場合
※50歳以下で一般団信をご選択の場合
※住宅ローン金利優遇割適用後の変動金利(全期間引き下げプラン)
※実際のお借入日の金利により変動します。
※審査の結果によっては保証付金利プランとなる場合があり、この場合は上記とは異なる金利となります。
※別途借入金額の2.20%(税込)の事務手数料が発生します。
ボーナス払 | 35年間返済 | 30年間返済 | 25年間返済 | 20年間返済 | 15年間返済 | 10年間返済 |
|---|---|---|---|---|---|---|
0万円 | -円/月 | -円/月 | -円/月 | -円/月 | -円/月 | -円/月 |
5万円 | -円/月 | -円/月 | -円/月 | -円/月 | -円/月 | -円/月 |
10万円 | -円/月 | -円/月 | -円/月 | -円/月 | -円/月 | -円/月 |
15万円 | -円/月 | -円/月 | -円/月 | -円/月 | -円/月 | -円/月 |
20万円 | -円/月 | -円/月 | -円/月 | -円/月 | -円/月 | -円/月 |
25万円 | -円/月 | -円/月 | -円/月 | -円/月 | -円/月 | -円/月 |
30万円 | -円/月 | -円/月 | -円/月 | -円/月 | -円/月 | -円/月 |
ボーナス払 | 35年間返済 | 30年間返済 | 25年間返済 | 20年間返済 | 15年間返済 | 10年間返済 |
|---|---|---|---|---|---|---|
0万円 | -円/月 | -円/月 | -円/月 | -円/月 | -円/月 | -円/月 |
5万円 | -円/月 | -円/月 | -円/月 | -円/月 | -円/月 | -円/月 |
10万円 | -円/月 | -円/月 | -円/月 | -円/月 | -円/月 | -円/月 |
15万円 | -円/月 | -円/月 | -円/月 | -円/月 | -円/月 | -円/月 |
20万円 | -円/月 | -円/月 | -円/月 | -円/月 | -円/月 | -円/月 |
25万円 | -円/月 | -円/月 | -円/月 | -円/月 | -円/月 | -円/月 |
30万円 | -円/月 | -円/月 | -円/月 | -円/月 | -円/月 | -円/月 |
- ・金利は、今後35年間変動しない仮定のもと元利均等返済方式で計算しております。
- ・実際の金利は、各金融機関のホームページをご参照ください。
- ・ローン契約の際には、手数料や印紙税などの諸費用が別途かかります。
- ・ボーナス支払総額が総支払額の50%を超えている場合、上記の表では「ローン不可」となります。
- ・シミュレーションを利用し、それが原因で利用者が受けたいかなる損害についても当社は一切責任を負いません。あらかじめご了承ください。
※価格は物件の代金総額を表示しており、消費税が課税される場合は税込み価格です。 (1000円未満は切り上げ。)
※写真に写っている、またはパース(絵)や間取り図に描かれている家具や車などは、特にコメントがない場合、販売価格に含まれません。
※敷地権利が定期借地権のものは価格に権利金を含みます。
※建築条件付き土地価格には、建物価格は含まれません。
※物件情報は、原則として情報提供日の2日前に最終確認した情報です。
※完成予想図はいずれも外構、植栽、外観等実際のものとは多少異なることがあります。
※モデルルーム・モデルハウス・展示場・ショールームの画像の場合、今回販売の物件と異なる場合があります。
※CG合成の画像の場合、実際とは多少異なる場合があります。
※物件特徴:販売戸数が複数の物件は、全ての住戸に該当しない項目もあります。
※0800で始まる電話番号は通話料無料です。また、サービス検証のため当該番号の利用履歴を個人が特定できない範囲で取得しています。予めご了承ください。
※完成後1年以上を経過した未入居物件が掲載される場合があります。ご了承ください。
※新着:物件情報が「SUUMO」に掲載された日から1週間表示されます。
※価格更新:物件価格が変更された日から1週間表示されます。
※販売予定物件はすべて、販売開始するまで契約または予約の申込みはできません。
※購入の前には物件内容や契約条件についてご自身で十分な確認をしていただくようにお願いいたします。
※建築条件土地の情報内に掲載されている、建物プラン例は、土地購入者の設計プランの参考の一例であって、プランの採用可否は任意です。
※土地(建築条件なし)で「建物プラン例」が表記してある時、そのプラン例は特定の建築請負会社によるもので、当該建築請負会社以外で建てた場合、同様のものが同価格で建てられるとは限りません。また建築請負会社を特定するものではありません。
※建築条件付き土地とは、その土地に建築する建物の建築請負契約が、一定期間内に成立することを条件として売買される土地のことをいいます。建築請負契約成立に向けて設計プランを協議するため、土地購入者が自己の希望する建物の設計協議をするために必要な相当の期間の交渉期間が設定され、その期間内で希望を満たすプランが実現できたかどうかにより結論を出します。なお、この期間は概ね3ヶ月程度とされています。納得のいくプランが出来ず、建築請負契約が成立しない場合、土地売買契約は白紙に戻り、土地契約にかかった代金(土地代金、手付金など)は名目のいかんに関わらず、全て返却されます。









































