一戸建て栄和3(南与野駅) 4299万円の詳細情報
4299万円
月々のローン返済額を試算◇◆この物件も該当します◆◇※物件概要・詳細の『諸費用欄』をチェック※
外観・室内・設備(14枚)
物件概要
| 物件名 | 栄和3(南与野駅) 4299万円 | ||||
|---|---|---|---|---|---|
| 所在地 | 埼玉県さいたま市桜区栄和3 | ||||
| 交通 |
JR埼京線「南与野」歩17分 JR京浜東北線「北浦和」バス15分栄和北町歩3分 JR埼京線「与野本町」歩23分 | ||||
| 構造および階数 | 地上3階 木造 | 建ぺい率・容積率 | 建蔽率60% 容積率200% | ||
| 完成予定日 | 2025年3月 | 入居可能予定日 | 即引渡可 | ||
| 土地権利 | 所有権 | ||||
| 駐車場 | - | 国土法届出 | - | ||
| 地目 | 宅地 | 道路付け | 道路幅:4m、アスファルト舗装 | ||
| 機構融資 | - | 取引態様 | 仲介 | ||
| 用途地域 | 準工業 | ||||
| 施工会社 | - | ||||
| 建築確認番号 | :KBI-YKH24-10-3250 | ||||
| 設備 | フラット35Sに対応 / 即引渡可 / LDK20畳以上 / 省エネ給湯器 / 南向き / システムキッチン / 浴室乾燥機 / 陽当り良好 / 全居室収納 / シャワー付洗面化粧台 / 対面式キッチン / バリアフリー / トイレ2ヶ所 / 浴室1坪以上 / 2面以上バルコニー / 複層ガラス / オートバス / 温水洗浄便座 / 床下収納 / 浴室に窓 / TVモニタ付インターホン / 節水型トイレ / 通風良好 / 全居室フローリング / パントリー(食器・食品の収納庫) / ウォークインクローゼット / 3階建以上 / リビング階段 / 全居室複層ガラスか複層サッシ / 都市ガス / ルーフバルコニー / 納戸 / 食器洗乾燥機 / 浄水器 / 高機能トイレ | ||||
| その他制限事項 | - | ||||
| 備考 | 担当者:高橋 匠、設備:公営水道 下水 都市ガス、建築確認番号::KBI-YKH24-10-3250 | ||||
情報更新日:2025/11/16 次回更新予定日:情報提供より8日以内
販売概要
| 販売価格 | 4299万円 お問い合わせはこちら | ||||
|---|---|---|---|---|---|
| 販売スケジュール | - | ||||
| 販売戸数/総戸数 | 1戸/2戸 | ||||
| 最多価格帯 | - | ||||
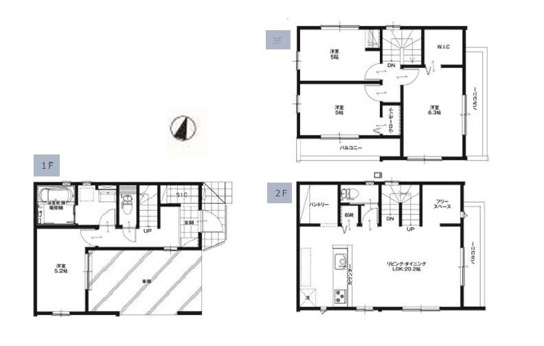
| 間取り | 3LDK+S(納戸) | ||||
| 建物面積 | 102.26㎡(30.93坪) | 土地面積 | 78.62㎡(23.78坪) | ||
| その他施設費用、償却費 | - | ||||
| その他費用 | その他諸費用:【仲 介 手 数 料 無 料】 ■□この物件も『仲介手数料無料!』でご紹介! 仲介手数料とは? A.不動産仲介会社にお支払いする手数料(諸費用の一部)です。 例)物件価格3000万円の場合・・約72万円 →ハウスネットパートナーは『0円』 物件価格3000万円の場合・・約105万円 →ハウスネットパートナーは『0円』 物件価格4000万円の場合・・約138万円 →ハウスネットパートナーは『0円』 物件価格5000万円の場合・・約171万円 →ハウスネットパートナーは『0円』 【仲 介 手 数 料 無 料】 【仲 介 手 数 料 無 料】 【仲 介 手 数 料 無 料】 ☆キャッシュバックもご相談ください! | ||||
| 登録受付 | - | 抽選日 | - | ||
| モデルルーム情報 | 現地案内会(事前に必ずお問い合わせください)日程/11月1日(土曜日)~12月31日(水曜日)時間/9:00~19:00□■新築戸建専門の不動産屋だからできるサービスを提供!■□1.最大の特徴は・・・ 下記、この会社の関連サイト『ハウスネットパートナーの特徴』をクリック! 下記、物件概要欄『取引にかかる費用』欄を見て下さい!2.埼玉県内3店舗で営業中・・・ 最寄りの店舗(川口店・大宮店・越谷店)をご利用ください。3.無料送迎します・・・ 弊社掲載エリア内の物件であれば無料で送迎します!4.お問い合わせください・・・物件の住所だけを知りたい方、購入に関する費用を知りたい方、資料だけ請求したい方、 もちろん内覧を希望される方のお問い合わせも大歓迎です!---------------------------------------■日時毎日、ご見学が可能です。9:00~19:00まで■ご案内方法ご自宅へお迎え・最寄駅等でお待ち合わせ・弊社へのご来社など、ご相談くださいませ。ご希望があれば周辺環境、お客様の希望に合わせた他の物件もご案内をいたします。■ご予約方法事前に鍵の手配が必要な場合がありますので、お早目にご連絡をいただけると、ご案内がスムーズです。■その他、各種ご相談もお気軽にどうぞ!◎住宅ローンのご相談・繰り上げ返済は「いつ」「どのくらい」するが効果的?・どこの銀行で借りるとお得なの? ・適切な借入額は? etc■充実したキッズスペースでお迎え♪お子様が退屈しないよう、ユーチューブ、DVD、おもちゃ、絵本等、キッズスペースを充実させておりますので、ご一緒にお越しください。■店舗前の駐車場をご利用下さい! | ||||
| 取引条件有効期限 | 2025年11月23日 | ||||
会社情報
| お問い合わせ先 |
(株)ハウスネットパートナー大宮店 0120-098170(無料通話) 上記の電話番号にお問合せください。(携帯・PHS 可) 【物件番号】77811055 | ||||
|---|---|---|---|---|---|
| 会社概要 |
(株)ハウスネットパートナー大宮店[埼玉県知事(2)第023376号] 埼玉県さいたま市大宮区上小町1232-1 【所属団体】 埼玉県知事(2)第023376号(公社)全日本不動産協会埼玉県本部会員 (公社)首都圏不動産公正取引協議会加盟 | ||||
取り扱い不動産会社
- 電話番号
- 0120-098170
- 受付
- 営業時間:9:00~19:00 / 定休日:無休
- 物件番号
- 77811055
南与野駅の口コミ
お買い物・飲食
5.0
ヨークマートが近くにあるので、買い物には困らない。自分が住んでいるときは近くにコンビニがなかったが今はバイパス沿いにローソンがある。
自然環境
2.0
自然が豊かとは名ばかりの田舎風情のため、道には犬の糞があったり、 鳩の糞があったり、 アーバンライフが楽しめるという建物ではないと思います。 公園も整備された公園ではありませんし、 ロヂャースの横は田んぼなので、田園風景です。 こんなところにマンションを作ることが不思議だと思います。
さいたま市桜区の駅から新築一戸建てを探す
住宅ローンシミュレーション
住宅ローン設定
物件価格
返済期間
頭金
ボーナス払(年1回)
※
※物件価格の80%以下でお借入れの場合
※50歳以下で一般団信をご選択の場合
※住宅ローン金利優遇割適用後の変動金利(全期間引き下げプラン)
※実際のお借入日の金利により変動します。
※審査の結果によっては保証付金利プランとなる場合があり、この場合は上記とは異なる金利となります。
※別途借入金額の2.20%(税込)の事務手数料が発生します。
ボーナス払 | 35年間返済 | 30年間返済 | 25年間返済 | 20年間返済 | 15年間返済 | 10年間返済 |
|---|---|---|---|---|---|---|
0万円 | -円/月 | -円/月 | -円/月 | -円/月 | -円/月 | -円/月 |
5万円 | -円/月 | -円/月 | -円/月 | -円/月 | -円/月 | -円/月 |
10万円 | -円/月 | -円/月 | -円/月 | -円/月 | -円/月 | -円/月 |
15万円 | -円/月 | -円/月 | -円/月 | -円/月 | -円/月 | -円/月 |
20万円 | -円/月 | -円/月 | -円/月 | -円/月 | -円/月 | -円/月 |
25万円 | -円/月 | -円/月 | -円/月 | -円/月 | -円/月 | -円/月 |
30万円 | -円/月 | -円/月 | -円/月 | -円/月 | -円/月 | -円/月 |
ボーナス払 | 35年間返済 | 30年間返済 | 25年間返済 | 20年間返済 | 15年間返済 | 10年間返済 |
|---|---|---|---|---|---|---|
0万円 | -円/月 | -円/月 | -円/月 | -円/月 | -円/月 | -円/月 |
5万円 | -円/月 | -円/月 | -円/月 | -円/月 | -円/月 | -円/月 |
10万円 | -円/月 | -円/月 | -円/月 | -円/月 | -円/月 | -円/月 |
15万円 | -円/月 | -円/月 | -円/月 | -円/月 | -円/月 | -円/月 |
20万円 | -円/月 | -円/月 | -円/月 | -円/月 | -円/月 | -円/月 |
25万円 | -円/月 | -円/月 | -円/月 | -円/月 | -円/月 | -円/月 |
30万円 | -円/月 | -円/月 | -円/月 | -円/月 | -円/月 | -円/月 |
- ・金利は、今後35年間変動しない仮定のもと元利均等返済方式で計算しております。
- ・実際の金利は、各金融機関のホームページをご参照ください。
- ・ローン契約の際には、手数料や印紙税などの諸費用が別途かかります。
- ・ボーナス支払総額が総支払額の50%を超えている場合、上記の表では「ローン不可」となります。
- ・シミュレーションを利用し、それが原因で利用者が受けたいかなる損害についても当社は一切責任を負いません。あらかじめご了承ください。
※価格は物件の代金総額を表示しており、消費税が課税される場合は税込み価格です。 (1000円未満は切り上げ。)
※写真に写っている、またはパース(絵)や間取り図に描かれている家具や車などは、特にコメントがない場合、販売価格に含まれません。
※敷地権利が定期借地権のものは価格に権利金を含みます。
※建築条件付き土地価格には、建物価格は含まれません。
※物件情報は、原則として情報提供日の2日前に最終確認した情報です。
※完成予想図はいずれも外構、植栽、外観等実際のものとは多少異なることがあります。
※モデルルーム・モデルハウス・展示場・ショールームの画像の場合、今回販売の物件と異なる場合があります。
※CG合成の画像の場合、実際とは多少異なる場合があります。
※物件特徴:販売戸数が複数の物件は、全ての住戸に該当しない項目もあります。
※0800で始まる電話番号は通話料無料です。また、サービス検証のため当該番号の利用履歴を個人が特定できない範囲で取得しています。予めご了承ください。
※完成後1年以上を経過した未入居物件が掲載される場合があります。ご了承ください。
※新着:物件情報が「SUUMO」に掲載された日から1週間表示されます。
※価格更新:物件価格が変更された日から1週間表示されます。
※販売予定物件はすべて、販売開始するまで契約または予約の申込みはできません。
※購入の前には物件内容や契約条件についてご自身で十分な確認をしていただくようにお願いいたします。
※建築条件土地の情報内に掲載されている、建物プラン例は、土地購入者の設計プランの参考の一例であって、プランの採用可否は任意です。
※土地(建築条件なし)で「建物プラン例」が表記してある時、そのプラン例は特定の建築請負会社によるもので、当該建築請負会社以外で建てた場合、同様のものが同価格で建てられるとは限りません。また建築請負会社を特定するものではありません。
※建築条件付き土地とは、その土地に建築する建物の建築請負契約が、一定期間内に成立することを条件として売買される土地のことをいいます。建築請負契約成立に向けて設計プランを協議するため、土地購入者が自己の希望する建物の設計協議をするために必要な相当の期間の交渉期間が設定され、その期間内で希望を満たすプランが実現できたかどうかにより結論を出します。なお、この期間は概ね3ヶ月程度とされています。納得のいくプランが出来ず、建築請負契約が成立しない場合、土地売買契約は白紙に戻り、土地契約にかかった代金(土地代金、手付金など)は名目のいかんに関わらず、全て返却されます。





















