NEW新築一戸建て【自宅送迎可能】日野市栄町4丁目 新築分譲住宅 全6棟(残り5棟)の詳細情報
5480万円~6190万円
月々のローン返済額を試算外観・室内・設備(21枚)
周辺環境・アクセス(8枚)
物件概要
| 物件名 | 【自宅送迎可能】日野市栄町4丁目 新築分譲住宅 全6棟(残り5棟) | ||||
|---|---|---|---|---|---|
| 所在地 | 東京都日野市栄町4 | ||||
| 交通 |
JR中央線「日野」駅 徒歩13分~14分 多摩都市モノレール「甲州街道」駅 徒歩27分~28分 JR八高線「小宮」駅 徒歩30分~31分 | ||||
| 構造および階数 | 木造2階建 | 建ぺい率・容積率 | 建ぺい率40/60% 容積率80/200% | ||
| 完成予定日 | 2025年9月中旬 | 入居可能予定日 | 2025年10月 | ||
| 土地権利 | 所有権 | ||||
| 駐車場 | 1台 ~ 2台(1号棟(2台)2号棟~6号棟(1台)) | 国土法届出 | 届出不要 | ||
| 地目 | 後日宅地に変更 | 都市計画 | 市街化区域 | ||
| 道路付け | 南側16m、北側1.8m | 機構融資 | - | ||
| 取引態様 | Saikyo Home株式会社立川本店/仲介 | 用途地域 | 第一種低層住居専用地域、第二種中高層住居専用地域 | ||
| 施工会社 | - | ||||
| 建築確認番号 | 完成済みのため省略 | ||||
| 設備 | 東京電力・個別プロパンガス・本下水 | ||||
| 備考 |
◇住宅ローン相談随時受付中◇住宅購入に関わる全てのご不安解消します。気になる物件をお気軽にご覧ください。ご自宅まで送迎させて頂きます。お子様とご一緒でも安心。たのしいキッズスペースを用意しております。その他にも特典多数用意しております。詳細に付きましてはお電話下さい。 スーパーやコンビニなど買い物施設が徒歩圏内。住みやすさと利便性を兼ね備えた環境です。 住みやすさと利便性を兼ね備えた立地。高い住宅性能を備えた安心で暮らしやすい住まいです。 実際の物件の状態、日当たり、風通し、設備などの写真や資料では伝わらない情報もたくさんあります。ぜひお問い合わせください。お待ちしております。 | ||||
情報更新日:2025/10/26 次回更新予定日:2025/11/01
販売概要
| 販売価格 | 5480万円~6190万円 お問い合わせはこちら | ||||
|---|---|---|---|---|---|
| 販売スケジュール | 販売中 | ||||
| 販売戸数/総戸数 | 5戸/6戸 | ||||
| 最多価格帯 | - | ||||
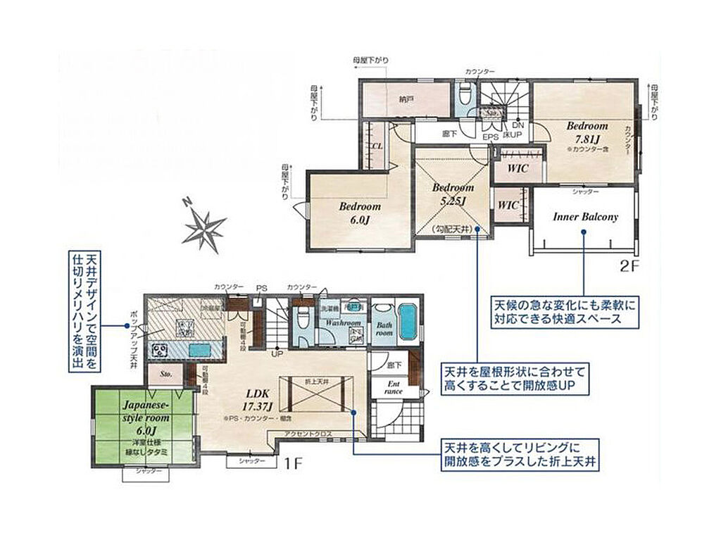
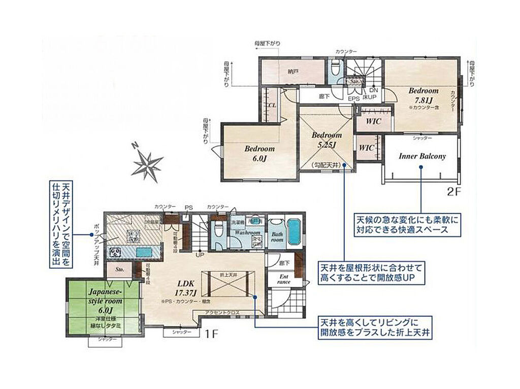
| 間取り | 3LDK~5LDK | ||||
| 建物面積 | 103.74m2~105.01m2 | 土地面積 | 121.39m2~134.8m2 | ||
| その他面積 | - | ||||
| その他施設費用、償却費 | - | ||||
| その他費用 | 【保証金、敷金】:- | ||||
| 登録受付 | - | 抽選日 | - | ||
| モデルルーム情報 | - | ||||
会社情報
| 売主 | - | ||||
|---|---|---|---|---|---|
| お問い合わせ先 |
Saikyo Home株式会社立川本店 〒190-0012東京都立川市曙町1-11-9 五光曙第2ビル 0037-619-23369(無料通話) 上記の電話番号にお問合せください。(携帯・PHS 可) ※光IP 電話、及びIP 電話からはご利用になれません 光IP電話、及びIP電話をご利用のお客様は以下へご連絡ください。 Saikyo Home株式会社立川本店 〒190-0012東京都立川市曙町1-11-9 五光曙第2ビル TEL:042-527-1188 【物件番号】1705940-0003621 | ||||
| 会社概要 |
Saikyo Home株式会社[東京都知事 (5) 第 80089 号] 東京都立川市曙町1-11-9 五光曙第2ビル 【所属団体】 (公社)首都圏不動産公正取引協議会(公社)全日本不動産協会東京都本部 | ||||
取り扱い不動産会社
Saikyo Home株式会社立川本店 〒190-0012東京都立川市曙町1-11-9 五光曙第2ビル
- 電話番号
- 042-527-1188
- 物件番号
- 1705940-0003621
(株)松村地所
(株)ノーヴァ・アソシエイツ
電話で問い合わせる(無料)お急ぎの方はこちらから!
物件お問い合わせ専用ダイヤル
受付:- 携帯・PHS可
※携帯・PHS可。光IP電話、及びIP電話からはご利用になれません。
日野駅の口コミ
自然環境
1.0
近くに大きな木が生い茂った公園や、多摩川があるので、自然環境は抜群。遠くまで行かなくてもキレイな紅葉を見る事ができる。
お買い物・飲食
4.0
スーパーは近くにたくさんある。ほっともっともある。ご飯が食べられる店もそこそこあるが、チェーン店系が多い
住宅ローンシミュレーション
住宅ローン設定
物件価格
返済期間
頭金
ボーナス払(年1回)
※
※物件価格の80%以下でお借入れの場合
※50歳以下で一般団信をご選択の場合
※住宅ローン金利優遇割適用後の変動金利(全期間引き下げプラン)
※実際のお借入日の金利により変動します。
※審査の結果によっては保証付金利プランとなる場合があり、この場合は上記とは異なる金利となります。
※別途借入金額の2.20%(税込)の事務手数料が発生します。
ボーナス払 | 35年間返済 | 30年間返済 | 25年間返済 | 20年間返済 | 15年間返済 | 10年間返済 |
|---|---|---|---|---|---|---|
0万円 | -円/月 | -円/月 | -円/月 | -円/月 | -円/月 | -円/月 |
5万円 | -円/月 | -円/月 | -円/月 | -円/月 | -円/月 | -円/月 |
10万円 | -円/月 | -円/月 | -円/月 | -円/月 | -円/月 | -円/月 |
15万円 | -円/月 | -円/月 | -円/月 | -円/月 | -円/月 | -円/月 |
20万円 | -円/月 | -円/月 | -円/月 | -円/月 | -円/月 | -円/月 |
25万円 | -円/月 | -円/月 | -円/月 | -円/月 | -円/月 | -円/月 |
30万円 | -円/月 | -円/月 | -円/月 | -円/月 | -円/月 | -円/月 |
ボーナス払 | 35年間返済 | 30年間返済 | 25年間返済 | 20年間返済 | 15年間返済 | 10年間返済 |
|---|---|---|---|---|---|---|
0万円 | -円/月 | -円/月 | -円/月 | -円/月 | -円/月 | -円/月 |
5万円 | -円/月 | -円/月 | -円/月 | -円/月 | -円/月 | -円/月 |
10万円 | -円/月 | -円/月 | -円/月 | -円/月 | -円/月 | -円/月 |
15万円 | -円/月 | -円/月 | -円/月 | -円/月 | -円/月 | -円/月 |
20万円 | -円/月 | -円/月 | -円/月 | -円/月 | -円/月 | -円/月 |
25万円 | -円/月 | -円/月 | -円/月 | -円/月 | -円/月 | -円/月 |
30万円 | -円/月 | -円/月 | -円/月 | -円/月 | -円/月 | -円/月 |
- ・金利は、今後35年間変動しない仮定のもと元利均等返済方式で計算しております。
- ・実際の金利は、各金融機関のホームページをご参照ください。
- ・ローン契約の際には、手数料や印紙税などの諸費用が別途かかります。
- ・ボーナス支払総額が総支払額の50%を超えている場合、上記の表では「ローン不可」となります。
- ・シミュレーションを利用し、それが原因で利用者が受けたいかなる損害についても当社は一切責任を負いません。あらかじめご了承ください。









































