新築売戸建住宅東京都国立市泉3丁目の新築売戸建住宅の詳細情報
この物件は未完成のため、掲載写真(外観、内観、設備等)には、施工例が含まれている場合があります。物件詳細については、掲載の不動産会社宛にお問合せください。
外観・室内・設備(4枚)
物件概要
| 物件名 | 東京都国立市泉3丁目の新築売戸建住宅 | ||||
|---|---|---|---|---|---|
| 所在地 | 東京都国立市泉3丁目 | ||||
| 交通 |
JR南武線 「矢川」駅 徒歩13分 多摩モノレール 「万願寺」駅 徒歩20分 | ||||
| 構造および階数 | 木造・2階建 | 建ぺい率・容積率 | 60.00%・200.00% | ||
| 完成予定日 | 2026年03月 | 入居可能予定日 | 2026年03月下旬(21日~末日)(予定) | ||
| 土地権利 | 所有権 | ||||
| 駐車場 | 有 (無料) | 国土法届出 | - | ||
| 私道負担・道路 | - | 道路付け | 西 6.0m 公道 接面2.7m | ||
| 地目 | 宅地 | 都市計画 | 市街化区域 | ||
| 取引態様 | 専任媒介 | 用途地域 | 1種住居 | ||
| 施工会社 | - | ||||
| 建築確認番号 | TKK確済25-435号 | ||||
| 設備 | 都市ガス・浴室乾燥機・Wクロゼット・シャンプードレッサー・ウォシュレット・トイレ2ヶ所・複層ガラス・下水道 | ||||
| 備考 | 私道負担:なし・2.4号棟は太陽光パネル付きZEH住宅♪ | ||||
情報更新日:2025/11/27 次回更新予定日:情報更新日より14日以内
販売概要
| 販売価格 | 4,480万円 お問い合わせはこちら | ||||
|---|---|---|---|---|---|
| 販売戸数/総戸数 | -/- | ||||
| 最多価格帯 | - | ||||
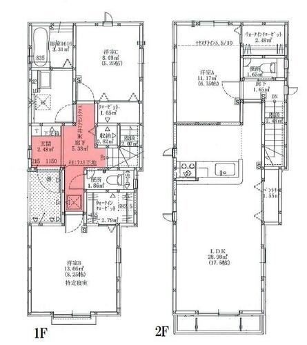
| 間取り | 3LDK | ||||
| 建物面積 | 96.88㎡ | 土地面積 | 131.28㎡ | ||
| その他施設費用、償却費 | - / - | ||||
| その他費用 | - | ||||
会社情報
| お問い合わせ先 |
(株)エージーホーム 042-505-9437 上記の電話番号にお問合せください。(携帯・PHS 可) 【物件番号】6988155747 | ||||
|---|---|---|---|---|---|
| 会社概要 |
(株)エージーホーム[東京都知事免許(4)第91004号] 東京都国立市富士見台2丁目8-4 【所属団体】 (公社)東京都宅地建物取引業協会、(公社)首都圏不動産公正取引協議会 | ||||
取り扱い不動産会社
- 電話番号
- 042-505-9437
- 営業時間
- 09:30~18:00
- 定休日
- 水・年末年始・夏季休暇・GW
- 物件番号
- 6988155747
掲載期限まであと4日
矢川駅の口コミ
治安・安全
5.0
5年住んでいたうち、自転車を取られたことが1度(施錠忘れ)、下着を盗まれたことが1度(1階)、どちらも私の不注意だと認識しています。なので、治安が悪いとはまったく言えないと思います。
自然環境
4.0
駅前の大学通りは綺麗な緑がたくさん並んでいて、本当に癒されました。掃除が行き届いていますので、季節ごとに自然を楽しめました。
〓〓〓 追記 〓〓〓
自然が豊かでのんびりとした雰囲気の中で暮らせます。学生や小さな子供たちも多いため、アットホームな雰囲気が気に入っていました。きちんと手入れをされた緑の木々やお花が植えられていて、大変居心地が良いエリアでした。
住宅ローンシミュレーション
住宅ローン設定
物件価格
返済期間
頭金
ボーナス払(年1回)
※
※物件価格の80%以下でお借入れの場合
※50歳以下で一般団信をご選択の場合
※住宅ローン金利優遇割適用後の変動金利(全期間引き下げプラン)
※実際のお借入日の金利により変動します。
※審査の結果によっては保証付金利プランとなる場合があり、この場合は上記とは異なる金利となります。
※別途借入金額の2.20%(税込)の事務手数料が発生します。
ボーナス払 | 35年間返済 | 30年間返済 | 25年間返済 | 20年間返済 | 15年間返済 | 10年間返済 |
|---|---|---|---|---|---|---|
0万円 | -円/月 | -円/月 | -円/月 | -円/月 | -円/月 | -円/月 |
5万円 | -円/月 | -円/月 | -円/月 | -円/月 | -円/月 | -円/月 |
10万円 | -円/月 | -円/月 | -円/月 | -円/月 | -円/月 | -円/月 |
15万円 | -円/月 | -円/月 | -円/月 | -円/月 | -円/月 | -円/月 |
20万円 | -円/月 | -円/月 | -円/月 | -円/月 | -円/月 | -円/月 |
25万円 | -円/月 | -円/月 | -円/月 | -円/月 | -円/月 | -円/月 |
30万円 | -円/月 | -円/月 | -円/月 | -円/月 | -円/月 | -円/月 |
ボーナス払 | 35年間返済 | 30年間返済 | 25年間返済 | 20年間返済 | 15年間返済 | 10年間返済 |
|---|---|---|---|---|---|---|
0万円 | -円/月 | -円/月 | -円/月 | -円/月 | -円/月 | -円/月 |
5万円 | -円/月 | -円/月 | -円/月 | -円/月 | -円/月 | -円/月 |
10万円 | -円/月 | -円/月 | -円/月 | -円/月 | -円/月 | -円/月 |
15万円 | -円/月 | -円/月 | -円/月 | -円/月 | -円/月 | -円/月 |
20万円 | -円/月 | -円/月 | -円/月 | -円/月 | -円/月 | -円/月 |
25万円 | -円/月 | -円/月 | -円/月 | -円/月 | -円/月 | -円/月 |
30万円 | -円/月 | -円/月 | -円/月 | -円/月 | -円/月 | -円/月 |
- ・金利は、今後35年間変動しない仮定のもと元利均等返済方式で計算しております。
- ・実際の金利は、各金融機関のホームページをご参照ください。
- ・ローン契約の際には、手数料や印紙税などの諸費用が別途かかります。
- ・ボーナス支払総額が総支払額の50%を超えている場合、上記の表では「ローン不可」となります。
- ・シミュレーションを利用し、それが原因で利用者が受けたいかなる損害についても当社は一切責任を負いません。あらかじめご了承ください。














