一戸建て【タマタウン富山市中川原】決算キャンペーン!3380→3100万円※11月引渡条件の詳細情報
ZEH水準のオール電化住宅/子育てグリーン住宅補助金対象
外観・室内・設備(24枚)

キッチン
【3号棟:キッチン・ダイニング】ホワイトで清潔感のあるキッチンには、食器類やカトラリーをスッキリと収納できるカップボードや稼働棚を設置。リビングダイニングで過ごすご家族を見守りながらお料理できます。

バルコニー
2階のバルコニーは、戸建ならではの自由な使い勝手の良さが魅力です。周囲の目を気にせず洗濯物を干したり、家事の合間にお茶を楽しんだり。家族みんなが満足のオープンスペースです(画像はイメージ)。

エコキュート
空気の熱でお湯を沸かす、節約上手な全自動給湯器エコキュート。特長は、時間をかけてゆっくりとお湯を沸かしていく点。昼間に比べて割安な深夜電力を利用することで、大幅なランニングコストの削減を実現できます。

通気工法
外壁材と構造躯体の間に外気が流れる通気層をつくることで、湿気を外部に放出。壁内の通気層は屋根裏まで通っており、結露や湿気を少なくすることで、構造体や断熱材を腐食やカビから守り、建物の耐久性を向上させます。

断熱材
壁と天井にグラスウール、床にポリスチレンフォームの断熱材を施工。地域に対応した断熱材を使用し、高い断熱性と気密性を確保。外気温の影響を受けにくいので冬は「暖かく」、夏は「涼しい」家を実現します。
周辺環境・アクセス(9枚)
物件概要
| 物件名 | 【タマタウン富山市中川原】決算キャンペーン!3380→3100万円※11月引渡条件 | ||||
|---|---|---|---|---|---|
| 所在地 | 富山県富山市中川原 | ||||
| 交通 |
富山地鉄不二越上滝「大泉」歩26分 富山地鉄不二越上滝「不二越」歩34分 富山地鉄不二越上滝「栄町」歩38分 | ||||
| 構造および階数 | 木造2階建(軸組工法) | 建ぺい率・容積率 | 建ペい率:60%、容積率:200% | ||
| 完成予定日 | 2025年3月 | 入居可能予定日 | 相談 | ||
| 土地権利 | 所有権 | ||||
| 駐車場 | - | 国土法届出 | - | ||
| 地目 | - | 道路付け | 道路幅:6m、コンクリート舗装 | ||
| 機構融資 | - | 取引態様 | 売主 | ||
| 用途地域 | 1種低層 | ||||
| 施工会社 | - | ||||
| 建築確認番号 | 第R06確認建築富建セ2170号 | ||||
| 設備 | 省エネルギー対策 / 高気密高断熱住宅 / 地盤調査済 / 駐車2台可 / 土地50坪以上 / LDK18畳以上 / 省エネ給湯器 / 市街地が近い / システムキッチン / 浴室乾燥機 / 陽当り良好 / 全居室収納 / 閑静な住宅地 / 前道6m以上 / 角地 / 和室 / 対面式キッチン / ワイドバルコニー / トイレ2ヶ所 / 浴室1坪以上 / 2階建 / 南面バルコニー / 複層ガラス / 床下収納 / 緑豊かな住宅地 / 都市近郊 / 通風良好 / 全居室フローリング / パントリー(食器・食品の収納庫) / ウォークインクローゼット / 全居室6畳以上 / IHクッキングヒーター / リビング階段 / 全居室複層ガラスか複層サッシ / シューズインクローク / 全室2面採光 / 平坦地 / 開発分譲地内 / 食器洗乾燥機 / 整備された歩道 / オール電化 / スマートキー | ||||
| その他制限事項 | - | ||||
| 備考 | 設備:北陸電力、公営水道、本下水、建築確認番号:第R06確認建築富建セ2170号 | ||||
情報更新日:2025/10/27 次回更新予定日:情報提供より8日以内
販売概要
| 販売価格 | 3100万円 お問い合わせはこちら | ||||
|---|---|---|---|---|---|
| 販売スケジュール | - | ||||
| 販売戸数/総戸数 | 1戸/3戸 | ||||
| 最多価格帯 | - | ||||
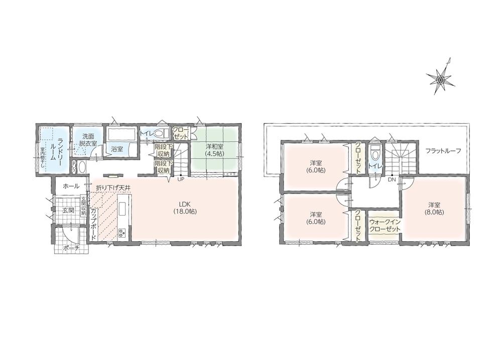
| 間取り | 4LDK | ||||
| 建物面積 | 114.27㎡(34.56坪) | 土地面積 | 192.25㎡(58.15坪)(登記) | ||
| その他施設費用、償却費 | - | ||||
| その他費用 | - | ||||
| 登録受付 | - | 抽選日 | - | ||
| モデルルーム情報 | 現地見学会(事前に必ず予約してください)日程/毎週土日時間/10:00~17:00現地見学会開催中!(事前に必ず予約をお願いします)日程/毎週土、日曜日時間/10:00~17:00おおよその所要時間や内容は、下記をご参考になさってください。◆現地/モデルハウス見学(30分~)◆ご希望条件のご相談(30分~)◆資金計画のご相談(30分~)ローンのご質問や心配事など、些細なことでもお気軽にご相談ください。もちろん短時間でのご見学も承っております!【設備】注文住宅で大人気の「ペニンシュラキッチン」「感震ロック付きカップボード」「玄関タッチキー」「パントリー」「基礎内収納」「ウォークインクローゼット」など設備も充実!皆様に最適なご提案ができるように全力でサポートさせていただきます。スタッフ一同、皆様のご来場お待ちしております。【性能】◆耐震性能で最高ランクの「耐震等級3」を取得!◆安心の構造で地震保険料が割引になります♪◆窓サッシは断熱性能の高いアルミ樹脂複合サッシを採用!◆ペアガラス&内側樹脂サッシで冬でも暖かい住まいです♪◆火災に強い「省令準耐火構造」取得のため、火災保険料も割引になります!◆充実したアフターサポート体制が整っています♪ | ||||
| 取引条件有効期限 | 2025年12月31日 | ||||
会社情報
| お問い合わせ先 |
タマホーム(株)富山店 0120-925242(無料通話) 上記の電話番号にお問合せください。(携帯・PHS 可) 【物件番号】76534656 | ||||
|---|---|---|---|---|---|
| 会社概要 |
タマホーム(株)富山店[国土交通大臣(5)第006857号] - | ||||
この物件の地図・周辺環境
このアイコンは物件のおおよその位置を表しており、実際の場所と異なる場合がございます。詳しくは不動産会社に直接ご確認ください。
※地図上に表示される物件の位置は付近住所に所在することを表すものであり、実際の物件所在地とは異なる場合がございます。
※地図の更新タイミングの関係で、物件情報が実際のものとは異なる場合や最新情報に更新されていない場合がございます。
※以下の南西諸島及び離島においては、表示される物件の位置が実際のものとは数百メートル程度ずれる場合がございます。
東京都:硫黄島・青ヶ島、沖縄県: 北大東島・南大東島・多良間島・水納島・与那国島・宮古諸島・石垣島・竹富島
取り扱い不動産会社
- 電話番号
- 0120-925242
- 受付
- 営業時間:9:00~20:00 / 定休日:毎月第3水曜日
- 物件番号
- 76534656
住宅ローンシミュレーション
住宅ローン設定
物件価格
返済期間
頭金
ボーナス払(年1回)
※
※物件価格の80%以下でお借入れの場合
※50歳以下で一般団信をご選択の場合
※住宅ローン金利優遇割適用後の変動金利(全期間引き下げプラン)
※実際のお借入日の金利により変動します。
※審査の結果によっては保証付金利プランとなる場合があり、この場合は上記とは異なる金利となります。
※別途借入金額の2.20%(税込)の事務手数料が発生します。
ボーナス払 | 35年間返済 | 30年間返済 | 25年間返済 | 20年間返済 | 15年間返済 | 10年間返済 |
|---|---|---|---|---|---|---|
0万円 | -円/月 | -円/月 | -円/月 | -円/月 | -円/月 | -円/月 |
5万円 | -円/月 | -円/月 | -円/月 | -円/月 | -円/月 | -円/月 |
10万円 | -円/月 | -円/月 | -円/月 | -円/月 | -円/月 | -円/月 |
15万円 | -円/月 | -円/月 | -円/月 | -円/月 | -円/月 | -円/月 |
20万円 | -円/月 | -円/月 | -円/月 | -円/月 | -円/月 | -円/月 |
25万円 | -円/月 | -円/月 | -円/月 | -円/月 | -円/月 | -円/月 |
30万円 | -円/月 | -円/月 | -円/月 | -円/月 | -円/月 | -円/月 |
ボーナス払 | 35年間返済 | 30年間返済 | 25年間返済 | 20年間返済 | 15年間返済 | 10年間返済 |
|---|---|---|---|---|---|---|
0万円 | -円/月 | -円/月 | -円/月 | -円/月 | -円/月 | -円/月 |
5万円 | -円/月 | -円/月 | -円/月 | -円/月 | -円/月 | -円/月 |
10万円 | -円/月 | -円/月 | -円/月 | -円/月 | -円/月 | -円/月 |
15万円 | -円/月 | -円/月 | -円/月 | -円/月 | -円/月 | -円/月 |
20万円 | -円/月 | -円/月 | -円/月 | -円/月 | -円/月 | -円/月 |
25万円 | -円/月 | -円/月 | -円/月 | -円/月 | -円/月 | -円/月 |
30万円 | -円/月 | -円/月 | -円/月 | -円/月 | -円/月 | -円/月 |
- ・金利は、今後35年間変動しない仮定のもと元利均等返済方式で計算しております。
- ・実際の金利は、各金融機関のホームページをご参照ください。
- ・ローン契約の際には、手数料や印紙税などの諸費用が別途かかります。
- ・ボーナス支払総額が総支払額の50%を超えている場合、上記の表では「ローン不可」となります。
- ・シミュレーションを利用し、それが原因で利用者が受けたいかなる損害についても当社は一切責任を負いません。あらかじめご了承ください。
※価格は物件の代金総額を表示しており、消費税が課税される場合は税込み価格です。 (1000円未満は切り上げ。)
※写真に写っている、またはパース(絵)や間取り図に描かれている家具や車などは、特にコメントがない場合、販売価格に含まれません。
※敷地権利が定期借地権のものは価格に権利金を含みます。
※建築条件付き土地価格には、建物価格は含まれません。
※物件情報は、原則として情報提供日の2日前に最終確認した情報です。
※完成予想図はいずれも外構、植栽、外観等実際のものとは多少異なることがあります。
※モデルルーム・モデルハウス・展示場・ショールームの画像の場合、今回販売の物件と異なる場合があります。
※CG合成の画像の場合、実際とは多少異なる場合があります。
※物件特徴:販売戸数が複数の物件は、全ての住戸に該当しない項目もあります。
※0800で始まる電話番号は通話料無料です。また、サービス検証のため当該番号の利用履歴を個人が特定できない範囲で取得しています。予めご了承ください。
※完成後1年以上を経過した未入居物件が掲載される場合があります。ご了承ください。
※新着:物件情報が「SUUMO」に掲載された日から1週間表示されます。
※価格更新:物件価格が変更された日から1週間表示されます。
※販売予定物件はすべて、販売開始するまで契約または予約の申込みはできません。
※購入の前には物件内容や契約条件についてご自身で十分な確認をしていただくようにお願いいたします。
※建築条件土地の情報内に掲載されている、建物プラン例は、土地購入者の設計プランの参考の一例であって、プランの採用可否は任意です。
※土地(建築条件なし)で「建物プラン例」が表記してある時、そのプラン例は特定の建築請負会社によるもので、当該建築請負会社以外で建てた場合、同様のものが同価格で建てられるとは限りません。また建築請負会社を特定するものではありません。
※建築条件付き土地とは、その土地に建築する建物の建築請負契約が、一定期間内に成立することを条件として売買される土地のことをいいます。建築請負契約成立に向けて設計プランを協議するため、土地購入者が自己の希望する建物の設計協議をするために必要な相当の期間の交渉期間が設定され、その期間内で希望を満たすプランが実現できたかどうかにより結論を出します。なお、この期間は概ね3ヶ月程度とされています。納得のいくプランが出来ず、建築請負契約が成立しない場合、土地売買契約は白紙に戻り、土地契約にかかった代金(土地代金、手付金など)は名目のいかんに関わらず、全て返却されます。
































