一戸建て【TATEURiE】富山市本郷町分譲の詳細情報
3816万円
月々のローン返済額を試算この物件は未完成のため、掲載写真(外観、内観、設備等)には、施工例が含まれている場合があります。物件詳細については、掲載の不動産会社宛にお問合せください。
【TATEURiE】2025年12月完成予定 堀川南小学校まで徒歩7分!
外観・室内・設備(13枚)

浴室 暖房乾燥機
最後のひとりまで、あたたかい。ダブル保温構造でお湯が冷めにくい。(JIS高断熱浴槽準拠)洗濯物もしっかり乾かせる「浴室換気乾燥暖房機」付きです。※仕様の詳細はスタッフにお尋ねください。

制振装置マモリー
制震ダンパーのマモリーが搭載されています。地震時の振動エネルギーを瞬時に熱エネルギーに変換する高減衰ゴムを利用した住友ゴムの制震装置マモリー。地震の揺れを吸収し放熱し繰り返し発生する地震にも効果を発揮します。揺れによる家へのダメージを89%軽減します。耐震等級と合わせて最高レベルの地震対策が備わっています。

木材・乾式防虫防蟻処理
国内住宅メーカーとしては最高レベルの木材加工を行っております。当社グループ工場にて一括管理・加工された木材です。木材の大敵である、白蟻・腐りを寄せ付けず長く安心してお過ごしできます。
周辺環境・アクセス(7枚)
その他(7枚)

静かな住宅地の一角に立地、毎日の生活に必要な利便性を兼ね備えた、お子さまの成長を見守る家族に優しい環境♪
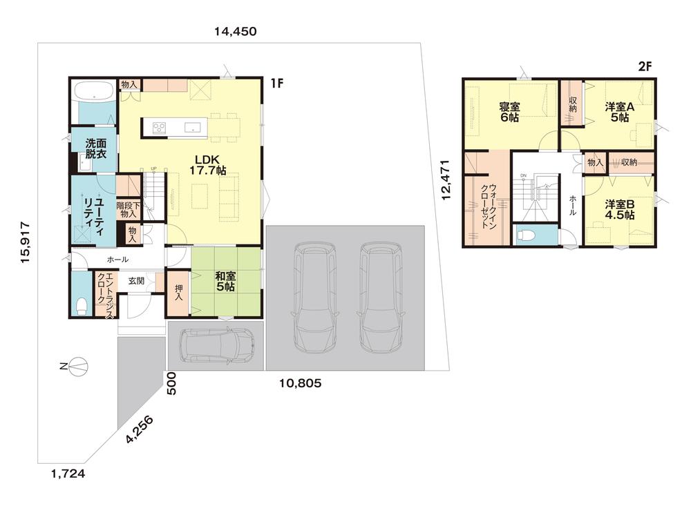
【1階】LDK+和室ゆとりの22.7帖!和室は間仕切りで客間やワークスペースにも使える柔軟な設計♪

静かな住宅地の一角に立地、毎日の生活に必要な利便性を兼ね備えた、お子さまの成長を見守る家族に優しい環境♪
【2階】南向きで明るい子ども部屋が2部屋♪主寝室にはたっぷり収納できるウォークインクローゼット付き!
物件概要
| 物件名 | 【TATEURiE】富山市本郷町分譲 | ||||
|---|---|---|---|---|---|
| 所在地 | 富山県富山市本郷町 | ||||
| 交通 |
コミュニティバス「本郷町五区」歩2分 富山地鉄不二越上滝「朝菜町」歩20分 富山地鉄不二越上滝「上堀」歩21分 | ||||
| 構造および階数 | 木造2階建(軸組工法) | 建ぺい率・容積率 | 60%・200% | ||
| 完成予定日 | 2025年12月 | 入居可能予定日 | 2025年12月予定 | ||
| 土地権利 | 所有権 | ||||
| 駐車場 | - | 国土法届出 | - | ||
| 地目 | - | 道路付け | 無、西6m幅(接道幅17.2m) | ||
| 機構融資 | - | 取引態様 | 売主 | ||
| 用途地域 | 1種低層、1種住居 | ||||
| 施工会社 | - | ||||
| 建築確認番号 | 第R07確認建築富建セ0541号 | ||||
| 設備 | 省エネルギー対策 / 高気密高断熱住宅 / 地盤調査済 / 年内引渡可 / 駐車3台以上可 / 土地50坪以上 / 省エネ給湯器 / スーパー 徒歩10分以内 / システムキッチン / 浴室乾燥機 / 陽当り良好 / 全居室収納 / 閑静な住宅地 / LDK15畳以上 / 前道6m以上 / 和室 / 庭 / シャワー付洗面化粧台 / EV車充電設備 / トイレ2ヶ所 / 浴室1坪以上 / 2階建 / オートバス / 温水洗浄便座 / TVモニタ付インターホン / 節水型トイレ / 通風良好 / ウォークインクローゼット / IHクッキングヒーター / リビング階段 / 全居室複層ガラスか複層サッシ / 小学校 徒歩10分以内 / 平坦地 / 開発分譲地内 / 食器洗乾燥機 / オール電化 / スマートキー / 高機能トイレ | ||||
| その他制限事項 | 不整形地、隅切り有、木造GL鋼板2階建 | ||||
| 備考 | 不整形地、隅切り有、木造GL鋼板2階建 / 担当者:熊木、設備:公営水道、本下水、オール電化、建築確認番号:第R07確認建築富建セ0541号、駐車場:カースペース | ||||
情報更新日:2025/10/23 次回更新予定日:情報提供より8日以内
販売概要
| 販売価格 | 3816万円 お問い合わせはこちら | ||||
|---|---|---|---|---|---|
| 販売スケジュール | - | ||||
| 販売戸数/総戸数 | 1戸/1戸 | ||||
| 最多価格帯 | - | ||||
| 間取り | 4LDK | ||||
| 建物面積 | 110.71㎡(33.48坪) | 土地面積 | 198.37㎡(60.00坪) | ||
| その他施設費用、償却費 | - | ||||
| その他費用 | - | ||||
| 登録受付 | - | 抽選日 | - | ||
| モデルルーム情報 | 物件説明会(事前に必ずご予約してください)日程/随時開催中!時間/10:00~18:00◆土日だけでなく平日も物件詳細について担当からご説明いたします!◆お問い合わせは、フリーダイヤル 0120-333-268 または下記フォームにて事前にご予約をお願いします。◆物件説明会随時開催中!◆未完成物件ですが、物件詳細について担当から詳しくご説明いたします!お気軽にお問い合わせください。家の購入は人生の一大イベントです。その第一歩はまず、実際の建物を見て、触れて、体験すること!フレンドーハウスは富山県各地に分譲住宅をご準備しております。石友ホームグループのフレンドリーハウスにまずはお気軽にご来場ください!スタッフ一同、お客様のご来場を心よりお待ちしております! | ||||
| 取引条件有効期限 | - | ||||
会社情報
| お問い合わせ先 |
フレンドリーハウス(株)富山店 076-424-6182 上記の電話番号にお問合せください。(携帯・PHS 可) 【物件番号】77693866 | ||||
|---|---|---|---|---|---|
| 会社概要 |
フレンドリーハウス(株)富山店[国土交通大臣(1)第009778号] 富山県富山市太郎丸本町1-3-7 【所属団体】 国土交通大臣(1)第009778号(公社)富山県宅地建物取引業協会会員 北陸不動産公正取引協議会加盟 | ||||
この物件の地図・周辺環境
このアイコンは物件のおおよその位置を表しており、実際の場所と異なる場合がございます。詳しくは不動産会社に直接ご確認ください。
※地図上に表示される物件の位置は付近住所に所在することを表すものであり、実際の物件所在地とは異なる場合がございます。
※地図の更新タイミングの関係で、物件情報が実際のものとは異なる場合や最新情報に更新されていない場合がございます。
※以下の南西諸島及び離島においては、表示される物件の位置が実際のものとは数百メートル程度ずれる場合がございます。
東京都:硫黄島・青ヶ島、沖縄県: 北大東島・南大東島・多良間島・水納島・与那国島・宮古諸島・石垣島・竹富島
取り扱い不動産会社
- 電話番号
- 076-424-6182
- 物件番号
- 77693866
フレンドリーハウス(株) 富山店
朝菜町駅の口コミ
お買い物・飲食
5.0
昔はあったのですが、周りに本屋がなく、わざわざアピタまで行かないと本が買えないのが非常に不便だと思います
お買い物・飲食
4.0
近くにコンビニ、スーパー、ドラッグストア、ホームセンター、100円ショップ、ガソリンスタンドがあり買い物はとても便利です。
住宅ローンシミュレーション
住宅ローン設定
物件価格
返済期間
頭金
ボーナス払(年1回)
※
※物件価格の80%以下でお借入れの場合
※50歳以下で一般団信をご選択の場合
※住宅ローン金利優遇割適用後の変動金利(全期間引き下げプラン)
※実際のお借入日の金利により変動します。
※審査の結果によっては保証付金利プランとなる場合があり、この場合は上記とは異なる金利となります。
※別途借入金額の2.20%(税込)の事務手数料が発生します。
ボーナス払 | 35年間返済 | 30年間返済 | 25年間返済 | 20年間返済 | 15年間返済 | 10年間返済 |
|---|---|---|---|---|---|---|
0万円 | -円/月 | -円/月 | -円/月 | -円/月 | -円/月 | -円/月 |
5万円 | -円/月 | -円/月 | -円/月 | -円/月 | -円/月 | -円/月 |
10万円 | -円/月 | -円/月 | -円/月 | -円/月 | -円/月 | -円/月 |
15万円 | -円/月 | -円/月 | -円/月 | -円/月 | -円/月 | -円/月 |
20万円 | -円/月 | -円/月 | -円/月 | -円/月 | -円/月 | -円/月 |
25万円 | -円/月 | -円/月 | -円/月 | -円/月 | -円/月 | -円/月 |
30万円 | -円/月 | -円/月 | -円/月 | -円/月 | -円/月 | -円/月 |
ボーナス払 | 35年間返済 | 30年間返済 | 25年間返済 | 20年間返済 | 15年間返済 | 10年間返済 |
|---|---|---|---|---|---|---|
0万円 | -円/月 | -円/月 | -円/月 | -円/月 | -円/月 | -円/月 |
5万円 | -円/月 | -円/月 | -円/月 | -円/月 | -円/月 | -円/月 |
10万円 | -円/月 | -円/月 | -円/月 | -円/月 | -円/月 | -円/月 |
15万円 | -円/月 | -円/月 | -円/月 | -円/月 | -円/月 | -円/月 |
20万円 | -円/月 | -円/月 | -円/月 | -円/月 | -円/月 | -円/月 |
25万円 | -円/月 | -円/月 | -円/月 | -円/月 | -円/月 | -円/月 |
30万円 | -円/月 | -円/月 | -円/月 | -円/月 | -円/月 | -円/月 |
- ・金利は、今後35年間変動しない仮定のもと元利均等返済方式で計算しております。
- ・実際の金利は、各金融機関のホームページをご参照ください。
- ・ローン契約の際には、手数料や印紙税などの諸費用が別途かかります。
- ・ボーナス支払総額が総支払額の50%を超えている場合、上記の表では「ローン不可」となります。
- ・シミュレーションを利用し、それが原因で利用者が受けたいかなる損害についても当社は一切責任を負いません。あらかじめご了承ください。
※価格は物件の代金総額を表示しており、消費税が課税される場合は税込み価格です。 (1000円未満は切り上げ。)
※写真に写っている、またはパース(絵)や間取り図に描かれている家具や車などは、特にコメントがない場合、販売価格に含まれません。
※敷地権利が定期借地権のものは価格に権利金を含みます。
※建築条件付き土地価格には、建物価格は含まれません。
※物件情報は、原則として情報提供日の2日前に最終確認した情報です。
※完成予想図はいずれも外構、植栽、外観等実際のものとは多少異なることがあります。
※モデルルーム・モデルハウス・展示場・ショールームの画像の場合、今回販売の物件と異なる場合があります。
※CG合成の画像の場合、実際とは多少異なる場合があります。
※物件特徴:販売戸数が複数の物件は、全ての住戸に該当しない項目もあります。
※0800で始まる電話番号は通話料無料です。また、サービス検証のため当該番号の利用履歴を個人が特定できない範囲で取得しています。予めご了承ください。
※完成後1年以上を経過した未入居物件が掲載される場合があります。ご了承ください。
※新着:物件情報が「SUUMO」に掲載された日から1週間表示されます。
※価格更新:物件価格が変更された日から1週間表示されます。
※販売予定物件はすべて、販売開始するまで契約または予約の申込みはできません。
※購入の前には物件内容や契約条件についてご自身で十分な確認をしていただくようにお願いいたします。
※建築条件土地の情報内に掲載されている、建物プラン例は、土地購入者の設計プランの参考の一例であって、プランの採用可否は任意です。
※土地(建築条件なし)で「建物プラン例」が表記してある時、そのプラン例は特定の建築請負会社によるもので、当該建築請負会社以外で建てた場合、同様のものが同価格で建てられるとは限りません。また建築請負会社を特定するものではありません。
※建築条件付き土地とは、その土地に建築する建物の建築請負契約が、一定期間内に成立することを条件として売買される土地のことをいいます。建築請負契約成立に向けて設計プランを協議するため、土地購入者が自己の希望する建物の設計協議をするために必要な相当の期間の交渉期間が設定され、その期間内で希望を満たすプランが実現できたかどうかにより結論を出します。なお、この期間は概ね3ヶ月程度とされています。納得のいくプランが出来ず、建築請負契約が成立しない場合、土地売買契約は白紙に戻り、土地契約にかかった代金(土地代金、手付金など)は名目のいかんに関わらず、全て返却されます。






















