一戸建て秋月1(徳山駅) 3980万円の詳細情報
この物件は未完成のため、掲載写真(外観、内観、設備等)には、施工例が含まれている場合があります。物件詳細については、掲載の不動産会社宛にお問合せください。
■大好評につきダイシンキャンペーン延長■オプション工事当社が取り付けます
物件概要
| 物件名 | 秋月1(徳山駅) 3980万円 | ||||
|---|---|---|---|---|---|
| 所在地 | 山口県周南市秋月1 | ||||
| 交通 |
JR山陽本線「徳山」歩38分 JR山陽本線「櫛ケ浜」歩41分 JR岩徳線「周防花岡」歩65分 | ||||
| 構造および階数 | 木造2階建 | 建ぺい率・容積率 | 建ペい率:50%、容積率:80% | ||
| 完成予定日 | 2026年1月予定 | 入居可能予定日 | 2026年1月予定 | ||
| 土地権利 | 所有権 | ||||
| 駐車場 | - | 国土法届出 | - | ||
| 地目 | 宅地 | 道路付け | 道路幅:6m、アスファルト舗装 | ||
| 機構融資 | フラット35Sベーシック | 取引態様 | 仲介 | ||
| 用途地域 | 1種低層 | ||||
| 施工会社 | - | ||||
| 建築確認番号 | R7建確建住セ岩第0128号他 | ||||
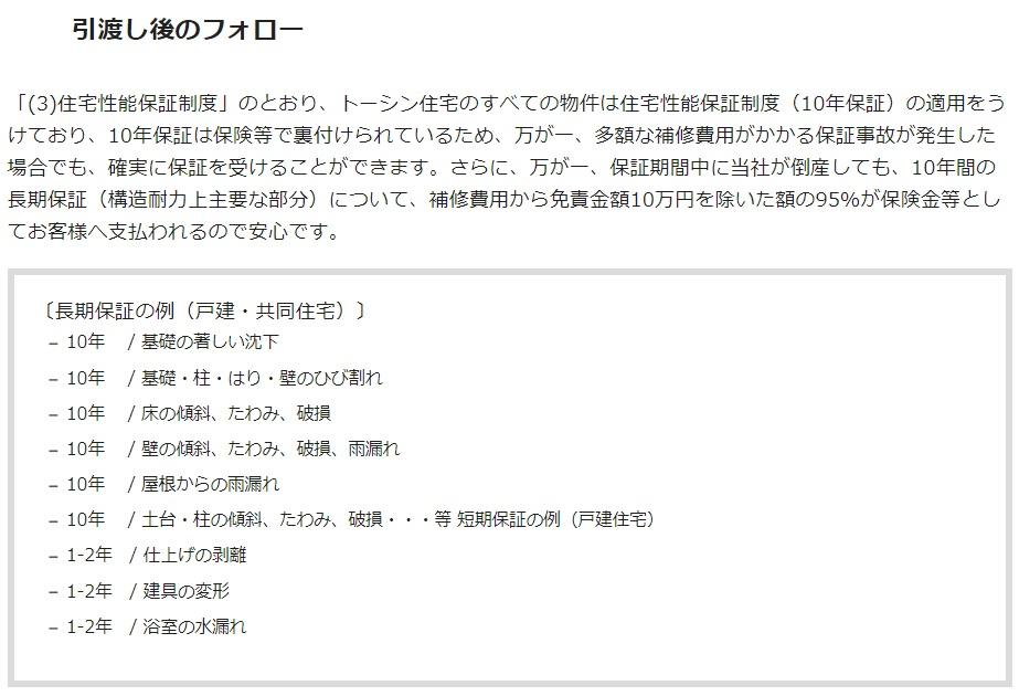
| 設備 | フラット35・S適合証明書 / フラット35Sに対応 / 地盤調査済 / 駐車3台以上可 / 土地50坪以上 / LDK18畳以上 / 市街地が近い / 南向き / システムキッチン / 浴室乾燥機 / 陽当り良好 / 全居室収納 / 閑静な住宅地 / 和室 / シャワー付洗面化粧台 / 対面式キッチン / トイレ2ヶ所 / 浴室1坪以上 / 2階建 / 南面バルコニー / 複層ガラス / オートバス / 温水洗浄便座 / 床下収納 / TVモニタ付インターホン / 節水型トイレ / 通風良好 / パントリー(食器・食品の収納庫) / IHクッキングヒーター / 全居室複層ガラスか複層サッシ / 都市ガス / シューズインクローク / ルーフバルコニー / 食器洗乾燥機 / オール電化 / 浄水器 / スマートキー / 高機能トイレ | ||||
| その他制限事項 | - | ||||
| 備考 | 担当者:西 真司、設備:公営水道、本下水、建築確認番号:R7建確建住セ岩第0128号他 | ||||
情報更新日:2025/10/26 次回更新予定日:情報提供より8日以内
販売概要
| 販売価格 | 3980万円 お問い合わせはこちら | ||||
|---|---|---|---|---|---|
| 販売スケジュール | - | ||||
| 販売戸数/総戸数 | 2戸/2戸 | ||||
| 最多価格帯 | 3900万円台(2戸) | ||||
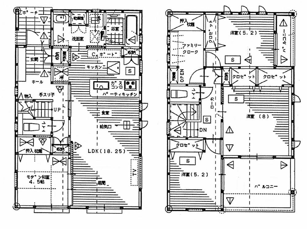
| 間取り | 4LDK | ||||
| 建物面積 | 111.79㎡・118.14㎡(33.81坪・35.73坪)(登記) | 土地面積 | 204.86㎡・205.75㎡(61.96坪・62.23坪)(登記) | ||
| その他施設費用、償却費 | - | ||||
| その他費用 | - | ||||
| 登録受付 | - | 抽選日 | - | ||
| モデルルーム情報 | 現地案内会(事前に必ず予約してください)日程/毎週土日祝時間/10:00~20:00◆◇◆◇◆◇◆◇◆◇◆◇◆◇◆◇◆◇◆◇◆◇◆◇◆◇◆◇◆◇◆◇◆◇◆◇◆◇◆ご案内受付中【24時間】083-902-5920yamaguchi@daishin-3.co.jpスーモを見たことと物件名をお伝えください。※まずはご相談を!!・・・住宅ローン相談会開催中です・・・ご購入の際には、ほとんどのお客様が住宅ローンをご利用されます。【カーローン・カードローン・オートローン・リボ・キャッシング等】と住宅ローンをまとめることが出来ます。各金融機関によりお借入できる金額が違います。一番気になるのは、金利です。金融機関や住宅ローンの種類により金利が違います。また、お客様のお仕事内容や、ご年収、勤続年数などでも金利に違いが出てしまいます。弊社では、専属の住宅ローンアドバイザーがお客様にあったピッタリの住宅ローンをご提案させていただきます。安心してご相談して下さい。お家のご質問はお気軽にご相談下さい。セキュリティはどう?シックハウスが心配・・・スーパー・保育園・小学校・公園などの施設についてのご質問・・・購入後の保証制度などなど・・・お家を購入するのには??がいっぱいです。そんなご質問にお答えします。弊社のスタッフにお任せ下さい!!※随時弊社の担当スタッフが現地までご案内いたします。詳細はお気軽にご相談下さいませ。◆◇◆◇◆◇◆◇◆◇◆◇◆◇◆◇◆◇◆◇◆◇◆◇◆◇◆◇◆◇◆◇◆◇◆◇◆◇◆ | ||||
| 取引条件有効期限 | 2031年6月30日 | ||||
会社情報
| お問い合わせ先 |
ダイシン住宅販売 西広島営業所ダイシン都市開発(株) 082-533-6240 上記の電話番号にお問合せください。(携帯・PHS 可) 【物件番号】78495173 | ||||
|---|---|---|---|---|---|
| 会社概要 |
ダイシン住宅販売 西広島営業所ダイシン都市開発(株)[国土交通大臣(2)第009599号] 広島県広島市西区中広町3-4-10 【所属団体】 国土交通大臣(2)第009599号(公社)広島県宅地建物取引業協会会員 中国地区不動産公正取引協議会加盟 | ||||
取り扱い不動産会社
- 電話番号
- 082-533-6240
- 受付
- 営業時間:9:00~20:00 / 定休日:水
- 物件番号
- 78495173
ダイシン住宅販売 山口営業所ダイシン都市開発(株)
徳山駅の口コミ
子育て・病院
5.0
徳山中央病院と連携している病院が多数。 以前住んでいた山口県内と比べるとかなり多く感じる。 人気のある病院は待ち時間は長いがアプリなどで予約や待ち時間などわかる病院も多数あり便利。 学校は近隣にあり便利。 塾なども駅前にある。
お買い物・飲食
5.0
飲食店は物価が少し高いです。 居酒屋が多く気軽に入れるカフェが少ない感じがします。 ファストフードなどのチェーン店がもう少し増えてほしいです。
住宅ローンシミュレーション
住宅ローン設定
物件価格
返済期間
頭金
ボーナス払(年1回)
※
※物件価格の80%以下でお借入れの場合
※50歳以下で一般団信をご選択の場合
※住宅ローン金利優遇割適用後の変動金利(全期間引き下げプラン)
※実際のお借入日の金利により変動します。
※審査の結果によっては保証付金利プランとなる場合があり、この場合は上記とは異なる金利となります。
※別途借入金額の2.20%(税込)の事務手数料が発生します。
ボーナス払 | 35年間返済 | 30年間返済 | 25年間返済 | 20年間返済 | 15年間返済 | 10年間返済 |
|---|---|---|---|---|---|---|
0万円 | -円/月 | -円/月 | -円/月 | -円/月 | -円/月 | -円/月 |
5万円 | -円/月 | -円/月 | -円/月 | -円/月 | -円/月 | -円/月 |
10万円 | -円/月 | -円/月 | -円/月 | -円/月 | -円/月 | -円/月 |
15万円 | -円/月 | -円/月 | -円/月 | -円/月 | -円/月 | -円/月 |
20万円 | -円/月 | -円/月 | -円/月 | -円/月 | -円/月 | -円/月 |
25万円 | -円/月 | -円/月 | -円/月 | -円/月 | -円/月 | -円/月 |
30万円 | -円/月 | -円/月 | -円/月 | -円/月 | -円/月 | -円/月 |
ボーナス払 | 35年間返済 | 30年間返済 | 25年間返済 | 20年間返済 | 15年間返済 | 10年間返済 |
|---|---|---|---|---|---|---|
0万円 | -円/月 | -円/月 | -円/月 | -円/月 | -円/月 | -円/月 |
5万円 | -円/月 | -円/月 | -円/月 | -円/月 | -円/月 | -円/月 |
10万円 | -円/月 | -円/月 | -円/月 | -円/月 | -円/月 | -円/月 |
15万円 | -円/月 | -円/月 | -円/月 | -円/月 | -円/月 | -円/月 |
20万円 | -円/月 | -円/月 | -円/月 | -円/月 | -円/月 | -円/月 |
25万円 | -円/月 | -円/月 | -円/月 | -円/月 | -円/月 | -円/月 |
30万円 | -円/月 | -円/月 | -円/月 | -円/月 | -円/月 | -円/月 |
- ・金利は、今後35年間変動しない仮定のもと元利均等返済方式で計算しております。
- ・実際の金利は、各金融機関のホームページをご参照ください。
- ・ローン契約の際には、手数料や印紙税などの諸費用が別途かかります。
- ・ボーナス支払総額が総支払額の50%を超えている場合、上記の表では「ローン不可」となります。
- ・シミュレーションを利用し、それが原因で利用者が受けたいかなる損害についても当社は一切責任を負いません。あらかじめご了承ください。
※価格は物件の代金総額を表示しており、消費税が課税される場合は税込み価格です。 (1000円未満は切り上げ。)
※写真に写っている、またはパース(絵)や間取り図に描かれている家具や車などは、特にコメントがない場合、販売価格に含まれません。
※敷地権利が定期借地権のものは価格に権利金を含みます。
※建築条件付き土地価格には、建物価格は含まれません。
※物件情報は、原則として情報提供日の2日前に最終確認した情報です。
※完成予想図はいずれも外構、植栽、外観等実際のものとは多少異なることがあります。
※モデルルーム・モデルハウス・展示場・ショールームの画像の場合、今回販売の物件と異なる場合があります。
※CG合成の画像の場合、実際とは多少異なる場合があります。
※物件特徴:販売戸数が複数の物件は、全ての住戸に該当しない項目もあります。
※0800で始まる電話番号は通話料無料です。また、サービス検証のため当該番号の利用履歴を個人が特定できない範囲で取得しています。予めご了承ください。
※完成後1年以上を経過した未入居物件が掲載される場合があります。ご了承ください。
※新着:物件情報が「SUUMO」に掲載された日から1週間表示されます。
※価格更新:物件価格が変更された日から1週間表示されます。
※販売予定物件はすべて、販売開始するまで契約または予約の申込みはできません。
※購入の前には物件内容や契約条件についてご自身で十分な確認をしていただくようにお願いいたします。
※建築条件土地の情報内に掲載されている、建物プラン例は、土地購入者の設計プランの参考の一例であって、プランの採用可否は任意です。
※土地(建築条件なし)で「建物プラン例」が表記してある時、そのプラン例は特定の建築請負会社によるもので、当該建築請負会社以外で建てた場合、同様のものが同価格で建てられるとは限りません。また建築請負会社を特定するものではありません。
※建築条件付き土地とは、その土地に建築する建物の建築請負契約が、一定期間内に成立することを条件として売買される土地のことをいいます。建築請負契約成立に向けて設計プランを協議するため、土地購入者が自己の希望する建物の設計協議をするために必要な相当の期間の交渉期間が設定され、その期間内で希望を満たすプランが実現できたかどうかにより結論を出します。なお、この期間は概ね3ヶ月程度とされています。納得のいくプランが出来ず、建築請負契約が成立しない場合、土地売買契約は白紙に戻り、土地契約にかかった代金(土地代金、手付金など)は名目のいかんに関わらず、全て返却されます。














