土地【WAKO/和光地所】安城市里町の土地の詳細情報
■全区画50坪以上を確保◎■見学可能なモデルハウスがあります!
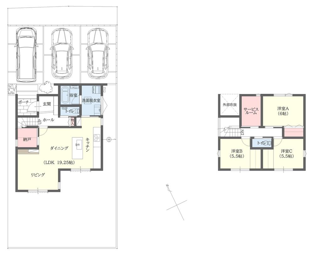
間取り・区画図(2枚)
周辺環境・アクセス(8枚)
その他(21枚)
物件概要
| 物件名 | 【WAKO/和光地所】安城市里町の土地 | ||||
|---|---|---|---|---|---|
| 所在地 | 愛知県安城市里町本郷 | ||||
| 交通 |
名鉄名古屋本線「新安城」歩16分 名鉄三河線「三河八橋」歩27分 名鉄名古屋本線「牛田」歩38分 | ||||
| 最多価格帯 | 2000万円台(3区画) | 販売区画数/総区画数 | 4区画/5区画 | ||
| 土地権利 | 所有権 | 造成工事完了予定年月 | 2024年12月 | ||
| 取引態様 | 売主 | 引渡し | - | ||
| 地目 | 宅地 | 用途地域 | 市街化調整区域 | ||
| 建ぺい率・容積率 | 建ペい率:60%、容積率:200% | 私道負担・道路 | 道路幅:4m、アスファルト舗装 | ||
| セットバック | - | ||||
| その他費用 | - | ||||
| 建築条件 | 建築条件付建築条件付き土地とは、一定期間内(一般的には3ヶ月以上)に特定の建設会社と建築請負契約を結ぶことを条件にしている宅地のことです。建物の内容は、土地購入者の自由意思により決定可能で、土地売買契約後、建築請負会社と購入した土地に建設する建物について協議することになります。期間内に建築請負契約が成立しなければ売買契約は白紙となり、支払済みの金銭はすべて返却されます。 | ||||
| 販売スケジュール | - | ||||
| イベント情報 | - | ||||
| その他制限事項 | - | ||||
| 備考 | 担当者:伊藤 慶、設備:公営水道、浄化槽、都市ガス、建築許可理由:調整区域につき建築許可要 | ||||
| 取引条件有効期限 | 2026年3月31日 | ||||
情報公開日:2025/10/04 次回更新予定日:情報提供より8日以内
取り扱い不動産会社
- 住所
- 愛知県岡崎市上六名4-3-20
- 電話番号
- 0564-53-1800
- 営業時間
- 営業時間:9:00~18:00 / 定休日:火・水曜日
- 免許番号
- 愛知県知事(14)第006586号
- 会社概要
- <売主>
愛知県知事(14)第006586号
(公社)愛知県宅地建物取引業協会会員 東海不動産公正取引協議会加盟
(株)和光地所
〒444-0858 愛知県岡崎市上六名4-3-20
新安城駅の口コミ
子育て・病院
5.0
駅も小学校も近いです。 スーパーや大きな病院、コンビニなど徒歩圏内になんでももあるので子育てにもとても便利だと思う。
自然環境
3.0
夜になると、人通りも車通りも一気になくなってしまいます。駅前のヨーカドーも21時に閉まってしまうし、コンビニも都会のようにしょっちゅうあるわけではないので。事件などは聞いたことがないですが、ひったくり注意の看板程度はあります。
愛知県近隣の都道府県から土地を探す
住宅ローンシミュレーション
住宅ローン設定
物件価格
返済期間
頭金
ボーナス払(年1回)
※
※物件価格の80%以下でお借入れの場合
※50歳以下で一般団信をご選択の場合
※住宅ローン金利優遇割適用後の変動金利(全期間引き下げプラン)
※実際のお借入日の金利により変動します。
※審査の結果によっては保証付金利プランとなる場合があり、この場合は上記とは異なる金利となります。
※別途借入金額の2.20%(税込)の事務手数料が発生します。
ボーナス払 | 35年間返済 | 30年間返済 | 25年間返済 | 20年間返済 | 15年間返済 | 10年間返済 |
|---|---|---|---|---|---|---|
0万円 | -円/月 | -円/月 | -円/月 | -円/月 | -円/月 | -円/月 |
5万円 | -円/月 | -円/月 | -円/月 | -円/月 | -円/月 | -円/月 |
10万円 | -円/月 | -円/月 | -円/月 | -円/月 | -円/月 | -円/月 |
15万円 | -円/月 | -円/月 | -円/月 | -円/月 | -円/月 | -円/月 |
20万円 | -円/月 | -円/月 | -円/月 | -円/月 | -円/月 | -円/月 |
25万円 | -円/月 | -円/月 | -円/月 | -円/月 | -円/月 | -円/月 |
30万円 | -円/月 | -円/月 | -円/月 | -円/月 | -円/月 | -円/月 |
ボーナス払 | 35年間返済 | 30年間返済 | 25年間返済 | 20年間返済 | 15年間返済 | 10年間返済 |
|---|---|---|---|---|---|---|
0万円 | -円/月 | -円/月 | -円/月 | -円/月 | -円/月 | -円/月 |
5万円 | -円/月 | -円/月 | -円/月 | -円/月 | -円/月 | -円/月 |
10万円 | -円/月 | -円/月 | -円/月 | -円/月 | -円/月 | -円/月 |
15万円 | -円/月 | -円/月 | -円/月 | -円/月 | -円/月 | -円/月 |
20万円 | -円/月 | -円/月 | -円/月 | -円/月 | -円/月 | -円/月 |
25万円 | -円/月 | -円/月 | -円/月 | -円/月 | -円/月 | -円/月 |
30万円 | -円/月 | -円/月 | -円/月 | -円/月 | -円/月 | -円/月 |
- ・金利は、今後35年間変動しない仮定のもと元利均等返済方式で計算しております。
- ・実際の金利は、各金融機関のホームページをご参照ください。
- ・ローン契約の際には、手数料や印紙税などの諸費用が別途かかります。
- ・ボーナス支払総額が総支払額の50%を超えている場合、上記の表では「ローン不可」となります。
- ・シミュレーションを利用し、それが原因で利用者が受けたいかなる損害についても当社は一切責任を負いません。あらかじめご了承ください。

























