売地愛知県一宮市北方町北方字南辰已前の売地の詳細情報
外観・設備(1枚)
物件概要
| 物件名 | 愛知県一宮市北方町北方字南辰已前の売地 | ||||
|---|---|---|---|---|---|
| 所在地 | 愛知県一宮市北方町北方字南辰已前 | ||||
| 交通 |
名鉄名古屋本線 「木曽川堤」駅 徒歩12分 名鉄名古屋本線 「黒田」駅 徒歩16分 東海道本線 「木曽川」駅 徒歩20分 | ||||
| 最多価格帯 | - | 販売区画数/総区画数 | -/- | ||
| 土地権利 | 所有権 | 造成工事完了予定年月 | - | ||
| 取引態様 | 媒介 | 引渡し | 相談 | ||
| 現況 | 上物有 | 地目 | 宅地 | ||
| 地勢 | - | 都市計画 | 調整区域 | ||
| 用途地域 | 無指定 | 建ぺい率 | 60.00% | ||
| 容積率 | 200.00% | 国土法届出 | - | ||
| 私道負担・道路 | 備考に記載 | セットバック | セットバック要 | ||
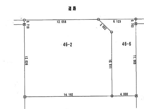
| 接道状況 | 北 3.7m 公道 接面12.0m東 4.0m 私道 接面11.9m 位置指定有 | ||||
| その他費用 | - | ||||
| 建築条件 | - | ||||
| その他制限事項 | - | ||||
| 備考 | 旧既存宅地。どなたでも建築可能です。南側に隣地の方との共有ブロック塀が有ります。(撤去については相談)46番6(53.17㎡)は位置指定道路(S43.9.24 43指令尾建第3-33号)です。通行の妨げになるような行為はできません。尚非課税です。建築有効部分46番2の面積は178.36㎡(53.95坪)です。建築許可申請必要です。・セットバック:有・私道負担:あり53.17平米・旧既存宅地。どなたでも建築可能です。閑静な住宅街です。建築有効面積178.36㎡(53.95坪)・仲介手数料:455,000円 / 条件等:更地渡し | ||||
情報公開日:2025/10/15 次回更新予定日:情報更新日より14日以内
この物件の地図・周辺環境
このアイコンは物件のおおよその位置を表しており、実際の場所と異なる場合がございます。詳しくは不動産会社に直接ご確認ください。
取り扱い不動産会社
- 住所
- 愛知県一宮市北方町北方字宮浦106-2
- 電話番号
- 0586-87-7441
- 営業時間
- 10:00~17:00(夜間早朝も対応します。お電話ください。)
- 定休日
- 未定・年末年始・夏期休暇
- 免許番号
- 愛知県知事免許(7)第17845号
- 所属団体
- (公社)愛知県宅地建物取引業協会、東海不動産公正取引協議会
掲載期限まであと2日
愛知県近隣の都道府県から土地を探す
住宅ローンシミュレーション
住宅ローン設定
物件価格
返済期間
頭金
ボーナス払(年1回)
※
※物件価格の80%以下でお借入れの場合
※50歳以下で一般団信をご選択の場合
※住宅ローン金利優遇割適用後の変動金利(全期間引き下げプラン)
※実際のお借入日の金利により変動します。
※審査の結果によっては保証付金利プランとなる場合があり、この場合は上記とは異なる金利となります。
※別途借入金額の2.20%(税込)の事務手数料が発生します。
ボーナス払 | 35年間返済 | 30年間返済 | 25年間返済 | 20年間返済 | 15年間返済 | 10年間返済 |
|---|---|---|---|---|---|---|
0万円 | -円/月 | -円/月 | -円/月 | -円/月 | -円/月 | -円/月 |
5万円 | -円/月 | -円/月 | -円/月 | -円/月 | -円/月 | -円/月 |
10万円 | -円/月 | -円/月 | -円/月 | -円/月 | -円/月 | -円/月 |
15万円 | -円/月 | -円/月 | -円/月 | -円/月 | -円/月 | -円/月 |
20万円 | -円/月 | -円/月 | -円/月 | -円/月 | -円/月 | -円/月 |
25万円 | -円/月 | -円/月 | -円/月 | -円/月 | -円/月 | -円/月 |
30万円 | -円/月 | -円/月 | -円/月 | -円/月 | -円/月 | -円/月 |
ボーナス払 | 35年間返済 | 30年間返済 | 25年間返済 | 20年間返済 | 15年間返済 | 10年間返済 |
|---|---|---|---|---|---|---|
0万円 | -円/月 | -円/月 | -円/月 | -円/月 | -円/月 | -円/月 |
5万円 | -円/月 | -円/月 | -円/月 | -円/月 | -円/月 | -円/月 |
10万円 | -円/月 | -円/月 | -円/月 | -円/月 | -円/月 | -円/月 |
15万円 | -円/月 | -円/月 | -円/月 | -円/月 | -円/月 | -円/月 |
20万円 | -円/月 | -円/月 | -円/月 | -円/月 | -円/月 | -円/月 |
25万円 | -円/月 | -円/月 | -円/月 | -円/月 | -円/月 | -円/月 |
30万円 | -円/月 | -円/月 | -円/月 | -円/月 | -円/月 | -円/月 |
- ・金利は、今後35年間変動しない仮定のもと元利均等返済方式で計算しております。
- ・実際の金利は、各金融機関のホームページをご参照ください。
- ・ローン契約の際には、手数料や印紙税などの諸費用が別途かかります。
- ・ボーナス支払総額が総支払額の50%を超えている場合、上記の表では「ローン不可」となります。
- ・シミュレーションを利用し、それが原因で利用者が受けたいかなる損害についても当社は一切責任を負いません。あらかじめご了承ください。



