NEW売地兵庫県姫路市北平野1丁目の売地の詳細情報
掲載期限まであと13日
外観・設備(1枚)
物件概要
| 物件名 | 兵庫県姫路市北平野1丁目の売地 | ||||
|---|---|---|---|---|---|
| 所在地 | 兵庫県姫路市北平野1丁目 | ||||
| 交通 |
JR播但線野里駅徒歩2000m | ||||
| 最多価格帯 | - | 販売区画数/総区画数 | -/- | ||
| 土地権利 | 所有権 | 造成工事完了予定年月 | - | ||
| 取引態様 | 一般媒介 | 引渡し | 相談 | ||
| 現況 | 更地 | 地目 | 宅地 | ||
| 地勢 | 平坦 | 都市計画 | 市街化区域 | ||
| 用途地域 | 1種住居 | 建ぺい率 | 60.00% | ||
| 容積率 | 160.00% | 国土法届出 | - | ||
| 私道負担・道路 | - | セットバック | - | ||
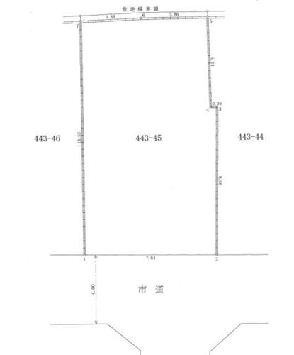
| 接道状況 | 南東 4.0m 公道 接面7.6m | ||||
| その他費用 | - | ||||
| 建築条件 | - | ||||
| その他制限事項 | - | ||||
| 備考 | 私道負担:なし / 条件等:現況渡し | ||||
情報公開日:2025/11/28 次回更新予定日:情報更新日より14日以内
取り扱い不動産会社
- 住所
- 兵庫県姫路市辻井5丁目9-9
- 電話番号
- 079-294-8091
- 営業時間
- 09:00~18:00
- 定休日
- なし・年末年始 GW お盆休み
- 免許番号
- 兵庫県知事免許(11)第450315号
- 所属団体
- (一社)兵庫県宅地建物取引業協会、(公社)近畿地区不動産公正取引協議会
掲載期限まであと13日
野里駅の口コミ
お買い物・飲食
2.0
イオンが近くにありますが、車でないと少し距離があります。 また、外食できるお店がすくないです。 閑静な住宅街なので、仕方ありませんが。
子育て・病院
4.0
姫路市内ではまあ住宅も多いところなので、病院に困ることはあまりないと思われます。耳鼻科や産婦人科の個人病院があります。
住宅ローンシミュレーション
住宅ローン設定
物件価格
返済期間
頭金
ボーナス払(年1回)
※
※物件価格の80%以下でお借入れの場合
※50歳以下で一般団信をご選択の場合
※住宅ローン金利優遇割適用後の変動金利(全期間引き下げプラン)
※実際のお借入日の金利により変動します。
※審査の結果によっては保証付金利プランとなる場合があり、この場合は上記とは異なる金利となります。
※別途借入金額の2.20%(税込)の事務手数料が発生します。
ボーナス払 | 35年間返済 | 30年間返済 | 25年間返済 | 20年間返済 | 15年間返済 | 10年間返済 |
|---|---|---|---|---|---|---|
0万円 | -円/月 | -円/月 | -円/月 | -円/月 | -円/月 | -円/月 |
5万円 | -円/月 | -円/月 | -円/月 | -円/月 | -円/月 | -円/月 |
10万円 | -円/月 | -円/月 | -円/月 | -円/月 | -円/月 | -円/月 |
15万円 | -円/月 | -円/月 | -円/月 | -円/月 | -円/月 | -円/月 |
20万円 | -円/月 | -円/月 | -円/月 | -円/月 | -円/月 | -円/月 |
25万円 | -円/月 | -円/月 | -円/月 | -円/月 | -円/月 | -円/月 |
30万円 | -円/月 | -円/月 | -円/月 | -円/月 | -円/月 | -円/月 |
ボーナス払 | 35年間返済 | 30年間返済 | 25年間返済 | 20年間返済 | 15年間返済 | 10年間返済 |
|---|---|---|---|---|---|---|
0万円 | -円/月 | -円/月 | -円/月 | -円/月 | -円/月 | -円/月 |
5万円 | -円/月 | -円/月 | -円/月 | -円/月 | -円/月 | -円/月 |
10万円 | -円/月 | -円/月 | -円/月 | -円/月 | -円/月 | -円/月 |
15万円 | -円/月 | -円/月 | -円/月 | -円/月 | -円/月 | -円/月 |
20万円 | -円/月 | -円/月 | -円/月 | -円/月 | -円/月 | -円/月 |
25万円 | -円/月 | -円/月 | -円/月 | -円/月 | -円/月 | -円/月 |
30万円 | -円/月 | -円/月 | -円/月 | -円/月 | -円/月 | -円/月 |
- ・金利は、今後35年間変動しない仮定のもと元利均等返済方式で計算しております。
- ・実際の金利は、各金融機関のホームページをご参照ください。
- ・ローン契約の際には、手数料や印紙税などの諸費用が別途かかります。
- ・ボーナス支払総額が総支払額の50%を超えている場合、上記の表では「ローン不可」となります。
- ・シミュレーションを利用し、それが原因で利用者が受けたいかなる損害についても当社は一切責任を負いません。あらかじめご了承ください。


