NEW土地甲栄台5(北鈴蘭台駅) 2280万円・2480万円の詳細情報
■13日(土)14日(日)現地説明会開催!☆選べる成約者特典は諸費用欄に記載☆
その他(21枚)
物件概要
| 物件名 | 甲栄台5(北鈴蘭台駅) 2280万円・2480万円 | ||||
|---|---|---|---|---|---|
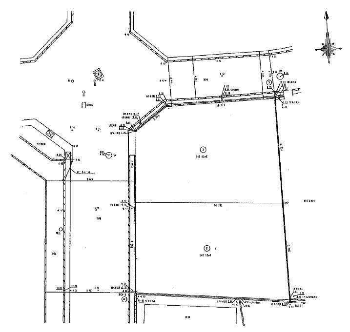
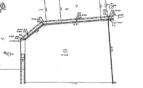
| 所在地 | 兵庫県神戸市北区甲栄台5 | ||||
| 交通 |
神戸電鉄有馬線「北鈴蘭台」歩7分~8分 神戸電鉄有馬線「山の街」歩17分~18分 神戸電鉄有馬線「鈴蘭台」歩26分~27分 | ||||
| 最多価格帯 | - | 販売区画数/総区画数 | 2区画/2区画 | ||
| 土地権利 | 所有権 | 造成工事完了予定年月 | - | ||
| 取引態様 | 仲介 | 引渡し | 相談 | ||
| 地目 | 宅地 | 用途地域 | 1種低層 | ||
| 建ぺい率・容積率 | 建ペい率:60%(角地緩和)・50%、容積率:100% | 私道負担・道路 | 道路幅:4.7m・9m、アスファルト舗装 | ||
| セットバック | - | ||||
| その他費用 | その他諸費用:■■■■■■■■■■■■■■■■■■■■■■■■■■■■■■■■■■■■■■■■■■■■■■■■■■■■■■■■■■■【☆当社限定!30万円キャッシュバックキャンペーン対象物件☆】使い道は自由です!詳しくはスタッフまでお問い合わせください!■■■■■■■■■■■■■■■■■■■■■■■■■■■■■■■■■■■■■■■■■■■■■■■■■■■■■■■■■■■■■■■■■■■■■■■ | ||||
| 建築条件 | - | ||||
| 販売スケジュール | - | ||||
| イベント情報 |
モデルハウス(事前に必ずお問い合わせください) 日程/毎週土日祝 時間/9:30~20:00 まずはお気軽にお電話ください!ご案内もスムーズに進みます! 現地案内会(事前に必ずお問合せください) 日程/公開中 時間/9:30~20:00 ◆◆現地案内会のお知らせ◆◆ ①現地案内会は時間は問いません。お気軽に担当者にご相談ください。 ②合わせて物件の周辺環境・小、中学校やスーパー、ドラックストア等もご案内致します。 ③インターネットに載っていない物件情報などもご紹介可能です。 ④お問い合わせ物件以外でも気になる物件がございましたらご一緒にご覧いただくことも可能です。 ■ご案内方法は3つあります ①お電話にて物件の詳細情報をご説明し、現地にてお待ち合わせをしご案内を致します。 ②ご自宅、もしくは物件の最寄りの駅までお迎えに伺い、現地までご案内致します。(もちろん無料です) ③当社へご来店いただき、この物件の詳細情報をご説明した上、現地へ向かいます。 ■ご予約方法 物件によって事前に鍵の手配が必要な場合がございます。ご予約はお早めにご連絡頂けるとご案内がスムーズになります。 ※ご案内が水曜日の場合は、事前にご連絡下さい。 ■住宅ローン相談会 住宅ローンのお悩みはございませんか?転職して間もないけど…?年収が低いけど…?車のローンがあるけど…?持病があるけど…?頭金がほとんどないけど…?外国籍だけど…?など、どんな内容でもご相談ください。あなたにピッタリのご提案をさせて頂きます!住宅の購入のほかにも、お金がかかるイベントがたくさんあります。出産費用、老後の生活費、介護費用、緊急資金、お子様の就職活動費、結婚費用など、限られた資金をどのように振り分ければいいのか、当社のライフプラン相談が大人気です!もちろん無料ですので、お気軽にお問合せ下さい。 | ||||
| その他制限事項 | - | ||||
| 備考 | 担当者:西橋 正輝、設備:公営水道、本下水、都市ガス | ||||
| 取引条件有効期限 | 2026年12月31日 | ||||
情報公開日:2025/12/11 次回更新予定日:情報提供より8日以内
取り扱い不動産会社
- 住所
- 兵庫県伊丹市寺本3-17-1
- 電話番号
- 0120-887001
- 営業時間
- 営業時間:9:30~20:00 / 定休日:年中無休
- 免許番号
- 国土交通大臣(1)第010394号
- 会社概要
- <仲介>
国土交通大臣(1)第010394号
(公社)全日本不動産協会兵庫県本部会員 (公社)近畿地区不動産公正取引協議会加盟
住まいるプラス1(株)ハウジングプラザ阪神店
〒664-0026 兵庫県伊丹市寺本3-17-1
北鈴蘭台駅の口コミ
お買い物・飲食
4.0
駅ビルの中に神鉄食彩館(スーパー)やキリン堂(ドラックストア)が入っています。北鈴蘭台駅周辺には何店舗かお店がありますが、全体的に物価は高くないと思います。飲食店もありますが、酔っ払いがいることもなく治安がいいので安心です。
自然環境
5.0
標高が高いので冬は寒い風もかなりきつい。雪がよく降る、雪が積もると溶けにくいので足元が危ない。カラスが多い
住宅ローンシミュレーション
住宅ローン設定
物件価格
返済期間
頭金
ボーナス払(年1回)
※
※物件価格の80%以下でお借入れの場合
※50歳以下で一般団信をご選択の場合
※住宅ローン金利優遇割適用後の変動金利(全期間引き下げプラン)
※実際のお借入日の金利により変動します。
※審査の結果によっては保証付金利プランとなる場合があり、この場合は上記とは異なる金利となります。
※別途借入金額の2.20%(税込)の事務手数料が発生します。
ボーナス払 | 35年間返済 | 30年間返済 | 25年間返済 | 20年間返済 | 15年間返済 | 10年間返済 |
|---|---|---|---|---|---|---|
0万円 | -円/月 | -円/月 | -円/月 | -円/月 | -円/月 | -円/月 |
5万円 | -円/月 | -円/月 | -円/月 | -円/月 | -円/月 | -円/月 |
10万円 | -円/月 | -円/月 | -円/月 | -円/月 | -円/月 | -円/月 |
15万円 | -円/月 | -円/月 | -円/月 | -円/月 | -円/月 | -円/月 |
20万円 | -円/月 | -円/月 | -円/月 | -円/月 | -円/月 | -円/月 |
25万円 | -円/月 | -円/月 | -円/月 | -円/月 | -円/月 | -円/月 |
30万円 | -円/月 | -円/月 | -円/月 | -円/月 | -円/月 | -円/月 |
ボーナス払 | 35年間返済 | 30年間返済 | 25年間返済 | 20年間返済 | 15年間返済 | 10年間返済 |
|---|---|---|---|---|---|---|
0万円 | -円/月 | -円/月 | -円/月 | -円/月 | -円/月 | -円/月 |
5万円 | -円/月 | -円/月 | -円/月 | -円/月 | -円/月 | -円/月 |
10万円 | -円/月 | -円/月 | -円/月 | -円/月 | -円/月 | -円/月 |
15万円 | -円/月 | -円/月 | -円/月 | -円/月 | -円/月 | -円/月 |
20万円 | -円/月 | -円/月 | -円/月 | -円/月 | -円/月 | -円/月 |
25万円 | -円/月 | -円/月 | -円/月 | -円/月 | -円/月 | -円/月 |
30万円 | -円/月 | -円/月 | -円/月 | -円/月 | -円/月 | -円/月 |
- ・金利は、今後35年間変動しない仮定のもと元利均等返済方式で計算しております。
- ・実際の金利は、各金融機関のホームページをご参照ください。
- ・ローン契約の際には、手数料や印紙税などの諸費用が別途かかります。
- ・ボーナス支払総額が総支払額の50%を超えている場合、上記の表では「ローン不可」となります。
- ・シミュレーションを利用し、それが原因で利用者が受けたいかなる損害についても当社は一切責任を負いません。あらかじめご了承ください。





















