土地天沼(平塚駅) 2080万円~2700万円の詳細情報
□南向き□平塚駅徒歩圏□ららぽーと湘南平塚徒歩2分□国産材100%使用
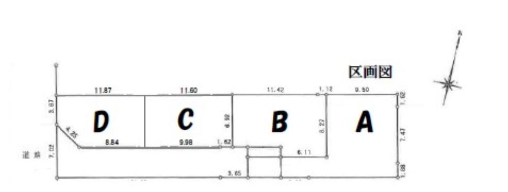
物件概要
| 物件名 | 天沼(平塚駅) 2080万円~2700万円 | ||||
|---|---|---|---|---|---|
| 所在地 | 神奈川県平塚市天沼6-7 | ||||
| 交通 |
JR東海道本線「平塚」歩18分 湘南新宿ライン高海「平塚」歩18分 湘南新宿ライン高海「平塚」バス5分ららぽーと湘南平塚南歩4分 | ||||
| 最多価格帯 | - | 販売区画数/総区画数 | 4区画/4区画 | ||
| 土地権利 | 所有権 | 造成工事完了予定年月 | - | ||
| 取引態様 | 仲介 | 引渡し | 相談 | ||
| 地目 | 宅地 | 用途地域 | 1種住居 | ||
| 建ぺい率・容積率 | 建ぺい率60%容積率160% | 私道負担・道路 | 道路幅:4m、アスファルト舗装 | ||
| セットバック | - | ||||
| その他費用 | - | ||||
| 建築条件 | 建築条件付建築条件付き土地とは、一定期間内(一般的には3ヶ月以上)に特定の建設会社と建築請負契約を結ぶことを条件にしている宅地のことです。建物の内容は、土地購入者の自由意思により決定可能で、土地売買契約後、建築請負会社と購入した土地に建設する建物について協議することになります。期間内に建築請負契約が成立しなければ売買契約は白紙となり、支払済みの金銭はすべて返却されます。 | ||||
| 販売スケジュール | - | ||||
| イベント情報 |
現地見学会(事前に必ず予約してください) 日程/公開中 時間/9:00~18:00 ■■■住宅ローン相談会のお知らせ■■■ 明治地所ハウジングセンター茅ヶ崎南口店では、随時住宅ローン相談会を実施しております。 ■無料ローン相談会も開催中 安心・安全に返済できるラインをお客様の諸事情を考慮して、 最適な金融機関と最適な住宅ローンプランをご提案させていただきます。 お気軽にご相談ください! 具体的なお話をお聞きしたい場合下記の資料をお持ちください。 ・源泉徴収票 (事業主の方は決算書3期分or確定申告書3期分) ・免許証 ・保険証 ・お認印 ・お車やお家のローンがある場合、各ローンの返済予定表 ・勤続1年未満の方は給与明細 ※お客様によっては追加の資料が必要となる場合が御座います。担当にお尋ねください。 ■キッズスペースもご用意しております☆ お子様にとっては退屈になり兼ねないのが、お住い探しのネック。 このようなお声をよく聞きますが、弊社にはお子様が退屈しないよう、 DVD、おもちゃ、絵本、ぬりえなどキッズスペースも充実させておりますのでご安心下さい。 ■お車の無料提携駐車場がございます。 雨の日のご移動に、お買い物帰りのちょっとしたお時間に、 などお気軽にお越し頂けたらと思います。駐車場はカーナビで 「茅ヶ崎市幸町22-10」とご入力ください。 お店のすぐ横に駐車場が御座います。 | ||||
| その他制限事項 | - | ||||
| 備考 | 担当者:石井恒多、設備:公営水道、本下水、都市ガス | ||||
| 取引条件有効期限 | 2025年11月30日 | ||||
情報公開日:2025/10/25 次回更新予定日:情報提供より8日以内
取り扱い不動産会社
- 住所
- 神奈川県茅ヶ崎市幸町22-10
- 電話番号
- 0120-046746
- 営業時間
- 営業時間:9:30~18:30 / 定休日:毎週火・水※祝日等で変更あり
- 免許番号
- 神奈川県知事(12)第011269号
- 会社概要
- <仲介>
神奈川県知事(12)第011269号
(一社)不動産流通経営協会会員 (公社)首都圏不動産公正取引協議会加盟 / (公社)神奈川県宅地建物取引業協会会員 (公社)首都圏不動産公正取引協議会加盟 / (公社)首都圏不動産公正取引協議会会員
明治地所ハウジングセンター(株)茅ヶ崎店
〒253-0052 神奈川県茅ヶ崎市幸町22-10
平塚駅の口コミ
子育て・病院
4.0
周囲は飲み屋さんや居酒屋が多いため、昼間は商店街があり和やかであり賑やかですが、夜は酔っ払いが目立ちます。従って子どもがのびのび安心して育つ環境かといえば違うようです。また公園も少しあるけばありますが、夜の公園はやはりホームレスや酔っ払いがいるような感じです。
治安・安全
5.0
進学校がいくつかあるせいか、治安が悪いと言われることがあります。私自身は特に被害に遭ったことはありませんが、気になる方は茅ヶ崎市や二宮町にしておいたほうが無難かもしれません。 ※大磯町の場合、日常の買い物等は結局平塚市内となるため、生活が町内で完結する二宮町を挙げました。
平塚市の駅から土地を探す
神奈川県近隣の都道府県から土地を探す
住宅ローンシミュレーション
住宅ローン設定
物件価格
返済期間
頭金
ボーナス払(年1回)
※
※物件価格の80%以下でお借入れの場合
※50歳以下で一般団信をご選択の場合
※住宅ローン金利優遇割適用後の変動金利(全期間引き下げプラン)
※実際のお借入日の金利により変動します。
※審査の結果によっては保証付金利プランとなる場合があり、この場合は上記とは異なる金利となります。
※別途借入金額の2.20%(税込)の事務手数料が発生します。
ボーナス払 | 35年間返済 | 30年間返済 | 25年間返済 | 20年間返済 | 15年間返済 | 10年間返済 |
|---|---|---|---|---|---|---|
0万円 | -円/月 | -円/月 | -円/月 | -円/月 | -円/月 | -円/月 |
5万円 | -円/月 | -円/月 | -円/月 | -円/月 | -円/月 | -円/月 |
10万円 | -円/月 | -円/月 | -円/月 | -円/月 | -円/月 | -円/月 |
15万円 | -円/月 | -円/月 | -円/月 | -円/月 | -円/月 | -円/月 |
20万円 | -円/月 | -円/月 | -円/月 | -円/月 | -円/月 | -円/月 |
25万円 | -円/月 | -円/月 | -円/月 | -円/月 | -円/月 | -円/月 |
30万円 | -円/月 | -円/月 | -円/月 | -円/月 | -円/月 | -円/月 |
ボーナス払 | 35年間返済 | 30年間返済 | 25年間返済 | 20年間返済 | 15年間返済 | 10年間返済 |
|---|---|---|---|---|---|---|
0万円 | -円/月 | -円/月 | -円/月 | -円/月 | -円/月 | -円/月 |
5万円 | -円/月 | -円/月 | -円/月 | -円/月 | -円/月 | -円/月 |
10万円 | -円/月 | -円/月 | -円/月 | -円/月 | -円/月 | -円/月 |
15万円 | -円/月 | -円/月 | -円/月 | -円/月 | -円/月 | -円/月 |
20万円 | -円/月 | -円/月 | -円/月 | -円/月 | -円/月 | -円/月 |
25万円 | -円/月 | -円/月 | -円/月 | -円/月 | -円/月 | -円/月 |
30万円 | -円/月 | -円/月 | -円/月 | -円/月 | -円/月 | -円/月 |
- ・金利は、今後35年間変動しない仮定のもと元利均等返済方式で計算しております。
- ・実際の金利は、各金融機関のホームページをご参照ください。
- ・ローン契約の際には、手数料や印紙税などの諸費用が別途かかります。
- ・ボーナス支払総額が総支払額の50%を超えている場合、上記の表では「ローン不可」となります。
- ・シミュレーションを利用し、それが原因で利用者が受けたいかなる損害についても当社は一切責任を負いません。あらかじめご了承ください。


