土地葉山町下山口 売地の詳細情報
2480万円
月々のローン返済額を試算「葉山の緑景で理想の住まい。地形と調和し自然とつながる心地よい暮らしを」
周辺環境・アクセス(4枚)
その他(20枚)
物件概要
| 物件名 | 葉山町下山口 売地 | ||||
|---|---|---|---|---|---|
| 所在地 | 神奈川県三浦郡葉山町下山口 | ||||
| 交通 |
京急逗子線「逗子・葉山」歩68分 JR横須賀線「東逗子」歩78分 JR横須賀線「逗子」歩77分 | ||||
| 最多価格帯 | - | 販売区画数/総区画数 | 1区画/- | ||
| 土地権利 | 所有権 | 造成工事完了予定年月 | - | ||
| 取引態様 | 仲介 | 引渡し | 相談 | ||
| 地目 | 宅地 | 用途地域 | 1種低層 | ||
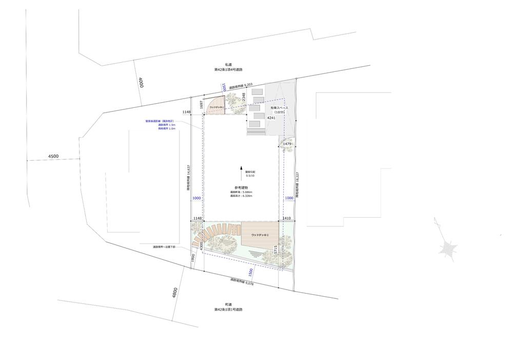
| 建ぺい率・容積率 | 40%・80% | 私道負担・道路 | 123㎡、南西4.6m幅(接道幅6.3m)、北東4m幅(接道幅6.3m) | ||
| セットバック | - | ||||
| その他費用 | - | ||||
| 建築条件 | 建築条件付建築条件付き土地とは、一定期間内(一般的には3ヶ月以上)に特定の建設会社と建築請負契約を結ぶことを条件にしている宅地のことです。建物の内容は、土地購入者の自由意思により決定可能で、土地売買契約後、建築請負会社と購入した土地に建設する建物について協議することになります。期間内に建築請負契約が成立しなければ売買契約は白紙となり、支払済みの金銭はすべて返却されます。 | ||||
| 販売スケジュール | - | ||||
| イベント情報 |
現地見学会(事前に必ずお問い合わせください) 日程/公開中 時間/9:00~18:00 《 東宝ハウス逗子・葉山リゾート 》 ~海が日常を彩る街、湘南~ 早朝に、海で愛犬とのんびり散歩。 朝日をあびて、ゆっくり体が目覚めていく。 自分にも家族にも、優しくスローな時間が流れる湘南生活です。 そんな夢を叶えませんか。 湘南を熟知した専属スタッフが、お客様のライフスタイルに沿った湘南生活をご提案させていただきます。 ■ 「1件だけ」「今すぐに」の見学希望もお気軽にお問い合わせください。 ■ ネットでの見学予約も受け付けます。掲載物件の「資料請求」からお申し込みください。 ■ 当社では無料の屋根付き駐車場を完備。雨の日のお子様連れも安心です。 ■ 陽の当たるキッズルームには、お子様のお相手をする女性の専属スタッフが常駐しています。 ■ 住宅ローンの相談会も無料開催。 提携銀行のお得な金利情報もご提案できます。 ■ 外部のファイナンシャルプランナーによるマンツーマンの生涯設計も予約受付中。 無理のないお借入額、上手な繰り上げ返済、教育本番期への対策方法・・・etc。 事前予約制ですので、お気軽にご連絡ください。もちろん無料です。 ■ ご購入までのサポートだけではなく、お住まいになられてからのサポートに自信がありますので、「お客様に選んでいただける会社」を目指しております。 購入後の確定申告セミナー・住まいの定期点検・ローンや保険の見直し・不動産の書類保管サービス・ご親族さまの相続や贈与等の申告や節税対策のサポートなど。 湘南での物件さがしの第一歩を、私たち《 東宝ハウス逗子・葉山リゾート 》におまかせください。 | ||||
| その他制限事項 | 宅地造成工事規制区域、風致地区 | ||||
| 備考 | 担当者:有馬 拓海 | ||||
| 取引条件有効期限 | - | ||||
情報公開日:2025/10/15 次回更新予定日:情報提供より8日以内
取り扱い不動産会社
東宝ハウスライフソリューションズグループ(株)東宝ハウス逗子・葉山リゾート
- 住所
- 神奈川県逗子市逗子1-5-2
- 電話番号
- 0120-104091
- 免許番号
- 神奈川県知事(1)第032759号
- 会社概要
- <仲介>
神奈川県知事(1)第032759号
東宝ハウスライフソリューションズグループ(株)東宝ハウス逗子・葉山リゾート
〒249-0006 神奈川県逗子市逗子1-5-2
(株)東宝ハウス逗子・葉山リゾート
逗子・葉山駅の口コミ
お買い物・飲食
2.0
スーパーはすぐ近くにはない。葉山自体買い物に便利ではない。 美味しいお店はいくつもあるが、自炊しようと思うと車がないと大変。
お買い物・飲食
4.0
街の特性上、個人経営のお店が多く、数はそこそこあっても入りづらい感じはある。大きな買い物をしたいと思ったら結局隣町まで行くことになる
神奈川県近隣の都道府県から土地を探す
住宅ローンシミュレーション
住宅ローン設定
物件価格
返済期間
頭金
ボーナス払(年1回)
※
※物件価格の80%以下でお借入れの場合
※50歳以下で一般団信をご選択の場合
※住宅ローン金利優遇割適用後の変動金利(全期間引き下げプラン)
※実際のお借入日の金利により変動します。
※審査の結果によっては保証付金利プランとなる場合があり、この場合は上記とは異なる金利となります。
※別途借入金額の2.20%(税込)の事務手数料が発生します。
ボーナス払 | 35年間返済 | 30年間返済 | 25年間返済 | 20年間返済 | 15年間返済 | 10年間返済 |
|---|---|---|---|---|---|---|
0万円 | -円/月 | -円/月 | -円/月 | -円/月 | -円/月 | -円/月 |
5万円 | -円/月 | -円/月 | -円/月 | -円/月 | -円/月 | -円/月 |
10万円 | -円/月 | -円/月 | -円/月 | -円/月 | -円/月 | -円/月 |
15万円 | -円/月 | -円/月 | -円/月 | -円/月 | -円/月 | -円/月 |
20万円 | -円/月 | -円/月 | -円/月 | -円/月 | -円/月 | -円/月 |
25万円 | -円/月 | -円/月 | -円/月 | -円/月 | -円/月 | -円/月 |
30万円 | -円/月 | -円/月 | -円/月 | -円/月 | -円/月 | -円/月 |
ボーナス払 | 35年間返済 | 30年間返済 | 25年間返済 | 20年間返済 | 15年間返済 | 10年間返済 |
|---|---|---|---|---|---|---|
0万円 | -円/月 | -円/月 | -円/月 | -円/月 | -円/月 | -円/月 |
5万円 | -円/月 | -円/月 | -円/月 | -円/月 | -円/月 | -円/月 |
10万円 | -円/月 | -円/月 | -円/月 | -円/月 | -円/月 | -円/月 |
15万円 | -円/月 | -円/月 | -円/月 | -円/月 | -円/月 | -円/月 |
20万円 | -円/月 | -円/月 | -円/月 | -円/月 | -円/月 | -円/月 |
25万円 | -円/月 | -円/月 | -円/月 | -円/月 | -円/月 | -円/月 |
30万円 | -円/月 | -円/月 | -円/月 | -円/月 | -円/月 | -円/月 |
- ・金利は、今後35年間変動しない仮定のもと元利均等返済方式で計算しております。
- ・実際の金利は、各金融機関のホームページをご参照ください。
- ・ローン契約の際には、手数料や印紙税などの諸費用が別途かかります。
- ・ボーナス支払総額が総支払額の50%を超えている場合、上記の表では「ローン不可」となります。
- ・シミュレーションを利用し、それが原因で利用者が受けたいかなる損害についても当社は一切責任を負いません。あらかじめご了承ください。




















