NEW土地大磯町国府新宿24-1期 条件付き土地 全5区画 5区画の詳細情報
掲載期限まであと13日
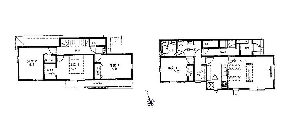
間取り・区画図(1枚)
物件概要
| 物件名 | 大磯町国府新宿24-1期 条件付き土地 全5区画 5区画 | ||||
|---|---|---|---|---|---|
| 所在地 | 神奈川県中郡大磯町国府新宿 | ||||
| 交通 |
JR東海道本線 二宮駅 バス11分 天の杜下車 徒歩5分 JR東海道本線 二宮駅 徒歩26分 | ||||
| 総区画数 | 5区画 | 土地権利 | 所有権 | ||
| 造成工事完了予定年月 | - | 取引態様 | 仲介 | ||
| 引渡し | 2026年08月 下旬 | 現況 | 更地 | ||
| 地目 | 宅地 | 地勢 | - | ||
| 都市計画 | 市街化区域 | 用途地域 | 第一種中高層住居専用地域 | ||
| 建ぺい率 | 60% | 容積率 | 180% | ||
| 国土法届出 | 不要 | 私道負担・道路 | - | ||
| セットバック | 無 | 接道状況 | 一方 ( 東 4.5m 公道 ) | ||
| その他費用 | - | ||||
| 建築条件 | 建築条件付建築条件付き土地とは、一定期間内(一般的には3ヶ月以上)に特定の建設会社と建築請負契約を結ぶことを条件にしている宅地のことです。建物の内容は、土地購入者の自由意思により決定可能で、土地売買契約後、建築請負会社と購入した土地に建設する建物について協議することになります。期間内に建築請負契約が成立しなければ売買契約は白紙となり、支払済みの金銭はすべて返却されます。 | ||||
| 見学会 | - | ||||
| 備考 | 建築条件:付き平米 くらしを楽しむ世の中を、もっと。~ME不動産神奈川~ 景観法 下水道排水区域 | ||||
情報公開日:2025/11/18 有効期限:2025/12/04
設備・条件
| 設備・サービス | 下水、公営水道 | ||||
|---|---|---|---|---|---|
| その他 | 所有権、駐車場あり、建築条件付き、駐車場2台以上、上下水道、駐車場3台以上、更地 | ||||
| 周辺環境 | 複数路線 | ||||
この物件の地図・周辺環境
このアイコンは物件のおおよその位置を表しており、実際の場所と異なる場合がございます。詳しくは不動産会社に直接ご確認ください。
取り扱い不動産会社
- 住所
- 神奈川県厚木市中町4丁目9番18号 本厚木トーセイビル2 302
- 電話番号
- 046-294-0866
- 営業時間
- 09:00~18:30
- 定休日
- 水曜日
- 免許番号
- 神奈川県知事(01)第031372号
- 所属団体
- (公社)首都圏不動産公正取引協議会、(公社)全日本不動産協会神奈川県本部
電話で問い合わせる(無料)お急ぎの方はこちらから!
物件お問い合わせ専用ダイヤル
営業時間:09:00~18:30(定休日:水曜日) 携帯・PHS可
音声案内に従って以下の数字を入力
お問い合わせ番号:67967-1051
LIFULL HOME'S物件番号:100906882
※お客様の電話番号は不動産会社に通知されません。
※光IP電話、及びIP電話からはご利用になれません。
※不動産会社の方からの上記電話番号によるお問合せはお断りしております。
掲載期限まであと13日
二宮駅の口コミ
お買い物・飲食
1.0
徒歩圏内の生協も閉店してしまい、スーパー等店が近所にないので車がないと 不便です。自転車があれば何とかなるかな。
自然環境
3.0
駅周辺に海と山があり、のどかな雰囲気のある町だと思います。野鳥が至るところで観察でき、自然の好きな方には最適。海岸では地引網などもやっているので、子供も楽しめます。
中郡大磯町の駅から土地を探す
神奈川県近隣の都道府県から土地を探す
住宅ローンシミュレーション
住宅ローン設定
物件価格
返済期間
頭金
ボーナス払(年1回)
※
※物件価格の80%以下でお借入れの場合
※50歳以下で一般団信をご選択の場合
※住宅ローン金利優遇割適用後の変動金利(全期間引き下げプラン)
※実際のお借入日の金利により変動します。
※審査の結果によっては保証付金利プランとなる場合があり、この場合は上記とは異なる金利となります。
※別途借入金額の2.20%(税込)の事務手数料が発生します。
ボーナス払 | 35年間返済 | 30年間返済 | 25年間返済 | 20年間返済 | 15年間返済 | 10年間返済 |
|---|---|---|---|---|---|---|
0万円 | -円/月 | -円/月 | -円/月 | -円/月 | -円/月 | -円/月 |
5万円 | -円/月 | -円/月 | -円/月 | -円/月 | -円/月 | -円/月 |
10万円 | -円/月 | -円/月 | -円/月 | -円/月 | -円/月 | -円/月 |
15万円 | -円/月 | -円/月 | -円/月 | -円/月 | -円/月 | -円/月 |
20万円 | -円/月 | -円/月 | -円/月 | -円/月 | -円/月 | -円/月 |
25万円 | -円/月 | -円/月 | -円/月 | -円/月 | -円/月 | -円/月 |
30万円 | -円/月 | -円/月 | -円/月 | -円/月 | -円/月 | -円/月 |
ボーナス払 | 35年間返済 | 30年間返済 | 25年間返済 | 20年間返済 | 15年間返済 | 10年間返済 |
|---|---|---|---|---|---|---|
0万円 | -円/月 | -円/月 | -円/月 | -円/月 | -円/月 | -円/月 |
5万円 | -円/月 | -円/月 | -円/月 | -円/月 | -円/月 | -円/月 |
10万円 | -円/月 | -円/月 | -円/月 | -円/月 | -円/月 | -円/月 |
15万円 | -円/月 | -円/月 | -円/月 | -円/月 | -円/月 | -円/月 |
20万円 | -円/月 | -円/月 | -円/月 | -円/月 | -円/月 | -円/月 |
25万円 | -円/月 | -円/月 | -円/月 | -円/月 | -円/月 | -円/月 |
30万円 | -円/月 | -円/月 | -円/月 | -円/月 | -円/月 | -円/月 |
- ・金利は、今後35年間変動しない仮定のもと元利均等返済方式で計算しております。
- ・実際の金利は、各金融機関のホームページをご参照ください。
- ・ローン契約の際には、手数料や印紙税などの諸費用が別途かかります。
- ・ボーナス支払総額が総支払額の50%を超えている場合、上記の表では「ローン不可」となります。
- ・シミュレーションを利用し、それが原因で利用者が受けたいかなる損害についても当社は一切責任を負いません。あらかじめご了承ください。






