売地長野県千曲市大字鋳物師屋の売地の詳細情報
外観・設備(1枚)
物件概要
| 物件名 | 長野県千曲市大字鋳物師屋の売地 | ||||
|---|---|---|---|---|---|
| 所在地 | 長野県千曲市大字鋳物師屋 | ||||
| 交通 |
しなの鉄道 「屋代」駅 徒歩23分 | ||||
| 最多価格帯 | - | 販売区画数/総区画数 | -/- | ||
| 土地権利 | 所有権 | 造成工事完了予定年月 | - | ||
| 取引態様 | 売主 | 引渡し | 相談 | ||
| 現況 | 更地 | 地目 | 宅地 | ||
| 地勢 | 平坦 | 都市計画 | 非線引区域 | ||
| 用途地域 | 無指定 | 建ぺい率 | 60.00% | ||
| 容積率 | 200.00% | 国土法届出 | - | ||
| 私道負担・道路 | - | セットバック | - | ||
| 接道状況 | 西 7.0m 接面7.2m | ||||
| その他費用 | - | ||||
| 建築条件 | - | ||||
| その他制限事項 | - | ||||
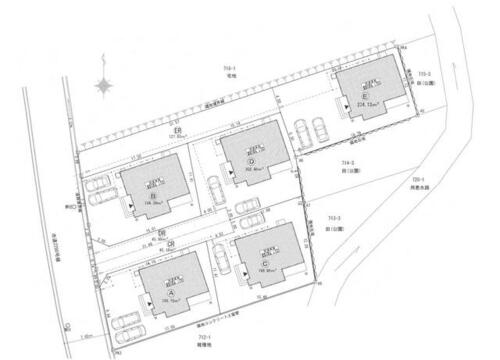
| 備考 | 千曲市鋳物師屋分譲B号地,C号地,D号地,E号地、販売中です!建築確認申請後、地目を宅地に変更して引渡します。上水道負担金 13mm:33,000円下水道負担金 ㎡:700円建築条件付はありません。表記プランは配置参考例です。間取りや資金計画はご検討中のハウスメーカー、工務店さんとご相談ください。・2019年台風時には水害のあったエリアです。・B号地,C号地,D号地,E号地、販売中です!幹線道路沿いの出入りのしやすい立地です。南面は奥の2区画の通路になっておりますので、日当たりもその分は、いいですね。 / 条件等:現況渡し | ||||
情報公開日:2025/10/17 次回更新予定日:情報更新日より14日以内
この物件の地図・周辺環境
このアイコンは物件のおおよその位置を表しており、実際の場所と異なる場合がございます。詳しくは不動産会社に直接ご確認ください。
取り扱い不動産会社
- 住所
- 長野県長野市大字鶴賀緑町1104-10
- 電話番号
- 026-217-2107
- 営業時間
- 09:00~17:00
- 定休日
- 毎週水曜日・祝日・年末年始・夏季休暇・GW
- 免許番号
- 長野県知事免許(3)第5349号
- 所属団体
- (公社)長野県宅地建物取引業協会、(公社)首都圏不動産公正取引協議会
掲載期限まであと1日
住宅ローンシミュレーション
住宅ローン設定
物件価格
返済期間
頭金
ボーナス払(年1回)
※
※物件価格の80%以下でお借入れの場合
※50歳以下で一般団信をご選択の場合
※住宅ローン金利優遇割適用後の変動金利(全期間引き下げプラン)
※実際のお借入日の金利により変動します。
※審査の結果によっては保証付金利プランとなる場合があり、この場合は上記とは異なる金利となります。
※別途借入金額の2.20%(税込)の事務手数料が発生します。
ボーナス払 | 35年間返済 | 30年間返済 | 25年間返済 | 20年間返済 | 15年間返済 | 10年間返済 |
|---|---|---|---|---|---|---|
0万円 | -円/月 | -円/月 | -円/月 | -円/月 | -円/月 | -円/月 |
5万円 | -円/月 | -円/月 | -円/月 | -円/月 | -円/月 | -円/月 |
10万円 | -円/月 | -円/月 | -円/月 | -円/月 | -円/月 | -円/月 |
15万円 | -円/月 | -円/月 | -円/月 | -円/月 | -円/月 | -円/月 |
20万円 | -円/月 | -円/月 | -円/月 | -円/月 | -円/月 | -円/月 |
25万円 | -円/月 | -円/月 | -円/月 | -円/月 | -円/月 | -円/月 |
30万円 | -円/月 | -円/月 | -円/月 | -円/月 | -円/月 | -円/月 |
ボーナス払 | 35年間返済 | 30年間返済 | 25年間返済 | 20年間返済 | 15年間返済 | 10年間返済 |
|---|---|---|---|---|---|---|
0万円 | -円/月 | -円/月 | -円/月 | -円/月 | -円/月 | -円/月 |
5万円 | -円/月 | -円/月 | -円/月 | -円/月 | -円/月 | -円/月 |
10万円 | -円/月 | -円/月 | -円/月 | -円/月 | -円/月 | -円/月 |
15万円 | -円/月 | -円/月 | -円/月 | -円/月 | -円/月 | -円/月 |
20万円 | -円/月 | -円/月 | -円/月 | -円/月 | -円/月 | -円/月 |
25万円 | -円/月 | -円/月 | -円/月 | -円/月 | -円/月 | -円/月 |
30万円 | -円/月 | -円/月 | -円/月 | -円/月 | -円/月 | -円/月 |
- ・金利は、今後35年間変動しない仮定のもと元利均等返済方式で計算しております。
- ・実際の金利は、各金融機関のホームページをご参照ください。
- ・ローン契約の際には、手数料や印紙税などの諸費用が別途かかります。
- ・ボーナス支払総額が総支払額の50%を超えている場合、上記の表では「ローン不可」となります。
- ・シミュレーションを利用し、それが原因で利用者が受けたいかなる損害についても当社は一切責任を負いません。あらかじめご了承ください。
















