土地大字大門(塩尻駅) 1043万7000円~1481万4000円の詳細情報
1043万7000円~1481万4000円
月々のローン返済額を試算土地50坪以上、更地渡し、市街地が近い、陽当り良好、駅まで平坦
その他(21枚)
物件概要
| 物件名 | 大字大門(塩尻駅) 1043万7000円~1481万4000円 | ||||
|---|---|---|---|---|---|
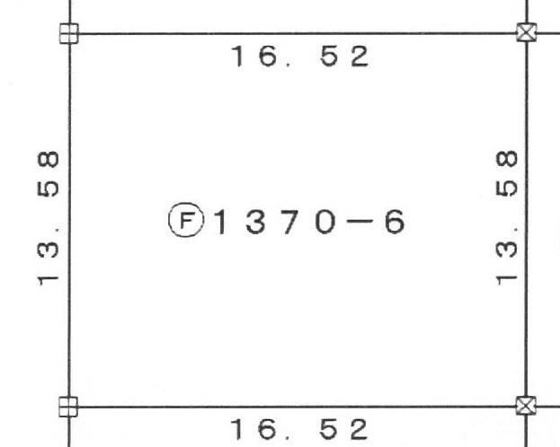
| 所在地 | 長野県塩尻市大字大門1370番1ほか | ||||
| 交通 |
JR篠ノ井線「塩尻」歩12分 JR篠ノ井線「広丘」歩47分 | ||||
| 最多価格帯 | 1400万円台(6区画) | 販売区画数/総区画数 | 8区画/13区画 | ||
| 土地権利 | 所有権 | 造成工事完了予定年月 | 2025年10月 | ||
| 取引態様 | 売主 | 引渡し | 相談 | ||
| 地目 | 宅地 | 用途地域 | 1種住居 | ||
| 建ぺい率・容積率 | 建蔽率:60% 容積率:200% | 私道負担・道路 | 道路幅:6m~9m、アスファルト舗装 | ||
| セットバック | - | ||||
| その他費用 | その他諸費用:上水道負担金 91300円、下水道受益者負担金 土地1㎡あたり420円(区画による) | ||||
| 建築条件 | - | ||||
| 販売スケジュール | - | ||||
| イベント情報 | - | ||||
| その他制限事項 | 景観法による規制有、【地役権設定について】 本区画の上空には、中部電力の管轄する電線が通過しております。 そのため、地役権が設定され、下記についての制限が附されます。 【制限内容】 1.送電線路の最下垂時における電線から一定の範囲に建築物の築造はできません。 (2階建ての戸建てであれば問題ありません。) 2.危険性のあるもの(引火性、爆発性をともなうもの)の製造及び貯蔵。 3.送電線路に支障となる工作物の設置、竹木の植栽等。 *詳しくは担当までお問合せ下さい。 | ||||
| 備考 | 担当者:ミサワホーム甲信 中南信営業部、設備:公営水道、本下水、個別LPG、開発許可番号:都市計画法第58条2第1項の許可 7都第249号、開発面積:3067.37㎡、自社持分面積:3067.37㎡ | ||||
| 取引条件有効期限 | 2025年12月31日 | ||||
情報公開日:2025/11/10 次回更新予定日:情報提供より8日以内
この物件の地図・周辺環境
このアイコンは物件のおおよその位置を表しており、実際の場所と異なる場合がございます。詳しくは不動産会社に直接ご確認ください。
※地図上に表示される物件の位置は付近住所に所在することを表すものであり、実際の物件所在地とは異なる場合がございます。
※地図の更新タイミングの関係で、物件情報が実際のものとは異なる場合や最新情報に更新されていない場合がございます。
※以下の南西諸島及び離島においては、表示される物件の位置が実際のものとは数百メートル程度ずれる場合がございます。
東京都:硫黄島・青ヶ島、沖縄県: 北大東島・南大東島・多良間島・水納島・与那国島・宮古諸島・石垣島・竹富島
取り扱い不動産会社
- 住所
- 長野県松本市双葉22-1
- 電話番号
- 0120-029330
- 営業時間
- 営業時間:9:00~18:00 / 定休日:火曜・水曜・祝祭日
- 免許番号
- 国土交通大臣(3)第008196号
- 会社概要
- <売主>
国土交通大臣(3)第008196号
(公社)長野県宅地建物取引業協会会員 (公社)首都圏不動産公正取引協議会加盟
ミサワホーム甲信(株)新築事業本部 中南信営業部
〒390-0833 長野県松本市双葉22-1
住宅ローンシミュレーション
住宅ローン設定
物件価格
返済期間
頭金
ボーナス払(年1回)
※
※物件価格の80%以下でお借入れの場合
※50歳以下で一般団信をご選択の場合
※住宅ローン金利優遇割適用後の変動金利(全期間引き下げプラン)
※実際のお借入日の金利により変動します。
※審査の結果によっては保証付金利プランとなる場合があり、この場合は上記とは異なる金利となります。
※別途借入金額の2.20%(税込)の事務手数料が発生します。
ボーナス払 | 35年間返済 | 30年間返済 | 25年間返済 | 20年間返済 | 15年間返済 | 10年間返済 |
|---|---|---|---|---|---|---|
0万円 | -円/月 | -円/月 | -円/月 | -円/月 | -円/月 | -円/月 |
5万円 | -円/月 | -円/月 | -円/月 | -円/月 | -円/月 | -円/月 |
10万円 | -円/月 | -円/月 | -円/月 | -円/月 | -円/月 | -円/月 |
15万円 | -円/月 | -円/月 | -円/月 | -円/月 | -円/月 | -円/月 |
20万円 | -円/月 | -円/月 | -円/月 | -円/月 | -円/月 | -円/月 |
25万円 | -円/月 | -円/月 | -円/月 | -円/月 | -円/月 | -円/月 |
30万円 | -円/月 | -円/月 | -円/月 | -円/月 | -円/月 | -円/月 |
ボーナス払 | 35年間返済 | 30年間返済 | 25年間返済 | 20年間返済 | 15年間返済 | 10年間返済 |
|---|---|---|---|---|---|---|
0万円 | -円/月 | -円/月 | -円/月 | -円/月 | -円/月 | -円/月 |
5万円 | -円/月 | -円/月 | -円/月 | -円/月 | -円/月 | -円/月 |
10万円 | -円/月 | -円/月 | -円/月 | -円/月 | -円/月 | -円/月 |
15万円 | -円/月 | -円/月 | -円/月 | -円/月 | -円/月 | -円/月 |
20万円 | -円/月 | -円/月 | -円/月 | -円/月 | -円/月 | -円/月 |
25万円 | -円/月 | -円/月 | -円/月 | -円/月 | -円/月 | -円/月 |
30万円 | -円/月 | -円/月 | -円/月 | -円/月 | -円/月 | -円/月 |
- ・金利は、今後35年間変動しない仮定のもと元利均等返済方式で計算しております。
- ・実際の金利は、各金融機関のホームページをご参照ください。
- ・ローン契約の際には、手数料や印紙税などの諸費用が別途かかります。
- ・ボーナス支払総額が総支払額の50%を超えている場合、上記の表では「ローン不可」となります。
- ・シミュレーションを利用し、それが原因で利用者が受けたいかなる損害についても当社は一切責任を負いません。あらかじめご了承ください。





















