土地駅南1(総社駅) 1440万円~1694万円の詳細情報
現地完成しました。建築条件付き土地です。
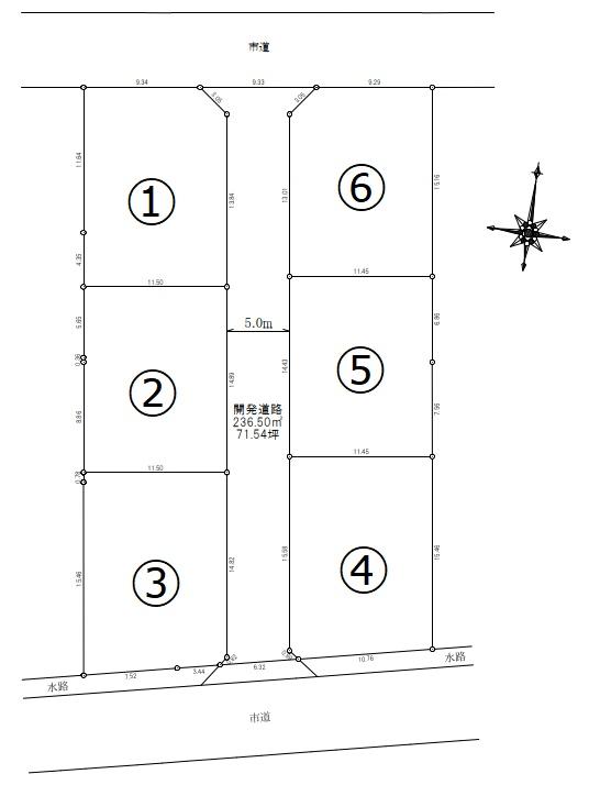
物件概要
| 物件名 | 駅南1(総社駅) 1440万円~1694万円 | ||||
|---|---|---|---|---|---|
| 所在地 | 岡山県総社市駅南1-34-1 | ||||
| 交通 |
JR伯備線「総社」歩16分 JR吉備線「東総社」歩29分 JR伯備線「清音」歩35分 | ||||
| 最多価格帯 | - | 販売区画数/総区画数 | 6区画/6区画 | ||
| 土地権利 | 所有権 | 造成工事完了予定年月 | 2025年12月頃 | ||
| 取引態様 | 仲介 | 引渡し | 相談 | ||
| 地目 | 宅地 | 用途地域 | 2種中高 | ||
| 建ぺい率・容積率 | 建ペい率:60%、容積率:200% | 私道負担・道路 | 道路幅:6m、アスファルト舗装 | ||
| セットバック | - | ||||
| その他費用 | その他諸費用:上下水道負担金60万円 | ||||
| 建築条件 | 建築条件付建築条件付き土地とは、一定期間内(一般的には3ヶ月以上)に特定の建設会社と建築請負契約を結ぶことを条件にしている宅地のことです。建物の内容は、土地購入者の自由意思により決定可能で、土地売買契約後、建築請負会社と購入した土地に建設する建物について協議することになります。期間内に建築請負契約が成立しなければ売買契約は白紙となり、支払済みの金銭はすべて返却されます。 | ||||
| 販売スケジュール | - | ||||
| イベント情報 | - | ||||
| その他制限事項 | - | ||||
| 備考 | 担当者:塚本 剛巳、設備:公営水道、本下水、個別LPG | ||||
| 取引条件有効期限 | 2025年12月31日 | ||||
情報公開日:2025/11/14 次回更新予定日:情報提供より8日以内
この物件の地図・周辺環境
このアイコンは物件のおおよその位置を表しており、実際の場所と異なる場合がございます。詳しくは不動産会社に直接ご確認ください。
※地図上に表示される物件の位置は付近住所に所在することを表すものであり、実際の物件所在地とは異なる場合がございます。
※地図の更新タイミングの関係で、物件情報が実際のものとは異なる場合や最新情報に更新されていない場合がございます。
※以下の南西諸島及び離島においては、表示される物件の位置が実際のものとは数百メートル程度ずれる場合がございます。
東京都:硫黄島・青ヶ島、沖縄県: 北大東島・南大東島・多良間島・水納島・与那国島・宮古諸島・石垣島・竹富島
取り扱い不動産会社
- 住所
- 岡山県総社市駅前1-8-2
- 電話番号
- 0866-90-3900
- 営業時間
- 営業時間:10:00~18:00 / 定休日:水曜日
- 免許番号
- 岡山県知事(2)第005673号
- 会社概要
- <仲介>
岡山県知事(2)第005673号
(公社)岡山県宅地建物取引業協会会員 中国地区不動産公正取引協議会加盟
アイアール不動産(株)
〒719-1136 岡山県総社市駅前1-8-2
住宅ローンシミュレーション
住宅ローン設定
物件価格
返済期間
頭金
ボーナス払(年1回)
※
※物件価格の80%以下でお借入れの場合
※50歳以下で一般団信をご選択の場合
※住宅ローン金利優遇割適用後の変動金利(全期間引き下げプラン)
※実際のお借入日の金利により変動します。
※審査の結果によっては保証付金利プランとなる場合があり、この場合は上記とは異なる金利となります。
※別途借入金額の2.20%(税込)の事務手数料が発生します。
ボーナス払 | 35年間返済 | 30年間返済 | 25年間返済 | 20年間返済 | 15年間返済 | 10年間返済 |
|---|---|---|---|---|---|---|
0万円 | -円/月 | -円/月 | -円/月 | -円/月 | -円/月 | -円/月 |
5万円 | -円/月 | -円/月 | -円/月 | -円/月 | -円/月 | -円/月 |
10万円 | -円/月 | -円/月 | -円/月 | -円/月 | -円/月 | -円/月 |
15万円 | -円/月 | -円/月 | -円/月 | -円/月 | -円/月 | -円/月 |
20万円 | -円/月 | -円/月 | -円/月 | -円/月 | -円/月 | -円/月 |
25万円 | -円/月 | -円/月 | -円/月 | -円/月 | -円/月 | -円/月 |
30万円 | -円/月 | -円/月 | -円/月 | -円/月 | -円/月 | -円/月 |
ボーナス払 | 35年間返済 | 30年間返済 | 25年間返済 | 20年間返済 | 15年間返済 | 10年間返済 |
|---|---|---|---|---|---|---|
0万円 | -円/月 | -円/月 | -円/月 | -円/月 | -円/月 | -円/月 |
5万円 | -円/月 | -円/月 | -円/月 | -円/月 | -円/月 | -円/月 |
10万円 | -円/月 | -円/月 | -円/月 | -円/月 | -円/月 | -円/月 |
15万円 | -円/月 | -円/月 | -円/月 | -円/月 | -円/月 | -円/月 |
20万円 | -円/月 | -円/月 | -円/月 | -円/月 | -円/月 | -円/月 |
25万円 | -円/月 | -円/月 | -円/月 | -円/月 | -円/月 | -円/月 |
30万円 | -円/月 | -円/月 | -円/月 | -円/月 | -円/月 | -円/月 |
- ・金利は、今後35年間変動しない仮定のもと元利均等返済方式で計算しております。
- ・実際の金利は、各金融機関のホームページをご参照ください。
- ・ローン契約の際には、手数料や印紙税などの諸費用が別途かかります。
- ・ボーナス支払総額が総支払額の50%を超えている場合、上記の表では「ローン不可」となります。
- ・シミュレーションを利用し、それが原因で利用者が受けたいかなる損害についても当社は一切責任を負いません。あらかじめご了承ください。



















