物件概要
| 物件名 | 古人見町 920万円 | ||||
|---|---|---|---|---|---|
| 所在地 | 静岡県浜松市中央区古人見町 | ||||
| 交通 |
JR東海道本線「浜松」バス43分汽船場歩5分 | ||||
| 最多価格帯 | - | 販売区画数/総区画数 | 1区画/- | ||
| 土地権利 | 所有権 | 造成工事完了予定年月 | - | ||
| 取引態様 | 仲介 | 引渡し | 相談 | ||
| 地目 | 宅地 | 用途地域 | 市街化調整区域、無指定 | ||
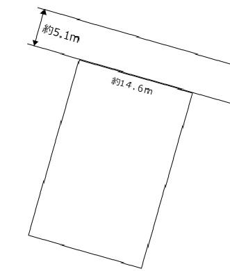
| 建ぺい率・容積率 | 60%・200% | 私道負担・道路 | 無、北5.1m幅 | ||
| セットバック | - | ||||
| その他費用 | - | ||||
| 建築条件 | - | ||||
| 販売スケジュール | - | ||||
| イベント情報 | - | ||||
| その他制限事項 | - | ||||
| 備考 | 担当者:鈴木 辰弥、設備:公営水道、本下水、個別LPG | ||||
| 取引条件有効期限 | - | ||||
情報公開日:2026/02/01 次回更新予定日:2026/2/9
この物件の地図・周辺環境
このアイコンは物件のおおよその位置を表しており、実際の場所と異なる場合がございます。詳しくは不動産会社に直接ご確認ください。
※地図上に表示される物件の位置は付近住所に所在することを表すものであり、実際の物件所在地とは異なる場合がございます。
※地図の更新タイミングの関係で、物件情報が実際のものとは異なる場合や最新情報に更新されていない場合がございます。
※以下の南西諸島及び離島においては、表示される物件の位置が実際のものとは数百メートル程度ずれる場合がございます。
東京都:硫黄島・青ヶ島、沖縄県: 北大東島・南大東島・多良間島・水納島・与那国島・宮古諸島・石垣島・竹富島
取り扱い不動産会社
- 住所
- 静岡県浜松市中央区高林4-17-28
- 電話番号
- 053-472-5656
- 営業時間
- 営業時間:9:00~18:00 / 定休日:水
- 免許番号
- 静岡県知事(13)第004034号
- 会社概要
- <仲介>
静岡県知事(13)第004034号
(公社)静岡県宅地建物取引業協会会員 東海不動産公正取引協議会加盟
(株)マストレ高林支店
〒430-0907 静岡県浜松市中央区高林4-17-28
株式会社マストレ
浜松駅の口コミ
お買い物・飲食
4.0
外食や持ち帰りの出来るお店はあるのですが、出前をしてもらえるお店が少ないです。特に寿司、蕎麦など、今日は出前でもと思っても、それがかないません。
お買い物・飲食
4.0
浜松駅周辺は百貨店や大型商業施設・家電量販店などが点在しているので、衣服や贈答品、趣味の物など買い物に不自由しない。飲食店もとても多くあり、色々なジャンルがあるので飽きないと思う。クリニック系や金融機関なども充実している。
静岡県近隣の都道府県から土地を探す
住宅ローンシミュレーション
住宅ローン設定
物件価格
返済期間
頭金
ボーナス払(年1回)
※
※物件価格の80%以下でお借入れの場合
※50歳以下で一般団信をご選択の場合
※住宅ローン金利優遇割適用後の変動金利(全期間引き下げプラン)
※実際のお借入日の金利により変動します。
※審査の結果によっては保証付金利プランとなる場合があり、この場合は上記とは異なる金利となります。
※別途借入金額の2.20%(税込)の事務手数料が発生します。
ボーナス払 | 35年間返済 | 30年間返済 | 25年間返済 | 20年間返済 | 15年間返済 | 10年間返済 |
|---|---|---|---|---|---|---|
0万円 | -円/月 | -円/月 | -円/月 | -円/月 | -円/月 | -円/月 |
5万円 | -円/月 | -円/月 | -円/月 | -円/月 | -円/月 | -円/月 |
10万円 | -円/月 | -円/月 | -円/月 | -円/月 | -円/月 | -円/月 |
15万円 | -円/月 | -円/月 | -円/月 | -円/月 | -円/月 | -円/月 |
20万円 | -円/月 | -円/月 | -円/月 | -円/月 | -円/月 | -円/月 |
25万円 | -円/月 | -円/月 | -円/月 | -円/月 | -円/月 | -円/月 |
30万円 | -円/月 | -円/月 | -円/月 | -円/月 | -円/月 | -円/月 |
ボーナス払 | 35年間返済 | 30年間返済 | 25年間返済 | 20年間返済 | 15年間返済 | 10年間返済 |
|---|---|---|---|---|---|---|
0万円 | -円/月 | -円/月 | -円/月 | -円/月 | -円/月 | -円/月 |
5万円 | -円/月 | -円/月 | -円/月 | -円/月 | -円/月 | -円/月 |
10万円 | -円/月 | -円/月 | -円/月 | -円/月 | -円/月 | -円/月 |
15万円 | -円/月 | -円/月 | -円/月 | -円/月 | -円/月 | -円/月 |
20万円 | -円/月 | -円/月 | -円/月 | -円/月 | -円/月 | -円/月 |
25万円 | -円/月 | -円/月 | -円/月 | -円/月 | -円/月 | -円/月 |
30万円 | -円/月 | -円/月 | -円/月 | -円/月 | -円/月 | -円/月 |
- ・金利は、今後35年間変動しない仮定のもと元利均等返済方式で計算しております。
- ・実際の金利は、各金融機関のホームページをご参照ください。
- ・ローン契約の際には、手数料や印紙税などの諸費用が別途かかります。
- ・ボーナス支払総額が総支払額の50%を超えている場合、上記の表では「ローン不可」となります。
- ・シミュレーションを利用し、それが原因で利用者が受けたいかなる損害についても当社は一切責任を負いません。あらかじめご了承ください。




