土地中央5(東高円寺駅) 7980万円~1億6460万円の詳細情報
7980万円~1億6460万円
月々のローン返済額を試算☆再開発進む『中野』駅が生活圏!☆お好きなハウスメーカーにて建築!
その他(13枚)
物件概要
| 物件名 | 中央5(東高円寺駅) 7980万円~1億6460万円 | ||||
|---|---|---|---|---|---|
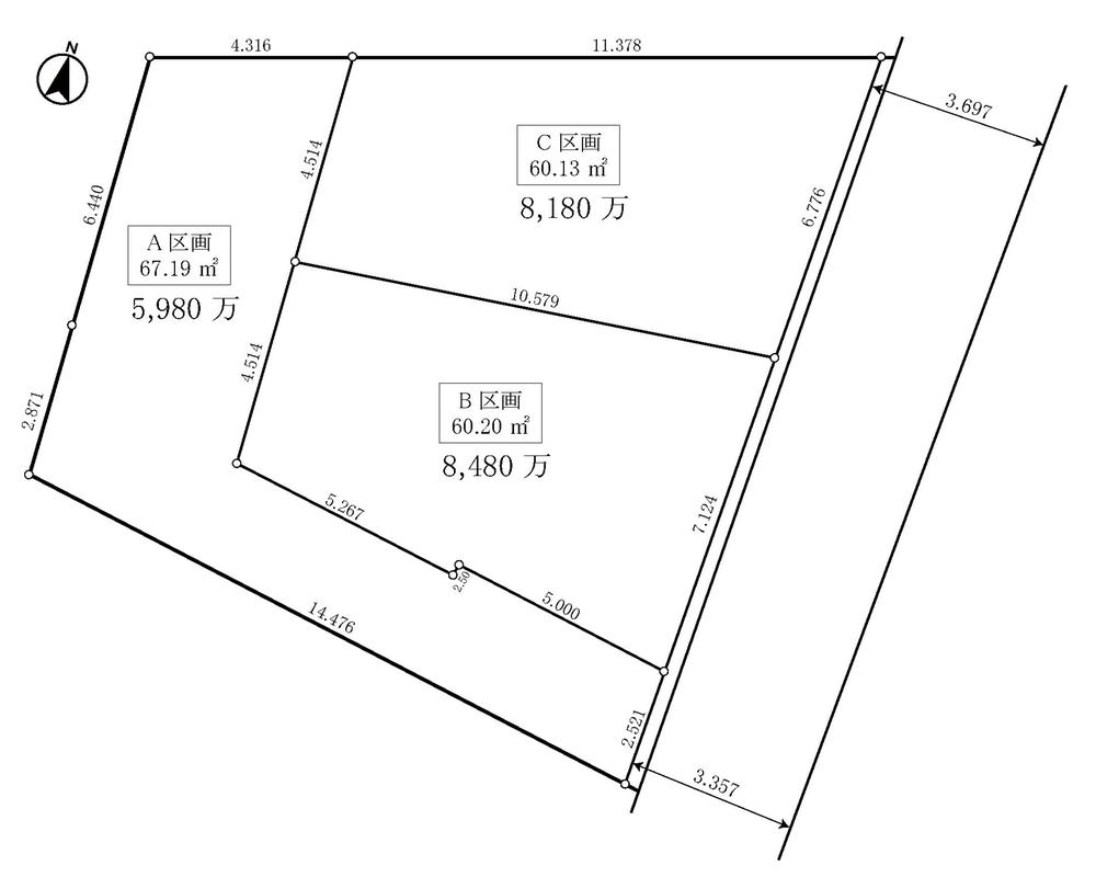
| 所在地 | 東京都中野区中央5 | ||||
| 交通 |
東京メトロ丸ノ内線「東高円寺」歩8分 JR中央線「中野」歩11分 東京メトロ東西線「中野」歩11分 | ||||
| 最多価格帯 | - | 販売区画数/総区画数 | 3区画/3区画 | ||
| 土地権利 | 所有権 | 造成工事完了予定年月 | - | ||
| 取引態様 | 仲介 | 引渡し | - | ||
| 地目 | 宅地 | 用途地域 | 1種中高 | ||
| 建ぺい率・容積率 | 建蔽率:60% 容積率:200% | 私道負担・道路 | 道路幅:4m、アスファルト舗装 | ||
| セットバック | - | ||||
| その他費用 | - | ||||
| 建築条件 | - | ||||
| 販売スケジュール | - | ||||
| イベント情報 |
現地案内会(事前に必ず予約してください) 日程/公開中 時間/9:00~20:00 ※年中無休(年末年始の5日間を除く)水曜日も休まず営業 ※朝・夜のご案内、ご相談ください。 ━━━━━━弊社の注目情報━━━━━━ ■銀行のローンのご提案お任せ下さい■ ━━━━━━━━━━━━━━━━━━━ ●●●住宅ローン相談会のお知らせ●●● 不動産は、「物件を見る」事と合わせて「ライフプラン」の形成も 重要なポイントです。不動産にまつわるお金のお話や将来に渡っての生活環境の変化に合わせてローンや物件のご提案をさせていただきます。 長い目で見た不動産購入を、お客様の目線に立って、ご説明、ご提案させていただきます。 「お客様に沿った銀行のご提案、優遇条件の獲得」 「きめ細かい銀行との折衝から、好条件で審査を通す」 特に、以下のような方は、まずご相談ください。 ◆自己資金(頭金0円)が全くない、使いたくない方 ◆3年以内に転職した方 ◆車のローンやキャッシング等、他のローンがある方(件数や金額が多い場合は特に) ◆買替ローン(現住居の住宅ローンが残っている方) ◆自営業や確定申告者である方 ◆国民健康保険に加入している方 ◆過去10年以内に分割払い(携帯電話含む)などの支払いを遅れたことがある方 ◆単身者・年齢が50歳以上・年金生活の方 等・・ ■□■広々とした充実のキッズルーム完備!!ご家族皆様で来店下さい!■□■ ご見学のご予約は【下部のオレンジ色 見学予約ボタン】よりお問い合わせください。 | ||||
| その他制限事項 | - | ||||
| 備考 | 担当者:高橋 汀、設備:公営水道、本下水、都市ガス | ||||
| 取引条件有効期限 | 2025年11月26日 | ||||
情報公開日:2025/11/17 次回更新予定日:情報提供より8日以内
取り扱い不動産会社
- 住所
- 東京都渋谷区大山町18-6
- 電話番号
- 0120-172111
- 営業時間
- 営業時間:AM9:00~PM19:00
- 免許番号
- 国土交通大臣(9)第003766号
- 会社概要
- <仲介>
国土交通大臣(9)第003766号
(公社)東京都宅地建物取引業協会会員 (公社)首都圏不動産公正取引協議会加盟
(株)住建ハウジング営業3課
〒151-0065 東京都渋谷区大山町18-6
東高円寺駅の口コミ
自然環境
4.0
近くに大きな公園もありますので、たまに散歩してみるのもアリだと思います。 気軽に自然に触れることができる環境があるのが良いです。
子育て・病院
4.0
近くに病院やセシオン杉並があり、相談しやすい環境。地域でのイベントもあるので交流しやすい。ドラッグストアも近くていざってときに助かります。
東京都近隣の都道府県から土地を探す
住宅ローンシミュレーション
住宅ローン設定
物件価格
返済期間
頭金
ボーナス払(年1回)
※
※物件価格の80%以下でお借入れの場合
※50歳以下で一般団信をご選択の場合
※住宅ローン金利優遇割適用後の変動金利(全期間引き下げプラン)
※実際のお借入日の金利により変動します。
※審査の結果によっては保証付金利プランとなる場合があり、この場合は上記とは異なる金利となります。
※別途借入金額の2.20%(税込)の事務手数料が発生します。
ボーナス払 | 35年間返済 | 30年間返済 | 25年間返済 | 20年間返済 | 15年間返済 | 10年間返済 |
|---|---|---|---|---|---|---|
0万円 | -円/月 | -円/月 | -円/月 | -円/月 | -円/月 | -円/月 |
5万円 | -円/月 | -円/月 | -円/月 | -円/月 | -円/月 | -円/月 |
10万円 | -円/月 | -円/月 | -円/月 | -円/月 | -円/月 | -円/月 |
15万円 | -円/月 | -円/月 | -円/月 | -円/月 | -円/月 | -円/月 |
20万円 | -円/月 | -円/月 | -円/月 | -円/月 | -円/月 | -円/月 |
25万円 | -円/月 | -円/月 | -円/月 | -円/月 | -円/月 | -円/月 |
30万円 | -円/月 | -円/月 | -円/月 | -円/月 | -円/月 | -円/月 |
ボーナス払 | 35年間返済 | 30年間返済 | 25年間返済 | 20年間返済 | 15年間返済 | 10年間返済 |
|---|---|---|---|---|---|---|
0万円 | -円/月 | -円/月 | -円/月 | -円/月 | -円/月 | -円/月 |
5万円 | -円/月 | -円/月 | -円/月 | -円/月 | -円/月 | -円/月 |
10万円 | -円/月 | -円/月 | -円/月 | -円/月 | -円/月 | -円/月 |
15万円 | -円/月 | -円/月 | -円/月 | -円/月 | -円/月 | -円/月 |
20万円 | -円/月 | -円/月 | -円/月 | -円/月 | -円/月 | -円/月 |
25万円 | -円/月 | -円/月 | -円/月 | -円/月 | -円/月 | -円/月 |
30万円 | -円/月 | -円/月 | -円/月 | -円/月 | -円/月 | -円/月 |
- ・金利は、今後35年間変動しない仮定のもと元利均等返済方式で計算しております。
- ・実際の金利は、各金融機関のホームページをご参照ください。
- ・ローン契約の際には、手数料や印紙税などの諸費用が別途かかります。
- ・ボーナス支払総額が総支払額の50%を超えている場合、上記の表では「ローン不可」となります。
- ・シミュレーションを利用し、それが原因で利用者が受けたいかなる損害についても当社は一切責任を負いません。あらかじめご了承ください。













