土地墨田区東向島6丁目 売地/建築条件付き/全3区画の詳細情報
5223万4000円
月々のローン返済額を試算【おかげさまでGoogle口コミ☆4.9】最終1棟 建築条件付き売地
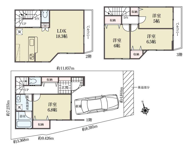
間取り・区画図(2枚)
周辺環境・アクセス(9枚)
その他(15枚)
物件概要
| 物件名 | 墨田区東向島6丁目 売地/建築条件付き/全3区画 | ||||
|---|---|---|---|---|---|
| 所在地 | 東京都墨田区東向島6-14-10 | ||||
| 交通 |
東武伊勢崎線「東向島」歩6分 東武伊勢崎線「曳舟」歩11分 京成押上線「京成曳舟」歩7分 | ||||
| 最多価格帯 | - | 販売区画数/総区画数 | 1区画/3区画 | ||
| 土地権利 | 所有権 | 造成工事完了予定年月 | - | ||
| 取引態様 | 売主 | 引渡し | 相談 | ||
| 地目 | 宅地 | 用途地域 | 準工業、近隣商業 | ||
| 建ぺい率・容積率 | 建ペい率:80%、容積率:300% | 私道負担・道路 | 道路幅:4m、アスファルト舗装 | ||
| セットバック | - | ||||
| その他費用 | - | ||||
| 建築条件 | 建築条件付建築条件付き土地とは、一定期間内(一般的には3ヶ月以上)に特定の建設会社と建築請負契約を結ぶことを条件にしている宅地のことです。建物の内容は、土地購入者の自由意思により決定可能で、土地売買契約後、建築請負会社と購入した土地に建設する建物について協議することになります。期間内に建築請負契約が成立しなければ売買契約は白紙となり、支払済みの金銭はすべて返却されます。 | ||||
| 販売スケジュール | - | ||||
| イベント情報 |
現地見学会(事前に必ずお問い合わせください) 日程/公開中 時間/11:00~17:00 東京・埼玉・千葉の新築・中古物件ならハウスプラザへ 平成元年から地域密着で行ってきた弊社だからこそできるおうち探しのご提案致します。 ◆ご案内方法◆ ご自宅へお迎え・最寄駅等でお待ち合わせ、 弊社へのご来社など、お待ち合わせ方法をご相談頂けます。 お客様の希望に合わせた物件なども 合わせてご案内いたします! ◆そのほか各種ご相談承ります◆ ・不動産売買の仕組みはどうなっているの? ・住宅ローンのお借入れ、銀行や金利商品選びはどうすればいいの? 不動産に関する事でしたらどんな些細なことでもご相談ください! ◆お問い合わせ方法◆ 『来場予約する』もしくは電話番号から 『資料請求する』からもご連絡可能です! ≪ご案内に掛かる時間の目安≫ (1)サクッと現地見学コース(所要時間:~30分) 「気になる建物を一つだけ見たい!」などのお忙しい方向けのご案内です (2)じっくり見学コース(所要時間:~1時間半) 物件の雰囲気だけでなく、間取り、設備、性能もしっかりと確認されたいお客様向けです 物件の周辺環境も含めて気になる点もしっかりとご案内させて頂きます (3) 納得見学コース(所要時間:~3時間) 気になる物件のご案内はもちろん、小学校・中学校などの近隣施設や資金計画のお得な組み立て方などの 詳しいご相談も含めて御案内させて頂きます。 | ||||
| その他制限事項 | 準防火地域、新防火区域、22m第3種高度地区、※建築条件付売地とは、土地売買契約後、3ヶ月以内に売主と建物の請負契約を結ぶ事を条件に契約します。 この期間中に建物請負契約を締結されなかった場合は、土地売買契約は白紙になり、受領した手付金等の土地代金は全額返金します。 | ||||
| 備考 | 担当者:物江 亮、設備:公営水道、本下水、都市ガス | ||||
| 取引条件有効期限 | 2025年12月31日 | ||||
情報公開日:2025/11/20 次回更新予定日:情報提供より8日以内
取り扱い不動産会社
- 住所
- 東京都墨田区江東橋4-29-16
- 電話番号
- 0120-987-419
- 営業時間
- 営業時間:AM.9:30~PM.8:00 / 定休日:火曜日・水曜日
- 免許番号
- 国土交通大臣(6)第005542号
- 会社概要
- <売主>
国土交通大臣(6)第005542号
(公社)東京都宅地建物取引業協会会員 (公社)首都圏不動産公正取引協議会加盟
(株)ハウスプラザ錦糸町店
〒130-0022 東京都墨田区江東橋4-29-16
(株)ハウスプラザ 錦糸町店
東向島駅の口コミ
子育て・病院
4.0
病院は駅前に新しい産婦人科、駅徒歩5分に昔からある産科と小児科と内科の大倉病院(下町の辛口だけど優しい先生)、駅前に歯医者、千葉整形外科がある。隣の曳舟に旧白鬚橋病院が移転したが、曳舟駅直結だし便利は便利。 子育ては小学校駅前、保育園も駅前、子供の数が減ってるとは言え保育園は待ちらしい。下町の雰囲気で子供も伸び伸びしてる。
子育て・病院
5.0
東京だから色々な病院が腐るほどある。 子育て世帯も多く住んでいて情報も多い。 墨田区の支援は結構充実している。
東京都近隣の都道府県から土地を探す
住宅ローンシミュレーション
住宅ローン設定
物件価格
返済期間
頭金
ボーナス払(年1回)
※
※物件価格の80%以下でお借入れの場合
※50歳以下で一般団信をご選択の場合
※住宅ローン金利優遇割適用後の変動金利(全期間引き下げプラン)
※実際のお借入日の金利により変動します。
※審査の結果によっては保証付金利プランとなる場合があり、この場合は上記とは異なる金利となります。
※別途借入金額の2.20%(税込)の事務手数料が発生します。
ボーナス払 | 35年間返済 | 30年間返済 | 25年間返済 | 20年間返済 | 15年間返済 | 10年間返済 |
|---|---|---|---|---|---|---|
0万円 | -円/月 | -円/月 | -円/月 | -円/月 | -円/月 | -円/月 |
5万円 | -円/月 | -円/月 | -円/月 | -円/月 | -円/月 | -円/月 |
10万円 | -円/月 | -円/月 | -円/月 | -円/月 | -円/月 | -円/月 |
15万円 | -円/月 | -円/月 | -円/月 | -円/月 | -円/月 | -円/月 |
20万円 | -円/月 | -円/月 | -円/月 | -円/月 | -円/月 | -円/月 |
25万円 | -円/月 | -円/月 | -円/月 | -円/月 | -円/月 | -円/月 |
30万円 | -円/月 | -円/月 | -円/月 | -円/月 | -円/月 | -円/月 |
ボーナス払 | 35年間返済 | 30年間返済 | 25年間返済 | 20年間返済 | 15年間返済 | 10年間返済 |
|---|---|---|---|---|---|---|
0万円 | -円/月 | -円/月 | -円/月 | -円/月 | -円/月 | -円/月 |
5万円 | -円/月 | -円/月 | -円/月 | -円/月 | -円/月 | -円/月 |
10万円 | -円/月 | -円/月 | -円/月 | -円/月 | -円/月 | -円/月 |
15万円 | -円/月 | -円/月 | -円/月 | -円/月 | -円/月 | -円/月 |
20万円 | -円/月 | -円/月 | -円/月 | -円/月 | -円/月 | -円/月 |
25万円 | -円/月 | -円/月 | -円/月 | -円/月 | -円/月 | -円/月 |
30万円 | -円/月 | -円/月 | -円/月 | -円/月 | -円/月 | -円/月 |
- ・金利は、今後35年間変動しない仮定のもと元利均等返済方式で計算しております。
- ・実際の金利は、各金融機関のホームページをご参照ください。
- ・ローン契約の際には、手数料や印紙税などの諸費用が別途かかります。
- ・ボーナス支払総額が総支払額の50%を超えている場合、上記の表では「ローン不可」となります。
- ・シミュレーションを利用し、それが原因で利用者が受けたいかなる損害についても当社は一切責任を負いません。あらかじめご了承ください。
















