NEW中古売戸建住宅岐阜県羽島市竹鼻町丸の内9丁目の中古売戸建住宅の詳細情報
掲載期限まであと13日
物件概要
| 物件名 | 岐阜県羽島市竹鼻町丸の内9丁目の中古売戸建住宅 | ||||
|---|---|---|---|---|---|
| 所在地 | 岐阜県羽島市竹鼻町丸の内9丁目 | ||||
| 交通 |
名鉄竹鼻・羽島線 「羽島市役所前」駅 徒歩14分 | ||||
| 建物構造 | 木造/2階建 | 最多価格帯 | - | ||
| 販売戸数/総戸数 | -/- | 主要採光面 | 南 | ||
| 引渡し | 相談 | 現況 | 空 | ||
| 管理 | - | 駐車場 | 有 (無料) | ||
| 地目 | 宅地 | 地勢 | 平坦 | ||
| 都市計画 | 市街化区域 | 用途地域 | 1種中高 | ||
| 建ぺい率 | 60.00% | 容積率 | 200.00% | ||
| 土地権利 | 所有権 | 国土法届出 | - | ||
| 私道負担・道路 | - | 接道状況 | 南 16.0m 公道 接面12.0m東 8.0m 公道 接面17.0m | ||
| セットバック | - | リフォーム | - | ||
| リノベーション | - | 取引態様 | 専任媒介 | ||
| 施工会社名 | - | 建築確認番号 | - | ||
| その他費用 | - | ||||
| その他制限事項 | - | ||||
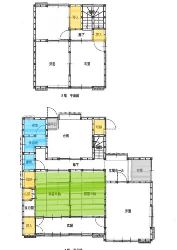
| 備考 | 太陽光1.92Kw搭載(2019.4)約3,000円/月・H28.12耐震診断書有り・本格木造住宅造りです。また広々とした延床面積122.3㎡の居室空間で、その上閑静な住宅街立地の物件だから、オンオフのメリハリがつきます。・仲介手数料:売買代金の3.3%+66,000円 | ||||
情報公開日:2025/12/13 次回更新予定日:情報更新日より14日以内
取り扱い不動産会社
- 住所
- 岐阜県岐阜市岩田坂3丁目2-3心ビル2F
- 電話番号
- 058-337-2672
- 営業時間
- 10:00~18:00
- 定休日
- 水曜日・日曜日・祝日・年末年始、GW、夏季休暇
- 免許番号
- 岐阜県知事免許(1)第5260号
- 所属団体
- (公社)岐阜県宅地建物取引業協会、東海不動産公正取引協議会
掲載期限まであと13日
住宅ローンシミュレーション
住宅ローン設定
物件価格
返済期間
頭金
ボーナス払(年1回)
※
※物件価格の80%以下でお借入れの場合
※50歳以下で一般団信をご選択の場合
※住宅ローン金利優遇割適用後の変動金利(全期間引き下げプラン)
※実際のお借入日の金利により変動します。
※審査の結果によっては保証付金利プランとなる場合があり、この場合は上記とは異なる金利となります。
※別途借入金額の2.20%(税込)の事務手数料が発生します。
ボーナス払 | 35年間返済 | 30年間返済 | 25年間返済 | 20年間返済 | 15年間返済 | 10年間返済 |
|---|---|---|---|---|---|---|
0万円 | -円/月 | -円/月 | -円/月 | -円/月 | -円/月 | -円/月 |
5万円 | -円/月 | -円/月 | -円/月 | -円/月 | -円/月 | -円/月 |
10万円 | -円/月 | -円/月 | -円/月 | -円/月 | -円/月 | -円/月 |
15万円 | -円/月 | -円/月 | -円/月 | -円/月 | -円/月 | -円/月 |
20万円 | -円/月 | -円/月 | -円/月 | -円/月 | -円/月 | -円/月 |
25万円 | -円/月 | -円/月 | -円/月 | -円/月 | -円/月 | -円/月 |
30万円 | -円/月 | -円/月 | -円/月 | -円/月 | -円/月 | -円/月 |
ボーナス払 | 35年間返済 | 30年間返済 | 25年間返済 | 20年間返済 | 15年間返済 | 10年間返済 |
|---|---|---|---|---|---|---|
0万円 | -円/月 | -円/月 | -円/月 | -円/月 | -円/月 | -円/月 |
5万円 | -円/月 | -円/月 | -円/月 | -円/月 | -円/月 | -円/月 |
10万円 | -円/月 | -円/月 | -円/月 | -円/月 | -円/月 | -円/月 |
15万円 | -円/月 | -円/月 | -円/月 | -円/月 | -円/月 | -円/月 |
20万円 | -円/月 | -円/月 | -円/月 | -円/月 | -円/月 | -円/月 |
25万円 | -円/月 | -円/月 | -円/月 | -円/月 | -円/月 | -円/月 |
30万円 | -円/月 | -円/月 | -円/月 | -円/月 | -円/月 | -円/月 |
- ・金利は、今後35年間変動しない仮定のもと元利均等返済方式で計算しております。
- ・実際の金利は、各金融機関のホームページをご参照ください。
- ・ローン契約の際には、手数料や印紙税などの諸費用が別途かかります。
- ・ボーナス支払総額が総支払額の50%を超えている場合、上記の表では「ローン不可」となります。
- ・シミュレーションを利用し、それが原因で利用者が受けたいかなる損害についても当社は一切責任を負いません。あらかじめご了承ください。
















