NEW一戸建て箕郷町生原 799万円の詳細情報
799万円
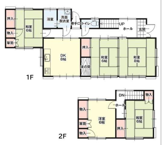
月々のローン返済額を試算【敷地広々81坪♪】閑静な住宅地の5DK中古住宅◎即日内覧可能です!!
その他(20枚)
物件概要
| 物件名 | 箕郷町生原 799万円 | ||||
|---|---|---|---|---|---|
| 所在地 | 群馬県高崎市箕郷町生原 | ||||
| 交通 |
JR信越本線「北高崎」バス21分箕郷営業所歩6分 JR上越線「群馬総社」バス15分箕郷中学校前歩3分 | ||||
| 建物構造 | 木造2階建(軸組工法) | 最多価格帯 | - | ||
| 販売戸数/総戸数 | 1戸/1戸 | 入居時期 | 相談 | ||
| 駐車場 | カースペース | 地目 | - | ||
| 用途地域 | 1種中高 | 建ぺい率・容積率 | 60%・200% | ||
| 土地権利 | 所有権 | 私道負担・道路 | 無、北4.1m幅、東4.1m幅 | ||
| セットバック | - | リフォーム | - | ||
| 取引態様 | 仲介 | 施工会社名 | - | ||
| 建築確認番号 | - | ||||
| その他費用 | - | ||||
| 販売スケジュール | - | ||||
| イベント情報 |
現地見学会(事前に必ずお問い合わせください) 日程/公開中 ・・・◇・・・◆・・・◇・・・◆・・・◇・・・ ・ご成約されたお客様へ 当社でご成約されましたお客様へエアコン1台プレゼントさせて頂きます。(※毎月先着10組様・当社指定品) ◆◇◆モデストが選ばれるポイント◆◇◆ (1) 色々な業者をまわらなくても大丈夫です♪ モデストでは、群馬県内、栃木県内のほぼ全ての物件のご紹介が可能です。お客様のご希望条件から新築戸建・中古戸建・マンション・土地・注文住宅をご紹介させて頂きます。 (2) すべてバックアップいたします♪ モデストでは物件探しだけでなく、不動産購入時の住宅ローンの手続き代行、火災保険、土地家屋調査士・司法書士のご紹介させて頂きます。 ・住宅ローン無料相談会実施 住宅ローンにつきましてスタッフが10以上お取引のある銀行の中でお客様のニーズにあった住宅ローンのご提案をさせて頂きます。また初めて住宅ローンを借りるというお客様がほとんどですので、1から住宅ローンの仕組みをご説明致します。※他社で断られた方(自己資金、残債、審査など)もお気軽にご相談ください。 ◎ 定休日・営業時間外でも事前にご予約いただければ対応可能です。お気軽にご連絡ください。 ・・・◇・・・◆・・・◇・・・◆・・・◇・・・ | ||||
| その他制限事項 | 景観法による規制有、日影制限有 | ||||
| 備考 | 担当者:斎川幸花、設備:公営水道、本下水、個別LPG、駐車場:カースペース | ||||
| 取引条件有効期限 | - | ||||
情報公開日:2026/02/01 次回更新予定日:2026/2/9
取り扱い不動産会社
- 住所
- 群馬県太田市大原町2256-18
- 電話番号
- 0120-302082
- 営業時間
- 営業時間:10:00~18:00 / 定休日:水、年末年始
- 免許番号
- 群馬県知事(2)第007611号
- 会社概要
- <仲介>
群馬県知事(2)第007611号
(公社)全日本不動産協会群馬県本部会員 (公社)首都圏不動産公正取引協議会加盟
(株)モデスト
〒379-2304 群馬県太田市大原町2256-18
北高崎駅の口コミ
子育て・病院
4.0
総合病院が近くに少なく不便に感じました。 紹介状を書いてもらった時に前橋の大学病院で少し不便に感じました。
治安・安全
5.0
夜間は周辺エリア全体的に人通りが少ないが、街灯はそこそこの数あるため帰宅が遅くなった場合でもそこまで不安は無い
住宅ローンシミュレーション
住宅ローン設定
物件価格
返済期間
頭金
ボーナス払(年1回)
※
※物件価格の80%以下でお借入れの場合
※50歳以下で一般団信をご選択の場合
※住宅ローン金利優遇割適用後の変動金利(全期間引き下げプラン)
※実際のお借入日の金利により変動します。
※審査の結果によっては保証付金利プランとなる場合があり、この場合は上記とは異なる金利となります。
※別途借入金額の2.20%(税込)の事務手数料が発生します。
ボーナス払 | 35年間返済 | 30年間返済 | 25年間返済 | 20年間返済 | 15年間返済 | 10年間返済 |
|---|---|---|---|---|---|---|
0万円 | -円/月 | -円/月 | -円/月 | -円/月 | -円/月 | -円/月 |
5万円 | -円/月 | -円/月 | -円/月 | -円/月 | -円/月 | -円/月 |
10万円 | -円/月 | -円/月 | -円/月 | -円/月 | -円/月 | -円/月 |
15万円 | -円/月 | -円/月 | -円/月 | -円/月 | -円/月 | -円/月 |
20万円 | -円/月 | -円/月 | -円/月 | -円/月 | -円/月 | -円/月 |
25万円 | -円/月 | -円/月 | -円/月 | -円/月 | -円/月 | -円/月 |
30万円 | -円/月 | -円/月 | -円/月 | -円/月 | -円/月 | -円/月 |
ボーナス払 | 35年間返済 | 30年間返済 | 25年間返済 | 20年間返済 | 15年間返済 | 10年間返済 |
|---|---|---|---|---|---|---|
0万円 | -円/月 | -円/月 | -円/月 | -円/月 | -円/月 | -円/月 |
5万円 | -円/月 | -円/月 | -円/月 | -円/月 | -円/月 | -円/月 |
10万円 | -円/月 | -円/月 | -円/月 | -円/月 | -円/月 | -円/月 |
15万円 | -円/月 | -円/月 | -円/月 | -円/月 | -円/月 | -円/月 |
20万円 | -円/月 | -円/月 | -円/月 | -円/月 | -円/月 | -円/月 |
25万円 | -円/月 | -円/月 | -円/月 | -円/月 | -円/月 | -円/月 |
30万円 | -円/月 | -円/月 | -円/月 | -円/月 | -円/月 | -円/月 |
- ・金利は、今後35年間変動しない仮定のもと元利均等返済方式で計算しております。
- ・実際の金利は、各金融機関のホームページをご参照ください。
- ・ローン契約の際には、手数料や印紙税などの諸費用が別途かかります。
- ・ボーナス支払総額が総支払額の50%を超えている場合、上記の表では「ローン不可」となります。
- ・シミュレーションを利用し、それが原因で利用者が受けたいかなる損害についても当社は一切責任を負いません。あらかじめご了承ください。





















