中古売戸建住宅広島県廿日市市宮島口上1丁目の中古売戸建住宅の詳細情報
外観・室内・設備(4枚)
物件概要
| 物件名 | 広島県廿日市市宮島口上1丁目の中古売戸建住宅 | ||||
|---|---|---|---|---|---|
| 所在地 | 広島県廿日市市宮島口上1丁目 | ||||
| 交通 |
JR山陽本線 「宮島口」駅 徒歩12分 広島電鉄宮島線 「広電宮島口」駅 徒歩12分 広島電鉄宮島線 「広電阿品」駅 徒歩25分 | ||||
| 建物構造 | 木造/2階建 | 最多価格帯 | - | ||
| 販売戸数/総戸数 | -/- | 主要採光面 | 南 | ||
| 引渡し | 即時 | 現況 | 完成済 | ||
| 管理 | - | 駐車場 | 有 (無料) | ||
| 地目 | 宅地 | 地勢 | 雛段 | ||
| 都市計画 | 市街化区域 | 用途地域 | 1種低層 | ||
| 建ぺい率 | 50.00% | 容積率 | 80.00% | ||
| 土地権利 | 所有権 | 国土法届出 | - | ||
| 私道負担・道路 | - | 接道状況 | 東 5.3m 公道 | ||
| セットバック | - | リフォーム | - | ||
| リノベーション | - | 取引態様 | 媒介 | ||
| 施工会社名 | - | 建築確認番号 | - | ||
| その他費用 | - | ||||
| その他制限事項 | - | ||||
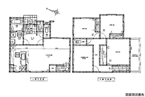
| 備考 | 私道負担:なし・【No.A ご見学できます♪】・JR「宮島口」駅まで徒歩11分♪・ファミリータイプの3LDK♪・LDK約18.5帖と広々♪・オール電化・エコキュートで安心快適♪・大容量の小屋裏物入有♪♪(約6帖)・未入居物件・仲介手数料:売買代金の3.3%+66,000円 | ||||
情報公開日:2025/11/08 次回更新予定日:情報更新日より14日以内
この物件の地図・周辺環境
このアイコンは物件のおおよその位置を表しており、実際の場所と異なる場合がございます。詳しくは不動産会社に直接ご確認ください。
取り扱い不動産会社
- 住所
- 広島県広島市佐伯区楽々園2丁目1-18
- 電話番号
- 082-275-6513
- 営業時間
- 09:30~19:00
- 定休日
- ・年末年始
- 免許番号
- 広島県知事免許(1)第11200号
- 所属団体
- (公社)全日本不動産協会、中国地区不動産公正取引協議会
掲載期限まであと7日
宮島口駅の口コミ
お買い物・飲食
4.0
買い物としては、坂の上に上がればスーパーとしてピーコックのがあり、少し大きめなら市役所付近にフジやイオンモールがある。また食事としては宮島港周辺に数件食事ができ、また市役所付近にいけばそこそこ店がみられる
住宅ローンシミュレーション
住宅ローン設定
物件価格
返済期間
頭金
ボーナス払(年1回)
※
※物件価格の80%以下でお借入れの場合
※50歳以下で一般団信をご選択の場合
※住宅ローン金利優遇割適用後の変動金利(全期間引き下げプラン)
※実際のお借入日の金利により変動します。
※審査の結果によっては保証付金利プランとなる場合があり、この場合は上記とは異なる金利となります。
※別途借入金額の2.20%(税込)の事務手数料が発生します。
ボーナス払 | 35年間返済 | 30年間返済 | 25年間返済 | 20年間返済 | 15年間返済 | 10年間返済 |
|---|---|---|---|---|---|---|
0万円 | -円/月 | -円/月 | -円/月 | -円/月 | -円/月 | -円/月 |
5万円 | -円/月 | -円/月 | -円/月 | -円/月 | -円/月 | -円/月 |
10万円 | -円/月 | -円/月 | -円/月 | -円/月 | -円/月 | -円/月 |
15万円 | -円/月 | -円/月 | -円/月 | -円/月 | -円/月 | -円/月 |
20万円 | -円/月 | -円/月 | -円/月 | -円/月 | -円/月 | -円/月 |
25万円 | -円/月 | -円/月 | -円/月 | -円/月 | -円/月 | -円/月 |
30万円 | -円/月 | -円/月 | -円/月 | -円/月 | -円/月 | -円/月 |
ボーナス払 | 35年間返済 | 30年間返済 | 25年間返済 | 20年間返済 | 15年間返済 | 10年間返済 |
|---|---|---|---|---|---|---|
0万円 | -円/月 | -円/月 | -円/月 | -円/月 | -円/月 | -円/月 |
5万円 | -円/月 | -円/月 | -円/月 | -円/月 | -円/月 | -円/月 |
10万円 | -円/月 | -円/月 | -円/月 | -円/月 | -円/月 | -円/月 |
15万円 | -円/月 | -円/月 | -円/月 | -円/月 | -円/月 | -円/月 |
20万円 | -円/月 | -円/月 | -円/月 | -円/月 | -円/月 | -円/月 |
25万円 | -円/月 | -円/月 | -円/月 | -円/月 | -円/月 | -円/月 |
30万円 | -円/月 | -円/月 | -円/月 | -円/月 | -円/月 | -円/月 |
- ・金利は、今後35年間変動しない仮定のもと元利均等返済方式で計算しております。
- ・実際の金利は、各金融機関のホームページをご参照ください。
- ・ローン契約の際には、手数料や印紙税などの諸費用が別途かかります。
- ・ボーナス支払総額が総支払額の50%を超えている場合、上記の表では「ローン不可」となります。
- ・シミュレーションを利用し、それが原因で利用者が受けたいかなる損害についても当社は一切責任を負いません。あらかじめご了承ください。
















