中古売戸建住宅香川県綾歌郡綾川町滝宮の中古売戸建住宅の詳細情報
外観・室内・設備(3枚)
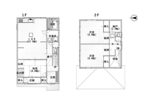
その他(12枚)
物件概要
| 物件名 | 香川県綾歌郡綾川町滝宮の中古売戸建住宅 | ||||
|---|---|---|---|---|---|
| 所在地 | 香川県綾歌郡綾川町滝宮 | ||||
| 交通 |
高松琴平電鉄琴平線 「滝宮」駅 徒歩5分 | ||||
| 建物構造 | 木造/2階建 | 最多価格帯 | - | ||
| 販売戸数/総戸数 | -/- | 主要採光面 | 西 | ||
| 引渡し | 相談 | 現況 | 空 | ||
| 管理 | - | 駐車場 | - | ||
| 地目 | 宅地 | 地勢 | - | ||
| 都市計画 | 非線引区域 | 用途地域 | 1種住居 | ||
| 建ぺい率 | 60.00% | 容積率 | 200.00% | ||
| 土地権利 | 所有権 | 国土法届出 | - | ||
| 私道負担・道路 | - | 接道状況 | 西 6.0m 公道 接面3.0m西 3.5m 公道 接面11.2m | ||
| セットバック | - | リフォーム | 備考に記載 | ||
| リノベーション | 備考に記載 | 取引態様 | 売主 | ||
| 施工会社名 | - | 建築確認番号 | - | ||
| その他費用 | - | ||||
| その他制限事項 | - | ||||
| 備考 | 【リフォーム済】毎週土日予約制の見学会を開催致します。(前日18時まで電話予約)お気軽にお問い合わせ下さい。11月末まで、はじめてご来場いただいたお客様にヤマダポイント3,000円分プレゼント!・リフォーム実施:2025年2月水回り(キッチン/浴室/トイレ/洗面所)、2025年2月内装(床(フローリング等)/壁・天井(クロス・塗装等)/床一部張り替え予定)、2025年2月外装(外壁)、2025年2月その他(シロアリ防蟻工事有)・リノベーション実施:2025年2月水回り、内装・外壁 リノベーション。 | ||||
情報公開日:2025/11/18 次回更新予定日:情報更新日より14日以内
この物件の地図・周辺環境
このアイコンは物件のおおよその位置を表しており、実際の場所と異なる場合がございます。詳しくは不動産会社に直接ご確認ください。
取り扱い不動産会社
- 住所
- 香川県高松市春日町217番3
- 電話番号
- 087-841-0220
- 営業時間
- 09:00~18:00
- 定休日
- 火曜日、水曜日・年末年始
- 免許番号
- 国土交通大臣免許(16)第382号
- 所属団体
- (一社)不動産流通経営協会、(公社)香川県宅地建物取引業協会、中国地区不動産公正取引協議会
掲載期限まであと3日
住宅ローンシミュレーション
住宅ローン設定
物件価格
返済期間
頭金
ボーナス払(年1回)
※
※物件価格の80%以下でお借入れの場合
※50歳以下で一般団信をご選択の場合
※住宅ローン金利優遇割適用後の変動金利(全期間引き下げプラン)
※実際のお借入日の金利により変動します。
※審査の結果によっては保証付金利プランとなる場合があり、この場合は上記とは異なる金利となります。
※別途借入金額の2.20%(税込)の事務手数料が発生します。
ボーナス払 | 35年間返済 | 30年間返済 | 25年間返済 | 20年間返済 | 15年間返済 | 10年間返済 |
|---|---|---|---|---|---|---|
0万円 | -円/月 | -円/月 | -円/月 | -円/月 | -円/月 | -円/月 |
5万円 | -円/月 | -円/月 | -円/月 | -円/月 | -円/月 | -円/月 |
10万円 | -円/月 | -円/月 | -円/月 | -円/月 | -円/月 | -円/月 |
15万円 | -円/月 | -円/月 | -円/月 | -円/月 | -円/月 | -円/月 |
20万円 | -円/月 | -円/月 | -円/月 | -円/月 | -円/月 | -円/月 |
25万円 | -円/月 | -円/月 | -円/月 | -円/月 | -円/月 | -円/月 |
30万円 | -円/月 | -円/月 | -円/月 | -円/月 | -円/月 | -円/月 |
ボーナス払 | 35年間返済 | 30年間返済 | 25年間返済 | 20年間返済 | 15年間返済 | 10年間返済 |
|---|---|---|---|---|---|---|
0万円 | -円/月 | -円/月 | -円/月 | -円/月 | -円/月 | -円/月 |
5万円 | -円/月 | -円/月 | -円/月 | -円/月 | -円/月 | -円/月 |
10万円 | -円/月 | -円/月 | -円/月 | -円/月 | -円/月 | -円/月 |
15万円 | -円/月 | -円/月 | -円/月 | -円/月 | -円/月 | -円/月 |
20万円 | -円/月 | -円/月 | -円/月 | -円/月 | -円/月 | -円/月 |
25万円 | -円/月 | -円/月 | -円/月 | -円/月 | -円/月 | -円/月 |
30万円 | -円/月 | -円/月 | -円/月 | -円/月 | -円/月 | -円/月 |
- ・金利は、今後35年間変動しない仮定のもと元利均等返済方式で計算しております。
- ・実際の金利は、各金融機関のホームページをご参照ください。
- ・ローン契約の際には、手数料や印紙税などの諸費用が別途かかります。
- ・ボーナス支払総額が総支払額の50%を超えている場合、上記の表では「ローン不可」となります。
- ・シミュレーションを利用し、それが原因で利用者が受けたいかなる損害についても当社は一切責任を負いません。あらかじめご了承ください。
















