NEW中古一戸建て高座郡寒川町小谷3丁目の詳細情報
掲載期限まであと12日
外観・室内・設備(12枚)
その他(11枚)
物件概要
| 物件名 | 高座郡寒川町小谷3丁目 | ||||
|---|---|---|---|---|---|
| 所在地 | 神奈川県高座郡寒川町小谷3丁目 | ||||
| 交通 |
JR相模線 宮山駅 徒歩18分 JR相模線 寒川駅 徒歩24分 | ||||
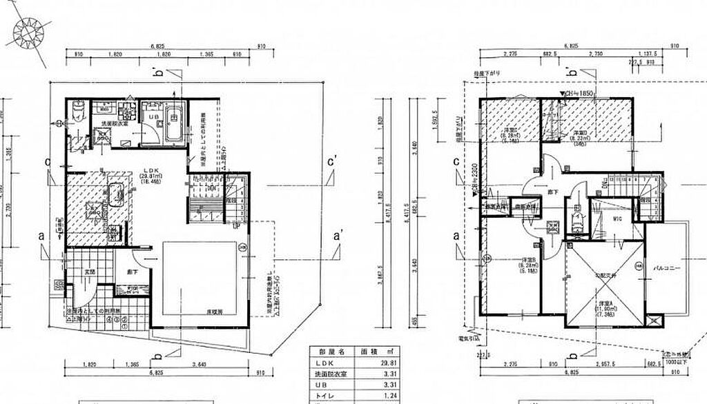
| 建物構造 | 木造/2階建 | 間取り詳細(帖) | - | ||
| 総戸数 | 1戸 | 主要採光面 | - | ||
| 引渡し | 相談 | 現況 | 居住中 | ||
| 管理 | - | 駐車場 | 空有 (2台) 無料 | ||
| 地目 | 宅地 | 地勢 | 平坦 | ||
| 都市計画 | 市街化区域 | 用途地域 | 第一種低層住居専用地域 | ||
| 建ぺい率 | 50% | 容積率 | 100% | ||
| 土地権利 | 所有権 | 国土法届出 | 不要 | ||
| 私道負担・道路 | - | 接道状況 | 角地 ( 南東 6.2m 公道 ) ( 南西 4.5m 公道 ) | ||
| セットバック | 無 | リフォーム | - | ||
| リノベーション | - | 取引態様 | 専任媒介 | ||
| 施工会社名 | - | 建築確認番号 | - | ||
| その他費用 | - | ||||
| オープンルーム情報 | - | ||||
| 備考 | ■宮山駅・寒川駅まで平坦アクセス■子育て安心な小中学校徒歩10分圏内■開放感があり駐車もしやすい6m公道に接道■カースペース2台可■家計に優しい都市ガス供給エリア■南西・南東角地で開放感良好■内外装コンディション良好。大変丁重にお使いです。■スタイリッシュな片流れ屋根の外観デザイン■リビングダイニングに床暖房完備■家事効率UPの食洗機付システムキッチン■ディスプレイがお洒落な書斎(DEN)■18帖以上の広々LDK■日当り開放感良好な勾配天井の主寝室■沢山のお洋服を収納できる大型WIC■全室5帖以上の4LDKプラン 築浅デザイナーズ住宅♪カースペース2台■■日当り&開放感良好な角地◎ 景観法 高さ限度有 日影制限有 道路斜線制限 隣地斜線制限 | ||||
情報公開日:2025/10/31 有効期限:2025/11/14
設備・条件
| 位置 | 角地 | ||||
|---|---|---|---|---|---|
| キッチン | 浄水器・活水器、カウンターキッチン、システムキッチン、給湯 | ||||
| セキュリティ | 防犯カメラ、24時間有人管理、TVモニタ付インターホン | ||||
| 設備・サービス | 床暖房、バリアフリー、フローリング、ウォークインクローゼット、床下収納、下水、都市ガス、公営水道、浴室乾燥機、追焚機能、シャワー | ||||
| その他 | 24時間換気システム、オートバス、照明器具付き、トイレ2ヶ所以上、所有権、防犯(雨戸)シャッター、木造、上下水道、平面駐車場、セキュリティ会社加入済、全室フローリング、オンライン相談可、低層住宅地、2階建て、全居室収納、クローゼット、駐車場あり、駐車場2台以上、整形地、平坦地、前面道路6m以上 | ||||
| 周辺環境 | 小学校 800m以内、中学校 800m以内 | ||||
この物件の地図・周辺環境
このアイコンは物件のおおよその位置を表しており、実際の場所と異なる場合がございます。詳しくは不動産会社に直接ご確認ください。
取り扱い不動産会社
- 住所
- 神奈川県大和市大和南2丁目2-6
- 電話番号
- 0120-720-793
- 営業時間
- 10:00~20:00
- 定休日
- 毎週火曜日、水曜日
- 免許番号
- 国土交通大臣(9)第003744号
- 所属団体
- (公財)東日本不動産流通機構
朝日土地建物(株) 大和支店 営業3課
電話で問い合わせる(無料)お急ぎの方はこちらから!
物件お問い合わせ専用ダイヤル
営業時間:10:00~20:00(定休日:毎週火曜日、水曜日) 携帯・PHS可
音声案内に従って以下の数字を入力
お問い合わせ番号:13277-1059
LIFULL HOME'S物件番号:3-4392
※お客様の電話番号は不動産会社に通知されません。
※光IP電話、及びIP電話からはご利用になれません。
※不動産会社の方からの上記電話番号によるお問合せはお断りしております。
掲載期限まであと12日
宮山駅の口コミ
お買い物・飲食
3.0
近くにスーパー三和やドラッグストアのクリエイトがあるので、日々の生活には困らない。 個人経営の食事店はちょこっとあるが、ガスト等チェーン店へは車が無いと行けない。
住宅ローンシミュレーション
住宅ローン設定
物件価格
返済期間
頭金
ボーナス払(年1回)
※
※物件価格の80%以下でお借入れの場合
※50歳以下で一般団信をご選択の場合
※住宅ローン金利優遇割適用後の変動金利(全期間引き下げプラン)
※実際のお借入日の金利により変動します。
※審査の結果によっては保証付金利プランとなる場合があり、この場合は上記とは異なる金利となります。
※別途借入金額の2.20%(税込)の事務手数料が発生します。
ボーナス払 | 35年間返済 | 30年間返済 | 25年間返済 | 20年間返済 | 15年間返済 | 10年間返済 |
|---|---|---|---|---|---|---|
0万円 | -円/月 | -円/月 | -円/月 | -円/月 | -円/月 | -円/月 |
5万円 | -円/月 | -円/月 | -円/月 | -円/月 | -円/月 | -円/月 |
10万円 | -円/月 | -円/月 | -円/月 | -円/月 | -円/月 | -円/月 |
15万円 | -円/月 | -円/月 | -円/月 | -円/月 | -円/月 | -円/月 |
20万円 | -円/月 | -円/月 | -円/月 | -円/月 | -円/月 | -円/月 |
25万円 | -円/月 | -円/月 | -円/月 | -円/月 | -円/月 | -円/月 |
30万円 | -円/月 | -円/月 | -円/月 | -円/月 | -円/月 | -円/月 |
ボーナス払 | 35年間返済 | 30年間返済 | 25年間返済 | 20年間返済 | 15年間返済 | 10年間返済 |
|---|---|---|---|---|---|---|
0万円 | -円/月 | -円/月 | -円/月 | -円/月 | -円/月 | -円/月 |
5万円 | -円/月 | -円/月 | -円/月 | -円/月 | -円/月 | -円/月 |
10万円 | -円/月 | -円/月 | -円/月 | -円/月 | -円/月 | -円/月 |
15万円 | -円/月 | -円/月 | -円/月 | -円/月 | -円/月 | -円/月 |
20万円 | -円/月 | -円/月 | -円/月 | -円/月 | -円/月 | -円/月 |
25万円 | -円/月 | -円/月 | -円/月 | -円/月 | -円/月 | -円/月 |
30万円 | -円/月 | -円/月 | -円/月 | -円/月 | -円/月 | -円/月 |
- ・金利は、今後35年間変動しない仮定のもと元利均等返済方式で計算しております。
- ・実際の金利は、各金融機関のホームページをご参照ください。
- ・ローン契約の際には、手数料や印紙税などの諸費用が別途かかります。
- ・ボーナス支払総額が総支払額の50%を超えている場合、上記の表では「ローン不可」となります。
- ・シミュレーションを利用し、それが原因で利用者が受けたいかなる損害についても当社は一切責任を負いません。あらかじめご了承ください。






























