一戸建て和泉町(下飯田駅) 4680万円の詳細情報
4680万円
月々のローン返済額を試算2024年5月築 カースペース2台分
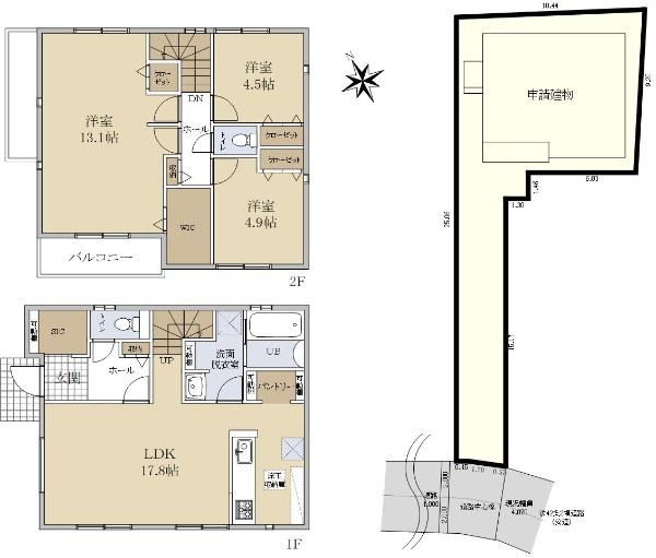
物件概要
| 物件名 | 和泉町(下飯田駅) 4680万円 | ||||
|---|---|---|---|---|---|
| 所在地 | 神奈川県横浜市泉区和泉町 | ||||
| 交通 |
ブルーライン「下飯田」歩14分 相鉄いずみ野線「ゆめが丘」歩17分 | ||||
| 建物構造 | 木造2階建 | 最多価格帯 | - | ||
| 販売戸数/総戸数 | 1戸/- | 入居時期 | 相談 | ||
| 駐車場 | - | 地目 | - | ||
| 用途地域 | 市街化調整区域 | 建ぺい率・容積率 | 50%・80% | ||
| 土地権利 | 所有権 | 私道負担・道路 | 無、南4m幅(接道幅2.7m) | ||
| セットバック | 済 | リフォーム | - | ||
| 取引態様 | 仲介 | 施工会社名 | - | ||
| 建築確認番号 | - | ||||
| その他費用 | - | ||||
| 販売スケジュール | - | ||||
| イベント情報 | - | ||||
| その他制限事項 | セットバック:済、地勢:平坦/駐車場有り/駐車場は車種によります/市街化調整区域 /なお、建築可能な建築物は第1種低層住居専用地域に建築可能な2階建の木造建築物です。/だだし都市計画法43条の許可を受けており建物(許可時の建築物)の建築が可能です | ||||
| 備考 | 担当者:上島 直樹、建築許可理由:調整区域につき建築許可要 | ||||
| 取引条件有効期限 | - | ||||
情報公開日:2025/11/22 次回更新予定日:情報提供より8日以内
取り扱い不動産会社
- 電話番号
- 0120-425280
- 営業時間
- 営業時間:10:00~18:00 / 定休日:火曜日・水曜日
- 免許番号
- 国土交通大臣(13)第002077号
- 会社概要
- <仲介>
国土交通大臣(13)第002077号
(一社)不動産流通経営協会会員 (公社)首都圏不動産公正取引協議会加盟
住友不動産ステップ(株)湘南台営業センター
〒252-0804 神奈川県藤沢市湘南台1-12-1 エバーズ第13湘南台ビル6階
下飯田駅の口コミ
自然環境
4.0
緑が多く、長い滑り台のある公園や 野球場(高校野球の予選やりますよ) 近隣にいろいろあるのので 子供がいる家庭にはとてもいい場所だと思う
お買い物・飲食
5.0
飲食店が少ないところ。基本的には毎日自炊になります。スーパーの食材は安いし、ファミリー層は問題ないと思いますが、自分は独身一人暮らしだったので休日は食生活が大変だった。飲食店がないわけではないですが。
住宅ローンシミュレーション
住宅ローン設定
物件価格
返済期間
頭金
ボーナス払(年1回)
※
※物件価格の80%以下でお借入れの場合
※50歳以下で一般団信をご選択の場合
※住宅ローン金利優遇割適用後の変動金利(全期間引き下げプラン)
※実際のお借入日の金利により変動します。
※審査の結果によっては保証付金利プランとなる場合があり、この場合は上記とは異なる金利となります。
※別途借入金額の2.20%(税込)の事務手数料が発生します。
ボーナス払 | 35年間返済 | 30年間返済 | 25年間返済 | 20年間返済 | 15年間返済 | 10年間返済 |
|---|---|---|---|---|---|---|
0万円 | -円/月 | -円/月 | -円/月 | -円/月 | -円/月 | -円/月 |
5万円 | -円/月 | -円/月 | -円/月 | -円/月 | -円/月 | -円/月 |
10万円 | -円/月 | -円/月 | -円/月 | -円/月 | -円/月 | -円/月 |
15万円 | -円/月 | -円/月 | -円/月 | -円/月 | -円/月 | -円/月 |
20万円 | -円/月 | -円/月 | -円/月 | -円/月 | -円/月 | -円/月 |
25万円 | -円/月 | -円/月 | -円/月 | -円/月 | -円/月 | -円/月 |
30万円 | -円/月 | -円/月 | -円/月 | -円/月 | -円/月 | -円/月 |
ボーナス払 | 35年間返済 | 30年間返済 | 25年間返済 | 20年間返済 | 15年間返済 | 10年間返済 |
|---|---|---|---|---|---|---|
0万円 | -円/月 | -円/月 | -円/月 | -円/月 | -円/月 | -円/月 |
5万円 | -円/月 | -円/月 | -円/月 | -円/月 | -円/月 | -円/月 |
10万円 | -円/月 | -円/月 | -円/月 | -円/月 | -円/月 | -円/月 |
15万円 | -円/月 | -円/月 | -円/月 | -円/月 | -円/月 | -円/月 |
20万円 | -円/月 | -円/月 | -円/月 | -円/月 | -円/月 | -円/月 |
25万円 | -円/月 | -円/月 | -円/月 | -円/月 | -円/月 | -円/月 |
30万円 | -円/月 | -円/月 | -円/月 | -円/月 | -円/月 | -円/月 |
- ・金利は、今後35年間変動しない仮定のもと元利均等返済方式で計算しております。
- ・実際の金利は、各金融機関のホームページをご参照ください。
- ・ローン契約の際には、手数料や印紙税などの諸費用が別途かかります。
- ・ボーナス支払総額が総支払額の50%を超えている場合、上記の表では「ローン不可」となります。
- ・シミュレーションを利用し、それが原因で利用者が受けたいかなる損害についても当社は一切責任を負いません。あらかじめご了承ください。





















