一戸建て青葉台2(日根野駅) 2480万円の詳細情報
閑静な住宅地の4LDK!リフォーム済!お気軽にお問い合わせください!
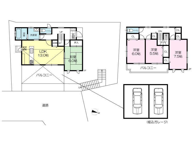
間取り・区画図(1枚)
物件概要
| 物件名 | 青葉台2(日根野駅) 2480万円 | ||||
|---|---|---|---|---|---|
| 所在地 | 大阪府泉南郡熊取町青葉台2 | ||||
| 交通 |
JR阪和線「日根野」歩17分 JR阪和線「熊取」歩20分 JR阪和線「長滝」歩35分 | ||||
| 建物構造 | 木造2階建 | 最多価格帯 | - | ||
| 販売戸数/総戸数 | 1戸/- | 入居時期 | 即引渡可 | ||
| 駐車場 | 車庫 | 地目 | - | ||
| 用途地域 | 1種低層 | 建ぺい率・容積率 | 50%・100% | ||
| 土地権利 | 所有権 | 私道負担・道路 | 無、北東5m幅(接道幅14.7m) | ||
| セットバック | - | リフォーム | - | ||
| 取引態様 | 仲介 | 施工会社名 | - | ||
| 建築確認番号 | - | ||||
| その他費用 | - | ||||
| 販売スケジュール | - | ||||
| イベント情報 |
現地見学会(事前に必ず予約してください) 日程/公開中 時間/9:00~18:30 ●ご予約方法● ・当日・前日予約もお気軽にどうぞ♪ ・午前9時~午後18時30分の間でご予約下さい♪ ・可能な限り、ご希望のお時間で対応いたします♪(例外のお時間はご相談ください) ・電話での当日予約もお気軽にどうぞ♪ ・ご自宅やご指定の場所へお迎えに上がることも可能です♪ ・ご希望に合わせて周辺情報などのご紹介もできます!! ・その他気になることがあればお気軽にお問合せ下さい♪ | ||||
| その他制限事項 | ・法22条指定区域 ・旧宅地造成等規制区域・堀込車庫(大):幅 3.6m、(小)2.6m ※奥行は共に5.5m | ||||
| 備考 | 設備:公営水道、本下水、都市ガス、駐車場:車庫 | ||||
| 取引条件有効期限 | - | ||||
情報公開日:2025/11/04 次回更新予定日:情報提供より8日以内
この物件の地図・周辺環境
このアイコンは物件のおおよその位置を表しており、実際の場所と異なる場合がございます。詳しくは不動産会社に直接ご確認ください。
※地図上に表示される物件の位置は付近住所に所在することを表すものであり、実際の物件所在地とは異なる場合がございます。
※地図の更新タイミングの関係で、物件情報が実際のものとは異なる場合や最新情報に更新されていない場合がございます。
※以下の南西諸島及び離島においては、表示される物件の位置が実際のものとは数百メートル程度ずれる場合がございます。
東京都:硫黄島・青ヶ島、沖縄県: 北大東島・南大東島・多良間島・水納島・与那国島・宮古諸島・石垣島・竹富島
取り扱い不動産会社
- 住所
- 大阪府泉佐野市南泉ヶ丘1-6-14
- 電話番号
- 072-464-4306
- 営業時間
- 営業時間:9:00~18:10 / 定休日:火曜日・水曜日
- 免許番号
- 国土交通大臣(12)第002918号
- 会社概要
- <仲介>
国土交通大臣(12)第002918号
(一社)不動産流通経営協会会員 (公社)首都圏不動産公正取引協議会加盟
タカセ不動産(株)泉佐野店
〒598-0073 大阪府泉佐野市南泉ヶ丘1-6-14
タカセ不動産(株) 泉佐野店
日根野駅の口コミ
お買い物・飲食
3.0
イオンには食品のみでなく、雑貨屋や服屋、医療関係、習い事等ひと通りのラインナップがあった記憶がある。
お買い物・飲食
5.0
こーたりーなやよってってなど、新鮮で質の良い野菜が安く購入できる場所が多いことに感動しました。また、駅前にあるみーちゃんのたこ焼きは味とボリュームがピカイチです。埼玉出身でいまは東京に戻ってきてしまいましたが、みーちゃんのたこ焼きが恋しくなります。
泉南郡熊取町の駅から中古一戸建てを探す
大阪府近隣の都道府県から中古一戸建てを探す
住宅ローンシミュレーション
住宅ローン設定
物件価格
返済期間
頭金
ボーナス払(年1回)
※
※物件価格の80%以下でお借入れの場合
※50歳以下で一般団信をご選択の場合
※住宅ローン金利優遇割適用後の変動金利(全期間引き下げプラン)
※実際のお借入日の金利により変動します。
※審査の結果によっては保証付金利プランとなる場合があり、この場合は上記とは異なる金利となります。
※別途借入金額の2.20%(税込)の事務手数料が発生します。
ボーナス払 | 35年間返済 | 30年間返済 | 25年間返済 | 20年間返済 | 15年間返済 | 10年間返済 |
|---|---|---|---|---|---|---|
0万円 | -円/月 | -円/月 | -円/月 | -円/月 | -円/月 | -円/月 |
5万円 | -円/月 | -円/月 | -円/月 | -円/月 | -円/月 | -円/月 |
10万円 | -円/月 | -円/月 | -円/月 | -円/月 | -円/月 | -円/月 |
15万円 | -円/月 | -円/月 | -円/月 | -円/月 | -円/月 | -円/月 |
20万円 | -円/月 | -円/月 | -円/月 | -円/月 | -円/月 | -円/月 |
25万円 | -円/月 | -円/月 | -円/月 | -円/月 | -円/月 | -円/月 |
30万円 | -円/月 | -円/月 | -円/月 | -円/月 | -円/月 | -円/月 |
ボーナス払 | 35年間返済 | 30年間返済 | 25年間返済 | 20年間返済 | 15年間返済 | 10年間返済 |
|---|---|---|---|---|---|---|
0万円 | -円/月 | -円/月 | -円/月 | -円/月 | -円/月 | -円/月 |
5万円 | -円/月 | -円/月 | -円/月 | -円/月 | -円/月 | -円/月 |
10万円 | -円/月 | -円/月 | -円/月 | -円/月 | -円/月 | -円/月 |
15万円 | -円/月 | -円/月 | -円/月 | -円/月 | -円/月 | -円/月 |
20万円 | -円/月 | -円/月 | -円/月 | -円/月 | -円/月 | -円/月 |
25万円 | -円/月 | -円/月 | -円/月 | -円/月 | -円/月 | -円/月 |
30万円 | -円/月 | -円/月 | -円/月 | -円/月 | -円/月 | -円/月 |
- ・金利は、今後35年間変動しない仮定のもと元利均等返済方式で計算しております。
- ・実際の金利は、各金融機関のホームページをご参照ください。
- ・ローン契約の際には、手数料や印紙税などの諸費用が別途かかります。
- ・ボーナス支払総額が総支払額の50%を超えている場合、上記の表では「ローン不可」となります。
- ・シミュレーションを利用し、それが原因で利用者が受けたいかなる損害についても当社は一切責任を負いません。あらかじめご了承ください。





















