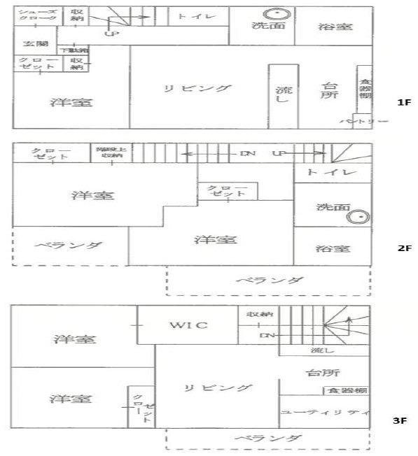
一戸建て草加市北谷 鉄骨2世帯住宅の詳細情報
4830万円
月々のローン返済額を試算『令和1年築の旭化成ホームズ施工2世帯鉄骨住宅』~2台駐車可、太陽光設備~
周辺環境・アクセス(9枚)
その他(26枚)

リビング以外の居室
【プライバシーのある部屋 2階洋室b】住まわれる人たちの独立したプライベートを確立した居住空間。集合住宅とは異なり、外壁を隔てたその先には奪われることのない空間があります。クローゼット完備♪

浴室
一日の疲れを癒してくれるお部屋の中のオアシスは、魅力的な快適空間。これなら、1日の疲れをとってくれそう。浴室に窓がついているので、湿気に困ることもなさそうです。オートバスもついており、準備も楽々。

TVモニター
【TVモニター付インターフォン】今はほとんどの新築住宅で採用されているモニターフォンで来客の際にはモニターを通して相手を確認でき防犯面も高まります。最近は来客者の録画・録音:録画・録音ができるタイプもある。録画は機種により静止画のものと動画のものがあります。センサーカメラとの連動した最新型は玄関に設置したセンサーカメラで近づいた人をキャッチし、監視・録画できる機能のついているものもあります。

IHクッキングヒーター
火を使わないので、吹きこぼれによる立ち消えの心配もなく、上昇気流も少ないので油の飛び散りが抑える事が出来ます。またフラットなトッププレートの為、汚れもサッとふくだけで簡単にお手入れをすることができます。

浄水器
【カートリッジ式浄水器】キッチン蛇口の先端に浄水機能を内蔵。塩素やそのほかの除去物質を蛇口先端ギリギリで除去する水の安全性を考慮しました。一体型だからキッチンもスッキリ。ボタンひとつで上水と原水をカンタン切替。利用頻度、利用目的に合わせてカートリッジ交換が必要となります。
物件概要
| 物件名 | 草加市北谷 鉄骨2世帯住宅 | ||||
|---|---|---|---|---|---|
| 所在地 | 埼玉県草加市北谷2 | ||||
| 交通 |
東武伊勢崎線「獨協大学前」歩31分 東武伊勢崎線「草加」歩43分 東武伊勢崎線「新田」歩32分 | ||||
| 建物構造 | 鉄骨3階建 | 最多価格帯 | - | ||
| 販売戸数/総戸数 | 1戸/- | 入居時期 | 即引渡可 | ||
| 駐車場 | カースペース | 地目 | - | ||
| 用途地域 | 1種中高 | 建ぺい率・容積率 | 60%・200% | ||
| 土地権利 | 所有権 | 私道負担・道路 | 無、南西4.5m幅、南東4m幅 | ||
| セットバック | - | リフォーム | - | ||
| 取引態様 | 仲介 | 施工会社名 | 旭化成ホームズ(株) | ||
| 建築確認番号 | - | ||||
| その他費用 | - | ||||
| 販売スケジュール | - | ||||
| イベント情報 |
現地案内会(事前に必ずお問い合わせください) 日程/公開中 時間/9:00~20:45 ☆ ☆ ☆ ☆ ご 見 学 の 流 れ ☆ ☆ ☆ ☆ ○ご見学について (1)まずはお気軽にお問い合わせ下さい。 (2)ご都合の良い方法にて実際に現地をご覧下さい。 (3)住宅ローンのご相談やライフシュミレーションの作成etc ご購入の前段階からお手伝いさせて頂きます。 ○日時について ・土日はもちろん、平日や仕事終わりの夜間等いつでもご見学可能です。 〇株式会社東宝ハウス川口 ・JR京浜東北線「川口」駅西口 徒歩6分 ☆青い看板が目印です☆ ※抗菌『エアリアルコート』を全店内に施工しました。安心してお越し下さい。 ○駐車場完備 ・店舗近くに複数駐車場がございますのでお車でお気軽にお越し下さい。 ○キッズスペース完備 ・お子様が退屈しないようDVDやおもちゃ、ジュースなど色々ご用意したキッズ スペースがございますので是非、お子様もご一緒にご来店下さい。 (注)お子様に「甘いもの禁止」等のご要望も遠慮なくお伝えください。 | ||||
| その他制限事項 | 景観法による規制有 | ||||
| 備考 | 担当者:松本美紀子、設備:公営水道、本下水、都市ガス、駐車場:カースペース | ||||
| 取引条件有効期限 | - | ||||
情報公開日:2025/11/27 次回更新予定日:情報提供より8日以内
取り扱い不動産会社
東宝ハウスライフソリューションズグループ(株)東宝ハウス川口営業1課
- 住所
- 埼玉県川口市飯塚2-4-37
- 電話番号
- 0120-104320
- 営業時間
- 営業時間:AM8:30~PM10:00 / 定休日:年中無休
- 免許番号
- 埼玉県知事(6)第018501号
- 会社概要
- <仲介>
埼玉県知事(6)第018501号
(公社)全日本不動産協会埼玉県本部会員 (公社)首都圏不動産公正取引協議会加盟
東宝ハウスライフソリューションズグループ(株)東宝ハウス川口営業1課
〒332-0023 埼玉県川口市飯塚2-4-37
(株)エステート白馬越谷店
獨協大学前〈草加松原〉駅の口コミ
自然環境
3.0
近くに公園は何個もあり、河川ある。春になると、桜がよく見える箇所もあり、散歩するには素敵なところが近くにあります。
自然環境
3.0
駅周辺はキャバクラや風俗店かよくわからないエステ店が沢山ある。美容院のチラシ配りも煩わしい。駅前はガラの悪い人がたむろしている事がある。また、3月4月は獨協大生が騒いて煩い。
草加市の駅から中古一戸建てを探す
住宅ローンシミュレーション
住宅ローン設定
物件価格
返済期間
頭金
ボーナス払(年1回)
※
※物件価格の80%以下でお借入れの場合
※50歳以下で一般団信をご選択の場合
※住宅ローン金利優遇割適用後の変動金利(全期間引き下げプラン)
※実際のお借入日の金利により変動します。
※審査の結果によっては保証付金利プランとなる場合があり、この場合は上記とは異なる金利となります。
※別途借入金額の2.20%(税込)の事務手数料が発生します。
ボーナス払 | 35年間返済 | 30年間返済 | 25年間返済 | 20年間返済 | 15年間返済 | 10年間返済 |
|---|---|---|---|---|---|---|
0万円 | -円/月 | -円/月 | -円/月 | -円/月 | -円/月 | -円/月 |
5万円 | -円/月 | -円/月 | -円/月 | -円/月 | -円/月 | -円/月 |
10万円 | -円/月 | -円/月 | -円/月 | -円/月 | -円/月 | -円/月 |
15万円 | -円/月 | -円/月 | -円/月 | -円/月 | -円/月 | -円/月 |
20万円 | -円/月 | -円/月 | -円/月 | -円/月 | -円/月 | -円/月 |
25万円 | -円/月 | -円/月 | -円/月 | -円/月 | -円/月 | -円/月 |
30万円 | -円/月 | -円/月 | -円/月 | -円/月 | -円/月 | -円/月 |
ボーナス払 | 35年間返済 | 30年間返済 | 25年間返済 | 20年間返済 | 15年間返済 | 10年間返済 |
|---|---|---|---|---|---|---|
0万円 | -円/月 | -円/月 | -円/月 | -円/月 | -円/月 | -円/月 |
5万円 | -円/月 | -円/月 | -円/月 | -円/月 | -円/月 | -円/月 |
10万円 | -円/月 | -円/月 | -円/月 | -円/月 | -円/月 | -円/月 |
15万円 | -円/月 | -円/月 | -円/月 | -円/月 | -円/月 | -円/月 |
20万円 | -円/月 | -円/月 | -円/月 | -円/月 | -円/月 | -円/月 |
25万円 | -円/月 | -円/月 | -円/月 | -円/月 | -円/月 | -円/月 |
30万円 | -円/月 | -円/月 | -円/月 | -円/月 | -円/月 | -円/月 |
- ・金利は、今後35年間変動しない仮定のもと元利均等返済方式で計算しております。
- ・実際の金利は、各金融機関のホームページをご参照ください。
- ・ローン契約の際には、手数料や印紙税などの諸費用が別途かかります。
- ・ボーナス支払総額が総支払額の50%を超えている場合、上記の表では「ローン不可」となります。
- ・シミュレーションを利用し、それが原因で利用者が受けたいかなる損害についても当社は一切責任を負いません。あらかじめご了承ください。






























